アプリで簡単 物件探し 通知 共有 アプリならではの機能を使ってみる
賃貸アパート

コートハウス伏見桃山 丹波橋駅 3LDK 賃貸(賃貸マンション・アパート)

情報提供元
LIFULL HOME'S
コートハウス伏見桃山 桃山で高級物件をお探しの方へ。
賃料 18.5万円  (管理費等:-)
礼金・敷金 37万円 / 18.5万円 保証金/敷引・償却 - / -
交通
所在地 京都府京都市伏見区桃山町島津周辺地図
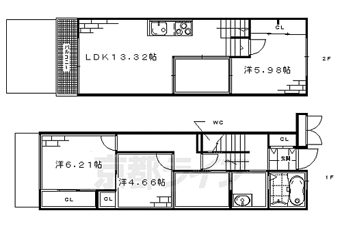
間取り 3LDK 専有面積 78.67m2
築年月 2016年11月 築年数 築9年1ヶ月
おすすめポイント
高級ハイツ登場です。 京阪・近鉄・JRの3WAY可能な立地

詳細情報

賃料 18.5万円 管理費等 -
敷金 18.5万円 礼金 37万円
保証金 - 敷引・償却 -
更新料 新賃料の1ヶ月分 契約期間 2年
カード決済 -
所在地 京都府京都市伏見区桃山町島津周辺地図
交通
  • 京阪電気鉄道京阪線 丹波橋駅 徒歩7分乗換案内
  • 近鉄京都線 近鉄丹波橋駅 徒歩7分乗換案内
建物名 コートハウス伏見桃山 
間取り 3LDK 築年月(築年数) 2016年11月(築9年1ヶ月)
専有面積 78.67㎡ 所在階/階数 1階/2階建
建物構造 木造  方位 西 
現況 空  駐車場 有 13,200円
入居可能時期 即時 住宅保険
情報提供元 LIFULL HOME'S[1001180254110] 情報公開日
情報更新日 次回更新予定日 2025年12月12日

設備など

2階以上 - 最上階 - 角部屋 -
駐車場(近隣含) エアコン付き バス・トイレ別
室内洗濯機置き場 追焚機能 オートロック付き
モニタ付インターホン フローリング バルコニー
ガスコンロ可 - 浴室乾燥機 - 24時間セキュリティ -
宅配ボックス - ペット相談可 二人入居可
設備 上水道・都市ガス・本下水・バス・トイレ別・シャワー・IHクッキングヒータ・コンロ2口以上・システムキッチン・給湯・追焚機能・シャンプードレッサ・エアコン・室内洗濯機置き場・BS端子・オートロック・専用庭・バルコニー・フローリング・駐輪場・バイク置き場・床暖房・モニタ付インターホン・温水洗浄便座・洗面所独立・シューズボックス 
リフォーム履歴 -
リノベーション履歴 -
備考 2016年11月完成3LDKです。京阪丹波橋駅まで徒歩7分。JR、京阪、近鉄のトリプルアクセス。嬉しい3点セパレートに追い焚き機能付浴室、システムキッチン、ウォシュレットトイレなど充実の設備。オートロック、警備保障、TVホンでセキュリティも安心です。コンビニ、スーパーなど近くにあって便利ですよ。ペットも相談可能です。 物件情報はもちろん京都のエリア情報まで幅広く対応させていただきます! 【設備・特記事項備考】専用バス・専用トイレ/自転車登録料 3300円/原付登録料 11000円/賃貸戸数:8戸/保証会社の利用:加入要/保証会社名:オリコフォレント/保証会社費用:初回:月額賃料等の50%、月額:システム利用料330円、更新時:1万円/1年/室内清掃費用:66000円 
特記事項 見学予約可・二人入居可・ペット相談可・保証人不要/代行 ・メゾネット

省エネ性能

エネルギー消費性能 -
断熱性能 -
目安光熱費 -

京都府京都市伏見区桃山町島津 周辺地図情報

地図
※地図上に表示される物件の位置は付近住所に所在することを表すものであり、実際の物件所在地とは異なる場合がございます。
   正確な物件所在地は、取扱い不動産会社にお問い合わせください。

不動産会社情報

お問い合わせ先 商号:株式会社京都ライフ 丹波橋店
免許番号:京都府知事(11)第6353号
所在地:京都府京都市伏見区京町北7丁目1-4
TEL:075-623-0005
取引態様:仲介
管理コード:254110
所属協会など:(公社)近畿圏不動産流通機構、(公社)近畿地区不動産公正取引協議会、(公社)京都府宅地建物取引業協会
共有する
QRコード

お電話でのお問い合わせ

電話をかける(携帯・PHS可)
お問い合わせダイヤル
通話無料0037-634-02925
営業時間 09:30~19:00 (定休日:年中無休(盆、正月を除く))
音声案内に従って数字を入力
お問い合わせ番号
11305-2970
不動産会社につながります
不動産会社のスタッフと
直接電話で話せます。
※不動産会社がお電話に出られなかった場合、株式会社LIFULLは電話会社が提供するサービスを介してお客様の発信者番号を受領後、折り返し専用の電話番号を発番してお問合せの不動産会社に通知します(お客様の発信者番号がお問合せの不動産会社に通知されることはございません)
※光IP電話、及びIP電話からはご利用になれません
※0037で始まる電話番号に携帯電話からお問合せいただいた方には、ショートメッセージ(SMS)によるお問合せ完了通知をお届けする場合があります

    京都市伏見区の暮らしデータ

    人口などの統計情報

    世帯数 728744世帯
    人口総数 1379529人
    転入者数 85315人
    転入率(人口1000人当たり)
    61.84人
    転出者数 80567人
    転出率(人口1000人当たり)
    58.40人
    土地平均価格
    住宅地
    220880円/m2
    商業地
    1290411円/m2

    結婚・育児の助成金

    子育て関連の独自の取り組み (1)乳幼児の子育て支援機能や学童クラブ機能等を有する児童館設置。(2)こんにちはプレママ事業。(3)児童虐待未然防止に係る医療機関と子どもはぐくみ室及び京北出張所の連携。(4)子ども保健医療相談・事故防止センター設置。(5)京都はぐくみアプリ配信。(6)子育て支援コンシェルジュ育成。(7)骨髄移植手術等により免疫を喪失した子どもへのワクチン再接種費用助成制度。(8)子どもを共に育む京都市民憲章の制定、憲章の実践・普及の促進。(9)【京都安心すまい応援金】未就学の子どもがいる世帯を対象に、自己居住用として既存住宅を購入し、リフォームを行う場合に、最大200万円の応援金を交付。
    出産祝い あり
    公立保育所数 14所(うち0歳児保育を実施している保育所:13所)
    私立保育所数 196所(うち0歳児保育を実施している保育所:188所)
    保育所入所待機児童数 0人
    認定こども園数 83園 預かり保育実施園数 公立:15園 私立:81園
    学校給食 【小学校】完全給食【中学校】完全給食 家庭弁当等との選択制/デリバリー形式[運搬:ランチボックス、内容:完全給食] 給食なし
    公立中学校の学校選択制 未実施
    子ども・学生等医療費助成<通院>対象年齢 中学校卒業まで 子ども・学生等医療費助成<入院>対象年齢 中学校卒業まで

    京都市伏見区の治安・ごみ収集情報

    公共料金・インフラ

    ガス料金(22m3使用した場合の月額) 大阪瓦斯株式会社4544円
    水道料金(口径20mmで20m3の月額) 京都市3014円
    下水道料金(20m3を使用した場合の月額) 京都市2013円
    下水道普及率 99.5%

    安心・安全

    建物火災出火件数 158件
    人口10000人当たり
    1.08件
    刑法犯認知件数 8104件
    人口1000人当たり
    5.54件
    ハザード・防災マップ あり

    医療

    一般病院総数 89ヶ所
    一般診療所総数 1622ヶ所
    小児科医師数 397人
    小児人口10000人当たり
    27.26人
    産婦人科医師数 201人
    15~49歳女性人口1万人当たり
    7.16人
    介護保険料基準額(月額) 7160円

    ごみ

    家庭ごみ収集(可燃ごみ) 有料
    備考
    指定ごみ袋有料。
    家庭ごみの分別方式 5分別8種〔燃やすごみ 缶・びん・ペットボトル プラスチック類 小型金属類・スプレー缶 雑がみ〕 拠点回収:移動式拠点回収):古紙(新聞・ダンボール) 雑がみ 紙パック 使用済てんぷら油 古着類 乾電池 ボタン電池 充電式電池 蛍光管 水銀体温計・水銀血圧計 小型家電 磁気テープ類 インクカートリッジ リユースびん 刃物類 使い捨てライター 陶磁器製の食器 せん定枝木の枝 石油類 医薬品・農薬 化学薬品・塗料・ワックス・絵の具 洗浄剤
    家庭ごみの戸別収集 一部実施(原則定点としているが、一部地域で狭路等やむを得ない事情がある場合のみ実施。また、ごみ出しが困難な高齢者や障害のある方などの生活支援の一つとして、御自宅の玄関先までごみの収集に伺う「ごみ収集福祉サービス[まごころ収集]」を実施)
    粗大ごみ収集 あり
    備考
    有料。事前申込制。
    生ごみ処理機助成金制度 なし
    上限金額
    -
    上限比率
    -
    暮らしデータ提供元:生活ガイド.com
    ※行政機関により公表していない地域及びデータがございます。東京23区以外の政令指定都市は、市全体のデータとして表示しています。
    ※提供データには細心の注意を払っておりますが、調査後に変更がある場合があります。 最新の情報につきましては各市区役所までお問い合わせいただくか、自治体HPなどをご確認ください。
    OCN×ドコモ光新規お申込みで合計最大137,280円相当おトク!特典の内訳・適用条件など詳細はこちら

    京都市伏見区内の各駅の住みやすさ

    他のエリアから探す

    京都市伏見区の詳細地域から賃貸物件を探す

    小豆屋町阿波橋町石田内里町石田大受町石田大山町石田桜木石田西ノ坪石田森西石田森東町石田森南町今町魚屋町恵美酒町大阪町大津町大宮町御駕籠町小栗栖石川町小栗栖岩ケ淵町小栗栖牛ケ淵町小栗栖小阪町小栗栖中山田町小栗栖南後藤町小栗栖森本町表町加賀屋町景勝町過書町鍛冶屋町片原町上油掛町上板橋町紙子屋町上神泉苑町雁金町観音寺町菊屋町北尼崎町北端町北浜町京橋町京町1丁目京町10丁目京町2丁目京町3丁目京町4丁目京町5丁目京町6丁目京町北7丁目京町北8丁目京町大黒町京町八丁目横町京町南8丁目銀座町1丁目銀座町2丁目銀座町3丁目銀座町4丁目久米町車町黒茶屋町久我東町久我石原町久我御旅町久我本町久我森の宮町紺屋町指物町讃岐町塩屋町島津町清水町下油掛町下神泉苑町下鳥羽長田町下鳥羽上三栖町下鳥羽北円面田町下鳥羽北三町下鳥羽北ノ口町下鳥羽城ノ越町下鳥羽芹川町下鳥羽中円面田町下鳥羽中三町下鳥羽西芹川町下鳥羽西柳長町下鳥羽東柳長町下鳥羽広長町下鳥羽前田町下鳥羽南円面田町下鳥羽南三町下鳥羽南柳長町下鳥羽渡瀬町下中町撞木町白銀町新中町新町1丁目新町11丁目新町12丁目新町13丁目新町4丁目新町5丁目新町6丁目新町7丁目新町8丁目聚楽町聚楽町1丁目城通町周防町墨染町瀬戸物町竹田内畑町竹田桶ノ井町竹田狩賀町竹田北三ツ杭町竹田久保町竹田浄菩提院町竹田田中殿町竹田田中宮町竹田醍醐田町竹田段川原町竹田中内畑町竹田中川原町竹田中島町竹田七瀬川町竹田西内畑町竹田西桶ノ井町竹田西小屋ノ内町竹田西段川原町竹田東小屋ノ内町竹田泓ノ川町竹田真幡木町竹田三ツ杭町竹田向代町竹田向代町川町竹田流池町竹田藁屋町樽屋町醍醐合場町醍醐赤間南裏町醍醐和泉町醍醐上ノ山町醍醐大構町醍醐折戸町醍醐構口町醍醐烏橋町醍醐川久保町醍醐岸ノ上町醍醐北西裏町醍醐京道町醍醐切レ戸町醍醐御霊ケ下町醍醐御陵西裏町醍醐御陵東裏町醍醐下端山町醍醐下山口町醍醐新開醍醐新町裏町醍醐外山街道町醍醐高畑町醍醐辰己町醍醐中山町醍醐西大路町醍醐東合場町醍醐槇ノ内町醍醐御園尾町醍醐南里町醍醐南西裏町津知橋町問屋町桃陵町鳥羽町道阿弥町土橋町中島秋ノ山町中島河原田町中島御所ノ内町中島外山町中島樋ノ上町中島前山町鍋島町納屋町成町南部町西尼崎町西大手町西堺町西朱雀町西大黒町西大文字町西桝屋町西町西柳町納所和泉屋納所岸ノ下納所北城堀納所下野納所町納所中河原納所星柳納所南城堀納所妙徳寺納所薬師堂羽束師鴨川町羽束師志水町羽束師菱川町羽束師古川町東組町東朱雀町東浜南町東菱屋町東奉行町東町東柳町肥後町菱屋町日野岡西町日野奥出日野谷寺町日野西川頬日野西大道町日野西風呂町日野野色町日野馬場出町日野不動講町平野町深草相深町深草池ノ内町深草石橋町深草飯食町深草一ノ坪町深草稲荷御前町深草稲荷鳥居前町深草稲荷中之町深草越後屋敷町深草大亀谷安信町深草大亀谷岩山町深草大亀谷大谷町深草大亀谷大山町深草大亀谷内膳町深草大亀谷西久宝寺町深草大亀谷西寺町深草大亀谷東安信町深草大亀谷東久宝寺町深草大亀谷東寺町深草大亀谷東古御香町深草大亀谷古御香町深草大亀谷万帖敷町深草大亀谷八島町深草大亀谷六躰町深草大島屋敷町深草ヲカヤ町深草開土口町深草開土町深草加賀屋敷町深草上横縄町深草枯木町深草川久保町深草瓦町深草勧進橋町深草願成町深草北鍵屋町深草北新町深草北蓮池町深草キトロ町深草鞍ケ谷深草ケナサ町深草小久保町深草紺屋町深草極楽寺町深草極楽町深草五反田町深草佐野屋敷町深草柴田屋敷町深草下川原町深草正覚町深草新門丈町深草十九軒町深草直違橋10丁目深草直違橋2丁目深草直違橋4丁目深草直違橋5丁目深草直違橋8丁目深草直違橋片町深草直違橋北1丁目深草直違橋南1丁目深草スゝハキ町深草鈴塚町深草墨染町深草石峰寺山町深草仙石屋敷町深草善導寺町深草僧坊町深草谷口町深草大門町深草町通町深草寺内町深草出羽屋敷町深草東軸町深草鳥居崎町深草中ノ郷山町深草中ノ島町深草七瀬川町深草西飯食町深草西浦町1丁目深草西浦町2丁目深草西浦町3丁目深草西浦町4丁目深草西浦町5丁目深草西浦町6丁目深草西浦町7丁目深草西浦町8丁目深草西伊達町深草西出町深草野田町深草野手町深草秡川町深草東瓦町深草東伊達町深草平田町深草フケノ内町深草泓ノ壺町深草藤森玄蕃町深草藤森町深草フチ町深草坊町深草南蓮池町深草向川原町深草向ケ原町深草森吉町深草藪之内町深草山村町深草芳永町深草芳本町深草綿森町風呂屋町舞台町豊後橋町伯耆町堀詰町桝形町松屋町三栖半町三栖向町御堂前町南尼崎町南新地向島上林町向島庚申町向島下之町向島吹田河原町向島善阿弥町向島立河原町向島津田町向島中島町向島中之町向島西堤町向島二ノ丸町向島橋詰町向島東定請向島藤ノ木町向島本丸町向島丸町村上町毛利町桃山井伊掃部西町桃山井伊掃部東町桃山紅雪町桃山筑前台町桃山町安芸山桃山町伊賀桃山町和泉桃山町因幡桃山町大島桃山町大津町桃山町金井戸島桃山町島津桃山町泰長老桃山町立売桃山町丹下桃山町丹後桃山町弾正島桃山町遠山桃山町中島町桃山町鍋島桃山町西尾桃山町西町桃山町根来桃山町東町桃山町日向桃山町本多上野桃山町正宗桃山町松平筑前桃山町三河桃山町養斉桃山筒井伊賀西町桃山筒井伊賀東町桃山長岡越中南町桃山羽柴長吉中町桃山羽柴長吉西町桃山羽柴長吉東町桃山福島太夫西町桃山福島太夫南町桃山水野左近西町桃山水野左近東町桃山南大島町桃山毛利長門西町桃山最上町桃山与五郎町大和町鑓屋町横大路柿ノ本町横大路貴船横大路畔ノ内横大路鍬ノ本横大路下三栖里ノ内横大路下三栖城ノ前町横大路下三栖辻堂町横大路下三栖南郷横大路下三栖山殿横大路朱雀横大路菅本横大路中ノ庄町横大路畑中町横大路三栖大黒町横大路六反畑葭島矢倉町淀池上町淀木津町淀際目町淀下津町淀新町淀生津町淀樋爪町淀本町淀水垂町淀美豆町両替町1丁目両替町10丁目両替町11丁目両替町12丁目両替町14丁目両替町15丁目両替町4丁目両替町9丁目

    近辺の市区から探す

    大津市京都市北区京都市上京区京都市左京区京都市中京区京都市東山区京都市下京区京都市南区京都市右京区京都市山科区京都市西京区宇治市城陽市向日市長岡京市八幡市乙訓郡大山崎町久世郡久御山町三島郡島本町

    周辺の駅から探す

    近鉄京都線
    十条上鳥羽口竹田伏見近鉄丹波橋桃山御陵前向島小倉伊勢田
    京阪電気鉄道京阪線
    伏見稲荷龍谷大前深草藤森墨染丹波橋伏見桃山中書島石清水八幡宮

    京都府京都市伏見区で他のジャンルから探す


    掲載情報の著作権は提供元企業等に帰属します。
    Copyright:(C) 2025 LIFULL Co.,Ltd.
    アプリで簡単 物件探し 大手不動産サイトの情報から一括検!プッシュ通知で物件を見逃さない
    App Storeからダウンロード Google Playで手に入れよう QRコード