アプリで簡単 物件探し 通知 共有 アプリならではの機能を使ってみる
賃貸マンション

エヌステージ秦野駅前 秦野駅 1K 賃貸(賃貸マンション・アパート)

情報提供元
アパマンショップ
エヌステージ秦野駅前
賃料 5.45万円  (管理費等:18000円)
礼金・敷金 なし / なし 保証金/敷引・償却 なし / 実費
交通
所在地 神奈川県秦野市今川町周辺地図
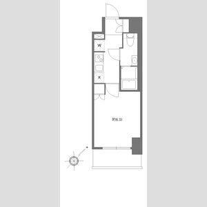
間取り 1K 専有面積 23.2m2
築年月 2025年3月 築年数 新築
おすすめポイント
【ご予約無しのご来店も歓迎♪お気軽にお問い合わせください♪】弊社では全物件初期費用クレジットカード決済が可能!また他社様の物件もご紹介可能です!お気軽にご連絡下さい♪
お問い合わせ先
アパマンショップ新横浜店 株式会社アップル神奈川
お問い合わせ先
アパマンショップ新横浜店 株式会社アップル神奈川

詳細情報

賃料 5.45万円 管理費等 18000円
敷金 なし 礼金 なし
保証金 なし 敷引・償却 実費
更新料 - 契約期間
カード決済 -
所在地 神奈川県秦野市今川町周辺地図
交通
建物名 エヌステージ秦野駅前 
間取り 1K 築年月(築年数) 2025年3月 新築
専有面積 23.2㎡ 所在階/階数 3階/12階建
建物構造 RC  方位 南東 
現況 空  駐車場 無    近くの駐車場を探す
入居可能時期 即時 住宅保険 あり住宅保険 2年 20000円
情報提供元 アパマンショップ[20250308039031] 情報公開日
情報更新日 - 次回更新予定日 随時

設備など

2階以上 最上階 - 角部屋 -
駐車場(近隣含) - エアコン付き バス・トイレ別
室内洗濯機置き場 - 追焚機能 - オートロック付き
モニタ付インターホン - フローリング バルコニー -
ガスコンロ可 - 浴室乾燥機 24時間セキュリティ -
宅配ボックス ペット相談可 - 二人入居可 -
設備 エレベーター・宅配BOX・オートロック・駐輪場・エアコン・冷房・BS端子・CS・システムキッチン・フローリング・バス・トイレ別・浴室乾燥機・温水洗浄便座・防犯カメラ 
リフォーム履歴 -
リノベーション履歴 -
備考 [退去時費用 退去費用実費精算※故意・過失等別途実費]解約予告2ヶ月前※短期解約違約金有(1年未満/1ヶ月)  保証会社利用必須 ①シノケン②ルームID ①初回:月額総賃料の50%~(最低保証料5万円、連保付3万円)、次年度以降1万円~※引落とし手数料660円②初回:月額総賃料の50%/月次保証料:月額総賃料の1.5% 秦野市立本町小学校・325m 秦野市立本町中学校・1204m コンビニ・242m スーパー・283m 病院・480m 【ご予約無しのご来店も歓迎♪お気軽にお問い合わせください♪】 弊社では全物件初期費用クレジットカード決済が可能!また他社様の物件もご紹介可能です!お気軽にご連絡下さい♪ /加盟団体名:(公社)神奈川県宅地建物取引業協会 公取協名:(公社) 首都圏不動産公正取引協議会加盟/プレミアデスク(2年 16500円/契約時ルームクリーニ 55000円 
特記事項

神奈川県秦野市今川町 周辺地図情報

地図
※地図上に表示される物件の位置は付近住所に所在することを表すものであり、実際の物件所在地とは異なる場合がございます。
   正確な物件所在地は、取扱い不動産会社にお問い合わせください。
お問い合わせ先
アパマンショップ新横浜店 株式会社アップル神奈川

不動産会社情報

お問い合わせ先 商号:アパマンショップ新横浜店 株式会社アップル神奈川
免許番号:神奈川県知事(10)13668
所在地:横浜市港北区新横浜3丁目6-1
TEL:045-470-1070
取引態様:仲介
管理コード:105005909
共有する
QRコード
お問い合わせ先
アパマンショップ新横浜店 株式会社アップル神奈川

    秦野市の暮らしデータ

    人口などの統計情報

    世帯数 70325世帯
    人口総数 159257人
    転入者数 6488人
    転入率(人口1000人当たり)
    40.74人
    転出者数 5556人
    転出率(人口1000人当たり)
    34.89人
    土地平均価格
    住宅地
    80606円/m2
    商業地
    162000円/m2

    結婚・育児の助成金

    子育て関連の独自の取り組み (1)子育て世代包括支援センターに母子保健コーディネーター(助産師)を2名配置し妊娠期の早い段階からの支援。(2)イクメン講座(乳児家族の教室)。
    出産祝い なし
    公立保育所数 0所(うち0歳児保育を実施している保育所:-)
    私立保育所数 23所(うち0歳児保育を実施している保育所:23所)
    保育所入所待機児童数 0人
    認定こども園数 9園 預かり保育実施園数 公立:7園 私立:2園
    学校給食 【小学校】完全給食【中学校】完全給食
    公立中学校の学校選択制 未実施
    子ども・学生等医療費助成<通院>対象年齢 18歳3月末まで 子ども・学生等医療費助成<入院>対象年齢 18歳3月末まで

    秦野市の治安・ごみ収集情報

    公共料金・インフラ

    ガス料金(22m3使用した場合の月額) 秦野瓦斯株式会社 5791円
    水道料金(口径20mmで20m3の月額) 秦野市2090円
    下水道料金(20m3を使用した場合の月額) 秦野市2618円
    下水道普及率 88.1%

    安心・安全

    建物火災出火件数 30件
    人口10000人当たり
    1.85件
    刑法犯認知件数 651件
    人口1000人当たり
    4.01件
    ハザード・防災マップ あり

    医療

    一般病院総数 4ヶ所
    一般診療所総数 101ヶ所
    小児科医師数 20人
    小児人口10000人当たり
    12.20人
    産婦人科医師数 4人
    15~49歳女性人口1万人当たり
    1.42人
    介護保険料基準額(月額) 5950円

    ごみ

    家庭ごみ収集(可燃ごみ) 無料
    備考
    -
    家庭ごみの分別方式 7分別21種〔可燃ごみ 容器包装プラスチック(ペットボトル、容器包装プラスチック) 資源物(新聞、雑誌類、段ボール、牛乳パック、シュレッダー紙、紙箱、衣類・布類、カン、ビン[透明、茶、その他の色]) 不燃ごみ 剪定枝 廃食用油 蛍光灯など(蛍光灯、乾電池、スプレー缶、体温計)〕
    家庭ごみの戸別収集 一部実施(一部地域のみ、可燃ごみの夜間戸別収集を実施)
    粗大ごみ収集 あり
    備考
    有料。戸別収集。事前申込制。1週間前までに環境資源対策課に連絡して収集。
    生ごみ処理機助成金制度 あり
    上限金額
    50000円
    上限比率
    75.0%
    暮らしデータ提供元:生活ガイド.com
    ※行政機関により公表していない地域及びデータがございます。東京23区以外の政令指定都市は、市全体のデータとして表示しています。
    ※提供データには細心の注意を払っておりますが、調査後に変更がある場合があります。 最新の情報につきましては各市区役所までお問い合わせいただくか、自治体HPなどをご確認ください。
    OCN×ドコモ光新規お申込みで合計最大137,280円相当おトク!特典の内訳・適用条件など詳細はこちら

    秦野市内の各駅の住みやすさ

    他のエリアから探す

    秦野市の詳細地域から賃貸物件を探す

    今泉今泉台今川町入船町尾尻落合春日町上今川町上大槻河原町北矢名寿町幸町栄町桜町三屋渋沢渋沢上清水町下大槻下落合新町水神町末広町鈴張町曽屋大秦町立野台千村鶴巻鶴巻北鶴巻南寺山戸川栃窪名古木並木町西大竹西田原沼代新町萩が丘羽根東田原ひばりケ丘平沢富士見町文京町堀川堀西堀山下本町菩提曲松松原町緑町南が丘南矢名室町元町柳町弥生町若松町

    近辺の市区から探す

    平塚市伊勢原市南足柄市中郡大磯町中郡二宮町足柄上郡中井町足柄上郡大井町足柄上郡松田町足柄上郡山北町足柄上郡開成町

    周辺の駅から探す

    小田急電鉄小田原線
    愛甲石田伊勢原鶴巻温泉東海大学前秦野渋沢新松田開成栢山

    神奈川県秦野市で他のジャンルから探す


    掲載情報の著作権は提供元企業等に帰属します。
    Copyright:(C) 2025 APAMAN Co., Ltd.
    アプリで簡単 物件探し 大手不動産サイトの情報から一括検!プッシュ通知で物件を見逃さない
    App Storeからダウンロード Google Playで手に入れよう QRコード