アプリで簡単 物件探し 通知 共有 アプリならではの機能を使ってみる
賃貸マンション

プレサンス兵庫ヴィアーレ 兵庫駅 1K 賃貸(賃貸マンション・アパート)

情報提供元
SUUMO
プレサンス兵庫ヴィアーレ
賃料 6.34万円  (管理費等:6660円)
礼金・敷金 8万円 / なし 保証金/敷引・償却 なし / -
交通
所在地 兵庫県神戸市兵庫区駅南通3周辺地図
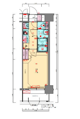
間取り 1K 専有面積 23.78m2
築年月 2021年8月 築年数 築4年5ヶ月
おすすめポイント
お部屋探しからご契約まで、オンラインでご対応可能です(^^♪ 室内設備は浴室乾燥機・洗面所独立など充実した設備を備え付けています!セキュリティ面は、TVインターホン・オートロックなど充実しているので安心して生活できます!エレベーター付き物件です(#^^#)

詳細情報

賃料 6.34万円 管理費等 6660円
敷金 なし 礼金 8万円
保証金 なし 敷引・償却 -
更新料 - 契約期間
カード決済 -
所在地 兵庫県神戸市兵庫区駅南通3周辺地図
交通
建物名 プレサンス兵庫ヴィアーレ 
間取り 1K(洋7.2 K2.0) 築年月(築年数) 2021年8月(築4年5ヶ月)
専有面積 23.78㎡ 所在階/階数 7階/10階建
建物構造 RC  方位 南東 
現況   駐車場 有 12,000円
入居可能時期 即時 住宅保険 なし
情報提供元 SUUMO[060H100467931643] 情報公開日
情報更新日 次回更新予定日 随時

設備など

2階以上 最上階 - 角部屋 -
駐車場(近隣含) エアコン付き バス・トイレ別
室内洗濯機置き場 追焚機能 - オートロック付き
モニタ付インターホン フローリング バルコニー
ガスコンロ可 浴室乾燥機 24時間セキュリティ -
宅配ボックス ペット相談可 - 二人入居可 -
設備 冷房・暖房・エアコン・オートロック・バルコニー・バス・トイレ別・トイレ・収納スペース・洗濯機置場・洗面所・エレベーター・CATV・BS端子・フローリング・浴室乾燥機・ガスコンロ可・シャンプードレッサ・温水洗浄便座・システムキッチン・モニタ付インターホン・宅配BOX・駐輪場・クローゼット・CS・衣類乾燥機・都市ガス・ディンプルキー・浴トイレ別・防犯カメラ・洗面所独立・バイク置き場・コンロ2口以上・シューズボックス・インターネット無料・インターネット対応・室内洗濯機置き場 
リフォーム履歴 -
リノベーション履歴 -
備考 プレサポ安心24 月額990円/普通借家01年0ヶ月/バストイレ別/バルコニー/エアコン/ガスコンロ対応/クロゼット/フローリング/シャワー付洗面台/TVインターホン/浴室乾燥機/オートロック/室内洗濯置/シューズボックス/システムキッチン/温水洗浄便座/脱衣所/エレベーター/洗面所独立/洗面化粧台/2口コンロ/駐輪場/宅配ボックス/CATV/外壁タイル張り/即入居可/閑静な住宅地/BS・CS/敷金不要/防犯カメラ/独立型キッチン/分譲賃貸/保証人不要/バイク置場/全居室フローリング/デザイナーズ/2沿線利用可/ディンプルキー/CS/駅まで平坦/ネット使用料不要/ダブルロックキー/24時間換気システム/平坦地/人感照明センサー/耐火構造/耐震構造/2駅利用可/3駅以上利用可/3沿線以上利用可/駅徒歩10分以内/敷地内ごみ置き場/東南向き/都市ガス/洗面所にドア/オートライト/BS/高速ネット対応/巡回管理/セブンイレブン JR兵庫駅前店(コンビニ)まで319m/セブンイレブン 神戸小河通5丁目店(コンビニ)まで429m/ファミリーマート 兵庫駅北店(コンビニ)まで757m/ちびくろ保育園(幼稚園・保育園)まで205m/ガスト 兵庫駅南店(から好し取扱店)(飲食店)まで208m/神戸市役所 健康ライフプラザ(役所)まで369m/賃貸戸数:153戸 
特記事項 分譲タイプ・外観タイル張り・管理人巡回・閑静な住宅街・デザイナーズ物件・保証人不要/代行

省エネ性能

エネルギー消費性能 -
断熱性能 -
目安光熱費 -

兵庫県神戸市兵庫区駅南通3 周辺地図情報

地図
※地図上に表示される物件の位置は付近住所に所在することを表すものであり、実際の物件所在地とは異なる場合がございます。
   正確な物件所在地は、取扱い不動産会社にお問い合わせください。

不動産会社情報

お問い合わせ先 商号:(株)SuMirai
免許番号:兵庫県知事(1)第12483号
所在地:兵庫県神戸市中央区琴ノ緒町5-29-501
TEL:078-600-9828
取引態様:仲介
管理コード:678666
所属協会など:(公社)近畿地区不動産公正取引協議会加盟、(公社)全日本不動産協会兵庫県本部会員
共有する
QRコード

    神戸市兵庫区の暮らしデータ

    人口などの統計情報

    世帯数 734091世帯
    人口総数 1500425人
    転入者数 75773人
    転入率(人口1000人当たり)
    50.50人
    転出者数 75052人
    転出率(人口1000人当たり)
    50.02人
    土地平均価格
    住宅地
    196681円/m2
    商業地
    844842円/m2

    結婚・育児の助成金

    子育て関連の独自の取り組み (1)妊産婦タクシー利用券。(2)産後ケア事業(32ヶ所)。(3)多胎児家庭支援の充実(多胎児家庭ホームヘルプサービス等)。(4)多様な保育施設で待機児童3年連続ゼロ(保育送迎ステーション等)。(5)病児保育(22ヶ所)。(6)夜間、休日に年中無休で診療する「神戸こども初期急病センター」。(7)天候関係なく無料で遊べる場所の充実(こべっこランド、こども本の森神戸、児童館120ヶ所等)。(8)学童保育希望者全員受入れ。(9)インフルエンザ予防接種費の一部助成(12歳まで)。(10)市民が市内高校に通う通学定期代無料化。(11)子連れ利用可能な無料コワーキングスペース(無料の一時保育付)。(12)大人同伴の小学生以下の市バス・地下鉄の料金が無料。(13)住み替え補助(「住みかえーる」で検索)。
    出産祝い あり
    公立保育所数 56所(うち0歳児保育を実施している保育所:45所)
    私立保育所数 70所(うち0歳児保育を実施している保育所:67所)
    保育所入所待機児童数 0人
    認定こども園数 191園 預かり保育実施園数 公立:28園 私立:37園
    学校給食 【小学校】完全給食【中学校】完全給食 デリバリー形式[運搬:ランチボックス、内容:完全給食]、但し家庭弁当等の持参も可(2024年9月から順次全員喫食制へ移行)
    公立中学校の学校選択制 一部実施(特定地域選択制)
    子ども・学生等医療費助成<通院>対象年齢 18歳3月末まで 子ども・学生等医療費助成<入院>対象年齢 18歳3月末まで

    神戸市兵庫区の治安・ごみ収集情報

    公共料金・インフラ

    ガス料金(22m3使用した場合の月額) 大阪瓦斯株式会社4544円
    伊丹産業株式会社7185円
    水道料金(口径20mmで20m3の月額) 神戸市2926円
    下水道料金(20m3を使用した場合の月額) 神戸市1760円
    下水道普及率 98.7%

    安心・安全

    建物火災出火件数 236件
    人口10000人当たり
    1.55件
    刑法犯認知件数 12014件
    人口1000人当たり
    7.88件
    ハザード・防災マップ あり

    医療

    一般病院総数 98ヶ所
    一般診療所総数 1643ヶ所
    小児科医師数 408人
    小児人口10000人当たり
    24.03人
    産婦人科医師数 190人
    15~49歳女性人口1万人当たり
    6.47人
    介護保険料基準額(月額) 6580円

    ごみ

    家庭ごみ収集(可燃ごみ) 無料
    備考
    指定ごみ袋は有料だが、袋代にごみ収集・処理料金等を含まず。
    家庭ごみの分別方式 5分別〔缶・びん・ペットボトル 容器包装プラスチック 燃えないごみ カセットボンベ・スプレー缶 燃えるごみ〕 拠点回収:使用済小型家電 カセットボンベ・スプレー缶 水銀体温計・温度計・血圧計 蛍光管 乾電池・充電式電池・ボタン電池
    家庭ごみの戸別収集 一部実施(【ひまわり収集】クリーンステーションまで、ごみを持ち出すことが困難な高齢者または障害者など一部の対象者に実施)
    粗大ごみ収集 あり
    備考
    有料。戸別収集。事前申込制。申込みの後、大型ごみシール券を購入し貼付けて出すか、キャッシュレス決済を行う。申込みから1~2週間程度で収集。
    生ごみ処理機助成金制度 なし
    上限金額
    -
    上限比率
    -
    暮らしデータ提供元:生活ガイド.com
    ※行政機関により公表していない地域及びデータがございます。東京23区以外の政令指定都市は、市全体のデータとして表示しています。
    ※提供データには細心の注意を払っておりますが、調査後に変更がある場合があります。 最新の情報につきましては各市区役所までお問い合わせいただくか、自治体HPなどをご確認ください。
    OCN×ドコモ光新規お申込みで合計最大137,280円相当おトク!特典の内訳・適用条件など詳細はこちら

    神戸市兵庫区内の各駅の住みやすさ

    他のエリアから探す

    神戸市兵庫区の詳細地域から賃貸物件を探す

    芦原通荒田町石井町今出在家町入江通梅元町永沢町駅前通駅南通会下山町大井通小河通笠松通鍛冶屋町上祇園町上沢通上三条町上庄通神田町菊水町北逆瀬川町北山町切戸町金平町楠谷町熊野町小松通小山町五宮町里山町佐比江町山王町材木町七宮町島上町下祇園町下沢通下三条町新開地神明町須佐野通滝山町大開通大同町千鳥町塚本通都由乃町出在家町遠矢町中道通西上橘通西橘通西多聞通西出町西仲町西宮内町西柳原町羽坂通浜崎通浜中町浜山通馬場町東出町東柳原町東山町氷室町兵庫町鵯越筋鵯越町平野町福原町船大工町本町松原通松本通三川口町御崎町御崎本町水木通湊川町湊町湊山町南逆瀬川町南仲町門口町矢部町雪御所町夢野町吉田町和田崎町和田宮通

    近辺の市区から探す

    神戸市東灘区神戸市灘区神戸市長田区神戸市須磨区神戸市垂水区神戸市北区神戸市中央区

    周辺の駅から探す

    山陽本線
    神戸兵庫和田岬新長田鷹取須磨海浜公園
    神戸高速鉄道東西線
    元町西元町高速神戸新開地大開高速長田西代
    神戸市西神山手線
    三宮県庁前大倉山湊川公園上沢長田新長田板宿妙法寺

    兵庫県神戸市兵庫区で他のジャンルから探す


    掲載情報の著作権は提供元企業等に帰属します。
    Copyright:(C) 2025 Recruit Co., Ltd.
    アプリで簡単 物件探し 大手不動産サイトの情報から一括検!プッシュ通知で物件を見逃さない
    App Storeからダウンロード Google Playで手に入れよう QRコード