アプリで簡単 物件探し 通知 共有 アプリならではの機能を使ってみる
賃貸マンション

大阪府吹田市内本町3 吹田駅 1LDK 賃貸(賃貸マンション・アパート)

情報提供元
SUUMO
賃料 7.35万円  (管理費等:4000円)
礼金・敷金 1ヶ月 / なし 保証金/敷引・償却 なし / -
交通
所在地 大阪府吹田市内本町3周辺地図
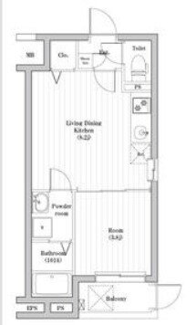
間取り 1LDK 専有面積 27.99m2
築年月 2025年4月 築年数 新築
おすすめポイント
インターネット無料♪充実の設備♪ 当物件では、初期費用のカード一括決済や分割支払が可能です♪(ポイントやマイルが貯まる)お急ぎの方はお電話でのお問い合わせがスムーズです☆06-6136-6927☆
お問い合わせ先
(株)ビジョンエステート新大阪店
お問い合わせ先
(株)ビジョンエステート新大阪店

詳細情報

賃料 7.35万円 管理費等 4000円
敷金 なし 礼金 1ヶ月
保証金 なし 敷引・償却 -
更新料 - 契約期間
カード決済 初期費用カード決済可
所在地 大阪府吹田市内本町3周辺地図
交通
建物名  
間取り 1LDK 築年月(築年数) 2025年4月 新築
専有面積 27.99㎡ 所在階/階数 1階/4階建
建物構造 鉄骨  方位  
現況   駐車場 無    近くの駐車場を探す
入居可能時期 即時 住宅保険 あり
情報提供元 SUUMO[060H100474759078] 情報公開日
情報更新日 次回更新予定日 随時

設備など

2階以上 - 最上階 - 角部屋 -
駐車場(近隣含) - エアコン付き バス・トイレ別
室内洗濯機置き場 追焚機能 - オートロック付き
モニタ付インターホン - フローリング バルコニー
ガスコンロ可 - 浴室乾燥機 24時間セキュリティ -
宅配ボックス ペット相談可 - 二人入居可 -
設備 冷房・暖房・エアコン・オートロック・バルコニー・バス・トイレ別・トイレ・収納スペース・洗濯機置場・洗面所・フローリング・浴室乾燥機・シャンプードレッサ・温水洗浄便座・システムキッチン・宅配BOX・駐輪場・クローゼット・衣類乾燥機・都市ガス・IHクッキングヒータ・ディンプルキー・浴トイレ別・防犯カメラ・洗面所独立・バイク置き場・コンロ2口以上・シューズボックス・インターネット無料・インターネット対応・室内洗濯機置き場 
リフォーム履歴 -
リノベーション履歴 -
備考 損保要/バストイレ別/バルコニー/エアコン/クロゼット/フローリング/シャワー付洗面台/浴室乾燥機/オートロック/室内洗濯置/陽当り良好/シューズボックス/システムキッチン/温水洗浄便座/脱衣所/洗面所独立/洗面化粧台/2口コンロ/駐輪場/宅配ボックス/外壁タイル張り/即入居可/閑静な住宅地/敷金不要/防犯カメラ/IHクッキングヒーター/二人入居相談/バイク置場/全居室フローリング/デザイナーズ/2沿線利用可/ディンプルキー/ネット使用料不要/緑豊かな住宅地/保証金不要/2駅利用可/3駅以上利用可/駅徒歩10分以内/敷地内ごみ置き場/平面駐車場/都市ガス/洗面所にドア/IT重説 対応物件/初期費用カード決済可/通風良好/巡回管理/業務スーパー内本町店(スーパー)まで209m/ファミリーマート吹田内本町店(コンビニ)まで424m/アルカ中島薬局(ドラッグストア)まで631m/デニーズ吹田寿町店(飲食店)まで89m/吹田内本町郵便局(郵便局)まで252m/中の島公園(公園)まで538m 
特記事項 外観タイル張り・管理人巡回・日当り良好・閑静な住宅街・デザイナーズ物件・初期費用カード決済可

省エネ性能

エネルギー消費性能 -
断熱性能 -
目安光熱費 -

大阪府吹田市内本町3 周辺地図情報

地図
※地図上に表示される物件の位置は付近住所に所在することを表すものであり、実際の物件所在地とは異なる場合がございます。
   正確な物件所在地は、取扱い不動産会社にお問い合わせください。
お問い合わせ先
(株)ビジョンエステート新大阪店

不動産会社情報

お問い合わせ先 商号:(株)ビジョンエステート新大阪店
免許番号:大阪府知事(1)第62156号
所在地:大阪府大阪市淀川区西中島1-13-9
TEL:06-6136-6927
取引態様:仲介
管理コード:
所属協会など:(公社)近畿地区不動産公正取引協議会加盟、(公社)全日本不動産協会大阪府本部会員
共有する
QRコード
お問い合わせ先
(株)ビジョンエステート新大阪店

吹田市の暮らしデータ

人口などの統計情報

世帯数 179962世帯
人口総数 382681人
転入者数 22853人
転入率(人口1000人当たり)
59.72人
転出者数 20873人
転出率(人口1000人当たり)
54.54人
土地平均価格
住宅地
229857円/m2
商業地
959000円/m2

結婚・育児の助成金

子育て関連の独自の取り組み 子どもの習い事費用助成事業(対象は、市内在住の生活保護又は児童扶養手当を受給している者のうち、小学校5年生から中学校3年生までの児童・生徒の保護者。対象となる児童・生徒のスポーツ・芸術、学習等の習い事に要する費用に利用できるクーポンを、一人につき毎月10,000円分交付)。
出産祝い なし
公立保育所数 12所(うち0歳児保育を実施している保育所:12所)
私立保育所数 36所(うち0歳児保育を実施している保育所:36所)
保育所入所待機児童数 4人
認定こども園数 24園 預かり保育実施園数 公立:5園 私立:16園
学校給食 【小学校】完全給食【中学校】家庭弁当等との選択制/デリバリー形式[運搬:ランチボックス、内容:完全給食]
公立中学校の学校選択制 未実施
子ども・学生等医療費助成<通院>対象年齢 18歳3月末まで 子ども・学生等医療費助成<入院>対象年齢 18歳3月末まで

吹田市の治安・ごみ収集情報

公共料金・インフラ

ガス料金(22m3使用した場合の月額) 大阪瓦斯株式会社4544円
水道料金(口径20mmで20m3の月額) 吹田市2805円
下水道料金(20m3を使用した場合の月額) 吹田市1609円
下水道普及率 99.9%

安心・安全

建物火災出火件数 25件
人口10000人当たり
0.65件
刑法犯認知件数 1774件
人口1000人当たり
4.60件
ハザード・防災マップ あり

医療

一般病院総数 14ヶ所
一般診療所総数 373ヶ所
小児科医師数 154人
小児人口10000人当たり
29.65人
産婦人科医師数 98人
15~49歳女性人口1万人当たり
11.97人
介護保険料基準額(月額) 6280円

ごみ

家庭ごみ収集(可燃ごみ) 無料
備考
引越しごみのみ有料。
家庭ごみの分別方式 4分別10種〔燃焼ごみ 資源ごみ(かん、びん、新聞、雑誌類、段ボール、古布類、牛乳パック) 小型複雑ごみ 有害危険ごみ〕 拠点回収:ペットボトル 廃食用油
家庭ごみの戸別収集 実施
粗大ごみ収集 あり
備考
月に一度、地区ごとに定められた曜日に収集。
生ごみ処理機助成金制度 なし
上限金額
-
上限比率
-
暮らしデータ提供元:生活ガイド.com
※行政機関により公表していない地域及びデータがございます。東京23区以外の政令指定都市は、市全体のデータとして表示しています。
※提供データには細心の注意を払っておりますが、調査後に変更がある場合があります。 最新の情報につきましては各市区役所までお問い合わせいただくか、自治体HPなどをご確認ください。
OCN×ドコモ光新規お申込みで合計最大137,280円相当おトク!特典の内訳・適用条件など詳細はこちら

吹田市内の各駅の住みやすさ

他のエリアから探す

吹田市の詳細地域から賃貸物件を探す

青葉丘北青葉丘南青山台朝日が丘町朝日町泉町内本町江坂町江の木町樫切山春日片山町金田町上山田上山手町川岸町川園町岸部北岸部新町岸部中岸部南寿町佐井寺佐井寺南が丘幸町佐竹台五月が丘北五月が丘西五月が丘東五月が丘南清水尺谷昭和町新芦屋上新芦屋下吹東町末広町清和園町千里丘上千里丘北千里丘下千里丘中千里丘西千里万博公園千里山高塚千里山竹園千里山月が丘千里山西千里山虹が丘千里山東千里山星が丘千里山松が丘高城町高野台高浜町竹谷町竹見台垂水町津雲台天道町出口町豊津町中の島町長野西長野東西の庄町原町東御旅町日の出町広芝町藤が丘町藤白台古江台穂波町円山町南金田南正雀南吹田南清和園町南高浜町元町桃山台山田市場山田丘山田北山田西山田東山田南山手町芳野町

近辺の市区から探す

大阪市都島区大阪市福島区大阪市此花区大阪市西区大阪市港区大阪市大正区大阪市天王寺区大阪市浪速区大阪市西淀川区大阪市東淀川区大阪市東成区大阪市生野区大阪市旭区大阪市城東区大阪市淀川区大阪市鶴見区大阪市北区大阪市中央区豊中市池田市守口市茨木市寝屋川市大東市箕面市門真市摂津市東大阪市四條畷市伊丹市

周辺の駅から探す

東海道本線
JR総持寺茨木千里丘岸辺吹田東淀川新大阪大阪塚本
阪急電鉄千里線
天神橋筋六丁目柴島淡路下新庄吹田豊津関大前千里山南千里
阪急電鉄京都線
茨木市南茨木摂津市正雀相川上新庄淡路崇禅寺南方

掲載情報の著作権は提供元企業等に帰属します。
Copyright:(C) 2025 Recruit Co., Ltd.
アプリで簡単 物件探し 大手不動産サイトの情報から一括検!プッシュ通知で物件を見逃さない
App Storeからダウンロード Google Playで手に入れよう QRコード