アプリで簡単 物件探し 通知 共有 アプリならではの機能を使ってみる
賃貸マンション

大阪府大阪市東淀川区東中島4 新大阪駅 1DK 賃貸(賃貸マンション・アパート)

情報提供元
SUUMO
賃料 8.9万円  (管理費等:5240円)
礼金・敷金 1ヶ月 / なし 保証金/敷引・償却 なし / -
交通
所在地 大阪府大阪市東淀川区東中島4周辺地図
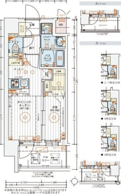
間取り 1DK 専有面積 26.66m2
築年月 2026年1月 築年数 新築
おすすめポイント
ワンちゃんと一緒に住めちゃうワンワン物件です! ◆◇ホームメイト◆◇ご内見の際は、現地集合やお問い合わせ物件の最寄り駅集合が可能です♪ご返信メールが届かない場合がございますので、お電話番号のご入力にご協力くださいませ<m(__)m>
お問い合わせ先
ホームメイトFC千里丘駅前店(株)サイラス
お問い合わせ先
ホームメイトFC千里丘駅前店(株)サイラス

詳細情報

賃料 8.9万円 管理費等 5240円
敷金 なし 礼金 1ヶ月
保証金 なし 敷引・償却 -
更新料 - 契約期間
カード決済 -
所在地 大阪府大阪市東淀川区東中島4周辺地図
交通
建物名  
間取り 1DK(洋2.8 DK7.3) 築年月(築年数) 2026年1月 新築
専有面積 26.66㎡ 所在階/階数 6階/9階建
建物構造 RC  方位 西 
現況   駐車場 有 18,000円
入居可能時期 2026年2月下旬 住宅保険 あり 2年 20000円
情報提供元 SUUMO[060H100473350459] 情報公開日
情報更新日 次回更新予定日 随時

設備など

2階以上 最上階 - 角部屋
駐車場(近隣含) エアコン付き バス・トイレ別
室内洗濯機置き場 追焚機能 オートロック付き
モニタ付インターホン フローリング バルコニー
ガスコンロ可 浴室乾燥機 24時間セキュリティ -
宅配ボックス ペット相談可 二人入居可
設備 冷房・暖房・エアコン・オートロック・バルコニー・バス・トイレ別・トイレ・収納スペース・洗濯機置場・洗面所・エレベーター・BS端子・追焚機能・フローリング・浴室乾燥機・ウォークインクローゼット・照明器具・ガスコンロ可・シャンプードレッサ・温水洗浄便座・システムキッチン・モニタ付インターホン・宅配BOX・駐輪場・風呂・クローゼット・CS・衣類乾燥機・都市ガス・浴トイレ別・防犯カメラ・洗面所独立・バイク置き場・コンロ2口以上・シューズボックス・インターネット無料・インターネット対応・室内洗濯機置き場 
リフォーム履歴 -
リノベーション履歴 -
備考 エステム安心クラブ入会金 契約時5500円/カギ交換費用33000円/室内清掃費用40040円/消毒代(ペット飼育時のみ) 退去時22000円/エアコンクリーニング代(1台につき) 退去時13200円/エステム安心クラブ990円/ペット登録料(飼育時のみ)500円/保証会社利用必:初回保証料:総賃料の50% 月額保証料:総賃料の1.5%/普通借家1年/単身者可/二人入居可/ペット相談/当店ではベテランスタッフが、お客様に安心して新生活を送って頂けますよう精一杯のサポートを致しますm(._.)mご内見の際は、現地集合やお問い合わせ物件の最寄り駅集合も可能です♪JR千里丘駅前の立地で、お立ち寄りの際も便利です(^^♪初期費用のクレジット決済も可能ですので、ご利用の際はスタッフまでお申し付け下さいませ(^o^)//バストイレ別/バルコニー/エアコン/ガスコンロ対応/フローリング/シャワー付洗面台/TVインターホン/浴室乾燥機/オートロック/室内洗濯置/シューズボックス/システムキッチン/追焚機能浴室/角住戸/温水洗浄便座/脱衣所/エレベーター/洗面所独立/洗面化粧台/2口コンロ/駐輪場/宅配ボックス/BS・CS/敷金不要/防犯カメラ/照明付/分譲賃貸/ウォークインクロゼット/単身者相談/二人入居相談/バイク置場/2沿線利用可/ネット使用料不要/保証金不要/24時間換気システム/2駅利用可/駅徒歩10分以内/敷地内ごみ置き場/都市ガス/洗面所にドア/礼金1ヶ月/IT重説 対応物件/ニューヤマザキデイリーストアくまで910m/セブンイレブン大阪西中島5丁目まで1047m/エキマルシェ新大阪(ショッピングセンター)まで727m/ライフ崇禅寺店(スーパー)まで623m/バロー淡路店(スーパー)まで1179m/スーパーかまだ西淡路店(スーパー)まで977m/グルメシティ南方店(スーパー)まで1303m/ローソン阪急崇禅寺駅前店(コンビニ)まで516m/賃貸戸数:80戸 
特記事項 ペット相談可・二人入居可・分譲タイプ・角部屋

省エネ性能

エネルギー消費性能 -
断熱性能 -
目安光熱費 -

大阪府大阪市東淀川区東中島4 周辺地図情報

地図
※地図上に表示される物件の位置は付近住所に所在することを表すものであり、実際の物件所在地とは異なる場合がございます。
   正確な物件所在地は、取扱い不動産会社にお問い合わせください。
お問い合わせ先
ホームメイトFC千里丘駅前店(株)サイラス

不動産会社情報

お問い合わせ先 商号:ホームメイトFC千里丘駅前店(株)サイラス
免許番号:国土交通大臣(1)第10411号
所在地:大阪府摂津市千里丘東2-10-1 フォルテ摂津1階
TEL:072-648-7009
取引態様:仲介
管理コード:68826383
所属協会など:(公社)近畿地区不動産公正取引協議会加盟、(一社)大阪府宅地建物取引業協会会員
共有する
QRコード
お問い合わせ先
ホームメイトFC千里丘駅前店(株)サイラス

    大阪市東淀川区の暮らしデータ

    人口などの統計情報

    世帯数 1464615世帯
    人口総数 2757642人
    転入者数 225000人
    転入率(人口1000人当たり)
    81.59人
    転出者数 188180人
    転出率(人口1000人当たり)
    68.24人
    土地平均価格
    住宅地
    270839円/m2
    商業地
    1966607円/m2

    結婚・育児の助成金

    子育て関連の独自の取り組み (1)子ども・子育てプラザ(在宅での子育て家庭や地域での子育て活動を支援し、また乳幼児期の親子や子育て支援者、就学期の子どもが集い交流する機会を提供する等、地域福祉活動の推進を図る)。(2)習い事・塾代助成事業(学習塾や家庭教師、文化・スポーツ教室等学校外教育にかかる費用を、1人当たり月額1万円まで助成。所得制限あり)。
    出産祝い なし
    公立保育所数 53所(うち0歳児保育を実施している保育所:52所)
    私立保育所数 395所(うち0歳児保育を実施している保育所:385所)
    保育所入所待機児童数 2人
    認定こども園数 117園 預かり保育実施園数 公立:52園 私立:-
    学校給食 【小学校】完全給食【中学校】完全給食
    公立中学校の学校選択制 実施
    子ども・学生等医療費助成<通院>対象年齢 18歳3月末まで 子ども・学生等医療費助成<入院>対象年齢 18歳3月末まで

    大阪市東淀川区の治安・ごみ収集情報

    公共料金・インフラ

    ガス料金(22m3使用した場合の月額) 大阪瓦斯株式会社4544円
    水道料金(口径20mmで20m3の月額) 大阪市2112円
    下水道料金(20m3を使用した場合の月額) 大阪市1276円
    下水道普及率 100.0%

    安心・安全

    建物火災出火件数 553件
    人口10000人当たり
    2.01件
    刑法犯認知件数 39408件
    人口1000人当たり
    14.32件
    ハザード・防災マップ あり

    医療

    一般病院総数 170ヶ所
    一般診療所総数 3734ヶ所
    小児科医師数 659人
    小児人口10000人当たり
    22.80人
    産婦人科医師数 380人
    15~49歳女性人口1万人当たり
    6.15人
    介護保険料基準額(月額) 9249円

    ごみ

    家庭ごみ収集(可燃ごみ) 無料
    備考
    -
    家庭ごみの分別方式 4分別11種〔普通ごみ(普通ごみ、危険ごみ[竹串、ガラス片、カミソリの刃]) 資源ごみ(空き缶・空きびん・金属製の生活用品・ペットボトル、スプレー缶・カセットボンベ) 容器包装プラスチック 古紙・衣類(新聞紙・折込チラシ、段ボール、紙パック、雑誌、衣類、その他の紙類)〕
    家庭ごみの戸別収集 一部実施(【ふれあい収集】65歳以上の一人暮らしの高齢者または高齢者だけの世帯、障がいがある方が居住される家庭で、ごみ出しが困難な人が対象)
    粗大ごみ収集 あり
    備考
    有料。戸別収集。事前申込制。申込時に収集日を決定。
    生ごみ処理機助成金制度 なし
    上限金額
    -
    上限比率
    -
    暮らしデータ提供元:生活ガイド.com
    ※行政機関により公表していない地域及びデータがございます。東京23区以外の政令指定都市は、市全体のデータとして表示しています。
    ※提供データには細心の注意を払っておりますが、調査後に変更がある場合があります。 最新の情報につきましては各市区役所までお問い合わせいただくか、自治体HPなどをご確認ください。
    OCN×ドコモ光新規お申込みで合計最大137,280円相当おトク!特典の内訳・適用条件など詳細はこちら

    大阪市東淀川区内の各駅の住みやすさ

    他のエリアから探す

    大阪市東淀川区の詳細地域から賃貸物件を探す

    相川淡路井高野大隅上新庄北江口柴島小松下新庄菅原瑞光大桐大道南豊里西淡路東淡路東中島豊新南江口

    近辺の市区から探す

    大阪市都島区大阪市福島区大阪市此花区大阪市西区大阪市港区大阪市大正区大阪市天王寺区大阪市浪速区大阪市西淀川区大阪市東成区大阪市生野区大阪市旭区大阪市城東区大阪市阿倍野区大阪市西成区大阪市淀川区大阪市鶴見区大阪市北区大阪市中央区豊中市池田市吹田市守口市茨木市寝屋川市大東市箕面市摂津市東大阪市四條畷市

    周辺の駅から探す

    東海道本線
    千里丘岸辺吹田東淀川新大阪大阪塚本尼崎立花
    東海道・山陽新幹線
    米原京都新大阪新神戸西明石姫路相生

    大阪府大阪市東淀川区で他のジャンルから探す


    掲載情報の著作権は提供元企業等に帰属します。
    Copyright:(C) 2025 Recruit Co., Ltd.
    アプリで簡単 物件探し 大手不動産サイトの情報から一括検!プッシュ通知で物件を見逃さない
    App Storeからダウンロード Google Playで手に入れよう QRコード