アプリで簡単 物件探し 通知 共有 アプリならではの機能を使ってみる
賃貸マンション

レジデンス向陽 西向日駅 3DK 賃貸(賃貸マンション・アパート)

情報提供元
SUUMO
レジデンス向陽
賃料 6.5万円  (管理費等:3000円)
礼金・敷金 1ヶ月 / なし 保証金/敷引・償却 なし / -
交通
所在地 京都府向日市上植野町馬立周辺地図
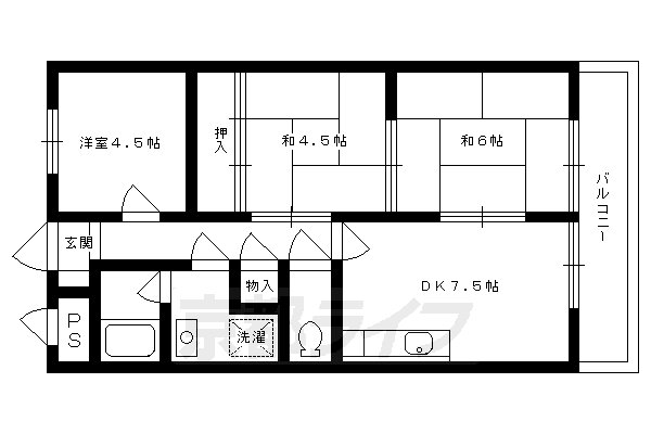
間取り 3DK 専有面積 53m2
築年月 1988年4月 築年数 築37年8ヶ月
おすすめポイント
ペット相談可! ペット可、駐車場あり、独立洗面台、室内洗濯機置場 物件情報からエリア情報まで京都の賃貸物件紹介はお任せください!

詳細情報

賃料 6.5万円 管理費等 3000円
敷金 なし 礼金 1ヶ月
保証金 なし 敷引・償却 -
更新料 - 契約期間
カード決済 -
所在地 京都府向日市上植野町馬立周辺地図
交通
建物名 レジデンス向陽 
間取り 3DK(和6 和4.5 和4.5 DK7.5) 築年月(築年数) 1988年4月(築37年8ヶ月)
専有面積 53㎡ 所在階/階数 3階/地上3階地下1階建
建物構造 RC  方位 北 
現況   駐車場 有 11,000円
入居可能時期 即時 住宅保険 あり 2年 20000円
情報提供元 SUUMO[060H100470154409] 情報公開日
情報更新日 次回更新予定日 随時

設備など

2階以上 最上階 角部屋 -
駐車場(近隣含) エアコン付き - バス・トイレ別
室内洗濯機置き場 追焚機能 - オートロック付き -
モニタ付インターホン - フローリング バルコニー
ガスコンロ可 浴室乾燥機 - 24時間セキュリティ -
宅配ボックス - ペット相談可 二人入居可
設備 バルコニー・バス・トイレ別・トイレ・収納スペース・洗濯機置場・洗面所・フローリング・ガスコンロ可・駐輪場・都市ガス・浴トイレ別・洗面所独立・バイク置き場・シューズボックス・インターネット対応・室内洗濯機置き場 
リフォーム履歴 -
リノベーション履歴 -
備考 鍵交換代金1.65万円 書類代1.1万円/ハウスクリーニング代5.5万円/退去時 入居者サポート880円/月 口座振替手数料550円/月/保証会社利用必:初回:月額賃料等の50%、月額:支払い手数料550円、更新時:1.3万円/1年/二人入居可/子供可/ペット相談/駐車料金:11000円~14300円 更新料:新家賃1ヶ月 更新手数料:無/バストイレ別/バルコニー/ガスコンロ対応/フローリング/室内洗濯置/シューズボックス/脱衣所/洗面所独立/駐輪場/押入/光ファイバー/即入居可/最上階/敷金不要/ペット相談/二人入居相談/バイク置場/3駅以上利用可/駅徒歩5分以内/上階無し/和室/都市ガス/高速ネット対応/礼金1ヶ月/IT重説 対応物件/サーバ長岡京滝ノ町店(ドラッグストア)まで350m/ガスト長岡京店(飲食店)まで350m/西向日駅(その他)まで400m/長岡京駅(その他)まで2000m/長岡天神駅(その他)まで2150m/東向日駅(その他)まで1600m/阪急京都線東向日駅徒歩20分/賃貸戸数:16戸 
特記事項 ペット相談可・二人入居可・最上階

省エネ性能

エネルギー消費性能 -
断熱性能 -
目安光熱費 -

京都府向日市上植野町馬立 周辺地図情報

地図
※地図上に表示される物件の位置は付近住所に所在することを表すものであり、実際の物件所在地とは異なる場合がございます。
   正確な物件所在地は、取扱い不動産会社にお問い合わせください。

不動産会社情報

お問い合わせ先 商号:(株)京都ライフ今出川店
免許番号:京都府知事(11)第6353号
所在地:京都府京都市上京区烏丸通今出川上る御所八幡町 西側115 コーポ千尋1階
TEL:075-414-2588
取引態様:仲介
管理コード:K14686-310
所属協会など:(公社)近畿地区不動産公正取引協議会加盟、(公社)京都府宅地建物取引業協会会員
共有する
QRコード

    向日市の暮らしデータ

    人口などの統計情報

    世帯数 23510世帯
    人口総数 56571人
    転入者数 2163人
    転入率(人口1000人当たり)
    38.24人
    転出者数 2204人
    転出率(人口1000人当たり)
    38.96人
    土地平均価格
    住宅地
    207000円/m2
    商業地
    427000円/m2

    結婚・育児の助成金

    子育て関連の独自の取り組み 向日市児童福祉手当支給制度。
    出産祝い なし
    公立保育所数 3所(うち0歳児保育を実施している保育所:3所)
    私立保育所数 5所(うち0歳児保育を実施している保育所:5所)
    保育所入所待機児童数 0人
    認定こども園数 2園 預かり保育実施園数 公立:- 私立:3園
    学校給食 【小学校】完全給食【中学校】完全給食
    公立中学校の学校選択制 実施(希望校制度。新入学時又は他市区町村からの転入時のみ)
    子ども・学生等医療費助成<通院>対象年齢 中学校卒業まで 子ども・学生等医療費助成<入院>対象年齢 18歳3月末まで

    向日市の治安・ごみ収集情報

    公共料金・インフラ

    ガス料金(22m3使用した場合の月額) 大阪瓦斯株式会社4544円
    水道料金(口径20mmで20m3の月額) 向日市3096円
    下水道料金(20m3を使用した場合の月額) 向日市2266円
    下水道普及率 100.0%

    安心・安全

    建物火災出火件数 4件
    人口10000人当たり
    0.70件
    刑法犯認知件数 242件
    人口1000人当たり
    4.26件
    ハザード・防災マップ あり

    医療

    一般病院総数 1ヶ所
    一般診療所総数 48ヶ所
    小児科医師数 8人
    小児人口10000人当たり
    10.62人
    産婦人科医師数 6人
    15~49歳女性人口1万人当たり
    5.42人
    介護保険料基準額(月額) 6125円

    ごみ

    家庭ごみ収集(可燃ごみ) 無料
    備考
    指定ごみ袋は有料だが、袋代にごみ収集・処理料金等を含まず。
    家庭ごみの分別方式 2分別11種〔もやすごみ 資源ごみ(空缶、スプレー缶、空ビン、ペットボトル、その他不燃物、その他プラスチック、有害ごみ)〕拠点回収:資源ごみ(空缶、空ビン、ペットボトル、紙類[新聞、雑紙、段ボール、布類])
    家庭ごみの戸別収集 実施(基本的に戸別回収を行っているが、塵芥車が入れない一部地域で集団回収を実施)
    粗大ごみ収集 あり
    備考
    有料。事前申込制。手数料処理券が必要(500円~3,000円/点)。
    生ごみ処理機助成金制度 あり
    上限金額
    10000円
    上限比率
    50.0%
    暮らしデータ提供元:生活ガイド.com
    ※行政機関により公表していない地域及びデータがございます。東京23区以外の政令指定都市は、市全体のデータとして表示しています。
    ※提供データには細心の注意を払っておりますが、調査後に変更がある場合があります。 最新の情報につきましては各市区役所までお問い合わせいただくか、自治体HPなどをご確認ください。
    OCN×ドコモ光新規お申込みで合計最大137,280円相当おトク!特典の内訳・適用条件など詳細はこちら

    向日市内の各駅の住みやすさ

    他のエリアから探す

    向日市の詳細地域から賃貸物件を探す

    鶏冠井町上植野町寺戸町向日町物集女町森本町

    近辺の市区から探す

    京都市北区京都市上京区京都市中京区京都市東山区京都市下京区京都市南区京都市右京区京都市伏見区京都市山科区京都市西京区宇治市城陽市長岡京市八幡市乙訓郡大山崎町久世郡久御山町三島郡島本町

    周辺の駅から探す

    東海道本線
    京都西大路桂川向日町長岡京山崎島本高槻摂津富田
    阪急電鉄京都線
    西京極洛西口東向日西向日長岡天神西山天王山大山崎水無瀬

    京都府向日市で他のジャンルから探す


    掲載情報の著作権は提供元企業等に帰属します。
    Copyright:(C) 2025 Recruit Co., Ltd.
    アプリで簡単 物件探し 大手不動産サイトの情報から一括検!プッシュ通知で物件を見逃さない
    App Storeからダウンロード Google Playで手に入れよう QRコード