アプリで簡単 物件探し 通知 共有 アプリならではの機能を使ってみる
賃貸一戸建て

魚津市火の宮町 一戸建て貸家 電鉄魚津駅 8LDK 賃貸(賃貸マンション・アパート)

情報提供元
SUUMO
魚津市火の宮町 一戸建て貸家
賃料 5万円  (管理費等:なし)
礼金・敷金 1ヶ月 / 2ヶ月 保証金/敷引・償却 なし / -
交通
所在地 富山県魚津市火の宮町周辺地図
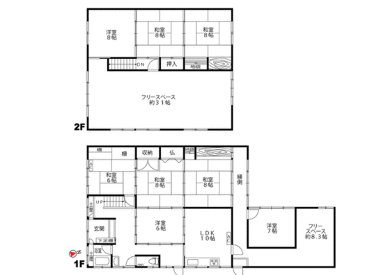
間取り 8LDK 専有面積 239.66m2
築年月 1964年6月 築年数 築61年7ヶ月
おすすめポイント
【1月下旬引渡し予定】ペット小型犬2匹OK!DIY可! ペット飼育の場合、毎月賃料5.5万、敷金11万などに賃貸条件が変更となります。建替期間中の短期入居OK(6ヶ月以上)
お問い合わせ先
ビルト不動産 (株)ビルト
お問い合わせ先
ビルト不動産 (株)ビルト

詳細情報

賃料 5万円 管理費等 なし
敷金 2ヶ月 礼金 1ヶ月
保証金 なし 敷引・償却 -
更新料 - 契約期間
カード決済 -
所在地 富山県魚津市火の宮町周辺地図
交通
  • 富山地鉄本線 電鉄魚津駅 徒歩9分乗換案内
建物名 魚津市火の宮町 一戸建て貸家 
間取り 8LDK(和8 和8 和8 和8 和6 洋8 洋7 洋6 LDK10) 築年月(築年数) 1964年6月(築61年7ヶ月)
専有面積 239.66㎡ 所在階/階数 2階建
建物構造 木造  方位 南 
現況   駐車場 有 無料
入居可能時期 2026年1月下旬 住宅保険 あり 2年 19000円
情報提供元 SUUMO[040H100424830487] 情報公開日
情報更新日 次回更新予定日 随時

設備など

2階以上 - 最上階 - 角部屋 -
駐車場(近隣含) エアコン付き - バス・トイレ別
室内洗濯機置き場 - 追焚機能 - オートロック付き -
モニタ付インターホン - フローリング - バルコニー -
ガスコンロ可 - 浴室乾燥機 - 24時間セキュリティ -
宅配ボックス - ペット相談可 二人入居可 -
設備 バス・トイレ別・トイレ・照明器具・温水洗浄便座・システムキッチン・専用庭・プロパンガス・IHクッキングヒータ・浴トイレ別・DIY可 
リフォーム履歴 -
リノベーション履歴 -
備考 保証会社利用必:期間:1年 ●初回保証料:家賃等の50% ●毎月保証料:【クレカ】2.5%【口座引落】1,000円or900円/月 ●引落手数料:毎月保証料に込み ●更新保証料:なし ●連帯保証人:原則不要/仲介手数料5.5万円/ペット相談/事務所利用相談/エアコン2台、駐車場1台分。ペット飼育の場合毎月家賃5.5万、敷金11万等に変更になります。地デジアンテナなし、テレビ視聴の場合NiceTVと契約要。入退居時に工事費等発生します。保証会社必須。/バストイレ別/システムキッチン/南向き/温水洗浄便座/ペット相談/IHクッキングヒーター/照明付/保証人不要/専用庭/敷金2ヶ月/事務所相談/駅徒歩10分以内/専有面積30坪以上/和室8畳以上/プロパンガス/礼金1ヶ月/DIY可/よつば小学校(小学校)まで1200m/西部中学校(中学校)まで870m/川原保育園(幼稚園・保育園)まで340m/魚津金屋(郵便局)まで390m/ファミリーマート魚津シーサイド店(コンビニ)まで800m/サンプラザ(ショッピングセンター)まで1000m 
特記事項 ペット相談可・事務所使用可・保証人不要/代行

省エネ性能

エネルギー消費性能 -
断熱性能 -
目安光熱費 -

富山県魚津市火の宮町 周辺地図情報

地図
※地図上に表示される物件の位置は付近住所に所在することを表すものであり、実際の物件所在地とは異なる場合がございます。
   正確な物件所在地は、取扱い不動産会社にお問い合わせください。
お問い合わせ先
ビルト不動産 (株)ビルト

不動産会社情報

お問い合わせ先 商号:ビルト不動産 (株)ビルト
免許番号:富山県知事(7)第2271号
所在地:富山県富山市水橋市田袋 268-6
TEL:076-479-2111
取引態様:仲介
管理コード:97674
所属協会など: 北陸不動産公正取引協議会加盟、(公社)全日本不動産協会富山県本部会員
共有する
QRコード
お問い合わせ先
ビルト不動産 (株)ビルト

    魚津市の暮らしデータ

    人口などの統計情報

    世帯数 15750世帯
    人口総数 39274人
    転入者数 1135人
    転入率(人口1000人当たり)
    28.90人
    転出者数 1315人
    転出率(人口1000人当たり)
    33.48人
    土地平均価格
    住宅地
    32260円/m2
    商業地
    69250円/m2

    結婚・育児の助成金

    子育て関連の独自の取り組み (1)不妊治療費助成(保険適用対象となる不妊治療に要する治療費の自己負担分を全額助成)。(2)不育症治療費助成(不育症治療費の一部助成)。(3)子育て短期支援事業(家庭での養育が一時的に困難になった児童を養育・保護)。(4)ファミリーサポート事業(会員間の育児の相互援助活動を支援)。(5)子育てコワーキング事業(子供と一緒に仕事ができるスペースを提供)。(6)夫婦応援事業(夫婦の時間創出イベント実施団体への補助金交付)。(7)オムツ配達便(2023年度出生児童の家庭へ紙オムツ2回無償配達)。(8)おうちで育児応援事業(満1歳~満3歳未満の児童の育児を家庭で行う保護者へ応援金を支給)。
    出産祝い なし
    公立保育所数 4所(うち0歳児保育を実施している保育所:4所)
    私立保育所数 0所(うち0歳児保育を実施している保育所:-)
    保育所入所待機児童数 0人
    認定こども園数 8園 預かり保育実施園数 公立:1園 私立:-
    学校給食 【小学校】完全給食【中学校】完全給食
    公立中学校の学校選択制 未実施
    子ども・学生等医療費助成<通院>対象年齢 18歳3月末まで 子ども・学生等医療費助成<入院>対象年齢 18歳3月末まで

    魚津市の治安・ごみ収集情報

    公共料金・インフラ

    ガス料金(22m3使用した場合の月額) -
    水道料金(口径20mmで20m3の月額) 魚津市3170円
    魚津市(島尻 簡易水道)1720円
    魚津市(東蔵 簡易水道)2150円
    魚津市(鉢・升方・長引野 簡易水道)2120円
    下水道料金(20m3を使用した場合の月額) 魚津市3610円
    下水道普及率 78.7%

    安心・安全

    建物火災出火件数 5件
    人口10000人当たり
    1.23件
    刑法犯認知件数 170件
    人口1000人当たり
    4.19件
    ハザード・防災マップ あり

    医療

    一般病院総数 4ヶ所
    一般診療所総数 28ヶ所
    小児科医師数 6人
    小児人口10000人当たり
    16.06人
    産婦人科医師数 3人
    15~49歳女性人口1万人当たり
    4.71人
    介護保険料基準額(月額) 6295円

    ごみ

    家庭ごみ収集(可燃ごみ) 有料
    備考
    指定ごみ袋・収集指定券有料。指定ごみ袋に入らないものは収集指定券貼付。
    家庭ごみの分別方式 3分別12種〔もやせるごみ もやせないごみ(ビニール・プラスチック類・ゴム類、金物類・陶器類・ガラス類[スプレー缶・カセットボンベ、その他]) 資源物(びん類[無色透明、茶色、青・緑色・黒色]、缶類[アルミ、スチール]、ペットボトル、プラ容器、紙容器)〕
    家庭ごみの戸別収集 未実施
    粗大ごみ収集 あり
    備考
    有料。ステーション収集。月1回。
    生ごみ処理機助成金制度 なし
    上限金額
    -
    上限比率
    -
    暮らしデータ提供元:生活ガイド.com
    ※行政機関により公表していない地域及びデータがございます。東京23区以外の政令指定都市は、市全体のデータとして表示しています。
    ※提供データには細心の注意を払っておりますが、調査後に変更がある場合があります。 最新の情報につきましては各市区役所までお問い合わせいただくか、自治体HPなどをご確認ください。
    OCN×ドコモ光新規お申込みで合計最大137,280円相当おトク!特典の内訳・適用条件など詳細はこちら

    魚津市内の各駅の住みやすさ

    他のエリアから探す

    魚津市の詳細地域から賃貸物件を探す

    相木青島石垣石垣新印田駅前新町江口大字下村木町岡経田金浦町上口上村木川縁北鬼江北中吉島木下新経田西町三田釈迦堂新角川新金屋末広町住吉諏訪町立石大海寺野大光寺友道並木町西尾崎浜経田火の宮町仏田文化町平伝寺本江緑町宮津村木町本新本新町横枕六郎丸

    近辺の市区から探す

    滑川市黒部市

    周辺の駅から探す

    富山地鉄本線
    浜加積早月加積越中中村西魚津電鉄魚津新魚津経田電鉄石田電鉄黒部

    富山県魚津市で他のジャンルから探す


    掲載情報の著作権は提供元企業等に帰属します。
    Copyright:(C) 2025 Recruit Co., Ltd.
    アプリで簡単 物件探し 大手不動産サイトの情報から一括検!プッシュ通知で物件を見逃さない
    App Storeからダウンロード Google Playで手に入れよう QRコード