賃貸マンション
スペーシア梅屋敷 梅屋敷駅 1K 賃貸(賃貸マンション・アパート)
| 賃料 |
8.8万円 (管理費等:10000円) |
| 礼金・敷金 |
なし / なし |
保証金/敷引・償却 |
なし / - |
| 交通 |
|
| 所在地 |
東京都大田区東蒲田1周辺地図
|
| 間取り |
1K |
専有面積 |
22.82m2 |
| 築年月 |
2011年10月 |
築年数 |
築14年2ヶ月 |
- おすすめポイント
- ★エリア最大級★経験豊富なスタッフが多数在籍しております♪ ☆角部屋・二面採光☆梅屋敷駅まで徒歩1分☆お問合せ物件のほかにもネット非掲載や空き予定など豊富な物件からご紹介いたします。お気軽にお問い合わせください☆
- お問い合わせ先
- リブマックス目黒店(株)リブ・マックス
- お問い合わせ先
- リブマックス目黒店(株)リブ・マックス
| 賃料 |
8.8万円 |
管理費等 |
10000円 |
| 敷金 |
なし |
礼金 |
なし |
| 保証金 |
なし |
敷引・償却 |
- |
| 更新料 |
- |
契約期間 |
|
| カード決済 |
初期費用カード決済可 |
| 所在地 |
東京都大田区東蒲田1周辺地図
|
| 交通 |
- 京急本線 梅屋敷駅 徒歩1分乗換案内
- JR京浜東北線 蒲田駅 徒歩19分乗換案内
- 京急空港線 糀谷駅 徒歩20分乗換案内
|
| 建物名 |
スペーシア梅屋敷 |
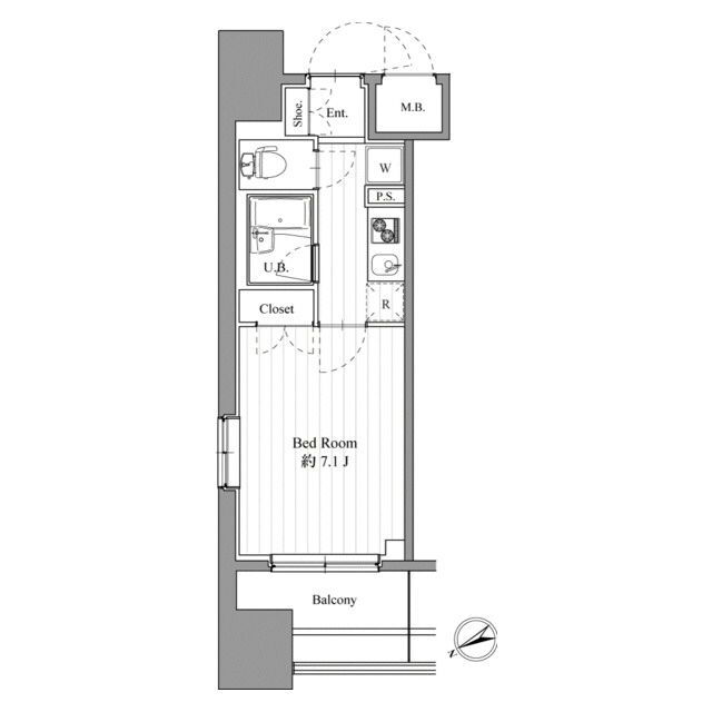
| 間取り |
1K(洋7.1 K2.0) |
築年月(築年数) |
2011年10月(築14年2ヶ月)
|
| 専有面積 |
22.82㎡ |
所在階/階数 |
2階/14階建
|
| 建物構造 |
RC |
方位 |
|
| 現況 |
|
駐車場 |
無 近くの駐車場を探す
|
| 入居可能時期 |
即時 |
住宅保険 |
あり |
| 情報提供元 |
SUUMO[030H100468305892] |
情報公開日 |
|
| 情報更新日 |
|
次回更新予定日 |
随時 |
設備など
| 2階以上 |
○ |
最上階 |
- |
角部屋 |
○ |
| 駐車場(近隣含) |
- |
エアコン付き |
○ |
バス・トイレ別 |
○ |
| 室内洗濯機置き場 |
○ |
追焚機能 |
- |
オートロック付き |
○ |
| モニタ付インターホン |
○ |
フローリング |
○ |
バルコニー |
○ |
| ガスコンロ可 |
○ |
浴室乾燥機 |
○ |
24時間セキュリティ |
- |
| 宅配ボックス |
○ |
ペット相談可 |
- |
二人入居可 |
- |
| 設備 |
冷房・暖房・エアコン・オートロック・バルコニー・バス・トイレ別・トイレ・収納スペース・洗濯機置場・エレベーター・CATV・BS端子・フローリング・浴室乾燥機・ガスコンロ可・温水洗浄便座・システムキッチン・モニタ付インターホン・宅配BOX・駐輪場・クローゼット・CS・衣類乾燥機・都市ガス・浴トイレ別・防犯カメラ・コンロ2口以上・シューズボックス・リフォーム・インターネット対応・室内洗濯機置き場 |
| リフォーム履歴 |
- |
| リノベーション履歴 |
- |
| 備考 |
損保要/更新料 新賃料1.00ヶ月分/保証会社利用必:保証会社初回保証料:賃料+管理費の50% 60% (月次保証料、口座振替手数料、更新保証料等有り)/普通借家02年0ヶ月/初期費用クレジット支払可能!オンライン内覧・オンライン契約等弊社に一度も来店せずとも問題ありません♪弊社ではネットに掲載されている物件は全てご紹介可能になりますので気になる物件は全て申し付けください★/バストイレ別/バルコニー/エアコン/ガスコンロ対応/クロゼット/フローリング/TVインターホン/浴室乾燥機/オートロック/室内洗濯置/シューズボックス/システムキッチン/角住戸/温水洗浄便座/エレベーター/2口コンロ/駐輪場/宅配ボックス/CATV/即入居可/防犯カメラ/全居室洋室/デザイナーズ/2沿線利用可/CS/ネット専用回線/内装リフォーム済/ダブルロックキー/バリアフリー/24時間換気システム/人感照明センサー/耐火構造/耐震構造/2駅利用可/3駅以上利用可/3沿線以上利用可/駅徒歩5分以内/24時間ゴミ出し可/敷地内ごみ置き場/都市ガス/BS/IT重説 対応物件/初期費用カード決済可/通風良好/まいばすけっと 東蒲田1丁目店(スーパー)まで114m/ローソンストア100 大森中店(スーパー)まで166m/セブンイレブン 大田区大森中3丁目店(コンビニ)まで543m/大森町駅(その他)まで1059m/Olympic(オリンピック) 蒲田店(ホームセンター)まで1159m/まいばすけっと 梅屋敷店(スーパー)まで331m/賃貸戸数:85戸 |
| 特記事項 |
角部屋・バリアフリー・デザイナーズ物件・初期費用カード決済可 |
東京都大田区東蒲田1 周辺地図情報
※地図上に表示される物件の位置は付近住所に所在することを表すものであり、実際の物件所在地とは異なる場合がございます。
正確な物件所在地は、取扱い不動産会社にお問い合わせください。
- お問い合わせ先
- リブマックス目黒店(株)リブ・マックス
不動産会社情報
| お問い合わせ先 |
商号:リブマックス目黒店(株)リブ・マックス 免許番号:国土交通大臣(5)第7032号 所在地:東京都品川区上大崎2-15-15 伊多喜ビル5階 TEL:03-6409-0707 取引態様:仲介 管理コード:6292388 所属協会など:(公社)首都圏不動産公正取引協議会加盟、(公社)全日本不動産協会東京都本部会員
|
共有する |
|
- お問い合わせ先
- リブマックス目黒店(株)リブ・マックス
人口などの統計情報
| 世帯数 |
399628世帯 |
| 人口総数 |
733634人 |
| 転入者数 |
55358人
- 転入率(人口1000人当たり)
- 75.46人
|
| 転出者数 |
47162人
- 転出率(人口1000人当たり)
- 64.29人
|
| 土地平均価格 |
- 住宅地
- 524720円/m2
- 商業地
- 895412円/m2
|
結婚・育児の助成金
| 子育て関連の独自の取り組み |
区内保育施設の人材の確保・定着を支援し、また保育の質の向上を目的とする研修実施の他、若年層保育士の定着促進と中堅・ベテラン層保育士の同一施設における継続勤務を奨励することで保育士の質の向上を図る保育士応援手当を交付している。 |
| 出産祝い |
あり |
| 公立保育所数 |
37所(うち0歳児保育を実施している保育所:26所) |
| 私立保育所数 |
155所(うち0歳児保育を実施している保育所:104所) |
| 保育所入所待機児童数 |
0人 |
| 認定こども園数 |
0園 |
預かり保育実施園数 |
公立:0園 私立:45園 |
| 学校給食 |
【小学校】完全給食【中学校】完全給食 |
| 公立中学校の学校選択制 |
未実施 |
| 子ども・学生等医療費助成<通院>対象年齢 |
18歳3月末まで |
子ども・学生等医療費助成<入院>対象年齢 |
18歳3月末まで |
大田区の治安・ごみ収集情報
公共料金・インフラ
| ガス料金(22m3使用した場合の月額) |
東京瓦斯株式会社(東京地区等)3926円 |
| 水道料金(口径20mmで20m3の月額) |
東京都水道局2816円 |
| 下水道料金(20m3を使用した場合の月額) |
東京都下水道局2068円 |
| 下水道普及率 |
100.0% |
安心・安全
| 建物火災出火件数 |
118件
- 人口10000人当たり
- 1.58件
|
| 刑法犯認知件数 |
3851件
- 人口1000人当たり
- 5.15件
|
| ハザード・防災マップ |
あり |
医療
| 一般病院総数 |
24ヶ所 |
| 一般診療所総数 |
613ヶ所 |
| 小児科医師数 |
149人
- 小児人口10000人当たり
- 19.74人
|
| 産婦人科医師数 |
66人
- 15~49歳女性人口1万人当たり
- 3.96人
|
| 介護保険料基準額(月額) |
6600円 |
ごみ
| 家庭ごみ収集(可燃ごみ) |
無料
|
| 家庭ごみの分別方式 |
3分別11種〔可燃ごみ 不燃ごみ 資源9品目(新聞・チラシ、雑誌・雑がみ、紙パック、段ボール、飲食用びん、飲食用かん、食品トレイ、ペットボトル、発泡スチロール)〕 拠点回収:使用済小型家電10品目(携帯電話 携帯音楽プレーヤー 携帯ゲーム機器 デジタルカメラ ポータブルビデオカメラ ポータブルカーナビ 電子辞書 卓上計算機 ACアダプター USBメモリ) 廃食用油 古着 |
| 家庭ごみの戸別収集 |
一部実施(次のいずれかに該当する者のみで構成される世帯で、自ら集積所までごみを持ち出すことが困難であり、また他の者の協力を得ることができない世帯。[1]要介護2以上に認定されていること。[2]身体障害者障害程度1級及び2級に認定されていること。[3]その他、区長が認める者) |
| 粗大ごみ収集 |
あり
|
| 生ごみ処理機助成金制度 |
なし
- 上限金額
- -
- 上限比率
- -
|
※行政機関により公表していない地域及びデータがございます。東京23区以外の政令指定都市は、市全体のデータとして表示しています。
※提供データには細心の注意を払っておりますが、調査後に変更がある場合があります。 最新の情報につきましては各市区役所までお問い合わせいただくか、自治体HPなどをご確認ください。
大田区の暮らしデータをもっと見る