アプリで簡単 物件探し 通知 共有 アプリならではの機能を使ってみる
賃貸アパート

(仮称)前九年アパート新築工事 青山駅 2LDK 賃貸(賃貸マンション・アパート)

情報提供元
SUUMO
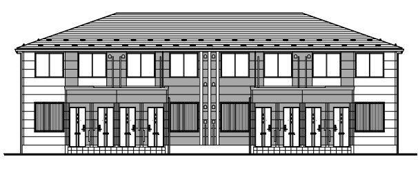
(仮称)前九年アパート新築工事 完成予想図
賃料 7.4万円  (管理費等:4000円)
礼金・敷金 なし / 1ヶ月 保証金/敷引・償却 なし / -
交通
所在地 岩手県盛岡市前九年2周辺地図
間取り 2LDK 専有面積 53.9m2
築年月 2026年4月 築年数 新築
おすすめポイント
イエスタでご成約の方に14000円キャッシュバック! 「少しでも初期費用を抑えたい!」というお客様は、イエスタへご相談ください(´▽`*) お部屋探しから契約手続きまで、ご来店不要で対応できる体制を整えております!初期費用の分割あと払いご相談ください♪
お問い合わせ先
イエスタ盛岡店(株)ライフコネクト
お問い合わせ先
イエスタ盛岡店(株)ライフコネクト

詳細情報

賃料 7.4万円 管理費等 4000円
敷金 1ヶ月 礼金 なし
保証金 なし 敷引・償却 -
更新料 - 契約期間
カード決済 初期費用カード決済可、家賃カード決済可
所在地 岩手県盛岡市前九年2周辺地図
交通
建物名 (仮称)前九年アパート新築工事 
間取り 2LDK(洋6.0 洋4.3 LDK10.0) 築年月(築年数) 2026年4月 新築
専有面積 53.9㎡ 所在階/階数 2階/2階建
建物構造 木造  方位 南東 
現況   駐車場 有 4,400円
入居可能時期 2026年4月下旬 住宅保険 あり
情報提供元 SUUMO[020H100476720064] 情報公開日
情報更新日 次回更新予定日 随時

設備など

2階以上 最上階 角部屋
駐車場(近隣含) エアコン付き バス・トイレ別
室内洗濯機置き場 追焚機能 オートロック付き -
モニタ付インターホン フローリング バルコニー -
ガスコンロ可 浴室乾燥機 24時間セキュリティ -
宅配ボックス ペット相談可 - 二人入居可 -
設備 冷房・暖房・エアコン・バス・トイレ別・トイレ・収納スペース・洗濯機置場・BS端子・追焚機能・フローリング・浴室乾燥機・ウォークインクローゼット・ガスコンロ可・温水洗浄便座・システムキッチン・カウンターキッチン・モニタ付インターホン・宅配BOX・駐輪場・風呂・対面K・クローゼット・衣類乾燥機・プロパンガス・浴トイレ別・コンロ2口以上・インターネット無料・インターネット対応・室内洗濯機置き場 
リフォーム履歴 -
リノベーション履歴 -
備考 損保要/消毒施工料(当社扱)(入居時のみ)1.705万円/2台目駐車場(台数制御有)(1ヵ月) 月額4400円/保証会社利用必:保証人代行サービス保証料・家賃集金サービス手数料 10 000円/入居時、以降は月額賃料の1%/毎月(入居期間中)/仲介手数料1.100ヶ月/普通借家02年0ヶ月/イエスタでご成約の方に14000円キャッシュバック!今引っ越しをお考えの方におすすめなのが、こちらのアパートです!宅配ボックスがあれば直接荷物を受け取る必要がないので、宅配業者を装う人に対する防犯対策にもなり安心できます!こちらの「(仮称)前九年アパート新築工事」はいかがでしょうか!イエスタ盛岡店の信頼できるスタッフが住まい探しをサポートいたします!019-681-1717へご連絡ください(^^)/バストイレ別/エアコン/ガスコンロ対応/フローリング/TVインターホン/浴室乾燥機/室内洗濯置/システムキッチン/追焚機能浴室/角住戸/温水洗浄便座/2口コンロ/駐輪場/宅配ボックス/対面式キッチン/ウォークインクロゼット/2沿線利用可/ネット使用料不要/2駅利用可/プロパンガス/BS/初期費用カード決済可/家賃カード決済可/業務スーパー 館向店(スーパー)まで970m/ファミリーマート 盛岡北夕顔瀬町店(コンビニ)まで527m/DCMホーマック上堂店(ホームセンター)まで1671m/ニトリ 盛岡店(その他)まで1589m/ウエルシア盛岡前九年店(ドラッグストア)まで280m/ツルハドラッグ盛岡上堂店(ドラッグストア)まで1339m/賃貸戸数:8戸 
特記事項 角部屋・最上階・初期費用カード決済可・家賃カード決済可

省エネ性能

エネルギー消費性能 -
断熱性能 -
目安光熱費 -

岩手県盛岡市前九年2 周辺地図情報

地図
※地図上に表示される物件の位置は付近住所に所在することを表すものであり、実際の物件所在地とは異なる場合がございます。
   正確な物件所在地は、取扱い不動産会社にお問い合わせください。
お問い合わせ先
イエスタ盛岡店(株)ライフコネクト

不動産会社情報

お問い合わせ先 商号:イエスタ盛岡店(株)ライフコネクト
免許番号:岩手県知事(2)第2601号
所在地:岩手県盛岡市加賀野2-3-43
TEL:019-681-1717
取引態様:仲介
管理コード:1029907
所属協会など: 東北地区不動産公正取引協議会加盟、(公社)全日本不動産協会岩手県本部会員
共有する
QRコード
お問い合わせ先
イエスタ盛岡店(株)ライフコネクト

    盛岡市の暮らしデータ

    人口などの統計情報

    世帯数 130755世帯
    人口総数 280286人
    転入者数 10611人
    転入率(人口1000人当たり)
    37.86人
    転出者数 11103人
    転出率(人口1000人当たり)
    39.61人
    土地平均価格
    住宅地
    54550円/m2
    商業地
    109100円/m2

    結婚・育児の助成金

    子育て関連の独自の取り組み (1)もりおか子育て応援パスポート事業(子育て中の世帯にパスポートを発行し、市内の協賛店に持参すると特典が得られる。企業による子育て支援策)。(2)もりおか子育て応援プラザ運営事業(子育て中の親子や子育て支援活動を行う市民・団体等が活動・交流できる施設の運営)。(3)子ども未来基金事業(市民等が行う子ども・子育て支援に関する取組に助成することを目的とした基金の設置)。
    出産祝い なし
    公立保育所数 8所(うち0歳児保育を実施している保育所:3所)
    私立保育所数 36所(うち0歳児保育を実施している保育所:36所)
    保育所入所待機児童数 0人
    認定こども園数 36園 預かり保育実施園数 公立:0園 私立:7園
    学校給食 【小学校】完全給食【中学校】完全給食 家庭弁当等との選択制/デリバリー形式[運搬:ランチボックス、内容:完全給食]
    公立中学校の学校選択制 未実施
    子ども・学生等医療費助成<通院>対象年齢 18歳3月末まで 子ども・学生等医療費助成<入院>対象年齢 18歳3月末まで

    盛岡市の治安・ごみ収集情報

    公共料金・インフラ

    ガス料金(22m3使用した場合の月額) 盛岡ガス株式会社4986円
    水道料金(口径20mmで20m3の月額) 盛岡市3550円
    下水道料金(20m3を使用した場合の月額) 盛岡市2455円
    下水道普及率 90.2%

    安心・安全

    建物火災出火件数 28件
    人口10000人当たり
    0.97件
    刑法犯認知件数 973件
    人口1000人当たり
    3.36件
    ハザード・防災マップ あり

    医療

    一般病院総数 21ヶ所
    一般診療所総数 258ヶ所
    小児科医師数 39人
    小児人口10000人当たり
    12.15人
    産婦人科医師数 28人
    15~49歳女性人口1万人当たり
    5.14人
    介護保険料基準額(月額) 6267円

    ごみ

    家庭ごみ収集(可燃ごみ) 無料
    備考
    -
    家庭ごみの分別方式 【盛岡地域】3分別10種〔可燃ごみ 不燃ごみ 資源(プラスチック製容器包装、びん、缶、ペットボトル、スプレー缶・カセットボンベ、古紙)〕拠点回収:使用済小型家電、紙製容器包装、水銀製品、インクカートリッジ、蛍光管、乾電池 【都南地域】5分別15種〔燃やせるごみ 大型・不燃ごみ 有害・危険ごみ 乾電池 資源(生ごみ、プラスチック製容器包装、紙製容器包装、古紙、紙パック、ペットボトル、空缶、空びん、段ボール、古着)〕 拠点回収:使用済小型家電【玉山地域】4分別13種〔燃えるごみ 燃えないごみ 危険ごみ 資源(びん、缶、ペットボトル、新聞類、雑誌類、段ボール、紙パック、白色トレイ、雑がみ、プラスチック製容器包装)〕拠点回収:使用済小型家電、インクカートリッジ
    家庭ごみの戸別収集 一部実施(【ごみ出しサポート事業】盛岡地域の一部対象者へ実施)
    粗大ごみ収集 あり
    備考
    有料。事前申込制。1件1mを超え2m未満600円、2m以上1,200円。1回3点まで。※盛岡地域の場合。都南地域、玉山地域は処理施設及び収集方法が異なる。
    生ごみ処理機助成金制度 なし
    上限金額
    -
    上限比率
    -
    暮らしデータ提供元:生活ガイド.com
    ※行政機関により公表していない地域及びデータがございます。東京23区以外の政令指定都市は、市全体のデータとして表示しています。
    ※提供データには細心の注意を払っておりますが、調査後に変更がある場合があります。 最新の情報につきましては各市区役所までお問い合わせいただくか、自治体HPなどをご確認ください。
    OCN×ドコモ光新規お申込みで合計最大137,280円相当おトク!特典の内訳・適用条件など詳細はこちら

    盛岡市内の各駅の住みやすさ

    他のエリアから探す

    盛岡市の詳細地域から賃貸物件を探す

    青山浅岸愛宕町安倍館町飯岡新田稲荷町岩清水岩脇町上田上田堤内丸大沢川原太田大館町大通乙部開運橋通加賀野上厨川上堂上ノ橋町上米内川目町北飯岡北天昌寺町北松園北山北夕顔瀬町厨川黒石野黒川好摩小杉山小鳥沢紺屋町菜園境田町肴町山王町三本柳材木町志家町渋民清水町下飯岡下太田下田下ノ橋町下米内新庄町新田町神明町城西町住吉町仙北前九年高松館向町大新町茶畑中央通月が丘津志田津志田中央津志田町津志田西津志田南手代森天昌寺町天神町中太田中堤町中野中ノ橋通中屋敷町永井長田町長橋町梨木町名須川町鉈屋町西青山西下台町西仙北西松園西見前箱清水八幡町羽場馬場町東安庭東黒石野東桜山東新庄東仙北東中野東中野町東松園東緑が丘東見前東山平賀新田本町通前潟松尾町松園神子田町みたけ三ツ割緑が丘南青山町南大通南仙北向中野本宮紅葉が丘盛岡駅西通盛岡駅前北通盛岡駅前通山岸夕顔瀬町流通センター北若園町

    近辺の市区から探す

    滝沢市紫波郡矢巾町

    周辺の駅から探す

    東北本線
    古館矢幅岩手飯岡仙北町盛岡
    いわて銀河鉄道
    盛岡青山厨川巣子滝沢渋民

    岩手県盛岡市で他のジャンルから探す


    掲載情報の著作権は提供元企業等に帰属します。
    Copyright:(C) 2025 Recruit Co., Ltd.
    アプリで簡単 物件探し 大手不動産サイトの情報から一括検!プッシュ通知で物件を見逃さない
    App Storeからダウンロード Google Playで手に入れよう QRコード