アプリで簡単 物件探し 通知 共有 アプリならではの機能を使ってみる
賃貸一戸建て

ガレージハウス発寒3・3 発寒南駅 3LDK 賃貸(賃貸マンション・アパート)

情報提供元
SUUMO
ガレージハウス発寒3・3
賃料 22万円  (管理費等:なし)
礼金・敷金 1ヶ月 / 1ヶ月 保証金/敷引・償却 なし / -
交通
所在地 北海道札幌市西区発寒三条3周辺地図
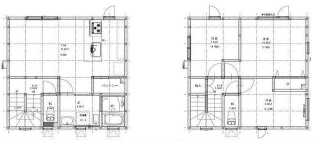
間取り 3LDK 専有面積 113m2
築年月 2022年11月 築年数 築3年2ヶ月
おすすめポイント
★LINEのお友達登録で今だけキャンペーン開催中★ ★当店は札幌市内全域のお部屋探しが可能です★他店掲載物件もご紹介可能★LINE電話やテレビ電話で実際のお部屋とライブ中継も可能です★初期費用のカード決済や交渉等お気軽にご相談ください★
お問い合わせ先
アパマンショップ琴似店Apaman Property(株)
お問い合わせ先
アパマンショップ琴似店Apaman Property(株)

詳細情報

賃料 22万円 管理費等 なし
敷金 1ヶ月 礼金 1ヶ月
保証金 なし 敷引・償却 -
更新料 - 契約期間
カード決済 -
所在地 北海道札幌市西区発寒三条3周辺地図
交通
建物名 ガレージハウス発寒3・3 
間取り 3LDK(洋7.5 洋4.8 洋4.7 LDK13) 築年月(築年数) 2022年11月(築3年2ヶ月)
専有面積 113㎡ 所在階/階数 1階/3階建
建物構造 木造  方位  
現況   駐車場 有 無料
入居可能時期 即時 住宅保険 あり
情報提供元 SUUMO[010H100431314075] 情報公開日
情報更新日 次回更新予定日 随時

設備など

2階以上 - 最上階 - 角部屋 -
駐車場(近隣含) エアコン付き バス・トイレ別
室内洗濯機置き場 追焚機能 オートロック付き -
モニタ付インターホン フローリング - バルコニー -
ガスコンロ可 - 浴室乾燥機 - 24時間セキュリティ -
宅配ボックス - ペット相談可 二人入居可
設備 冷房・暖房・エアコン・バス・トイレ別・トイレ・収納スペース・洗濯機置場・洗面所・追焚機能・シャンプードレッサ・温水洗浄便座・システムキッチン・カウンターキッチン・モニタ付インターホン・風呂・対面K・トイレ2ヶ所・食器洗浄乾燥機・プロパンガス・食器乾燥機・浴トイレ別・洗面所独立・コンロ2口以上・シューズボックス・室内洗濯機置き場 
リフォーム履歴 -
リノベーション履歴 -
備考 損保要/エアコン清掃料/ハウスクリーニング料等/24時間管理費用 1100円(月額)/保証会社利用必:初回保証料 月額賃料等の50%・月額手数料1.5%/二人入居可/子供可/ペット相談/[退去時費用 退去費用実費精算※故意・過失等別途実費]   ペット飼育時:礼金1ヶ月 保証会社:ジェイリース/バストイレ別/エアコン/シャワー付洗面台/TVインターホン/室内洗濯置/シューズボックス/システムキッチン/追焚機能浴室/温水洗浄便座/洗面所独立/即入居可/3口以上コンロ/対面式キッチン/ペット相談/全居室洋室/保証人不要/敷金1ヶ月/2沿線利用可/食器洗乾燥機/トイレ2ヶ所/2駅利用可/駅徒歩10分以内/LDK12畳以上/プロパンガス/礼金1ヶ月/保証会社利用可/はつなん公園(公園)まで232m/発寒南小学校(小学校)まで246m/大空公園(公園)まで298m/ファミリーマート(コンビニ)まで601m/札幌法務局西出張所(その他)まで592m/発寒保育園(幼稚園・保育園)まで572m/賃貸戸数:1戸 
特記事項 ペット相談可・二人入居可・保証人不要/代行

省エネ性能

エネルギー消費性能 -
断熱性能 -
目安光熱費 -

北海道札幌市西区発寒三条3 周辺地図情報

地図
※地図上に表示される物件の位置は付近住所に所在することを表すものであり、実際の物件所在地とは異なる場合がございます。
   正確な物件所在地は、取扱い不動産会社にお問い合わせください。
お問い合わせ先
アパマンショップ琴似店Apaman Property(株)

不動産会社情報

お問い合わせ先 商号:アパマンショップ琴似店Apaman Property(株)
免許番号:国土交通大臣(4)第7144号
所在地:北海道札幌市西区琴似一条2-6-8 ライオンズマンション琴似2階
TEL:011-633-7199
取引態様:仲介
管理コード:105097927
共有する
QRコード
お問い合わせ先
アパマンショップ琴似店Apaman Property(株)

    札幌市西区の暮らしデータ

    人口などの統計情報

    世帯数 967372世帯
    人口総数 1956928人
    転入者数 121035人
    転入率(人口1000人当たり)
    61.85人
    転出者数 109861人
    転出率(人口1000人当たり)
    56.14人
    土地平均価格
    住宅地
    107466円/m2
    商業地
    594868円/m2

    結婚・育児の助成金

    子育て関連の独自の取り組み (1)交通事故・労働災害およびその他不慮の災害により、父、または母等を失った(重度障がいとなった場合を含む)義務教育終了前の遺児を扶養する方に遺児1人につき月額4,000円を支給するとともに、手当の対象となる遺児が小・中学校および高等学校等に入学する際または中学校卒業後、就職する際に遺児1人につき2万円を支給。(2)認可保育所等における第2子以降の保育料について、世帯年収や兄弟姉妹の年齢差に関わらず無償化。
    出産祝い なし
    公立保育所数 20所(うち0歳児保育を実施している保育所:14所)
    私立保育所数 182所(うち0歳児保育を実施している保育所:182所)
    保育所入所待機児童数 0人
    認定こども園数 238園 預かり保育実施園数 公立:9園 私立:49園
    学校給食 【小学校】完全給食【中学校】完全給食
    公立中学校の学校選択制 一部実施(小規模特認校)
    子ども・学生等医療費助成<通院>対象年齢 中学校卒業まで 子ども・学生等医療費助成<入院>対象年齢 中学校卒業まで

    札幌市西区の治安・ごみ収集情報

    公共料金・インフラ

    ガス料金(22m3使用した場合の月額) 北海道瓦斯株式会社5118円
    水道料金(口径20mmで20m3の月額) 札幌市3652円
    下水道料金(20m3を使用した場合の月額) 札幌市1397円
    下水道普及率 99.9%

    安心・安全

    建物火災出火件数 286件
    人口10000人当たり
    1.45件
    刑法犯認知件数 11263件
    人口1000人当たり
    5.71件
    ハザード・防災マップ あり

    医療

    一般病院総数 172ヶ所
    一般診療所総数 1433ヶ所
    小児科医師数 371人
    小児人口10000人当たり
    17.99人
    産婦人科医師数 203人
    15~49歳女性人口1万人当たり
    5.12人
    介護保険料基準額(月額) 5773円

    ごみ

    家庭ごみ収集(可燃ごみ) 有料
    備考
    燃やせるごみ・燃やせないごみは有料収集。
    家庭ごみの分別方式 9分別〔燃やせるごみ 燃やせないごみ スプレー缶・カセットボンベ 筒型乾電池 加熱式たばこ・電子たばこ・ライター 容器包装プラスチック びん・缶・ペットボトル 枝・葉・草 雑がみ〕 拠点回収:新聞 雑誌 ダンボール 紙パック 雑がみ びん・缶・ペットボトル 一升びん・ビールびん 容器包装プラスチック 古着 古布 毛布 小物金属類 小型家電 蛍光管 水銀体温計・水銀血圧計・水銀温度計 筒型乾電池 小型充電式電池 廃食油 生ごみ堆肥 枝・葉・草 使用済みインクカートリッジ スプレー缶・カセットボンベ ライター
    家庭ごみの戸別収集 一部実施(【さわやか収集】一定の要件に該当する要介護者や障がい者に対し、玄関先からのごみの収集や大型ごみの家屋内からの運び出しの支援を実施)
    粗大ごみ収集 あり
    備考
    有料。戸別収集。事前申込制(大型ごみ収集センター)。
    生ごみ処理機助成金制度 あり
    上限金額
    10000円
    上限比率
    50.0%
    暮らしデータ提供元:生活ガイド.com
    ※行政機関により公表していない地域及びデータがございます。東京23区以外の政令指定都市は、市全体のデータとして表示しています。
    ※提供データには細心の注意を払っておりますが、調査後に変更がある場合があります。 最新の情報につきましては各市区役所までお問い合わせいただくか、自治体HPなどをご確認ください。
    OCN×ドコモ光新規お申込みで合計最大137,280円相当おトク!特典の内訳・適用条件など詳細はこちら

    札幌市西区内の各駅の住みやすさ

    他のエリアから探す

    札幌市西区の詳細地域から賃貸物件を探す

    琴似一条琴似二条琴似三条琴似四条西野西野十条西野十一条西野十二条西野十三条西野一条西野二条西野三条西野四条西野五条西野六条西野七条西野八条西野九条西町北西町南二十四軒一条二十四軒二条二十四軒三条二十四軒四条八軒十条西八軒十条東八軒一条西八軒一条東八軒二条西八軒二条東八軒三条西八軒三条東八軒四条西八軒四条東八軒五条西八軒五条東八軒六条西八軒六条東八軒七条西八軒七条東八軒八条西八軒八条東八軒九条西八軒九条東発寒十条発寒十一条発寒十二条発寒十三条発寒十四条発寒十五条発寒一条発寒二条発寒三条発寒四条発寒五条発寒六条発寒七条発寒八条発寒九条福井平和平和一条平和二条平和三条宮の沢一条宮の沢二条宮の沢三条宮の沢四条山の手一条山の手二条山の手三条山の手四条山の手五条山の手六条山の手七条

    近辺の市区から探す

    札幌市中央区札幌市北区札幌市東区札幌市白石区札幌市豊平区札幌市南区札幌市手稲区石狩市

    周辺の駅から探す

    函館本線
    稲穂手稲稲積公園発寒発寒中央琴似桑園札幌苗穂
    札幌市東西線
    宮の沢発寒南琴似二十四軒西28丁目円山公園

    北海道札幌市西区で他のジャンルから探す


    掲載情報の著作権は提供元企業等に帰属します。
    Copyright:(C) 2025 Recruit Co., Ltd.
    アプリで簡単 物件探し 大手不動産サイトの情報から一括検!プッシュ通知で物件を見逃さない
    App Storeからダウンロード Google Playで手に入れよう QRコード