アプリで簡単 物件探し 通知 共有 アプリならではの機能を使ってみる
賃貸アパート

クレイノルミエールⅢ 伊部駅 1K 賃貸(賃貸マンション・アパート)

情報提供元
アットホーム
クレイノルミエールⅢ おしゃれな外観です
賃料 5.1万円  (管理費等:4500円)
礼金・敷金 1ヶ月 / なし 保証金/敷引・償却 なし / -
交通
所在地 岡山県備前市伊部周辺地図
間取り 1K 専有面積 29.71m2
築年月 2017年7月 築年数 築8年6ヶ月
お問い合わせ先
ホームメイトFC岡山兼基店 (株)アクアホームメイト
お問い合わせ先
ホームメイトFC岡山兼基店 (株)アクアホームメイト

詳細情報

賃料 5.1万円 管理費等 4500円
敷金 なし 礼金 1ヶ月
保証金 なし 敷引・償却 -
更新料 16500円 契約期間 2年
カード決済 -
所在地 岡山県備前市伊部周辺地図
交通
建物名 クレイノルミエールⅢ 
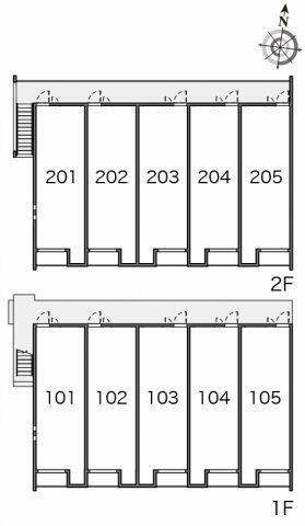
間取り 1K 築年月(築年数) 2017年7月(築8年6ヶ月)
専有面積 29.71㎡ 所在階/階数 2階/2階建
建物構造 木造  方位 南 
現況 空  駐車場 有 6,050円
入居可能時期 即時 住宅保険 あり 2年 26680円
情報提供元 アットホーム[1124291215] 情報公開日
情報更新日 - 次回更新予定日 随時

設備など

2階以上 最上階 - 角部屋 -
駐車場(近隣含) エアコン付き バス・トイレ別
室内洗濯機置き場 追焚機能 - オートロック付き -
モニタ付インターホン フローリング - バルコニー
ガスコンロ可 - 浴室乾燥機 24時間セキュリティ -
宅配ボックス - ペット相談可 - 二人入居可 -
設備 エアコン・給湯・バルコニー・バス・トイレ別・トイレ・洗濯機置場・室内洗濯機置き場・洗面所・浴室乾燥機・温水洗浄便座・モニタ付インターホン・防犯カメラ・家具付き・洗面所独立・インターネット対応・家電付き 
リフォーム履歴 -
リノベーション履歴 -
備考 駐輪場付きの物件です。来訪者の顔が確認できる、安心のTVインターホン付きです。室内設備は洗面所独立・浴室乾燥機など豊富に揃っており、過ごしやすいお部屋になっております。家でパソコンを使う人にぜひご検討いただきたいインターネット有り物件です。住まいは備前市で選びたい。そんな方は地元に強いホームメイトFC岡山兼基店にご連絡ください。気になる条件があればお気軽にスタッフまでお伝えください。安全のために、防犯カメラが設置されている物件です。直接会わずにインターホン越しに来訪者を確認できるので、トラブルの事前回避にも繋がります。室内設備は洗面所独立・浴室乾燥機などが揃っており、とても充実しています。ネットの回線をマンションに繋げています、パソコン使用可。ホームメイトFC岡山兼基店で、住まい探しをはじめてみませんか。住まいに関する疑問やご要望はお気軽にスタッフまでお申し付けください。・賃貸保証等:加入要(保証会社の利用 利用料の100%~120%)・鍵交換代:あり16,500円~・防犯カメラがあるだけで、犯罪の発生自体を防止することができます。アパートタイプのお部屋です。駐輪場付きのアパートです。ドアを開けたり直接会話しなくてもモニター越しに来訪者を確認できるモニター付きインタ/室内清掃費用 41800円 
特記事項

省エネ性能

エネルギー消費性能 -
断熱性能 -
目安光熱費 -

岡山県備前市伊部 周辺地図情報

地図
※地図上に表示される物件の位置は付近住所に所在することを表すものであり、実際の物件所在地とは異なる場合がございます。
   正確な物件所在地は、取扱い不動産会社にお問い合わせください。
お問い合わせ先
ホームメイトFC岡山兼基店 (株)アクアホームメイト

不動産会社情報

お問い合わせ先 商号:ホームメイトFC岡山兼基店 (株)アクアホームメイト
免許番号:岡山県知事免許(3)第5483号
所在地:岡山市中区兼基124-2
TEL:086-279-3824
取引態様:仲介
管理コード:352570000332905
所属協会など:(公社)岡山県宅地建物取引業協会会員、中国地区不動産公正取引協議会加盟
共有する
QRコード
お問い合わせ先
ホームメイトFC岡山兼基店 (株)アクアホームメイト

    備前市の暮らしデータ

    人口などの統計情報

    世帯数 13444世帯
    人口総数 31411人
    転入者数 997人
    転入率(人口1000人当たり)
    31.74人
    転出者数 1148人
    転出率(人口1000人当たり)
    36.55人
    土地平均価格
    住宅地
    15821円/m2
    商業地
    28900円/m2

    結婚・育児の助成金

    子育て関連の独自の取り組み (1)マイ保育園制度(1歳~4歳までのお子さんが3回無料で一時保育を受けることができる[8時30分~11時])。(2)弱視等治療用眼鏡等購入助成事業(9歳~15歳の児童の弱視等の治療用眼鏡の購入額の7割を助成。上限3万円)。(3)子育て応援隊登録制度(市民等の豊富な知識や特技を持つ人材を子育て応援隊として登録。子育て活動に活用し、地域の子育て力向上を図る)。(4)こども応援フェスタ(年1回)のイベント。(5)家庭育児応援金(3歳までの未就園児を家庭で育児している家庭に電子地域ポイント月2万円付与)。(6)子育て支援拠点施設での一時預かり事業の利用者負担額無料。
    出産祝い なし
    公立保育所数 0所(うち0歳児保育を実施している保育所:-)
    私立保育所数 0所(うち0歳児保育を実施している保育所:-)
    保育所入所待機児童数 0人
    認定こども園数 9園 預かり保育実施園数 公立:- 私立:-
    学校給食 【小学校】完全給食【中学校】完全給食
    公立中学校の学校選択制 一部実施
    子ども・学生等医療費助成<通院>対象年齢 18歳3月末まで 子ども・学生等医療費助成<入院>対象年齢 18歳3月末まで

    備前市の治安・ごみ収集情報

    公共料金・インフラ

    ガス料金(22m3使用した場合の月額) 大阪瓦斯株式会社4544円
    水道料金(口径20mmで20m3の月額) 備前市2992円
    下水道料金(20m3を使用した場合の月額) 備前市3872円
    下水道普及率 79.6%

    安心・安全

    建物火災出火件数 11件
    人口10000人当たり
    3.40件
    刑法犯認知件数 104件
    人口1000人当たり
    3.22件
    ハザード・防災マップ あり

    医療

    一般病院総数 4ヶ所
    一般診療所総数 31ヶ所
    小児科医師数 7人
    小児人口10000人当たり
    26.14人
    産婦人科医師数 0人
    15~49歳女性人口1万人当たり
    0.00人
    介護保険料基準額(月額) 5500円

    ごみ

    家庭ごみ収集(可燃ごみ) 有料
    備考
    指定ごみ袋有料。
    家庭ごみの分別方式 8分別22種〔可燃ごみ 金属類(スチール缶、アルミ缶、その他金属) 紙類(新聞、雑誌、段ボール、紙パック、雑紙、布類) ビン類(無色、茶色、その他の色、その他) プラスチック類(ペットボトル、廃プラスチック、白色トレイ発砲スチロール) その他資源(蛍光管、廃乾電池、体温計等) 小型混合物 埋立ごみ〕
    家庭ごみの戸別収集 未実施
    粗大ごみ収集 あり
    備考
    有料。臨戸収集。事前申込制。
    生ごみ処理機助成金制度 あり
    上限金額
    20000円
    上限比率
    50.0%
    暮らしデータ提供元:生活ガイド.com
    ※行政機関により公表していない地域及びデータがございます。東京23区以外の政令指定都市は、市全体のデータとして表示しています。
    ※提供データには細心の注意を払っておりますが、調査後に変更がある場合があります。 最新の情報につきましては各市区役所までお問い合わせいただくか、自治体HPなどをご確認ください。
    OCN×ドコモ光新規お申込みで合計最大137,280円相当おトク!特典の内訳・適用条件など詳細はこちら

    備前市内の各駅の住みやすさ

    他のエリアから探す

    備前市の詳細地域から賃貸物件を探す

    伊部浦伊部大内香登西香登本木谷西片上畠田東片上日生町寒河日生町日生穂浪三石吉永町吉永中

    近辺の市区から探す

    瀬戸内市和気郡和気町

    周辺の駅から探す

    赤穂線
    日生伊里備前片上西片上伊部香登長船邑久大富

    岡山県備前市で他のジャンルから探す


    掲載情報の著作権は提供元企業等に帰属します。
    Copyright:(C) 2025 At Home Co.,Ltd
    アプリで簡単 物件探し 大手不動産サイトの情報から一括検!プッシュ通知で物件を見逃さない
    App Storeからダウンロード Google Playで手に入れよう QRコード