アプリで簡単 物件探し 通知 共有 アプリならではの機能を使ってみる
賃貸マンション

プレサンス玉造駅前 玉造駅 1K 賃貸(賃貸マンション・アパート)

情報提供元
アットホーム
プレサンス玉造駅前
賃料 7.13万円  (管理費等:7760円)
礼金・敷金 10万円 / なし 保証金/敷引・償却 なし / -
交通
所在地 大阪府大阪市東成区東小橋1丁目周辺地図
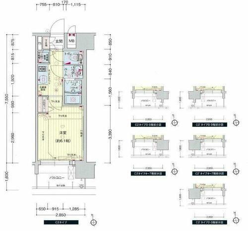
間取り 1K 専有面積 21.51m2
築年月 2016年8月 築年数 築9年5ヶ月
おすすめポイント
24時間換気システム

詳細情報

賃料 7.13万円 管理費等 7760円
敷金 なし 礼金 10万円
保証金 なし 敷引・償却 -
更新料 旧賃料の11000円 契約期間 1年
カード決済 -
所在地 大阪府大阪市東成区東小橋1丁目周辺地図
交通
  • JR大阪環状線 玉造駅 徒歩1分乗換案内
  • 大阪メトロ長堀鶴見緑地線 玉造駅 徒歩5分乗換案内
建物名 プレサンス玉造駅前 
間取り 1K(洋6.1) 築年月(築年数) 2016年8月(築9年5ヶ月)
専有面積 21.51㎡ 所在階/階数 8階/13階建
建物構造 RC  方位 南 
現況 居住中  駐車場 無    近くの駐車場を探す
入居可能時期 相談 住宅保険 あり
情報提供元 アットホーム[6988654835] 情報公開日
情報更新日 - 次回更新予定日 随時

設備など

2階以上 最上階 - 角部屋 -
駐車場(近隣含) - エアコン付き バス・トイレ別 -
室内洗濯機置き場 - 追焚機能 - オートロック付き
モニタ付インターホン フローリング - バルコニー -
ガスコンロ可 - 浴室乾燥機 24時間セキュリティ -
宅配ボックス ペット相談可 - 二人入居可 -
設備 エアコン・給湯・オートロック・エレベーター・CATV・BS端子・浴室乾燥機・シャンプードレッサ・温水洗浄便座・モニタ付インターホン・宅配BOX・防犯カメラ・コンロ2口以上・シューズボックス・インターネット無料 
リフォーム履歴 -
リノベーション履歴 -
備考 保証会社加入必須(法人契約は相談) ※プレサポ安心24 : 990円/月(物件によっては年払い) ※火災保険 個人11,000円~/1年 法人20,000円~/2年 ※図面と現状が異なる場合は現状優先となります。 (内装工事による各種仕様の変更・玄関及びバルコニーの形状・間取図面の反転タイプ・設備撤去等設備項目の変更、取扱など) ※退去時ハウスクリーニング代35000円※ギガプライズ無料WiFi2023年5月導入開始 J:COM電力限定・賃貸保証等:加入要(株式会社プレサンスギャランティ ギャランティ 初回50% 月1.5%・セーフティー 初回50% 年10,000円)・維持費等:プレサポ24990円/月・バルコニー:4.56平米/カギ交換代 29700円 
特記事項 24時間換気システム

省エネ性能

エネルギー消費性能 -
断熱性能 -
目安光熱費 -

大阪府大阪市東成区東小橋1丁目 周辺地図情報

地図
※地図上に表示される物件の位置は付近住所に所在することを表すものであり、実際の物件所在地とは異なる場合がございます。
   正確な物件所在地は、取扱い不動産会社にお問い合わせください。

不動産会社情報

お問い合わせ先 商号:嘉宝(株)
免許番号:大阪府知事免許(1)第66008号
所在地:大阪市中央区島之内1丁目21-24ファーストK501
TEL:06-6575-7676
取引態様:仲介
管理コード:
所属協会など:(公社)全日本不動産協会会員、(公社)近畿地区不動産公正取引協議会加盟
共有する
QRコード

    大阪市東成区の暮らしデータ

    人口などの統計情報

    世帯数 1464615世帯
    人口総数 2757642人
    転入者数 225000人
    転入率(人口1000人当たり)
    81.59人
    転出者数 188180人
    転出率(人口1000人当たり)
    68.24人
    土地平均価格
    住宅地
    270839円/m2
    商業地
    1966607円/m2

    結婚・育児の助成金

    子育て関連の独自の取り組み (1)子ども・子育てプラザ(在宅での子育て家庭や地域での子育て活動を支援し、また乳幼児期の親子や子育て支援者、就学期の子どもが集い交流する機会を提供する等、地域福祉活動の推進を図る)。(2)習い事・塾代助成事業(学習塾や家庭教師、文化・スポーツ教室等学校外教育にかかる費用を、1人当たり月額1万円まで助成。所得制限あり)。
    出産祝い なし
    公立保育所数 53所(うち0歳児保育を実施している保育所:52所)
    私立保育所数 395所(うち0歳児保育を実施している保育所:385所)
    保育所入所待機児童数 2人
    認定こども園数 117園 預かり保育実施園数 公立:52園 私立:-
    学校給食 【小学校】完全給食【中学校】完全給食
    公立中学校の学校選択制 実施
    子ども・学生等医療費助成<通院>対象年齢 18歳3月末まで 子ども・学生等医療費助成<入院>対象年齢 18歳3月末まで

    大阪市東成区の治安・ごみ収集情報

    公共料金・インフラ

    ガス料金(22m3使用した場合の月額) 大阪瓦斯株式会社4544円
    水道料金(口径20mmで20m3の月額) 大阪市2112円
    下水道料金(20m3を使用した場合の月額) 大阪市1276円
    下水道普及率 100.0%

    安心・安全

    建物火災出火件数 553件
    人口10000人当たり
    2.01件
    刑法犯認知件数 39408件
    人口1000人当たり
    14.32件
    ハザード・防災マップ あり

    医療

    一般病院総数 170ヶ所
    一般診療所総数 3734ヶ所
    小児科医師数 659人
    小児人口10000人当たり
    22.80人
    産婦人科医師数 380人
    15~49歳女性人口1万人当たり
    6.15人
    介護保険料基準額(月額) 9249円

    ごみ

    家庭ごみ収集(可燃ごみ) 無料
    備考
    -
    家庭ごみの分別方式 4分別11種〔普通ごみ(普通ごみ、危険ごみ[竹串、ガラス片、カミソリの刃]) 資源ごみ(空き缶・空きびん・金属製の生活用品・ペットボトル、スプレー缶・カセットボンベ) 容器包装プラスチック 古紙・衣類(新聞紙・折込チラシ、段ボール、紙パック、雑誌、衣類、その他の紙類)〕
    家庭ごみの戸別収集 一部実施(【ふれあい収集】65歳以上の一人暮らしの高齢者または高齢者だけの世帯、障がいがある方が居住される家庭で、ごみ出しが困難な人が対象)
    粗大ごみ収集 あり
    備考
    有料。戸別収集。事前申込制。申込時に収集日を決定。
    生ごみ処理機助成金制度 なし
    上限金額
    -
    上限比率
    -
    暮らしデータ提供元:生活ガイド.com
    ※行政機関により公表していない地域及びデータがございます。東京23区以外の政令指定都市は、市全体のデータとして表示しています。
    ※提供データには細心の注意を払っておりますが、調査後に変更がある場合があります。 最新の情報につきましては各市区役所までお問い合わせいただくか、自治体HPなどをご確認ください。
    OCN×ドコモ光新規お申込みで合計最大137,280円相当おトク!特典の内訳・適用条件など詳細はこちら

    大阪市東成区内の各駅の住みやすさ

    他のエリアから探す

    大阪市東成区の詳細地域から賃貸物件を探す

    大今里大今里西大今里南神路玉津中道中本東今里東小橋東中本深江北深江南

    近辺の市区から探す

    大阪市都島区大阪市福島区大阪市此花区大阪市西区大阪市港区大阪市大正区大阪市天王寺区大阪市浪速区大阪市西淀川区大阪市東淀川区大阪市生野区大阪市旭区大阪市城東区大阪市阿倍野区大阪市住吉区大阪市東住吉区大阪市西成区大阪市淀川区大阪市鶴見区大阪市住之江区大阪市平野区大阪市北区大阪市中央区堺市堺区堺市北区吹田市守口市八尾市大東市四條畷市

    周辺の駅から探す

    大阪環状線
    天王寺寺田町桃谷鶴橋玉造森ノ宮大阪城公園京橋桜ノ宮
    大阪市長堀鶴見緑地
    心斎橋長堀橋松屋町谷町六丁目玉造森ノ宮大阪ビジネスパーク京橋蒲生四丁目

    マンションライブラリーを見る

    プレサンス玉造駅前

    大阪府大阪市東成区で他のジャンルから探す


    掲載情報の著作権は提供元企業等に帰属します。
    Copyright:(C) 2025 At Home Co.,Ltd
    アプリで簡単 物件探し 大手不動産サイトの情報から一括検!プッシュ通知で物件を見逃さない
    App Storeからダウンロード Google Playで手に入れよう QRコード