アプリで簡単 物件探し 通知 共有 アプリならではの機能を使ってみる
賃貸一戸建て

糸魚川市鬼伏大型貸家倉庫付き 8LDK 賃貸(賃貸マンション・アパート)

情報提供元
アットホーム
糸魚川市鬼伏大型貸家倉庫付き
賃料 6.8万円  (管理費等:7000円)
礼金・敷金 1ヶ月 / なし 保証金/敷引・償却 なし / -
交通
  • JR北陸新幹線糸魚川駅徒歩10000m
所在地 新潟県糸魚川市大字鬼伏周辺地図
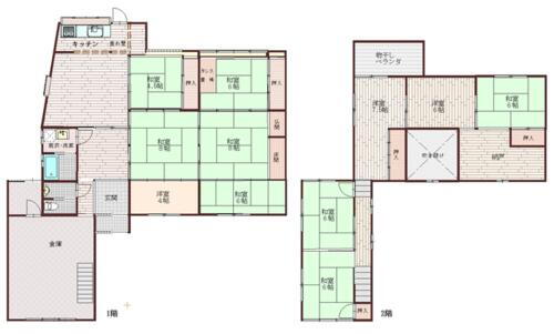
間取り 8LDK 専有面積 150.71m2
築年月 1974年5月 築年数 築51年8ヶ月
おすすめポイント
ペット相談可・楽器相談・閑静な住宅街・駐車場2台分・事務所使用可

詳細情報

賃料 6.8万円 管理費等 7000円
敷金 なし 礼金 1ヶ月
保証金 なし 敷引・償却 -
更新料 新賃料の1.5ヶ月分 契約期間 2年
カード決済 -
所在地 新潟県糸魚川市大字鬼伏周辺地図
交通
  • JR北陸新幹線糸魚川駅徒歩10000m
建物名 糸魚川市鬼伏大型貸家倉庫付き 
間取り 8LDK(和 8・8・6・6・4.5・6・6 洋 4 LDK 12) 築年月(築年数) 1974年5月(築51年8ヶ月)
専有面積 150.71㎡ 所在階/階数 2階建
建物構造 木造  方位 西 
現況 居住中  駐車場 有 3,000円
入居可能時期 2025年12月30日 住宅保険 あり損保ジャパン
情報提供元 アットホーム[6975667226] 情報公開日
情報更新日 - 次回更新予定日 随時

設備など

2階以上 - 最上階 - 角部屋 -
駐車場(近隣含) エアコン付き バス・トイレ別
室内洗濯機置き場 追焚機能 - オートロック付き -
モニタ付インターホン - フローリング バルコニー -
ガスコンロ可 浴室乾燥機 - 24時間セキュリティ -
宅配ボックス ペット相談可 二人入居可 -
設備 エアコン・給湯・バス・トイレ別・収納スペース・洗濯機置場・室内洗濯機置き場・シャワー・冷蔵庫・都市ガス・洗面台・フローリング・照明器具・ガスコンロ可・温水洗浄便座・出窓・宅配BOX・駐輪場・専用庭・家具付き・洗面所独立・バイク置き場・シューズボックス 
リフォーム履歴 -
リノベーション履歴 -
備考 エアコン新設2基・床無垢り仕上げ・畳表替え及び新床食事処利用は相談の上(賃貸条件および賃料等変更の場合があります)退去時清掃代10万円(返金無)1階全部・2階の和室2部屋と道路側の物置の賃貸・賃貸保証等:加入要(2年間で月の総合計額の2分の一相当額)・海まで8号線の道路の下から即海岸へ。石庭が自慢の古民家・囲炉裏付き・トイレ男・条件等変更有り・駐車場は市営P2~3台借り可(1台3000円)・法人契約も可(人数により家賃変更有り)能生インター近し・バイク置場:有(無料)・駐輪場:有(無料)・仲介手数料:1ヶ月 
特記事項 ペット相談可・楽器相談・閑静な住宅街・駐車場2台分・事務所使用可

省エネ性能

エネルギー消費性能 -
断熱性能 -
目安光熱費 -

新潟県糸魚川市大字鬼伏 周辺地図情報

地図
※地図上に表示される物件の位置は付近住所に所在することを表すものであり、実際の物件所在地とは異なる場合がございます。
   正確な物件所在地は、取扱い不動産会社にお問い合わせください。
アピールポイント
釣り人に大人気の日本海が道向うに有りマリンパーク能生道の駅・インターも近しサイクリングロード山側に有り私鉄で日本海越後ときめき鉄道ひすい線有り 囲炉裏付き和室ありタンス・ソファー・サイドボード・洗濯機・食器等 無料貸し可

不動産会社情報

お問い合わせ先 商号:(有)大地クリエート
免許番号:群馬県知事免許(8)第5336号
所在地:高崎市箕郷町上芝414-51
TEL:027-371-8192
取引態様:仲介
管理コード:
所属協会など:(一社)群馬県宅地建物取引業協会会員、(公社)首都圏不動産公正取引協議会加盟
共有する
QRコード

糸魚川市の暮らしデータ

人口などの統計情報

世帯数 16402世帯
人口総数 38859人
転入者数 821人
転入率(人口1000人当たり)
21.13人
転出者数 1077人
転出率(人口1000人当たり)
27.72人
土地平均価格
住宅地
19430円/m2
商業地
43200円/m2

結婚・育児の助成金

子育て関連の独自の取り組み (1)妊婦健診は全回助成。(2)さんさん子育てサポート事業(子育てする世帯に優遇カードを交付)。(3)妊産婦医療費助成制度で保険診療の自己負担0円(妊娠届出~出産した月の翌々月末日まで)。(4)インフルエンザ予防接種費用の一部助成(子ども・妊婦)及びおたふくかぜ予防接種費用の一部助成(2回)。(5)母乳相談費用助成(1回の出産で3回まで、上限3千円/回)。(6)出産時交通費助成(タクシー上限3万円、1回分)。(7)出産時宿泊費用助成(妊婦・付添人、上限5千円/泊、上限5泊/人)。(8)妊婦情報登録制度(出産時救急車利用に備えての登録制度)。(9)ブックスタート事業(妊娠届出、10ヶ月健診、2歳児歯科健診の際、絵本をプレゼント)。
出産祝い あり
公立保育所数 7所(うち0歳児保育を実施している保育所:7所)
私立保育所数 5所(うち0歳児保育を実施している保育所:5所)
保育所入所待機児童数 0人
認定こども園数 4園 預かり保育実施園数 公立:2園 私立:-
学校給食 【小学校】完全給食【中学校】完全給食
公立中学校の学校選択制 未実施
子ども・学生等医療費助成<通院>対象年齢 18歳3月末まで 子ども・学生等医療費助成<入院>対象年齢 18歳3月末まで

糸魚川市の治安・ごみ収集情報

公共料金・インフラ

ガス料金(22m3使用した場合の月額) 糸魚川市3597円
水道料金(口径20mmで20m3の月額) 糸魚川市(白馬 簡易水道)1676円
糸魚川市(糸魚川区域)2860円
糸魚川市(能生区域 簡易水道)2860円
糸魚川市(能生区域)3256円
糸魚川市(西海・小滝・姫川・早川 簡易水道)2200円
糸魚川市(青海区域 簡易水道)1914円
糸魚川市(青海区域)1969円
下水道料金(20m3を使用した場合の月額) 糸魚川市3614円
下水道普及率 87.5%

安心・安全

建物火災出火件数 6件
人口10000人当たり
1.47件
刑法犯認知件数 148件
人口1000人当たり
3.63件
ハザード・防災マップ あり

医療

一般病院総数 2ヶ所
一般診療所総数 30ヶ所
小児科医師数 6人
小児人口10000人当たり
17.41人
産婦人科医師数 2人
15~49歳女性人口1万人当たり
3.71人
介護保険料基準額(月額) 5400円

ごみ

家庭ごみ収集(可燃ごみ) 一部有料
備考
焼却施設へ自己搬入し、30kgを超える家庭ごみを持ち込んだ場合、処分手数料を徴収30kgを超えて500kg以下の場合 1,000円(破砕する場合:1,500円)500kgを超える場合 1,000円に500kgを超えた重量 100kgにつき300円を加算した額(1,500円に500kgを超えた重量 100kgにつき450円を加算した額)
家庭ごみの分別方式 8分別21種〔燃やせるごみ プラスチック製容器包装類 ペットボトル 白色トレー びん類(茶色、無色透明、その他) 金物類・小型電化製品(鍋類、スチール缶、アルミ缶、小型電化製品、スプレー缶、自転車) 紙・布類(紙パック、新聞紙、ダンボール、雑誌・その他紙類、布類) 燃やせないごみ・埋立ごみ(プラスチック製品類、ゴム・皮革製品類、ガラス・陶磁器類)〕拠点回収:廃乾電池、廃蛍光管、廃ライター、廃食用油
家庭ごみの戸別収集 未実施
粗大ごみ収集 なし
備考
-
生ごみ処理機助成金制度 あり
上限金額
70000円
上限比率
75.0%
暮らしデータ提供元:生活ガイド.com
※行政機関により公表していない地域及びデータがございます。東京23区以外の政令指定都市は、市全体のデータとして表示しています。
※提供データには細心の注意を払っておりますが、調査後に変更がある場合があります。 最新の情報につきましては各市区役所までお問い合わせいただくか、自治体HPなどをご確認ください。
OCN×ドコモ光新規お申込みで合計最大137,280円相当おトク!特典の内訳・適用条件など詳細はこちら

糸魚川市内の各駅の住みやすさ

他のエリアから探す

糸魚川市の詳細地域から賃貸物件を探す

一の宮上刈大字鬼伏大字木浦大字須沢大字平大字田海大字柱道大字平牛大字大和川京ケ峰清崎寺島東寺町本町南寺島

新潟県糸魚川市で他のジャンルから探す


掲載情報の著作権は提供元企業等に帰属します。
Copyright:(C) 2025 At Home Co.,Ltd
アプリで簡単 物件探し 大手不動産サイトの情報から一括検!プッシュ通知で物件を見逃さない
App Storeからダウンロード Google Playで手に入れよう QRコード