アプリで簡単 物件探し 通知 共有 アプリならではの機能を使ってみる
賃貸一戸建て

神奈川県相模原市南区東林間6丁目 東林間駅 3K 賃貸(賃貸マンション・アパート)

情報提供元
アットホーム
賃料 5.9万円  (管理費等:-)
礼金・敷金 なし / 2ヶ月 保証金/敷引・償却 なし / -
交通
所在地 神奈川県相模原市南区東林間6丁目周辺地図
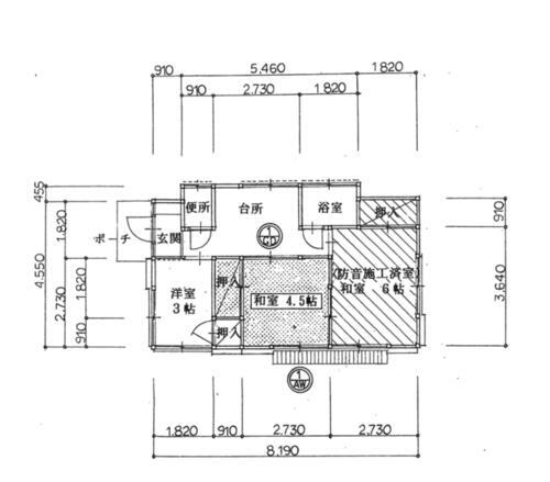
間取り 3K 専有面積 39.66m2
築年月 1968年6月 築年数 築57年7ヶ月
おすすめポイント
ルームシェア可

詳細情報

賃料 5.9万円 管理費等 -
敷金 2ヶ月 礼金 なし
保証金 なし 敷引・償却 -
更新料 新賃料の1ヶ月分 契約期間 定期借家 2年
カード決済 -
所在地 神奈川県相模原市南区東林間6丁目周辺地図
交通
  • 小田急江ノ島線 東林間駅 徒歩5分乗換案内
  • 東急田園都市線 中央林間駅 徒歩19分乗換案内
建物名  
間取り 3K(和 6・4.5 洋 3) 築年月(築年数) 1968年6月(築57年7ヶ月)
専有面積 39.66㎡ 所在階/階数 平屋建て
建物構造 木造  方位  
現況 空  駐車場 近有 11,000円
入居可能時期 相談 住宅保険 あり当社指定の火災 2年 20500円
情報提供元 アットホーム[6987074692] 情報公開日
情報更新日 - 次回更新予定日 随時

設備など

2階以上 - 最上階 - 角部屋 -
駐車場(近隣含) エアコン付き バス・トイレ別
室内洗濯機置き場 - 追焚機能 - オートロック付き -
モニタ付インターホン - フローリング - バルコニー -
ガスコンロ可 浴室乾燥機 - 24時間セキュリティ -
宅配ボックス - ペット相談可 - 二人入居可 -
設備 エアコン・給湯・バス・トイレ別・トイレ・収納スペース・シャワー・プロパンガス・ガスコンロ可・シューズボックス・浴室に窓あり 
リフォーム履歴 -
リノベーション履歴 -
備考 駅徒歩5分 生活便利 閑静な住宅街 スーパー、コンビニ近くにあり・賃貸保証等:加入要(賃料等合計50%(最低保証料20,000円)/月額保証料:1.0%(最低保証料400円))・鍵交換代:あり16,500円~・駅徒歩5分 生活便利 閑静な住宅街・バイク置場:なし・仲介手数料:1.1ヶ月/ホームマイスター24(2年間・更新必須) 16500円 
特記事項 ルームシェア可

省エネ性能

エネルギー消費性能 -
断熱性能 -
目安光熱費 -

神奈川県相模原市南区東林間6丁目 周辺地図情報

地図
※地図上に表示される物件の位置は付近住所に所在することを表すものであり、実際の物件所在地とは異なる場合がございます。
   正確な物件所在地は、取扱い不動産会社にお問い合わせください。
アピールポイント
駅徒歩5分 生活便利 閑静な住宅街

不動産会社情報

お問い合わせ先 商号:(有)システムブレイン
免許番号:神奈川県知事免許(8)第19456号
所在地:相模原市南区東林間5丁目14-1グレースタウンコート1F
TEL:042-748-3245
取引態様:仲介
管理コード:
所属協会など:(公社)神奈川県宅地建物取引業協会会員、(公社)首都圏不動産公正取引協議会加盟
共有する
QRコード

相模原市南区の暮らしデータ

人口などの統計情報

世帯数 332249世帯
人口総数 717861人
転入者数 35065人
転入率(人口1000人当たり)
48.85人
転出者数 31817人
転出率(人口1000人当たり)
44.32人
土地平均価格
住宅地
158342円/m2
商業地
275407円/m2

結婚・育児の助成金

子育て関連の独自の取り組み (1)妊婦健診(16回助成)。(2)電子母子健康手帳アプリ(「さがプリコ」)。(3)さがみはら子育てきずなLINE(メールマガジン)。(4)新生児聴覚検査事業。(5)ふれあい親子サロン育児相談、身体計測、栄養相談、親子あそび等。(6)ブックスタート・セカンドブック事業(4ヶ月児、2歳6ヶ月児親子に絵本をプレゼント)。(7)産婦等を対象とした家事の支援を行う訪問支援事業(2022年10月から)。(8)移動式子どもの遊び場。(9)子育て世帯等中古住宅購入・改修費補助事業(子育て世帯や若年世帯が中古住宅を購入する場合や親世帯との同居に伴い親世帯が所有する住宅の改修を行った場合に補助金を支給)。(10)さがみはら休日一時保育事業。(11)子どもの施設使用料等の無料化。
出産祝い なし
公立保育所数 22所(うち0歳児保育を実施している保育所:17所)
私立保育所数 72所(うち0歳児保育を実施している保育所:72所)
保育所入所待機児童数 7人
認定こども園数 74園 預かり保育実施園数 公立:- 私立:17園
学校給食 【小学校】完全給食【中学校】完全給食 家庭弁当等との選択制/デリバリー形式[運搬:ランチボックス、内容:完全給食]
公立中学校の学校選択制 一部実施(学校選択制の分類の一つである「特定地域選択制」に相当する「指定変更許可区域」を導入)
子ども・学生等医療費助成<通院>対象年齢 18歳3月末まで 子ども・学生等医療費助成<入院>対象年齢 18歳3月末まで

相模原市南区の治安・ごみ収集情報

公共料金・インフラ

ガス料金(22m3使用した場合の月額) 東京瓦斯株式会社(東京地区等)3926円
日本瓦斯株式会社(もえぎ野地区)6358円
水道料金(口径20mmで20m3の月額) 相模原市(牧野中央 簡易水道)2685円
相模原市(葛原 簡易水道)2685円
相模原市(青根 簡易水道)1760円
神奈川県営水道2988円
下水道料金(20m3を使用した場合の月額) 相模原市2036円
下水道普及率 97.5%

安心・安全

建物火災出火件数 98件
人口10000人当たり
1.35件
刑法犯認知件数 4250件
人口1000人当たり
5.86件
ハザード・防災マップ あり

医療

一般病院総数 32ヶ所
一般診療所総数 453ヶ所
小児科医師数 135人
小児人口10000人当たり
17.05人
産婦人科医師数 62人
15~49歳女性人口1万人当たり
4.44人
介護保険料基準額(月額) 6650円

ごみ

家庭ごみ収集(可燃ごみ) 無料
備考
一時多量ごみ等の清掃工場に直接持ち込まれた家庭ごみについては有料。
家庭ごみの分別方式 3分別15種〔一般ごみ 乾電池 資源(びん類、かん類、金物類、布類、蛍光管・水銀体温計、使用済食用油、紙類[新聞、雑誌・雑がみ、段ボール、紙パック、紙製容器包装]、容器包装プラ[プラ製容器包装、ペットボトル])〕 拠点回収:使用済小型家電
家庭ごみの戸別収集 一部実施(相模原市の主要駅9駅の周辺において、夜間戸別収集を実施。[小田急相模原駅、上溝駅、相模大野駅、相模原駅、相武台前駅、橋本駅、東林間駅、淵野辺駅、矢部駅])
粗大ごみ収集 あり
備考
有料。事前申込制。
生ごみ処理機助成金制度 あり
上限金額
20000円
上限比率
50.0%
暮らしデータ提供元:生活ガイド.com
※行政機関により公表していない地域及びデータがございます。東京23区以外の政令指定都市は、市全体のデータとして表示しています。
※提供データには細心の注意を払っておりますが、調査後に変更がある場合があります。 最新の情報につきましては各市区役所までお問い合わせいただくか、自治体HPなどをご確認ください。
OCN×ドコモ光新規お申込みで合計最大137,280円相当おトク!特典の内訳・適用条件など詳細はこちら

相模原市南区内の各駅の住みやすさ


掲載情報の著作権は提供元企業等に帰属します。
Copyright:(C) 2025 At Home Co.,Ltd
アプリで簡単 物件探し 大手不動産サイトの情報から一括検!プッシュ通知で物件を見逃さない
App Storeからダウンロード Google Playで手に入れよう QRコード