アプリで簡単 物件探し 通知 共有 アプリならではの機能を使ってみる
賃貸アパート

D-Paina笹下 港南中央駅 2LDK 賃貸(賃貸マンション・アパート)

情報提供元
アットホーム
D-Paina笹下
賃料 14.3万円  (管理費等:6500円)
礼金・敷金 2ヶ月 / なし 保証金/敷引・償却 なし / -
交通
所在地 神奈川県横浜市港南区笹下5丁目周辺地図
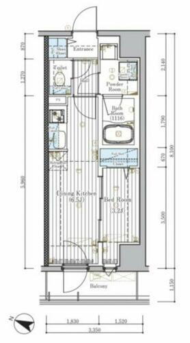
間取り 2LDK 専有面積 53.81m2
築年月 2025年12月 築年数 新築
おすすめポイント
ペット相談可・角部屋・24時間換気システム・保証人不要/代行 ・初期費用カード決済可
お問い合わせ先
アルプスの賃貸・関内駅前支店 (株)アルプス建設
お問い合わせ先
アルプスの賃貸・関内駅前支店 (株)アルプス建設

詳細情報

賃料 14.3万円 管理費等 6500円
敷金 なし 礼金 2ヶ月
保証金 なし 敷引・償却 -
更新料 新賃料の1ヶ月分 契約期間 2年
カード決済 初期費用カード決済可
所在地 神奈川県横浜市港南区笹下5丁目周辺地図
交通
  • 横浜市ブルーライン 港南中央駅 徒歩14分乗換案内
  • 京急本線 屏風浦駅 徒歩20分乗換案内
  • JR京浜東北・根岸線 洋光台駅 徒歩29分乗換案内
建物名 D-Paina笹下 
間取り 2LDK(LDK12.6、洋6.1、洋4.1) 築年月(築年数) 2025年12月 新築
専有面積 53.81㎡ 所在階/階数 2階/3階建
建物構造 軽量鉄骨  方位 南東 
現況 未完成  駐車場 近有 16,500円
入居可能時期 2025年12月24日 住宅保険 あり
情報提供元 アットホーム[1121769915] 情報公開日
情報更新日 - 次回更新予定日 随時

設備など

2階以上 最上階 - 角部屋
駐車場(近隣含) エアコン付き バス・トイレ別
室内洗濯機置き場 追焚機能 オートロック付き
モニタ付インターホン フローリング バルコニー
ガスコンロ可 浴室乾燥機 24時間セキュリティ -
宅配ボックス ペット相談可 二人入居可 -
設備 エアコン・オートロック・バルコニー・バス・トイレ別・トイレ・収納スペース・洗濯機置場・室内洗濯機置き場・洗面所・シャワー・BS端子・追焚機能・都市ガス・フローリング・浴室乾燥機・ウォークインクローゼット・照明器具・ガスコンロ可・温水洗浄便座・システムキッチン・カウンターキッチン・モニタ付インターホン・宅配BOX・クローゼット・CS・カードキー・モニタ付オートロック・複層ガラス・洗面所独立・シューズインクローク・インターネット対応・3口以上コンロ・インターネット無料 
リフォーム履歴 -
リノベーション履歴 -
備考 「D-Paina笹下」のご紹介です。新築☆複数沿線利用可能☆敷金不要☆ペット飼育相談☆オートロックでセキュリティ面安心です。追焚や浴室乾燥機など人気の設備充実。嬉しいネット使用料無料物件☆初期費用の分割、その他諸条件お気軽にご相談ください。65歳以上の方の契約は定期借家契約(2年再契約型)、機関保証の加入が必須となります(初回保証料:月額賃料等合計額×100%,更新:2万円/1年)初期費用を分割可能です!(スムーズ・クレジット決済)・賃貸保証等:加入要(初回保証料:35.000円 月額保証料1%+800円/月)・鍵交換代:あり16,500円~・地元で40年。取り扱い物件数10万件以上。他社様で出している物件も同条件でご案内可能です。保証人・初期費用・急なお引越しなど、なんでもご相談下さい。横浜のお部屋探しは地域密着のアルプスの賃貸へ。/ICロック電池 2750円/室内清掃費用 77000円 
特記事項 ペット相談可・角部屋・24時間換気システム・保証人不要/代行 ・初期費用カード決済可

省エネ性能

エネルギー消費性能 -
断熱性能 -
目安光熱費 -

神奈川県横浜市港南区笹下5丁目 周辺地図情報

地図
※地図上に表示される物件の位置は付近住所に所在することを表すものであり、実際の物件所在地とは異なる場合がございます。
   正確な物件所在地は、取扱い不動産会社にお問い合わせください。
お問い合わせ先
アルプスの賃貸・関内駅前支店 (株)アルプス建設

不動産会社情報

お問い合わせ先 商号:アルプスの賃貸・関内駅前支店 (株)アルプス建設
免許番号:神奈川県知事免許(10)第14677号
所在地:横浜市中区翁町1丁目1-6産友パークビル2F
TEL:045-227-5755
取引態様:仲介
管理コード:13140000868746
所属協会など:(公社)神奈川県宅地建物取引業協会会員、(公社)首都圏不動産公正取引協議会加盟
共有する
QRコード
お問い合わせ先
アルプスの賃貸・関内駅前支店 (株)アルプス建設

    横浜市港南区の暮らしデータ

    人口などの統計情報

    世帯数 1744208世帯
    人口総数 3752969人
    転入者数 217258人
    転入率(人口1000人当たり)
    57.89人
    転出者数 201570人
    転出率(人口1000人当たり)
    53.71人
    土地平均価格
    住宅地
    254434円/m2
    商業地
    1043863円/m2

    結婚・育児の助成金

    子育て関連の独自の取り組み 横浜市私立幼稚園等預かり保育事業(横浜市が定めた基準(実施日、時間、職員配置等)を満たし、横浜市の認定を受けた幼稚園・認定こども園が実施する事業。市内在住の園児の保護者が就労や病気等で、園の正規教育時間の前後に家庭で保育ができない場合に、利用可能。3歳児~5歳児は無料、満3歳児は(a)私学助成を受ける幼稚園の場合、月額9,000円、(b)新制度に移行した園の場合、0円~9,000円)。
    出産祝い あり
    公立保育所数 56所(うち0歳児保育を実施している保育所:41所)
    私立保育所数 813所(うち0歳児保育を実施している保育所:716所)
    保育所入所待機児童数 5人
    認定こども園数 70園 預かり保育実施園数 公立:- 私立:213園
    学校給食 【小学校】完全給食【中学校】家庭弁当等・業者弁当との選択制/デリバリー形式[運搬:ランチボックス、内容:完全給食]
    公立中学校の学校選択制 一部実施(特定地域選択制[特別調整通学区域])
    子ども・学生等医療費助成<通院>対象年齢 中学校卒業まで 子ども・学生等医療費助成<入院>対象年齢 中学校卒業まで

    横浜市港南区の治安・ごみ収集情報

    公共料金・インフラ

    ガス料金(22m3使用した場合の月額) 東京瓦斯株式会社(東京地区等)3926円
    水道料金(口径20mmで20m3の月額) 横浜市3017円
    下水道料金(20m3を使用した場合の月額) 横浜市2035円
    下水道普及率 100.0%

    安心・安全

    建物火災出火件数 438件
    人口10000人当たり
    1.16件
    刑法犯認知件数 16059件
    人口1000人当たり
    4.25件
    ハザード・防災マップ あり

    医療

    一般病院総数 113ヶ所
    一般診療所総数 3201ヶ所
    小児科医師数 682人
    小児人口10000人当たり
    15.98人
    産婦人科医師数 346人
    15~49歳女性人口1万人当たり
    4.58人
    介護保険料基準額(月額) 6620円

    ごみ

    家庭ごみ収集(可燃ごみ) 無料
    備考
    -
    家庭ごみの分別方式 7分別9種〔燃やすごみ 燃えないごみ スプレー缶 乾電池 プラスチック製容器包装 缶・びん・ペットボトル(缶、びん、ペットボトル) 小さな金属類〕
    家庭ごみの戸別収集 一部実施(【ふれあい収集】家庭ごみ・粗大ごみを集積場所まで持ち出すことができない高齢者や障害のある方などを対象にごみ出しの支援を実施。【狭あい道路収集】道路が狭く収集車が通行することができないため、集積場所が自宅近くに設けられない地域において、軽四輪車でごみを収集)
    粗大ごみ収集 あり
    備考
    有料。事前申込制。自宅近くまでもしくは市内4ヶ所に設置されている自己搬入ヤードへ持ち込み。申し込みは電話、またはインターネット。
    生ごみ処理機助成金制度 なし
    上限金額
    -
    上限比率
    -
    暮らしデータ提供元:生活ガイド.com
    ※行政機関により公表していない地域及びデータがございます。東京23区以外の政令指定都市は、市全体のデータとして表示しています。
    ※提供データには細心の注意を払っておりますが、調査後に変更がある場合があります。 最新の情報につきましては各市区役所までお問い合わせいただくか、自治体HPなどをご確認ください。
    OCN×ドコモ光新規お申込みで合計最大137,280円相当おトク!特典の内訳・適用条件など詳細はこちら

    横浜市港南区内の各駅の住みやすさ

    他のエリアから探す

    横浜市港南区の詳細地域から賃貸物件を探す

    大久保上大岡西上大岡東上永谷港南港南台港南中央通最戸笹下下永谷芹が谷野庭町東芹が谷東永谷日限山日野日野中央日野南丸山台

    近辺の市区から探す

    横浜市神奈川区横浜市西区横浜市中区横浜市南区横浜市保土ケ谷区横浜市磯子区横浜市金沢区横浜市戸塚区横浜市旭区横浜市瀬谷区横浜市栄区横浜市泉区鎌倉市藤沢市逗子市

    周辺の駅から探す

    京浜東北・根岸線
    山手根岸磯子新杉田洋光台港南台本郷台大船
    横浜市ブルーライン
    吉野町蒔田弘明寺上大岡港南中央上永谷下永谷舞岡戸塚
    京浜急行電鉄本線
    南太田井土ヶ谷弘明寺上大岡屏風浦杉田京急富岡能見台金沢文庫

    神奈川県横浜市港南区で他のジャンルから探す


    掲載情報の著作権は提供元企業等に帰属します。
    Copyright:(C) 2025 At Home Co.,Ltd
    アプリで簡単 物件探し 大手不動産サイトの情報から一括検!プッシュ通知で物件を見逃さない
    App Storeからダウンロード Google Playで手に入れよう QRコード