アプリで簡単 物件探し 通知 共有 アプリならではの機能を使ってみる
賃貸一戸建て

南矢野目一戸建 貸家 卸町駅 5SLDK 賃貸(賃貸マンション・アパート)

情報提供元
アットホーム
南矢野目一戸建 貸家
賃料 20万円  (管理費等:-)
礼金・敷金 2ヶ月 / 2ヶ月 保証金/敷引・償却 なし / -
交通
所在地 福島県福島市南矢野目字端下周辺地図
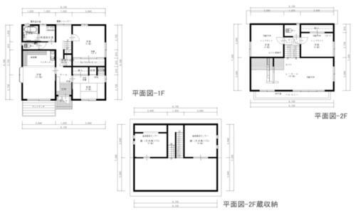
間取り 5SLDK 専有面積 139.94m2
築年月 2004年1月 築年数 築21年11ヶ月
おすすめポイント
ペット相談可・事務所使用可・駐車場3台分以上・ルームシェア可・保証人不要/代行
お問い合わせ先
ユーコウ(株) ユイエステート不動産事業部
お問い合わせ先
ユーコウ(株) ユイエステート不動産事業部

詳細情報

賃料 20万円 管理費等 -
敷金 2ヶ月 礼金 2ヶ月
保証金 なし 敷引・償却 -
更新料 更新料なし 契約期間 2年
カード決済 -
所在地 福島県福島市南矢野目字端下周辺地図
交通
建物名 南矢野目一戸建 貸家 
間取り 5SLDK(和 6 洋 12・8・8・6 LDK 20 S 8・8) 築年月(築年数) 2004年1月(築21年11ヶ月)
専有面積 139.94㎡ 所在階/階数 2階建
建物構造 木造  方位 南 
現況 居住中  駐車場 有 無料
入居可能時期 相談 住宅保険 あり借主が別途加入
情報提供元 アットホーム[6987937799] 情報公開日
情報更新日 - 次回更新予定日 随時

設備など

2階以上 - 最上階 - 角部屋 -
駐車場(近隣含) エアコン付き バス・トイレ別
室内洗濯機置き場 追焚機能 - オートロック付き -
モニタ付インターホン - フローリング バルコニー
ガスコンロ可 - 浴室乾燥機 - 24時間セキュリティ -
宅配ボックス - ペット相談可 二人入居可 -
設備 エアコン・ロフト・給湯・バルコニー・バス・トイレ別・収納スペース・洗濯機置場・室内洗濯機置き場・シャワー・フローリング・ウォークインクローゼット・照明器具・シャンプードレッサ・温水洗浄便座・トイレ2ヶ所・専用庭・IHクッキングヒータ・オートバス・洗面所独立・シューズボックス・ウッドデッキ 
リフォーム履歴 -
リノベーション履歴 -
備考 本物件は西暦2056年3月31日までの定期借地権上の建物である為、借地期間満了をもって建物は取り壊されるので、借地期間を超えての入居はできません。予めご了承ください。・バルコニー:8.28平米・ミサワホーム施工(蔵のある家)1F・2F共にキッチン有、2世帯居住向け。社宅住まいOK、様々な活用ができます♪・仲介手数料:200,000円 
特記事項 ペット相談可・事務所使用可・駐車場3台分以上・ルームシェア可・保証人不要/代行

省エネ性能

エネルギー消費性能 -
断熱性能 -
目安光熱費 -

福島県福島市南矢野目字端下 周辺地図情報

地図
※地図上に表示される物件の位置は付近住所に所在することを表すものであり、実際の物件所在地とは異なる場合がございます。
   正確な物件所在地は、取扱い不動産会社にお問い合わせください。
お問い合わせ先
ユーコウ(株) ユイエステート不動産事業部
アピールポイント
南矢野目の広々5SLDK、ミサワホーム施工の安心品質。駐車場4台完備で、ご家族の車も来客用も余裕の対応。蔵収納+物置付きで季節物やアウトドア用品もたっぷり収納できます。ペット飼育や事務所利用もご相談可能。自由度の高い住まい方を叶えます。

不動産会社情報

お問い合わせ先 商号:ユーコウ(株) ユイエステート不動産事業部
免許番号:福島県知事免許(1)第3703号
所在地:福島市森合字戸ノ内41-9森合BASEスタジオ
TEL:024-573-6280
取引態様:仲介
管理コード:
所属協会など:(公社)全日本不動産協会会員、東北地区不動産公正取引協議会加盟
共有する
QRコード
お問い合わせ先
ユーコウ(株) ユイエステート不動産事業部

福島市の暮らしデータ

人口などの統計情報

世帯数 121655世帯
人口総数 267924人
転入者数 8244人
転入率(人口1000人当たり)
30.77人
転出者数 8740人
転出率(人口1000人当たり)
32.62人
土地平均価格
住宅地
44068円/m2
商業地
75025円/m2

結婚・育児の助成金

子育て関連の独自の取り組み (1)こんにちは赤ちゃん応援隊(市内にお住まいの赤ちゃんとお母さんが健やかに毎日を過ごせるよう、生後2ヶ月ごろの赤ちゃんがいる家庭を訪問。応援隊の皆さんは、地域の身近な子育て支援者として研修した後、市が委嘱した子育てに関心の高い方で、地域の子育て支援情報を提供しながら悩みや相談に傾聴する。また、必要に応じて地区担当保健師につなぐ)。(2)ベビーシート・チャイルドシートの無料貸し出し。(3)ファミリーサポート事業(「お子さんを預かってほしいかた」と「お子さんを預かることができるかた」が会員となり、子どもを預け・預かる、地域が主体となっておこなう子育て支援の有償ボランティア活動)。
出産祝い あり
公立保育所数 11所(うち0歳児保育を実施している保育所:6所)
私立保育所数 34所(うち0歳児保育を実施している保育所:34所)
保育所入所待機児童数 0人
認定こども園数 15園 預かり保育実施園数 公立:10園 私立:11園
学校給食 【小学校】完全給食【中学校】完全給食
公立中学校の学校選択制 一部実施
子ども・学生等医療費助成<通院>対象年齢 18歳3月末まで 子ども・学生等医療費助成<入院>対象年齢 18歳3月末まで

福島市の治安・ごみ収集情報

公共料金・インフラ

ガス料金(22m3使用した場合の月額) 福島ガス株式会社5554円
水道料金(口径20mmで20m3の月額) 福島市5093円
下水道料金(20m3を使用した場合の月額) 福島市2860円
下水道普及率 67.5%

安心・安全

建物火災出火件数 40件
人口10000人当たり
1.41件
刑法犯認知件数 1207件
人口1000人当たり
4.27件
ハザード・防災マップ あり

医療

一般病院総数 15ヶ所
一般診療所総数 249ヶ所
小児科医師数 94人
小児人口10000人当たり
32.18人
産婦人科医師数 43人
15~49歳女性人口1万人当たり
8.83人
介護保険料基準額(月額) 6500円

ごみ

家庭ごみ収集(可燃ごみ) 無料
備考
-
家庭ごみの分別方式 3分別15種〔可燃ごみ 不燃ごみ(ガラス・金属類・陶器・硬質プラスチック、家電製品、カセットボンベ、ライター) 資源物(カン類、ビン類[飲料用びん、ビールびん・一升びん]、ペットボトル、プラスチック製容器包装、紙パック、段ボール、新聞紙・チラシ、雑誌・本、その他の紙製容器包装)〕 拠点回収:使用済小型家電
家庭ごみの戸別収集 一部実施(ふれあい訪問収集)
粗大ごみ収集 あり
備考
無料。戸別収集。事前申込制。「そ」と氏名を記載した張り紙を添付。60cm以上200cm未満、重さ10kg以上100kg未満。クリーンセンターへ自己搬入も可能。
生ごみ処理機助成金制度 あり
上限金額
20000円
上限比率
50.0%
暮らしデータ提供元:生活ガイド.com
※行政機関により公表していない地域及びデータがございます。東京23区以外の政令指定都市は、市全体のデータとして表示しています。
※提供データには細心の注意を払っておりますが、調査後に変更がある場合があります。 最新の情報につきましては各市区役所までお問い合わせいただくか、自治体HPなどをご確認ください。
OCN×ドコモ光新規お申込みで合計最大137,280円相当おトク!特典の内訳・適用条件など詳細はこちら

福島市内の各駅の住みやすさ

他のエリアから探す

福島市の詳細地域から賃貸物件を探す

旭町荒井荒井北荒町飯坂町飯坂町中野飯坂町平野飯坂町湯野飯野町入江町上町大笹生太田町大波大町大森大森岡島岡部置賜町沖高小倉寺御倉町御山御山町春日町霞町鎌田上鳥渡上浜町狩野北五老内町北沢又北中央北中川原北原北町北矢野目狐塚畑黒岩高野河原下腰浜町郷野目五老内町栄町坂登さくら桜木町佐倉下笹木野笹谷五月町山居清水町下鳥渡新浜町新町陣場町須川町清明町瀬上町曽根田町太平寺田沢茶屋下仲間町土船天神町鳥谷野豊田町中荒子中町永井川成川仁井田西中央野田町花園町浜田町万世町東中央東浜町伏拝舟場町方木田蓬莱町堀河町町庭坂松川町松川町浅川松川町関谷松川町沼袋松川町美郷松木町松浪町松山町丸子三河北町三河南町南沢又南中央南町南矢野目宮下町宮代宮町本内本町森合森合町八木田矢倉下八島田八島町矢剣町柳町山口山下町吉倉早稲町渡利

近辺の市区から探す

伊達市伊達郡桑折町

周辺の駅から探す

阿武隈急行
高子向瀬上瀬上福島学院前卸町福島

掲載情報の著作権は提供元企業等に帰属します。
Copyright:(C) 2025 At Home Co.,Ltd
アプリで簡単 物件探し 大手不動産サイトの情報から一括検!プッシュ通知で物件を見逃さない
App Storeからダウンロード Google Playで手に入れよう QRコード