アプリで簡単 物件探し 通知 共有 アプリならではの機能を使ってみる
賃貸アパート

ソーサリー原町 陸前原ノ町駅 1LDK 賃貸(賃貸マンション・アパート)

情報提供元
アットホーム
ソーサリー原町
賃料 6.35万円  (管理費等:3000円)
礼金・敷金 なし / 1ヶ月 保証金/敷引・償却 なし / -
交通
所在地 宮城県仙台市宮城野区原町5丁目周辺地図
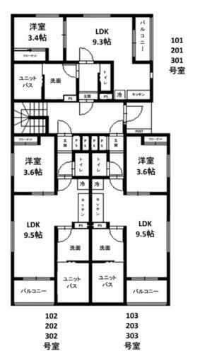
間取り 1LDK 専有面積 31.01m2
築年月 2025年3月 築年数 新築
おすすめポイント
二人入居可・バリアフリー・角部屋・フリーレント・管理人巡回
お問い合わせ先
リルホーム (株)河井産業
お問い合わせ先
リルホーム (株)河井産業

詳細情報

賃料 6.35万円 管理費等 3000円
敷金 1ヶ月 礼金 なし
保証金 なし 敷引・償却 -
更新料 新賃料の0.5ヶ月分 契約期間 2年
カード決済 -
所在地 宮城県仙台市宮城野区原町5丁目周辺地図
交通
建物名 ソーサリー原町 
間取り 1LDK(洋 3.4 LDK 9.3) 築年月(築年数) 2025年3月 新築
専有面積 31.01㎡ 所在階/階数 1階/3階建
建物構造 木造  方位 北西 
現況 完成済  駐車場 近有 11,000円
入居可能時期 即時 住宅保険 あり家財 2年 20000円
情報提供元 アットホーム[6985508331] 情報公開日
情報更新日 - 次回更新予定日 随時

設備など

2階以上 - 最上階 - 角部屋
駐車場(近隣含) エアコン付き バス・トイレ別
室内洗濯機置き場 追焚機能 - オートロック付き
モニタ付インターホン フローリング バルコニー
ガスコンロ可 - 浴室乾燥機 - 24時間セキュリティ -
宅配ボックス ペット相談可 - 二人入居可
設備 エアコン・給湯・オートロック・バルコニー・バス・トイレ別・トイレ・収納スペース・洗濯機置場・室内洗濯機置き場・洗面所・シャワー・プロパンガス・洗面台・フローリング・シャンプードレッサ・温水洗浄便座・システムキッチン・モニタ付インターホン・宅配BOX・駐輪場・クローゼット・複層ガラス・ディンプルキー・コンロ2口以上・インターネット無料 
リフォーム履歴 -
リノベーション履歴 -
備考 近隣月極め駐車場有り 10,000円~11,000円・賃貸保証等:加入要(ジェイリース初回保証委託料賃料総額の50%、1年毎10,000円)・フリーレントあり:1ヶ月・バルコニー:2.73平米・管理形態/管理員の勤務形態:巡回・コストに敏感な方のスマートチョイス!フリーレント1ヶ月有で、更に礼金0円。・バイク置場:なし・駐輪場:有(無料)・仲介手数料:1ヶ月 
特記事項 二人入居可・バリアフリー・角部屋・フリーレント・管理人巡回

省エネ性能

エネルギー消費性能 -
断熱性能 -
目安光熱費 -

宮城県仙台市宮城野区原町5丁目 周辺地図情報

地図
※地図上に表示される物件の位置は付近住所に所在することを表すものであり、実際の物件所在地とは異なる場合がございます。
   正確な物件所在地は、取扱い不動産会社にお問い合わせください。
お問い合わせ先
リルホーム (株)河井産業
アピールポイント
二重鍵で空き巣対策になるダブルロックドア仕様、更に2枚の単板ガラスの間に中空層が封入された複層ガラス仕様なので、遮音性が高く気になる音漏れもしにくいのが特徴です。また手つかずの新築で、その上不在時の受け取りも楽々の宅配BOX付だから、再配達のひと手間を省けます。ちなみにスマホやPCの使用には不可欠なインターネット使用料無料の物件です。コストに敏感な方のスマートチョイス!フリーレント1ヶ月有で、更に礼金0円。一人暮らしやカップルにお勧めの1LDK。是非見学にお越しください。

不動産会社情報

お問い合わせ先 商号:リルホーム (株)河井産業
免許番号:宮城県知事免許(3)第6166号
所在地:仙台市若林区伊在2丁目13-7
TEL:022-287-0609
取引態様:仲介
管理コード:
所属協会など:(公社)全日本不動産協会会員、東北地区不動産公正取引協議会加盟
共有する
QRコード
お問い合わせ先
リルホーム (株)河井産業

    仙台市宮城野区の暮らしデータ

    人口などの統計情報

    世帯数 524651世帯
    人口総数 1066362人
    転入者数 65750人
    転入率(人口1000人当たり)
    61.66人
    転出者数 62390人
    転出率(人口1000人当たり)
    58.51人
    土地平均価格
    住宅地
    139213円/m2
    商業地
    638309円/m2

    結婚・育児の助成金

    子育て関連の独自の取り組み 子育て家庭にやさしい取組みや子どもの遊び場を提供し、子ども・子育てを応援する店舗や施設を「せんだいのびすくサポーター」として募集し、子育て情報サイト「せんだいのびすくナビ」を通じてその情報を子育て家庭に発信している。男性従業員が一定期間以上の育児休業を取得した市内企業等に奨励金を支給する(2024年7月中より申請受付開始)。
    出産祝い あり
    公立保育所数 32所(うち0歳児保育を実施している保育所:32所)
    私立保育所数 110所(うち0歳児保育を実施している保育所:110所)
    保育所入所待機児童数 0人
    認定こども園数 120園 預かり保育実施園数 公立:0園 私立:57園
    学校給食 【小学校】完全給食【中学校】完全給食
    公立中学校の学校選択制 一部実施
    子ども・学生等医療費助成<通院>対象年齢 中学校卒業まで 子ども・学生等医療費助成<入院>対象年齢 中学校卒業まで

    仙台市宮城野区の治安・ごみ収集情報

    公共料金・インフラ

    ガス料金(22m3使用した場合の月額) 仙台市4867円
    水道料金(口径20mmで20m3の月額) 仙台市4290円
    下水道料金(20m3を使用した場合の月額) 仙台市1917円
    下水道普及率 98.7%

    安心・安全

    建物火災出火件数 153件
    人口10000人当たり
    1.40件
    刑法犯認知件数 6087件
    人口1000人当たり
    5.55件
    ハザード・防災マップ あり

    医療

    一般病院総数 47ヶ所
    一般診療所総数 950ヶ所
    小児科医師数 289人
    小児人口10000人当たり
    23.24人
    産婦人科医師数 115人
    15~49歳女性人口1万人当たり
    5.01人
    介護保険料基準額(月額) 6079円

    ごみ

    家庭ごみ収集(可燃ごみ) 有料
    備考
    指定ごみ袋有料。一般廃棄物処理手数料として徴収。
    家庭ごみの分別方式 4分別8種〔家庭ごみ 紙類(新聞・折込チラシ、段ボール、紙パック、雑誌・雑がみ) プラスチック資源 缶・びん・ペットボトル・廃乾電池類等〕 拠点回収:使用済小型家電 使用済食用油 布類
    家庭ごみの戸別収集 未実施
    粗大ごみ収集 あり
    備考
    有料。戸別収集。事前申込制。
    生ごみ処理機助成金制度 あり
    上限金額
    30000円
    上限比率
    60.0%
    暮らしデータ提供元:生活ガイド.com
    ※行政機関により公表していない地域及びデータがございます。東京23区以外の政令指定都市は、市全体のデータとして表示しています。
    ※提供データには細心の注意を払っておりますが、調査後に変更がある場合があります。 最新の情報につきましては各市区役所までお問い合わせいただくか、自治体HPなどをご確認ください。
    OCN×ドコモ光新規お申込みで合計最大137,280円相当おトク!特典の内訳・適用条件など詳細はこちら

    仙台市宮城野区内の各駅の住みやすさ

    他のエリアから探す

    仙台市宮城野区の詳細地域から賃貸物件を探す

    安養寺銀杏町出花岩切岩切分台大梶岡田小田原小田原山本丁小田原弓ノ町花京院通蒲生車町小鶴五輪幸町清水沼白鳥新田新田東自由ケ丘仙石高砂田子榴ケ岡榴岡燕沢燕沢東鶴ケ谷鶴ケ谷北鶴ケ谷東鶴巻鉄砲町鉄砲町中鉄砲町西鉄砲町東名掛丁中野苦竹西宮城野二十人町二の森萩野町原町原町南目東仙台東宮城野福住町福田町福田町南福室平成枡江松岡町南目館宮城野宮千代元寺小路

    近辺の市区から探す

    仙台市青葉区仙台市若林区仙台市太白区仙台市泉区塩竈市名取市多賀城市宮城郡利府町

    周辺の駅から探す

    仙石線
    あおば通仙台榴ケ岡宮城野原陸前原ノ町苦竹小鶴新田福田町陸前高砂

    宮城県仙台市宮城野区で他のジャンルから探す


    掲載情報の著作権は提供元企業等に帰属します。
    Copyright:(C) 2025 At Home Co.,Ltd
    アプリで簡単 物件探し 大手不動産サイトの情報から一括検!プッシュ通知で物件を見逃さない
    App Storeからダウンロード Google Playで手に入れよう QRコード