アプリで簡単 物件探し 通知 共有 アプリならではの機能を使ってみる
中古マンション

リフォーム済 豊中柴原シティハウス・301号室 3階 3DK

情報提供元
LIFULL HOME'S
リフォーム済 豊中柴原シティハウス・301号室
価格 3790万円  (管理費等:17,150円)
修繕積立金 18,280円
交通
所在地 大阪府豊中市柴原町2丁目6-3周辺地図
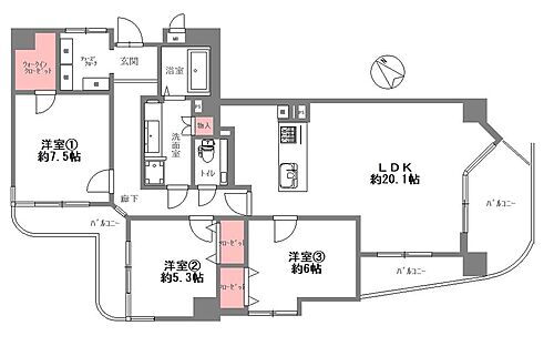
間取り 3DK 専有面積 96.13m2(壁芯)
所在階/階数 3階/6階建 方位 南東
築年月 1992年3月 築年数 築33年10ヶ月
おすすめポイント
ご契約の方に30万円キャッシュバック。300万円リノベ済で快適入居。年内契約は「お手続き費用の割引」または「家具家電・引越代」から選べ、初期費用を賢く節約できます。内見のご予約お待ちしております。
ペット相談可・瑕疵保証(不動産会社独自)
物件を見たい、物件や住環境の詳しい情報やローン相談など、
お問い合わせ先
株式会社ワイズホーム

詳細情報

価格 3790万円 管理費等 17,150円
駐車場   修繕積立金 18,280円
所在地 大阪府豊中市柴原町2丁目6-3周辺地図
交通
  • 大阪モノレール本線 柴原阪大前駅 徒歩8分乗換案内
  • 阪急電鉄宝塚線 豊中駅 徒歩17分乗換案内
物件名 リフォーム済 豊中柴原シティハウス・301号室
築年月(築年数) 1992年3月(築33年10ヶ月) 間取り 3DK
総戸数 18戸 専有面積 96.13m2(壁芯)
所在階/階数 3階/6階建 バルコニー面積 10m2
方位 南東 建物構造 RC
管理形態 全部委託 管理員の勤務形態 日勤
維持費等 土地権利 所有権
用途地域 1種中高 借地期間・地代
現況 空室 引渡可能年月 即時
情報提供元 LIFULL HOME'S [1539840000433] 情報公開日
情報更新日 次回更新予定日 2025年12月20日

設備など

ペット相談可 即入居可 南向き -
角部屋 - 駐車場空き有り - トランクルーム -
オートロック 宅配ボックス - 浴室乾燥機
床暖房 - ウォークインクローゼット 管理人常駐 -
最上階 - 2階以上 タワーマンション -
設備 リフォーム・上水道・都市ガス・本下水・バス・トイレ別・シャワー・ガスコンロ可・コンロ2口以上・システムキッチン・給湯・ウォークインクローゼット・室内洗濯機置き場・オートロック・エレベーター・バルコニー・フローリング・モニタ付インターホン・温水洗浄便座・カウンターキッチン・浴室乾燥機・洗面所独立・食器洗浄乾燥機・クローゼット・シューズインクローク
リフォーム履歴 ■水回り
2025年09月実施
キッチン/浴室/トイレ/洗面所
■内装
2025年09月実施
内装全面(床・壁・天井・建具)/壁・天井(クロス・塗装等)/全室クロス張替え/床(フローリング等)
※実施年月は、施工箇所の中で最も古いものを表示しています
リノベーション履歴 -
備考 【物件周辺の生活情報】
・買い物
スーパー(640m)、コンビニ(460m)、ドラッグストア(690m)
・その他施設
総合病院(640m)、公園(1,170m)
━━━━━━━━━━━━━━━■ 仲介手数料【50%~最大0円】━━━━━━━━━━━━━━━ワイズホームなら、仲介手数料を大幅に節約できます。「節約した分だけ、理想の暮らしに近づける」――――――――――――――住宅ローンの金利優遇にも対応。●各銀行の金利を比較し、有利なプランをご提案いたします。――――――――――――――◆スーモ・ホームズ掲載の他社物件も、ワイズホームでまとめてご紹介可能!気になる物件を一括で比較・ご案内できます。――――――――――――――【ワイズホームの特徴】◇ 仲介手数料が最大0円◇ 金利優遇サポートあり◇ 他社掲載物件もまとめて案内OK◇ 無料相談・見学予約もスムーズ――――――――――――――■ ご相談・内見予約はお気軽にワンストップで丁寧にサポートいたします。――――――――――――――※リフォーム箇所について、設備保証付きで入居後も安心 【設備・特記事項備考】専用バス・専用トイレ・全居室収納
販売戸数:1戸
特記事項 ペット相談可・瑕疵保証(不動産会社独自)

省エネ性能

エネルギー消費性能 -
断熱性能 -
目安光熱費 -

大阪府豊中市柴原町2丁目6-3 周辺地図情報

地図
※地図上に表示される物件の位置は付近住所に所在することを表すものであり、実際の物件所在地とは異なる場合がございます。
   正確な物件所在地は、取扱い不動産会社にお問い合わせください。
物件を見たい、物件や住環境の詳しい情報やローン相談など、
お問い合わせ先
株式会社ワイズホーム

不動産会社情報

お問い合わせ先 商号:株式会社ワイズホーム
免許番号:大阪府知事(03)第056723号
所在地:大阪府大阪市住吉区長居東2丁目3-19-1014号
取引態様:媒介
管理コード:433
所属協会など:(公社)近畿圏不動産流通機構、(公社)近畿地区不動産公正取引協議会、(公社)全日本不動産協会大阪府本部
共有する
QRコード

お電話でのお問い合わせ

電話をかける(携帯・PHS可)
お問い合わせダイヤル
通話無料0037-619-04055
営業時間 10:00~21:00 (定休日:年末年始 )
音声案内に従って数字を入力
お問い合わせ番号
30305-2970
不動産会社につながります
不動産会社のスタッフと
直接電話で話せます。
※不動産会社がお電話に出られなかった場合、株式会社LIFULLは電話会社が提供するサービスを介してお客様の発信者番号を受領後、折り返し専用の電話番号を発番してお問合せの不動産会社に通知します(お客様の発信者番号がお問合せの不動産会社に通知されることはございません)
※光IP電話、及びIP電話からはご利用になれません
※0037で始まる電話番号に携帯電話からお問合せいただいた方には、ショートメッセージ(SMS)によるお問合せ完了通知をお届けする場合があります
物件を見たい、物件や住環境の詳しい情報やローン相談など、
お問い合わせ先
株式会社ワイズホーム

豊中市の暮らしデータ

人口などの統計情報

世帯数 176759世帯
人口総数 406836人
転入者数 20207人
転入率(人口1000人当たり)
49.67人
転出者数 19359人
転出率(人口1000人当たり)
47.58人
土地平均価格
住宅地
242750円/m2
商業地
358500円/m2

結婚・育児の助成金

子育て関連の独自の取り組み (1)子育て情報をまとめた「子育て応援BOOK『みんなで』」を配布。(2)こんにちは赤ちゃん事業(乳児家庭全戸訪問事業)。(3)保護者支援プログラムの実施(「安心感の輪」子育てプログラム)。 (4)多胎児家庭育児支援事業の実施。(5)とよなか子育て応援団(子育て家庭に配慮した取組みをする事業者を登録・周知)。(6)子育ち・子育て応援アプリ 「とよふぁみ」(成長記録や予防接種のスケジュール管理と、行政サービスやイベント等の情報発信)。(7)午前7時から登校時間(午前8時)まで、通学する小学校及び義務教育学校の体育館等での児童の見守り。(8)第二子以降の保育料無料。(9)豊中市立学校における学校教育活動徴収金無償化。
出産祝い あり
公立保育所数 0所(うち0歳児保育を実施している保育所:-)
私立保育所数 48所(うち0歳児保育を実施している保育所:46所)
保育所入所待機児童数 28人
認定こども園数 59園 預かり保育実施園数 公立:- 私立:14園
学校給食 【小学校】完全給食【中学校】デリバリー形式[運搬:ランチボックス及び食缶、内容:完全給食]
公立中学校の学校選択制 未実施
子ども・学生等医療費助成<通院>対象年齢 18歳3月末まで 子ども・学生等医療費助成<入院>対象年齢 18歳3月末まで

豊中市の治安・ごみ収集情報

公共料金・インフラ

ガス料金(22m3使用した場合の月額) 大阪瓦斯株式会社4544円
水道料金(口径20mmで20m3の月額) 豊中市2497円
下水道料金(20m3を使用した場合の月額) 豊中市1421円
下水道普及率 100.0%

安心・安全

建物火災出火件数 63件
人口10000人当たり
1.57件
刑法犯認知件数 2040件
人口1000人当たり
5.08件
ハザード・防災マップ あり

医療

一般病院総数 17ヶ所
一般診療所総数 430ヶ所
小児科医師数 71人
小児人口10000人当たり
13.09人
産婦人科医師数 33人
15~49歳女性人口1万人当たり
4.00人
介護保険料基準額(月額) 6998円

ごみ

家庭ごみ収集(可燃ごみ) 無料
備考
引越し等で、臨時に大量のごみを排出する場合は収集時に現金徴収。
家庭ごみの分別方式 8分別〔可燃ごみ 不燃ごみ 空き缶・危険ごみ 充電式電池内蔵の小型家電・電池類 プラスチック製容器包装 ペットボトル ビン 紙・布〕 拠点回収:使用済小型家電 水銀使用廃製品
家庭ごみの戸別収集 一部実施(【ふれあい収集】対象要件を満たした高齢者及び障害者に実施)
粗大ごみ収集 あり
備考
有料。事前申込制。
生ごみ処理機助成金制度 なし
上限金額
-
上限比率
-

豊中市の住まいの給付金

中古購入

利子補給制度 なし
補助/助成金制度 なし

増築・改築・改修

利子補給制度 なし
補助/助成金制度 あり
上限金額
(1)5万円(2)10万円(3)100万円(4)20万円
備考
(1)【耐震診断補助】木造住宅5万円、非木造2.5万円、1981年5月31日以前建築の住宅。(2)【耐震設計補助】1981年5月31日以前建築の階数2以下の木造住宅。(3)【耐震改修補助】1981年5月31日以前建築の階数2以下の木造住宅。(4)【スマートハウス等支援補助】市内の既築住宅の断熱リフォーム経費(必要な建築材料の購入経費と必要な工事にかかる経費)の1/3を補助(上限20万円)。(4)以外他要件あり。
暮らしデータ提供元:生活ガイド.com
※行政機関により公表していない地域及びデータがございます。東京23区以外の政令指定都市は、市全体のデータとして表示しています。
※提供データには細心の注意を払っておりますが、調査後に変更がある場合があります。 最新の情報につきましては各市区役所までお問い合わせいただくか、自治体HPなどをご確認ください。
OCN×ドコモ光新規お申込みで合計最大137,280円相当おトク!特典の内訳・適用条件など詳細はこちら

豊中市内の各駅の住みやすさ

他のエリアから探す

豊中市の詳細地域から中古マンション物件を探す

旭丘上野坂上野西上野東永楽荘大字上新田大島町岡上の町岡町岡町北岡町南小曽根春日町上新田北桜塚北条町北緑丘熊野町桜の町三和町柴原町島江町少路庄内幸町庄内栄町庄内西町庄内東町城山町新千里北町新千里西町新千里東町新千里南町末広町清風荘千里園曽根西町曽根東町曽根南町立花町玉井町大黒町長興寺南寺内利倉西利倉東刀根山刀根山元町中桜塚西泉丘西緑丘野田町服部西町服部本町服部南町服部元町服部豊町原田元町東泉丘東寺内町東豊中町豊南町西螢池北町螢池東町螢池南町本町三国緑丘南桜塚宮山町向丘夕日丘

近辺の市区から探す

大阪市都島区大阪市福島区大阪市此花区大阪市西区大阪市西淀川区大阪市東淀川区大阪市旭区大阪市城東区大阪市淀川区大阪市鶴見区大阪市北区大阪市中央区池田市吹田市守口市茨木市箕面市門真市摂津市尼崎市西宮市伊丹市宝塚市川西市

周辺の駅から探す

阪急電鉄宝塚線
庄内服部天神曽根岡町豊中蛍池石橋阪大前池田川西能勢口
大阪モノレール本線
大阪空港蛍池柴原阪大前少路千里中央山田万博記念公園

住宅ローンの返済額一覧

物件価格 3790万円に対して、年率 で、頭金 の場合
↓ボーナス 35年間 30年間 25年間 20年間 15年間 10年間
0万円 85,403円/月 98,433円/月 116,686円/月 144,080円/月 189,755円/月 281,135円/月
5万円 76,318円/月 89,457円/月 107,819円/月 135,321円/月 181,104円/月 272,589円/月
10万円 67,232円/月 80,481円/月 98,952円/月 126,562円/月 172,452円/月 264,044円/月
15万円 58,147円/月 71,506円/月 90,086円/月 117,804円/月 163,801円/月 255,499円/月
20万円 49,061円/月 62,530円/月 81,219円/月 109,045円/月 155,149円/月 246,954円/月
25万円 ローン不可 53,554円/月 72,352円/月 100,286円/月 146,498円/月 238,409円/月
30万円 ローン不可 ローン不可 63,485円/月 91,528円/月 137,846円/月 229,864円/月
支払い利息合計 2,983,750円~ 2,551,240円~ 2,121,200円~ 1,691,680円~ 1,265,230円~ 842,420円~
※元利均等返済方式で試算しています。 「円」の単位以下の端数金額は「切り捨て」として計算しております。
※金利は、固定金利として計算しております。
※上記の住宅ローン返済額一覧は、あくまで試算であり、将来の金利動向により、実際のご返済額とは異なります。
※ボーナス支払総額が総支払額の50%を超えている場合、上記の表では「ローン不可」となります。
※住宅ローン返済額一覧の数値は、住宅ローンのお申し込みやご融資をお約束するものではございません。
物件を見たい、物件や住環境の詳しい情報やローン相談など、
お問い合わせ先
株式会社ワイズホーム

掲載情報の著作権は提供元企業等に帰属します。
Copyright:(C) 2025 LIFULL Co.,Ltd.
アプリで簡単 物件探し 大手不動産サイトの情報から一括検!プッシュ通知で物件を見逃さない
App Storeからダウンロード Google Playで手に入れよう QRコード