アプリで簡単 物件探し 通知 共有 アプリならではの機能を使ってみる
中古マンション

高蔵寺ガーデンスクエア 15階 3LDK

情報提供元
LIFULL HOME'S
高蔵寺ガーデンスクエア 中央本線「高蔵寺」駅徒歩約10分(2025年05月撮影)
価格 2150万円  (管理費等:12,000円)
修繕積立金 14,110円
交通
所在地 愛知県春日井市白山町1丁目周辺地図
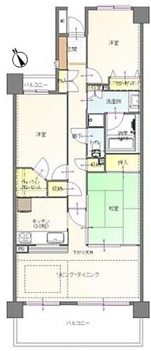
間取り 3LDK 専有面積 78.75m2(壁芯)
所在階/階数 15階/15階建 方位 南西
築年月 2000年8月 築年数 築25年5ヶ月
おすすめポイント
JR中央本線「高蔵寺」駅徒歩約10分!最上階部分!眺望良好!
バリアフリー・最上階
お問い合わせ先
センチュリー21清家不動産高蔵寺店
物件を見たい、物件や住環境の詳しい情報やローン相談など、
お問い合わせ先
センチュリー21清家不動産高蔵寺店

詳細情報

価格 2150万円 管理費等 12,000円
駐車場 有 無料 修繕積立金 14,110円
所在地 愛知県春日井市白山町1丁目周辺地図
交通
物件名 高蔵寺ガーデンスクエア
築年月(築年数) 2000年8月(築25年5ヶ月) 間取り 3LDK
総戸数 147戸 専有面積 78.75m2(壁芯)
所在階/階数 15階/15階建 バルコニー面積 12.5m2
方位 南西 建物構造 SRC
管理形態 全部委託 管理員の勤務形態 日勤
維持費等 土地権利 所有権
用途地域 2種住居 借地期間・地代
現況 空室 引渡可能年月 相談
情報提供元 LIFULL HOME'S [87080006501] 情報公開日
情報更新日 次回更新予定日 2025年12月21日

設備など

ペット相談可 - 即入居可 - 南向き -
角部屋 - 駐車場空き有り トランクルーム -
オートロック 宅配ボックス 浴室乾燥機
床暖房 - ウォークインクローゼット 管理人常駐 -
最上階 2階以上 タワーマンション -
設備 リフォーム・上水道・都市ガス・本下水・コンロ2口以上・システムキッチン・給湯・追焚機能・エアコン・ウォークインクローゼット・オートロック・エレベーター・宅配BOX・バイク置き場・光ファイバー(ブロードバンド)・温水洗浄便座・カウンターキッチン・浴室乾燥機・クローゼット・照明器具・オートバス
リフォーム履歴 ■水回り
2025年11月実施
トイレ
■内装
2025年11月実施
壁・天井(クロス・塗装等)
※実施年月は、施工箇所の中で最も古いものを表示しています
リノベーション履歴 -
備考 【物件周辺の生活情報】
・学校
高座小学校(1,400m)、高蔵寺中学校(350m)
・買い物
スーパー(683m)、コンビニ(572m)、ドラッグストア(651m)
・その他施設
JR中央本線高蔵寺駅(750m)
施工会社:矢作建設工業株式会社
[物件コード]079301-19689、全国のセンチュリー21約1000店舗中、2021年お客様満足度TOP10受賞☆創業29年の豊富な経験と実績で全力サポート!住宅ローンの疑問点や返済計画等のご相談もお任せ下さい。お子様連れも大歓迎!ご来店のお子様にお菓子をプレゼント!楽しい時間を過ごせるようにキッズスペースもご用意しております。お気軽にご来店ください。 【設備・特記事項備考】全居室収納
敷地面積:6,468.86m2
国土法届出:不要
法令等制限:準防火地域、準防火地域、宅造法
特記事項 バリアフリー・最上階

省エネ性能

エネルギー消費性能 -
断熱性能 -
目安光熱費 -

愛知県春日井市白山町1丁目 周辺地図情報

地図
※地図上に表示される物件の位置は付近住所に所在することを表すものであり、実際の物件所在地とは異なる場合がございます。
   正確な物件所在地は、取扱い不動産会社にお問い合わせください。
物件を見たい、物件や住環境の詳しい情報やローン相談など、
お問い合わせ先
センチュリー21清家不動産高蔵寺店

不動産会社情報

お問い合わせ先 商号:センチュリー21清家不動産高蔵寺店
免許番号:愛知県知事(6)第18194号
所在地:愛知県春日井市白山町4丁目8番地3
取引態様:一般媒介
管理コード:6501
所属協会など:東海不動産公正取引協議会、(公社)愛知県宅地建物取引業協会
共有する
QRコード

お電話でのお問い合わせ

電話をかける(携帯・PHS可)
お問い合わせダイヤル
通話無料0037-634-95545
営業時間 09:00~19:00 (定休日:水曜日)
音声案内に従って数字を入力
お問い合わせ番号
20183-2975
不動産会社につながります
不動産会社のスタッフと
直接電話で話せます。
※不動産会社がお電話に出られなかった場合、株式会社LIFULLは電話会社が提供するサービスを介してお客様の発信者番号を受領後、折り返し専用の電話番号を発番してお問合せの不動産会社に通知します(お客様の発信者番号がお問合せの不動産会社に通知されることはございません)
※光IP電話、及びIP電話からはご利用になれません
※0037で始まる電話番号に携帯電話からお問合せいただいた方には、ショートメッセージ(SMS)によるお問合せ完了通知をお届けする場合があります
物件を見たい、物件や住環境の詳しい情報やローン相談など、
お問い合わせ先
センチュリー21清家不動産高蔵寺店

春日井市の暮らしデータ

人口などの統計情報

世帯数 130809世帯
人口総数 307473人
転入者数 11823人
転入率(人口1000人当たり)
38.45人
転出者数 11950人
転出率(人口1000人当たり)
38.87人
土地平均価格
住宅地
115091円/m2
商業地
141000円/m2

結婚・育児の助成金

子育て関連の独自の取り組み (1)妊産婦ケア事業(デイサービス)を専用施設で実施。妊娠中から1歳未満の子どもがいる母親が、育児で疲れた時等に利用し、専門職による相談も受けられる。(2)妊娠中から生後6ヶ月(多胎は3歳)未満の児童を養育している保護者に対して、家事や育児の援助を行う、産前・産後ヘルパー派遣事業を実施。(3)小児科医、産婦人科医、助産師が、LINEやウェブサイトを活用し、毎日24時間体制で、妊娠中から産後の悩み等の相談に応じる母子保健オンライン相談を実施。(4)市民病院では、産後2ヶ月までのお母さんと赤ちゃんを対象に、産後ケア入院を実施している。産後ケア入院では、育児に不安を持つ母親に対し、助産師が中心となり24時間体制で母子の健康チェックや授乳等の育児支援・相談が受けられる。
出産祝い なし
公立保育所数 29所(うち0歳児保育を実施している保育所:28所)
私立保育所数 22所(うち0歳児保育を実施している保育所:20所)
保育所入所待機児童数 0人
認定こども園数 8園 預かり保育実施園数 公立:- 私立:16園
学校給食 【小学校】完全給食【中学校】完全給食
公立中学校の学校選択制 未実施
子ども・学生等医療費助成<通院>対象年齢 18歳3月末まで 子ども・学生等医療費助成<入院>対象年齢 18歳3月末まで(ただし、学生の場合は24歳3月末まで※学生については、市民税が課せられない者、地方税法に規定する扶養親族である者などの条件あり)

春日井市の治安・ごみ収集情報

公共料金・インフラ

ガス料金(22m3使用した場合の月額) 東邦瓦斯株式会社5307円
水道料金(口径20mmで20m3の月額) 春日井市2519円
下水道料金(20m3を使用した場合の月額) 春日井市2915円
下水道普及率 69.8%

安心・安全

建物火災出火件数 45件
人口10000人当たり
1.46件
刑法犯認知件数 1694件
人口1000人当たり
5.49件
ハザード・防災マップ あり

医療

一般病院総数 11ヶ所
一般診療所総数 205ヶ所
小児科医師数 90人
小児人口10000人当たり
23.09人
産婦人科医師数 25人
15~49歳女性人口1万人当たり
4.14人
介護保険料基準額(月額) 5580円

ごみ

家庭ごみ収集(可燃ごみ) 無料
備考
燃やせるごみ・燃やせないごみ・プラスチック製容器包装・金属類(発火性危険物)については指定ごみ袋があるが、ごみ袋に処理費用は加算されない。
家庭ごみの分別方式 3分別13種〔燃やせるごみ 燃やせないごみ 資源物(雑誌・雑がみ、新聞紙、段ボール、牛乳パック類、古着、飲料缶、ガラスびん、ペットボトル、プラスチック製容器包装、金属類[小型家電を含む金属類、発火性危険物])〕 拠点回収:廃食用油 使用済乾電池 蛍光管
家庭ごみの戸別収集 一部実施(さわやか収集)
粗大ごみ収集 あり
備考
有料。1,000円/点(特定廃棄物は1,500円~6,000円/点)。事前申込制。クリーンセンターへ自己搬入する場合は、重さで料金を徴収。家庭ごみ(粗大ごみ及び粗大ごみを含むもの)10kg以上の部分に対して、10kgにつき200円が必要。
生ごみ処理機助成金制度 あり
上限金額
20000円
上限比率
50.0%

春日井市の住まいの給付金

中古購入

利子補給制度 あり
上限金額
-
備考
春日井市空き家付土地の購入等に対する補助金を受ける者(1年以上使用されていない空き家[分譲マンションの空き室を含む]を購入し、2年以内にそのまま、建替え又はリフォーム後に居住する者)に対し、フラット35の借入金利を当初5年間、年0.5%引き下げる(住宅金融支援機構)。
補助/助成金制度 あり
上限金額
50万円
備考
【空き家付き土地の購入等に対する補助金】1年以上使用されていない空き家(分譲マンションの空き室を含む)を購入し、2年以内にそのまま、建替え又はリフォーム後に居住する者に対し、上限50万円を補助する。

増築・改築・改修

利子補給制度 あり
上限金額
(融資限度額)700万円
備考
【空き家解体・リフォームプラン】市内住宅のうち、「空き家の解体・防災設備設置・リフォーム」又は「賃貸物件のリフォーム」に対し、全期間金利の引き下げを行う(大垣共立銀行)。
補助/助成金制度 あり
上限金額
(1)100万円(2)20万円
備考
(1)【耐震改修補助制度】1981年5月31日以前に着工し、市の木造住宅無料耐震診断を受け判定値が1.0未満の木造住宅を対象。耐震改修工事に100万円を限度に補助。(2)【耐震シェルター整備費補助制度】1981年5月31日以前に着工し、市の木造住宅無料耐震診断を受け判定値が1.0未満の木造住宅を対象。整備費に20万円を限度に補助。
暮らしデータ提供元:生活ガイド.com
※行政機関により公表していない地域及びデータがございます。東京23区以外の政令指定都市は、市全体のデータとして表示しています。
※提供データには細心の注意を払っておりますが、調査後に変更がある場合があります。 最新の情報につきましては各市区役所までお問い合わせいただくか、自治体HPなどをご確認ください。
OCN×ドコモ光新規お申込みで合計最大137,280円相当おトク!特典の内訳・適用条件など詳細はこちら

春日井市内の各駅の住みやすさ

住宅ローンの返済額一覧

物件価格 2150万円に対して、年率 で、頭金 の場合
↓ボーナス 35年間 30年間 25年間 20年間 15年間 10年間
0万円 42,831円/月 49,366円/月 58,520円/月 72,259円/月 95,166円/月 140,994円/月
5万円 33,746円/月 40,390円/月 49,653円/月 63,500円/月 86,514円/月 132,449円/月
10万円 24,660円/月 31,414円/月 40,787円/月 54,741円/月 77,863円/月 123,904円/月
15万円 ローン不可 ローン不可 31,920円/月 45,983円/月 69,211円/月 115,359円/月
20万円 ローン不可 ローン不可 ローン不可 37,224円/月 60,560円/月 106,814円/月
25万円 ローン不可 ローン不可 ローン不可 ローン不可 51,908円/月 98,269円/月
30万円 ローン不可 ローン不可 ローン不可 ローン不可 ローン不可 89,723円/月
支払い利息合計 1,496,230円~ 1,277,760円~ 1,063,850円~ 850,400円~ 637,560円~ 425,500円~
※元利均等返済方式で試算しています。 「円」の単位以下の端数金額は「切り捨て」として計算しております。
※金利は、固定金利として計算しております。
※上記の住宅ローン返済額一覧は、あくまで試算であり、将来の金利動向により、実際のご返済額とは異なります。
※ボーナス支払総額が総支払額の50%を超えている場合、上記の表では「ローン不可」となります。
※住宅ローン返済額一覧の数値は、住宅ローンのお申し込みやご融資をお約束するものではございません。
物件を見たい、物件や住環境の詳しい情報やローン相談など、
お問い合わせ先
センチュリー21清家不動産高蔵寺店

掲載情報の著作権は提供元企業等に帰属します。
Copyright:(C) 2025 LIFULL Co.,Ltd.
アプリで簡単 物件探し 大手不動産サイトの情報から一括検!プッシュ通知で物件を見逃さない
App Storeからダウンロード Google Playで手に入れよう QRコード