アプリで簡単 物件探し 通知 共有 アプリならではの機能を使ってみる
中古マンション

シーアイマンション清瀬 3階 3LDK

情報提供元
LIFULL HOME'S
シーアイマンション清瀬
価格 2090万円  (管理費等:7,220円)
修繕積立金 13,376円
交通
所在地 東京都清瀬市中里5丁目6-1周辺地図
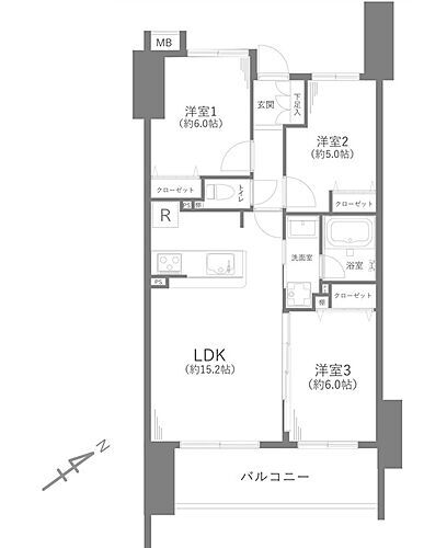
間取り 3LDK 専有面積 62.71m2
所在階/階数 3階/9階建 方位 -
築年月 1985年7月 築年数 築40年5ヶ月
おすすめポイント
■バス停徒歩5分■閑静な住宅街■住環境良好■陽当り良好■徒歩10分圏内に小中学校とコンビニ・スーパーあり■ペット可(細則あり)■LDK13帖以上■新規リノベーション予定 ※告知事項あり※
ペット相談可
お問い合わせ先
株式会社トラスティアホーム 本店

詳細情報

価格 2090万円 管理費等 7,220円
駐車場   修繕積立金 13,376円
所在地 東京都清瀬市中里5丁目6-1周辺地図
交通
  • 西武池袋・豊島線 清瀬駅 バス11分/「下戸」バス停 停歩5分乗換案内
物件名 シーアイマンション清瀬
築年月(築年数) 1985年7月(築40年5ヶ月) 間取り 3LDK (LDK 13.2 洋 4.4・4.5・5.3)
総戸数 108戸 専有面積 62.71m2
所在階/階数 3階/9階建 バルコニー面積 7.7m2
方位 建物構造 RC
管理形態 全部委託 管理員の勤務形態 日勤
維持費等 土地権利 所有権
用途地域 借地期間・地代
現況 空室 引渡可能年月 即時
情報提供元 LIFULL HOME'S [1342720035941] 情報公開日
情報更新日 次回更新予定日 2025年11月18日

設備など

ペット相談可 即入居可 南向き -
角部屋 - 駐車場空き有り - トランクルーム -
オートロック - 宅配ボックス - 浴室乾燥機 -
床暖房 - ウォークインクローゼット - 管理人常駐 -
最上階 - 2階以上 タワーマンション -
設備 リフォーム・バス・トイレ別・シャワー・ガスコンロ可・コンロ2口以上・システムキッチン・給湯・シャンプードレッサ・室内洗濯機置き場・エレベーター・バルコニー・フローリング・モニタ付インターホン・温水洗浄便座・洗面所独立・クローゼット・シューズボックス
リフォーム履歴 ・備考
2026年1月に新規リノベーション予定
※実施年月は、施工箇所の中で最も古いものを表示しています
リノベーション履歴 -
備考 【物件周辺の生活情報】
・学校
清瀬市立清瀬第八小学校(320m)、清瀬市立清瀬第三中学校(570m)
・買い物
スーパー(360m)、コンビニ(370m)、ドラッグストア(1,010m)
・その他施設
総合病院(840m)、公園(1,690m)、銀行(1,130m)
~あきらめていませんか?住宅ローン~■ 年収が少ない ■勤続が短い■ 派遣社員 ■ 自営業 ■ 女性単身■ 借入がある ■ 希望借入額まで届かない■ 育児休暇中など、ご相談をお受けいたしており、実際に数多くの方が、ご購入に成功されております。住宅ローンには、コツがあります。ご不安なことは、ご相談ください!---出張可能、来店不要--- 【駐車場備考】空き状況は管理会社へ要確認。 【設備・特記事項備考】専用バス・専用トイレ
国土法届出:不要
組合費:400円
特記事項 ペット相談可

省エネ性能

エネルギー消費性能 -
断熱性能 -
目安光熱費 -

東京都清瀬市中里5丁目6-1 周辺地図情報

地図
※地図上に表示される物件の位置は付近住所に所在することを表すものであり、実際の物件所在地とは異なる場合がございます。
   正確な物件所在地は、取扱い不動産会社にお問い合わせください。
物件を見たい、物件や住環境の詳しい情報やローン相談など、
お問い合わせ先
株式会社トラスティアホーム 本店

不動産会社情報

お問い合わせ先 商号:株式会社トラスティアホーム 本店
免許番号:埼玉県知事(02)第023359号
所在地:埼玉県所沢市東狭山ケ丘1丁目65-1 大成ハイツ東105
取引態様:媒介
管理コード:35941
所属協会など:(公社)首都圏不動産公正取引協議会、(公社)埼玉県宅地建物取引業協会
共有する
QRコード

お電話でのお問い合わせ

電話をかける(携帯・PHS可)
お問い合わせダイヤル
通話無料0037-634-77158
営業時間 09:00~19:00 (定休日:毎週火曜日・水曜日 年末年始)
音声案内に従って数字を入力
お問い合わせ番号
21521-2977
不動産会社につながります
不動産会社のスタッフと
直接電話で話せます。
※不動産会社がお電話に出られなかった場合、株式会社LIFULLは電話会社が提供するサービスを介してお客様の発信者番号を受領後、折り返し専用の電話番号を発番してお問合せの不動産会社に通知します(お客様の発信者番号がお問合せの不動産会社に通知されることはございません)
※光IP電話、及びIP電話からはご利用になれません
※0037で始まる電話番号に携帯電話からお問合せいただいた方には、ショートメッセージ(SMS)によるお問合せ完了通知をお届けする場合があります
物件を見たい、物件や住環境の詳しい情報やローン相談など、
お問い合わせ先
株式会社トラスティアホーム 本店

清瀬市の暮らしデータ

人口などの統計情報

世帯数 34918世帯
人口総数 74596人
転入者数 3801人
転入率(人口1000人当たり)
50.95人
転出者数 3328人
転出率(人口1000人当たり)
44.61人
土地平均価格
住宅地
202400円/m2
商業地
463500円/m2

結婚・育児の助成金

子育て関連の独自の取り組み (1)清瀬市ホームビジター派遣事業(就学前の乳幼児がいる家庭に対し、研修を受けたボランティアが訪問し、話を聞き、家事や育事を一緒に取り組むことで親が心の安定を取り戻すきっかけを作ります)。(2)きよせ・チルドレンファーストチケット事業(未就学児の保護者が市内の子育てサービスや商店で利用できる1万円分のデジタル商品券)。
出産祝い あり
公立保育所数 3所(うち0歳児保育を実施している保育所:2所)
私立保育所数 12所(うち0歳児保育を実施している保育所:12所)
保育所入所待機児童数 9人
認定こども園数 1園 預かり保育実施園数 公立:- 私立:6園
学校給食 【小学校】完全給食【中学校】完全給食
公立中学校の学校選択制 実施(新入学時のみ[新入学前の指定の申請期間のみ申請を受付])
子ども・学生等医療費助成<通院>対象年齢 18歳3月末まで 子ども・学生等医療費助成<入院>対象年齢 18歳3月末まで

清瀬市の治安・ごみ収集情報

公共料金・インフラ

ガス料金(22m3使用した場合の月額) 東京瓦斯株式会社(東京地区等)3926円
水道料金(口径20mmで20m3の月額) 東京都水道局2816円
下水道料金(20m3を使用した場合の月額) 清瀬市1918円
下水道普及率 100.0%

安心・安全

建物火災出火件数 13件
人口10000人当たり
1.71件
刑法犯認知件数 384件
人口1000人当たり
5.04件
ハザード・防災マップ あり

医療

一般病院総数 9ヶ所
一般診療所総数 45ヶ所
小児科医師数 7人
小児人口10000人当たり
8.22人
産婦人科医師数 1人
15~49歳女性人口1万人当たり
0.69人
介護保険料基準額(月額) 6239円

ごみ

家庭ごみ収集(可燃ごみ) 有料
備考
指定ごみ袋有料。指定収集袋取扱店等で購入。おむつについては、無料(透明または、半透明の袋に「おむつ」と記入の場合)。ライター・カセットボンベ・スプレー缶については、無料(透明または、半透明の袋に「き」と記入の場合)。ペットボトル(透明または半透明の袋で排出可能)。
家庭ごみの分別方式 3分別13種〔可燃ごみ 不燃ごみ 資源ごみ(ビン、カン、古紙類[新聞、雑誌、ダンボール、シュレッダーくず、雑紙]、古布、容器包装プラスチック、剪定枝、落葉)〕
家庭ごみの戸別収集 実施(戸別収集対象外:資源物[古紙・古布・びん・かん]及び拠点回収対象物)
粗大ごみ収集 あり
備考
有料。戸別収集。民間委託。収集については、インターネットまたは電話による事前申込が必要。
生ごみ処理機助成金制度 あり
上限金額
30000円
上限比率
50.0%

清瀬市の住まいの給付金

中古購入

利子補給制度 なし
補助/助成金制度 なし

増築・改築・改修

利子補給制度 なし
補助/助成金制度 あり
上限金額
(1)10万円(2)100万円
備考
(1)【耐震診断助成】1981年5月31日以前に建築されたもの。耐震診断費用(消費税に係る部分を除く)の2/3以内で上限10万円。(2)【耐震改修助成】診断の助成制度を利用または、市が認める耐震診断業者にて診断し、上部構造評点1.0未満と診断されたものが対象。耐震改修工事に要した費用(消費税に係る部分を除く)の1/2以内で上限100万円。
暮らしデータ提供元:生活ガイド.com
※行政機関により公表していない地域及びデータがございます。東京23区以外の政令指定都市は、市全体のデータとして表示しています。
※提供データには細心の注意を払っておりますが、調査後に変更がある場合があります。 最新の情報につきましては各市区役所までお問い合わせいただくか、自治体HPなどをご確認ください。
OCN×ドコモ光新規お申込みで合計最大137,280円相当おトク!特典の内訳・適用条件など詳細はこちら

清瀬市内の各駅の住みやすさ

住宅ローンの返済額一覧

物件価格 2090万円に対して、年率 で、頭金 の場合
↓ボーナス 35年間 30年間 25年間 20年間 15年間 10年間
0万円 41,274円/月 47,571円/月 56,392円/月 69,631円/月 91,705円/月 135,867円/月
5万円 32,188円/月 38,595円/月 47,525円/月 60,872円/月 83,054円/月 127,322円/月
10万円 23,103円/月 29,619円/月 38,659円/月 52,114円/月 74,402円/月 118,777円/月
15万円 ローン不可 ローン不可 29,792円/月 43,355円/月 65,751円/月 110,232円/月
20万円 ローン不可 ローン不可 ローン不可 ローン不可 57,099円/月 101,687円/月
25万円 ローン不可 ローン不可 ローン不可 ローン不可 48,448円/月 93,142円/月
30万円 ローン不可 ローン不可 ローン不可 ローン不可 ローン不可 84,596円/月
支払い利息合計 1,442,290円~ 1,231,560円~ 1,025,450円~ 817,680円~ 614,760円~ 410,260円~
※元利均等返済方式で試算しています。 「円」の単位以下の端数金額は「切り捨て」として計算しております。
※金利は、固定金利として計算しております。
※上記の住宅ローン返済額一覧は、あくまで試算であり、将来の金利動向により、実際のご返済額とは異なります。
※ボーナス支払総額が総支払額の50%を超えている場合、上記の表では「ローン不可」となります。
※住宅ローン返済額一覧の数値は、住宅ローンのお申し込みやご融資をお約束するものではございません。
物件を見たい、物件や住環境の詳しい情報やローン相談など、
お問い合わせ先
株式会社トラスティアホーム 本店

掲載情報の著作権は提供元企業等に帰属します。
Copyright:(C) 2025 LIFULL Co.,Ltd.
アプリで簡単 物件探し 大手不動産サイトの情報から一括検!プッシュ通知で物件を見逃さない
App Storeからダウンロード Google Playで手に入れよう QRコード