アプリで簡単 物件探し 通知 共有 アプリならではの機能を使ってみる
中古マンション

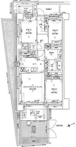
イニシア練馬北町 1階 3LDK

情報提供元
LIFULL HOME'S
イニシア練馬北町 イオン板橋など施設充実の東武東上線【東武練馬】駅徒歩2分、オートロック・宅配ボックス完備、ペット相談可のマンション。
価格 6980万円  (管理費等:16,800円)
修繕積立金 18,100円
交通
所在地 東京都練馬区北町2丁目21-10周辺地図
間取り 3LDK 専有面積 70m2(壁芯)
所在階/階数 1階/8階建 方位
築年月 2016年5月 築年数 築9年7ヶ月
おすすめポイント
◇◆周辺施設充実の好立地マンション◆◇ ■東武東上線【東武練馬】駅徒歩2分 ■ショッピングセンター【イオン板橋】徒歩4分 ■オートロック・宅配ボックス完備
【オープンルーム情報】
2025年11月01日(土)~2025年11月30日(日)(10:00-18:00)
現地見学会 公開中 事前に必ず予約してください
ペット相談可・角部屋
お問い合わせ先
タカラの仲介「MUSUBU」株式会社タカラレーベンリアルネット さいたまセンター
物件を見たい、物件や住環境の詳しい情報やローン相談など、
お問い合わせ先
タカラの仲介「MUSUBU」株式会社タカラレーベンリアルネット さいたまセンター

詳細情報

価格 6980万円 管理費等 16,800円
駐車場 修繕積立金 18,100円
所在地 東京都練馬区北町2丁目21-10周辺地図
交通
  • 東武鉄道東上線 東武練馬駅 徒歩2分乗換案内
物件名 イニシア練馬北町
築年月(築年数) 2016年5月(築9年7ヶ月) 間取り 3LDK
総戸数 38戸 専有面積 70m2(壁芯)
所在階/階数 1階/8階建 バルコニー面積
方位 建物構造 RC
管理形態 全部委託 管理員の勤務形態 巡回
維持費等 土地権利 所有権
用途地域 商業地域 借地期間・地代
現況 居住中 引渡可能年月 相談
情報提供元 LIFULL HOME'S [1358110010747] 情報公開日
情報更新日 次回更新予定日 2025年11月24日

設備など

ペット相談可 即入居可 - 南向き -
角部屋 駐車場空き有り - トランクルーム -
オートロック 宅配ボックス - 浴室乾燥機
床暖房 ウォークインクローゼット 管理人常駐 -
最上階 - 2階以上 - タワーマンション -
設備 バス・トイレ別・シャワー・コンロ2口以上・システムキッチン・給湯・ウォークインクローゼット・室内洗濯機置き場・オートロック・専用庭・バルコニー・床暖房・モニタ付インターホン・浴室乾燥機・洗面所独立・クローゼット・シューズボックス・照明器具
リフォーム履歴 -
リノベーション履歴 -
備考 【物件周辺の生活情報】
・学校
練馬区立北町小学校(410m)、練馬区立北町中学校(590m)
・買い物
スーパー(120m)、コンビニ(300m)、ドラッグストア(30m)
・その他施設
総合病院(450m)、公園(390m)、徳丸スクエア(200m)
施工会社:新三平建設株式会社
専用庭面積:0.00m2 ◎ファミリー安心の階下なし住戸◎テラス・庭付き角部屋3LDK◎床暖房付きリビング◎食器洗浄機付きキッチン◎快適な室温を保ち、防音効果もある複層ガラス◎ミストサウナ・浴室乾燥機付きバス◎ALSOKによる24時間セキュリティ◎ペット相談可能◎クロス張替え予定 【設備・特記事項備考】専用バス・専用トイレ・耐震構造・全居室収納
国土法届出:不要
管理組合活動費/月:100円
特記事項 ペット相談可・角部屋

省エネ性能

エネルギー消費性能 -
断熱性能 -
目安光熱費 -

東京都練馬区北町2丁目21-10 周辺地図情報

地図
※地図上に表示される物件の位置は付近住所に所在することを表すものであり、実際の物件所在地とは異なる場合がございます。
   正確な物件所在地は、取扱い不動産会社にお問い合わせください。
物件を見たい、物件や住環境の詳しい情報やローン相談など、
お問い合わせ先
タカラの仲介「MUSUBU」株式会社タカラレーベンリアルネット さいたまセンター

不動産会社情報

お問い合わせ先 商号:タカラの仲介「MUSUBU」株式会社タカラレーベンリアルネット さいたまセンター
免許番号:国土交通大臣(02)第008967号
所在地:埼玉県蕨市塚越2丁目19-18 かるら蕨ビル1階
取引態様:媒介
管理コード:10747
所属協会など:(公財)東日本不動産流通機構
共有する
QRコード

お電話でのお問い合わせ

電話をかける(携帯・PHS可)
お問い合わせダイヤル
通話無料0037-634-29896
営業時間 10:00~18:00 (定休日:毎週:火曜・水曜(夏期休業・年末年始))
音声案内に従って数字を入力
お問い合わせ番号
70164-2972
不動産会社につながります
不動産会社のスタッフと
直接電話で話せます。
※不動産会社がお電話に出られなかった場合、株式会社LIFULLは電話会社が提供するサービスを介してお客様の発信者番号を受領後、折り返し専用の電話番号を発番してお問合せの不動産会社に通知します(お客様の発信者番号がお問合せの不動産会社に通知されることはございません)
※光IP電話、及びIP電話からはご利用になれません
※0037で始まる電話番号に携帯電話からお問合せいただいた方には、ショートメッセージ(SMS)によるお問合せ完了通知をお届けする場合があります
物件を見たい、物件や住環境の詳しい情報やローン相談など、
お問い合わせ先
タカラの仲介「MUSUBU」株式会社タカラレーベンリアルネット さいたまセンター

練馬区の暮らしデータ

人口などの統計情報

世帯数 374485世帯
人口総数 741540人
転入者数 49591人
転入率(人口1000人当たり)
66.88人
転出者数 44239人
転出率(人口1000人当たり)
59.66人
土地平均価格
住宅地
413757円/m2
商業地
816167円/m2

結婚・育児の助成金

子育て関連の独自の取り組み (1)第3子誕生祝金。(2)子育てスタート応援券。(3)外遊び型子育てのひろば(おひさまぴよぴよ)。(4)ねりますくすくアプリ(ねりすく)。(5)ねりま子育て応援ハンドブック。(6)父親の育児応援DVD。(7)1年保育(1歳児・2歳児)。(8)発達に不安がある親子を対象にしたひろば事業(のびのびひろば)。(9)産後ケア事業。(10)移動型外遊びの場提供事業「おひさま てくてく」。(11)2019年度から、練馬こどもカフェ(民間カフェ等と協働し、保護者が交流したり子どもと一緒にリラックスできる場を提供し、私立幼稚園や保育事業者の協力を得て子育て講座等を実施)を開始。(12)ねりま子育て応援アプリ。
出産祝い あり
公立保育所数 60所(うち0歳児保育を実施している保育所:50所)
私立保育所数 141所(うち0歳児保育を実施している保育所:136所)
保育所入所待機児童数 0人
認定こども園数 3園 預かり保育実施園数 公立:3園 私立:35園
学校給食 【小学校】完全給食【中学校】完全給食
公立中学校の学校選択制 実施(新入学時のみ)
子ども・学生等医療費助成<通院>対象年齢 18歳3月末まで 子ども・学生等医療費助成<入院>対象年齢 18歳3月末まで

練馬区の治安・ごみ収集情報

公共料金・インフラ

ガス料金(22m3使用した場合の月額) 東京瓦斯株式会社(東京地区等)3926円
水道料金(口径20mmで20m3の月額) 東京都水道局2816円
下水道料金(20m3を使用した場合の月額) 東京都下水道局2068円
下水道普及率 100.0%

安心・安全

建物火災出火件数 88件
人口10000人当たり
1.17件
刑法犯認知件数 3480件
人口1000人当たり
4.62件
ハザード・防災マップ あり

医療

一般病院総数 17ヶ所
一般診療所総数 593ヶ所
小児科医師数 125人
小児人口10000人当たり
14.71人
産婦人科医師数 40人
15~49歳女性人口1万人当たり
2.35人
介護保険料基準額(月額) 6670円

ごみ

家庭ごみ収集(可燃ごみ) 無料
備考
一度に多量のごみを出す場合は有料。
家庭ごみの分別方式 3分別10種〔可燃ごみ 不燃ごみ 資源(古紙[新聞、雑誌・雑紙、ダンボール、紙パック]、びん、缶、ペットボトル、容器包装プラスチック)〕 拠点回収:古布 廃食用油 乾電池 小型家電(13品目)
家庭ごみの戸別収集 一部実施(【練馬区戸別訪問収集実施要綱】65歳以上の方のみの世帯または障害のある方のみの世帯で、世帯員自らごみを集積所へ持ち出すことが困難で、身近な人の協力が得られない世帯が対象)
粗大ごみ収集 あり
備考
有料。事前申込制(粗大ごみ受付センター)。
生ごみ処理機助成金制度 なし
上限金額
-
上限比率
-

練馬区の住まいの給付金

中古購入

利子補給制度 なし
補助/助成金制度 なし

増築・改築・改修

利子補給制度 あり
上限金額
(融資あっせん限度額)500万円
備考
練馬区内にある住宅を修築する場合に資金の融資をあっせん。(a)住宅の修築・増築、年利2.0~0%。(b)ブロック塀などの改良、年利1.0%。※(a)の申込者負担分は世帯所得などにより異なる(2024年4月1日現在、数字は申込者負担分)。増築面積は20m2以下であることおよび増築後の床面積が175m2以下であること。
補助/助成金制度 あり
上限金額
(1)150万円(2)50万円
備考
(1)【住宅の耐震化助成】1981年5月までに建築された住宅(戸建住宅、小規模な長屋や共同住宅含む)または1981年6月から2000年5月までに建築された二階建て以下の木造住宅(在来軸組工法)で、診断費用の3/4で上限金額12万円、設計費用の2/3で上限金額22万円、耐震補強工事費用の2/3で上限金額130万円または4/5で上限金額150万円まで助成。なお、一部の地区では助成率や上限金額の拡充あり。(2)【耐震シェルター等設置助成】1981年5月までに建築された二階建て以下の木造住宅で、工事費用の9/10で上限金額50万円まで助成。ただし、他要件あり。
暮らしデータ提供元:生活ガイド.com
※行政機関により公表していない地域及びデータがございます。東京23区以外の政令指定都市は、市全体のデータとして表示しています。
※提供データには細心の注意を払っておりますが、調査後に変更がある場合があります。 最新の情報につきましては各市区役所までお問い合わせいただくか、自治体HPなどをご確認ください。
OCN×ドコモ光新規お申込みで合計最大137,280円相当おトク!特典の内訳・適用条件など詳細はこちら

住宅ローンの返済額一覧

物件価格 6980万円に対して、年率 で、頭金 の場合
↓ボーナス 35年間 30年間 25年間 20年間 15年間 10年間
0万円 168,211円/月 193,874円/月 229,826円/月 283,781円/月 373,743円/月 553,724円/月
5万円 159,125円/月 184,899円/月 220,959円/月 275,022円/月 365,092円/月 545,179円/月
10万円 150,040円/月 175,923円/月 212,092円/月 266,263円/月 356,440円/月 536,634円/月
15万円 140,954円/月 166,947円/月 203,225円/月 257,505円/月 347,789円/月 528,089円/月
20万円 131,869円/月 157,972円/月 194,359円/月 248,746円/月 339,137円/月 519,544円/月
25万円 122,783円/月 148,996円/月 185,492円/月 239,987円/月 330,486円/月 510,999円/月
30万円 113,698円/月 140,020円/月 176,625円/月 231,229円/月 321,834円/月 502,454円/月
支払い利息合計 5,870,390円~ 5,013,360円~ 4,163,200円~ 3,319,920円~ 2,483,070円~ 1,653,220円~
※元利均等返済方式で試算しています。 「円」の単位以下の端数金額は「切り捨て」として計算しております。
※金利は、固定金利として計算しております。
※上記の住宅ローン返済額一覧は、あくまで試算であり、将来の金利動向により、実際のご返済額とは異なります。
※ボーナス支払総額が総支払額の50%を超えている場合、上記の表では「ローン不可」となります。
※住宅ローン返済額一覧の数値は、住宅ローンのお申し込みやご融資をお約束するものではございません。
物件を見たい、物件や住環境の詳しい情報やローン相談など、
お問い合わせ先
タカラの仲介「MUSUBU」株式会社タカラレーベンリアルネット さいたまセンター

掲載情報の著作権は提供元企業等に帰属します。
Copyright:(C) 2025 LIFULL Co.,Ltd.
アプリで簡単 物件探し 大手不動産サイトの情報から一括検!プッシュ通知で物件を見逃さない
App Storeからダウンロード Google Playで手に入れよう QRコード