アプリで簡単 物件探し 通知 共有 アプリならではの機能を使ってみる
中古マンション

トラウム見次公園 4階 2DK

情報提供元
LIFULL HOME'S
トラウム見次公園
価格 1450万円  (管理費等:2,214円)
修繕積立金 7,749円
交通
所在地 東京都板橋区前野町4丁目30-9周辺地図
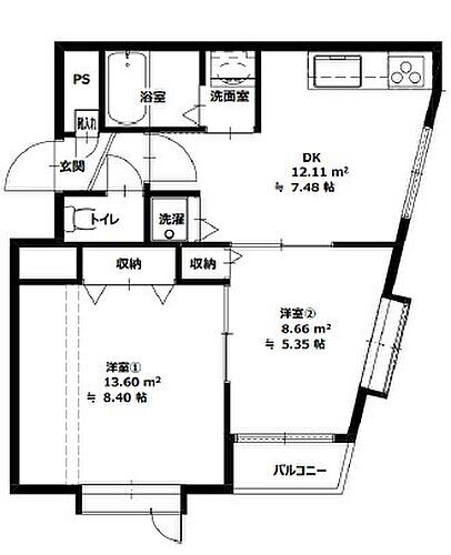
間取り 2DK 専有面積 36.9m2
所在階/階数 4階/4階建 方位 -
築年月 1995年2月 築年数 築30年10ヶ月
おすすめポイント
バルコニーは1平米となっておりますが確認中になります。リフォーム済み物件となります!。四季の彩りに包まれ、夫婦・一人暮らしで心地よく過ごせる住環境が整っています!ぜひお気軽にお問い合わせください。
最上階
物件を見たい、物件や住環境の詳しい情報やローン相談など、
お問い合わせ先
株式会社グッドライフ

詳細情報

価格 1450万円 管理費等 2,214円
駐車場   修繕積立金 7,749円
所在地 東京都板橋区前野町4丁目30-9周辺地図
交通
  • 都営地下鉄三田線 志村三丁目駅 徒歩12分乗換案内
  • 都営地下鉄三田線 志村三丁目駅 徒歩13分乗換案内
物件名 トラウム見次公園
築年月(築年数) 1995年2月(築30年10ヶ月) 間取り 2DK
総戸数 10戸 専有面積 36.9m2
所在階/階数 4階/4階建 バルコニー面積 1m2
方位 建物構造 RC
管理形態 自主管理 管理員の勤務形態
維持費等 土地権利 所有権
用途地域 借地期間・地代
現況 空室 引渡可能年月 相談
情報提供元 LIFULL HOME'S [1375990002248] 情報公開日
情報更新日 次回更新予定日 2025年11月18日

設備など

ペット相談可 - 即入居可 - 南向き -
角部屋 - 駐車場空き有り - トランクルーム -
オートロック - 宅配ボックス - 浴室乾燥機 -
床暖房 - ウォークインクローゼット - 管理人常駐 -
最上階 2階以上 タワーマンション -
設備 バルコニー
リフォーム履歴 -
リノベーション履歴 -
備考 【物件周辺の生活情報】
・学校
板橋区立志村小学校(780m)、私立淑徳中学校(830m)
・買い物
スーパー(380m)、コンビニ(380m)、ドラッグストア(220m)
・その他施設
総合病院(620m)、公園(500m)、銀行(750m)
施工会社:美光建設
特記事項 最上階

省エネ性能

エネルギー消費性能 -
断熱性能 -
目安光熱費 -

東京都板橋区前野町4丁目30-9 周辺地図情報

地図
※地図上に表示される物件の位置は付近住所に所在することを表すものであり、実際の物件所在地とは異なる場合がございます。
   正確な物件所在地は、取扱い不動産会社にお問い合わせください。
物件を見たい、物件や住環境の詳しい情報やローン相談など、
お問い合わせ先
株式会社グッドライフ

不動産会社情報

お問い合わせ先 商号:株式会社グッドライフ
免許番号:国土交通大臣免許(2)第9663号
所在地:東京都港区六本木3丁目2‐1 住友不動産六本木グランドタワー16階
取引態様:売主
管理コード:2248
所属協会など:所属団体未加入
共有する
QRコード

お電話でのお問い合わせ

電話をかける(携帯・PHS可)
お問い合わせダイヤル
通話無料0037-634-25572
営業時間 10:00~19:00 (定休日:毎週水曜日)
音声案内に従って数字を入力
お問い合わせ番号
30698-2972
不動産会社につながります
不動産会社のスタッフと
直接電話で話せます。
※不動産会社がお電話に出られなかった場合、株式会社LIFULLは電話会社が提供するサービスを介してお客様の発信者番号を受領後、折り返し専用の電話番号を発番してお問合せの不動産会社に通知します(お客様の発信者番号がお問合せの不動産会社に通知されることはございません)
※光IP電話、及びIP電話からはご利用になれません
※0037で始まる電話番号に携帯電話からお問合せいただいた方には、ショートメッセージ(SMS)によるお問合せ完了通知をお届けする場合があります
物件を見たい、物件や住環境の詳しい情報やローン相談など、
お問い合わせ先
株式会社グッドライフ

板橋区の暮らしデータ

人口などの統計情報

世帯数 314133世帯
人口総数 572927人
転入者数 46136人
転入率(人口1000人当たり)
80.53人
転出者数 37895人
転出率(人口1000人当たり)
66.14人
土地平均価格
住宅地
488053円/m2
商業地
851462円/m2

結婚・育児の助成金

子育て関連の独自の取り組み (1)すくすくカード事業。(2)赤ちゃんの駅事業。(3)児童館における乳幼児親子向けプログラム及び相談事業の拡充。(4)乳幼児親子専用のお部屋「すくすくサロン」の児童館全館設置。(5)発達が気になる乳幼児親子向け事業「ほっとプログラム」の実施、その親子が安心して過ごせるお部屋「ほっとサロン」の設置。(6)東京家政大学内の緑豊かで安全な環境で実施される「森のサロン」(地域子育て支援拠点事業)。(7)子育て出張相談。(8)いたばし子育て応援アプリの配信。
出産祝い あり
公立保育所数 37所(うち0歳児保育を実施している保育所:30所)
私立保育所数 105所(うち0歳児保育を実施している保育所:97所)
保育所入所待機児童数 0人
認定こども園数 3園 預かり保育実施園数 公立:1園 私立:29園
学校給食 【小学校】完全給食【中学校】完全給食
公立中学校の学校選択制 実施(新入学時)
子ども・学生等医療費助成<通院>対象年齢 18歳3月末まで 子ども・学生等医療費助成<入院>対象年齢 18歳3月末まで

板橋区の治安・ごみ収集情報

公共料金・インフラ

ガス料金(22m3使用した場合の月額) 東京瓦斯株式会社(東京地区等)3926円
水道料金(口径20mmで20m3の月額) 東京都水道局2816円
下水道料金(20m3を使用した場合の月額) 東京都下水道局2068円
下水道普及率 100.0%

安心・安全

建物火災出火件数 104件
人口10000人当たり
1.78件
刑法犯認知件数 2916件
人口1000人当たり
4.99件
ハザード・防災マップ あり

医療

一般病院総数 41ヶ所
一般診療所総数 399ヶ所
小児科医師数 181人
小児人口10000人当たり
31.10人
産婦人科医師数 87人
15~49歳女性人口1万人当たり
6.47人
介護保険料基準額(月額) 6520円

ごみ

家庭ごみ収集(可燃ごみ) 無料
備考
引越しなどで、1日に10kg以上の資源、可燃ごみ、不燃ごみを出す場合は、通常とは別に臨時に有料にて収集を行う(家庭から出るもので、分別されたものに限る)。
家庭ごみの分別方式 3分別11種〔可燃ごみ 不燃ごみ 資源(古紙[新聞、雑誌、段ボール、紙パック、紙箱・紙袋・OA用紙]、びん、缶、ペットボトル、プラスチック)〕 拠点回収:廃食用油 古布・古着 使用済小型家電 食品用トレイ 紙パック ボトル容器 乾電池、ハブラシ
家庭ごみの戸別収集 一部実施(【板橋区高齢者・障害者ごみ戸別収集サービス】障がい者・高齢者のみ実施)
粗大ごみ収集 あり
備考
有料。事前申込制。
生ごみ処理機助成金制度 なし
上限金額
-
上限比率
-

板橋区の住まいの給付金

中古購入

利子補給制度 なし
補助/助成金制度 なし

増築・改築・改修

利子補給制度 なし
補助/助成金制度 あり
上限金額
100万円
備考
【耐震補強工事助成】工事費の1/2で上限75万円。高齢者等の場合は、工事費の2/3で上限100万円。2000年5月31日以前に建築された木造住宅(2階建て以下)、個人の建物所有者等、区民税等を滞納していない、国認定の耐震診断法による評点が1.0未満で、その診断結果に基づいた評点1.0以上の耐震計画の補強工事である、建築基準法における重大な違反がない等の条件あり。
暮らしデータ提供元:生活ガイド.com
※行政機関により公表していない地域及びデータがございます。東京23区以外の政令指定都市は、市全体のデータとして表示しています。
※提供データには細心の注意を払っておりますが、調査後に変更がある場合があります。 最新の情報につきましては各市区役所までお問い合わせいただくか、自治体HPなどをご確認ください。
OCN×ドコモ光新規お申込みで合計最大137,280円相当おトク!特典の内訳・適用条件など詳細はこちら

板橋区内の各駅の住みやすさ

住宅ローンの返済額一覧

物件価格 1450万円に対して、年率 で、頭金 の場合
↓ボーナス 35年間 30年間 25年間 20年間 15年間 10年間
0万円 24,660円/月 28,423円/月 33,693円/月 41,603円/月 54,792円/月 81,178円/月
5万円 15,575円/月 19,447円/月 24,826円/月 32,845円/月 46,141円/月 72,633円/月
10万円 ローン不可 ローン不可 ローン不可 24,086円/月 37,489円/月 64,088円/月
15万円 ローン不可 ローン不可 ローン不可 ローン不可 28,838円/月 55,543円/月
20万円 ローン不可 ローン不可 ローン不可 ローン不可 ローン不可 46,998円/月
25万円 ローン不可 ローン不可 ローン不可 ローン不可 ローン不可 ローン不可
30万円 ローン不可 ローン不可 ローン不可 ローン不可 ローン不可 ローン不可
支払い利息合計 860,980円~ 735,280円~ 610,400円~ 488,960円~ 367,300円~ 245,580円~
※元利均等返済方式で試算しています。 「円」の単位以下の端数金額は「切り捨て」として計算しております。
※金利は、固定金利として計算しております。
※上記の住宅ローン返済額一覧は、あくまで試算であり、将来の金利動向により、実際のご返済額とは異なります。
※ボーナス支払総額が総支払額の50%を超えている場合、上記の表では「ローン不可」となります。
※住宅ローン返済額一覧の数値は、住宅ローンのお申し込みやご融資をお約束するものではございません。
物件を見たい、物件や住環境の詳しい情報やローン相談など、
お問い合わせ先
株式会社グッドライフ

掲載情報の著作権は提供元企業等に帰属します。
Copyright:(C) 2025 LIFULL Co.,Ltd.
アプリで簡単 物件探し 大手不動産サイトの情報から一括検!プッシュ通知で物件を見逃さない
App Storeからダウンロード Google Playで手に入れよう QRコード