アプリで簡単 物件探し 通知 共有 アプリならではの機能を使ってみる
中古マンション

フォレストレジデンス 12階 4LDK

情報提供元
LIFULL HOME'S
フォレストレジデンス
価格 3180万円  (管理費等:17,835円)
修繕積立金 16,380円
交通
所在地 埼玉県ふじみ野市鶴ケ岡5丁目周辺地図
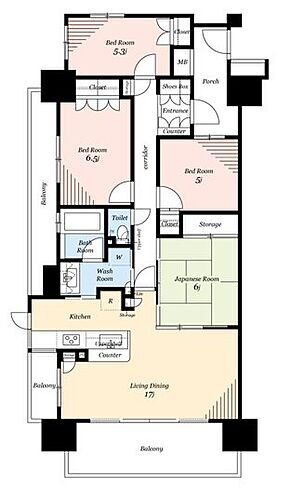
間取り 4LDK 専有面積 70.99m2(壁芯)
所在階/階数 12階/14階建 方位 南西
築年月 2010年10月 築年数 築15年2ヶ月
おすすめポイント
ウルハホームおすすめ物件です!当日のご案内も可能ですので、気軽にお問い合わせ下さい!
角部屋
物件を見たい、物件や住環境の詳しい情報やローン相談など、
お問い合わせ先
株式会社ウルハホーム

詳細情報

価格 3180万円 管理費等 17,835円
駐車場 有 3,900円 修繕積立金 16,380円
所在地 埼玉県ふじみ野市鶴ケ岡5丁目周辺地図
交通
  • 東武鉄道東上線 上福岡駅 徒歩25分乗換案内
物件名 フォレストレジデンス
築年月(築年数) 2010年10月(築15年2ヶ月) 間取り 4LDK
総戸数 340戸 専有面積 70.99m2(壁芯)
所在階/階数 12階/14階建 バルコニー面積 22m2
方位 南西 建物構造 RC
管理形態 全部委託 管理員の勤務形態 日勤
維持費等 土地権利 所有権
用途地域 借地期間・地代
現況 空室 引渡可能年月 相談
情報提供元 LIFULL HOME'S [1416560006274] 情報公開日
情報更新日 次回更新予定日 2025年11月27日

設備など

ペット相談可 - 即入居可 - 南向き -
角部屋 駐車場空き有り トランクルーム -
オートロック 宅配ボックス - 浴室乾燥機 -
床暖房 - ウォークインクローゼット - 管理人常駐 -
最上階 - 2階以上 タワーマンション -
設備 リフォーム・バス・トイレ別・シャワー・コンロ2口以上・システムキッチン・室内洗濯機置き場・オートロック・エレベーター・バルコニー・駐輪場・バイク置き場・カウンターキッチン・クローゼット
リフォーム履歴 ■水回り
2024年08月実施
キッチン/浴室/トイレ
■内装
2024年08月実施
床(フローリング等)
壁紙(クロス),全室,畳,洗面化粧台・建具・照明器具・給湯器・スイッチコンセント・襖。
・備考
システムキッチン・ユニットバス・洗面化粧台・トイレ・建具・照明器具・給湯器交換。クロス・床材張替。
※実施年月は、施工箇所の中で最も古いものを表示しています
リノベーション履歴 -
備考 【物件周辺の生活情報】
・学校
ふじみ野市立三角小学校(1,200m)、ふじみ野市立大井西中学校(1,500m)
・買い物
スーパー(470m)、コンビニ(210m)、ドラッグストア(490m)
・その他施設
総合病院(742m)、ゆずり葉保育園(884m)
多くの金融機関の住宅ローンご紹介可能。もちろん住宅ローン無料相談も行っておりますので、年収や自己資金が不安の方はぜひご相談ください。提携駐車場、キッズコーナー、オムツ交換台設置でお子様連れでも安心してご来店いただけます。 【駐車場備考】※空き状況は管理会社へ要確認 【設備・特記事項備考】専用トイレ・全居室収納
国土法届出:不要
その他:510円
特記事項 角部屋

省エネ性能

エネルギー消費性能 -
断熱性能 -
目安光熱費 -

埼玉県ふじみ野市鶴ケ岡5丁目 周辺地図情報

地図
※地図上に表示される物件の位置は付近住所に所在することを表すものであり、実際の物件所在地とは異なる場合がございます。
   正確な物件所在地は、取扱い不動産会社にお問い合わせください。
物件を見たい、物件や住環境の詳しい情報やローン相談など、
お問い合わせ先
株式会社ウルハホーム

不動産会社情報

お問い合わせ先 商号:株式会社ウルハホーム
免許番号:埼玉県知事免許(02)第023752号
所在地:埼玉県川越市連雀町3-1
取引態様:媒介
管理コード:6274
所属協会など:(公財)東日本不動産流通機構、(公社)首都圏不動産公正取引協議会、(公社)埼玉県宅地建物取引業協会
共有する
QRコード

お電話でのお問い合わせ

電話をかける(携帯・PHS可)
お問い合わせダイヤル
通話無料0037-634-46891
営業時間 10:00~19:00 (定休日:火曜・水曜 (年末年始))
音声案内に従って数字を入力
お問い合わせ番号
04047-2971
不動産会社につながります
不動産会社のスタッフと
直接電話で話せます。
※不動産会社がお電話に出られなかった場合、株式会社LIFULLは電話会社が提供するサービスを介してお客様の発信者番号を受領後、折り返し専用の電話番号を発番してお問合せの不動産会社に通知します(お客様の発信者番号がお問合せの不動産会社に通知されることはございません)
※光IP電話、及びIP電話からはご利用になれません
※0037で始まる電話番号に携帯電話からお問合せいただいた方には、ショートメッセージ(SMS)によるお問合せ完了通知をお届けする場合があります
物件を見たい、物件や住環境の詳しい情報やローン相談など、
お問い合わせ先
株式会社ウルハホーム

ふじみ野市の暮らしデータ

人口などの統計情報

世帯数 49338世帯
人口総数 114363人
転入者数 6062人
転入率(人口1000人当たり)
53.01人
転出者数 5082人
転出率(人口1000人当たり)
44.44人
土地平均価格
住宅地
195500円/m2
商業地
275000円/m2

結婚・育児の助成金

子育て関連の独自の取り組み -
出産祝い なし
公立保育所数 5所(うち0歳児保育を実施している保育所:4所)
私立保育所数 16所(うち0歳児保育を実施している保育所:16所)
保育所入所待機児童数 2人
認定こども園数 2園 預かり保育実施園数 公立:- 私立:7園
学校給食 【小学校】完全給食【中学校】完全給食
公立中学校の学校選択制 未実施
子ども・学生等医療費助成<通院>対象年齢 18歳3月末まで 子ども・学生等医療費助成<入院>対象年齢 18歳3月末まで

ふじみ野市の治安・ごみ収集情報

公共料金・インフラ

ガス料金(22m3使用した場合の月額) 武州瓦斯株式会社4281円
水道料金(口径20mmで20m3の月額) ふじみ野市2598円
下水道料金(20m3を使用した場合の月額) ふじみ野市1367円
下水道普及率 94.4%

安心・安全

建物火災出火件数 8件
人口10000人当たり
0.70件
刑法犯認知件数 694件
人口1000人当たり
6.11件
ハザード・防災マップ あり

医療

一般病院総数 3ヶ所
一般診療所総数 69ヶ所
小児科医師数 13人
小児人口10000人当たり
9.39人
産婦人科医師数 2人
15~49歳女性人口1万人当たり
0.88人
介護保険料基準額(月額) 5750円

ごみ

家庭ごみ収集(可燃ごみ) 無料
備考
-
家庭ごみの分別方式 5分別17種〔もやすごみ もやさないごみ 有害ごみ(スプレー缶、蛍光管・電球・水銀体温計・使い捨てライター、乾電池) 容器包装プラスチック類 容器包装以外のプラスチック類(容器包装以外のプラスチック類、テープ類) 資源物(びん[色付きびん、透明・白色びん]、新聞紙、ダンボール、紙パック、布類、飲み物のかん、ペットボトル、雑誌・雑がみ)〕
家庭ごみの戸別収集 一部実施(【ふれあい収集事業】)
粗大ごみ収集 あり
備考
無料。ステーション収集。2週間に1回。もえる素材のもの30cm以上。もえない素材のもの50cm以上。1度につき1世帯2点まで。
生ごみ処理機助成金制度 なし
上限金額
-
上限比率
-

ふじみ野市の住まいの給付金

中古購入

利子補給制度 なし
補助/助成金制度 なし

増築・改築・改修

利子補給制度 なし
補助/助成金制度 あり
上限金額
35万円
備考
【既存住宅耐震診断料・耐震改修工事費補助金交】1981年5月31日以前に着工された戸建専用住宅および戸建兼用住宅の診断に要した費用の2/3、補助限度額5万円(共同住宅および長屋住宅向け補助もあり)。1981年5月31日以前に着工された戸建専用住宅および戸建兼用住宅の改修に要した費用の23%、補助限度額30万円(共同住宅および長屋住宅向け補助もあり)。
暮らしデータ提供元:生活ガイド.com
※行政機関により公表していない地域及びデータがございます。東京23区以外の政令指定都市は、市全体のデータとして表示しています。
※提供データには細心の注意を払っておりますが、調査後に変更がある場合があります。 最新の情報につきましては各市区役所までお問い合わせいただくか、自治体HPなどをご確認ください。
OCN×ドコモ光新規お申込みで合計最大137,280円相当おトク!特典の内訳・適用条件など詳細はこちら

ふじみ野市内の各駅の住みやすさ

住宅ローンの返済額一覧

物件価格 3180万円に対して、年率 で、頭金 の場合
↓ボーナス 35年間 30年間 25年間 20年間 15年間 10年間
0万円 69,568円/月 80,182円/月 95,051円/月 117,366円/月 154,573円/月 229,009円/月
5万円 60,483円/月 71,207円/月 86,184円/月 108,607円/月 145,921円/月 220,464円/月
10万円 51,397円/月 62,231円/月 77,318円/月 99,848円/月 137,270円/月 211,919円/月
15万円 42,312円/月 53,255円/月 68,451円/月 91,090円/月 128,618円/月 203,374円/月
20万円 ローン不可 44,280円/月 59,584円/月 82,331円/月 119,967円/月 194,829円/月
25万円 ローン不可 ローン不可 50,717円/月 73,572円/月 111,315円/月 186,284円/月
30万円 ローン不可 ローン不可 ローン不可 64,814円/月 102,664円/月 177,738円/月
支払い利息合計 2,429,620円~ 2,078,240円~ 1,728,200円~ 1,380,320円~ 1,032,470円~ 687,300円~
※元利均等返済方式で試算しています。 「円」の単位以下の端数金額は「切り捨て」として計算しております。
※金利は、固定金利として計算しております。
※上記の住宅ローン返済額一覧は、あくまで試算であり、将来の金利動向により、実際のご返済額とは異なります。
※ボーナス支払総額が総支払額の50%を超えている場合、上記の表では「ローン不可」となります。
※住宅ローン返済額一覧の数値は、住宅ローンのお申し込みやご融資をお約束するものではございません。
物件を見たい、物件や住環境の詳しい情報やローン相談など、
お問い合わせ先
株式会社ウルハホーム

掲載情報の著作権は提供元企業等に帰属します。
Copyright:(C) 2025 LIFULL Co.,Ltd.
アプリで簡単 物件探し 大手不動産サイトの情報から一括検!プッシュ通知で物件を見逃さない
App Storeからダウンロード Google Playで手に入れよう QRコード