アプリで簡単 物件探し 通知 共有 アプリならではの機能を使ってみる
中古マンション

ダイアパレス東浦和2 1階 3LDK

情報提供元
LIFULL HOME'S
ダイアパレス東浦和2 【外観】こちらの物件が少しでも気になるようでしたら、お気軽にお問合せください。人生でいちばん大きなお買い物ですので、ゆっくりご見学ください。ネット上の画像と実際の見学では、リアル感がまるで違…
価格 2290万円  (管理費等:14,600円)
修繕積立金 14,890円
交通
所在地 埼玉県川口市柳崎5丁目周辺地図
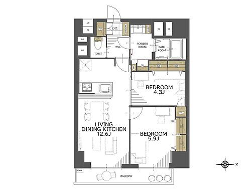
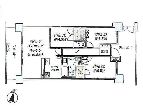
間取り 3LDK 専有面積 64.41m2(壁芯)
所在階/階数 1階/7階建 方位
築年月 1995年9月 築年数 築30年4ヶ月
おすすめポイント
《当日見学可能な物件です!》~■■見学予約は【0120-919-113】まで。お気軽にお問合せ下さい
角部屋
物件を見たい、物件や住環境の詳しい情報やローン相談など、
お問い合わせ先
株式会社東宝ハウス浦和

詳細情報

価格 2290万円 管理費等 14,600円
駐車場 空無 修繕積立金 14,890円
所在地 埼玉県川口市柳崎5丁目周辺地図
交通
物件名 ダイアパレス東浦和2
築年月(築年数) 1995年9月(築30年4ヶ月) 間取り 3LDK
総戸数 26戸 専有面積 64.41m2(壁芯)
所在階/階数 1階/7階建 バルコニー面積 15.49m2
方位 建物構造 RC
管理形態 全部委託 管理員の勤務形態 日勤
維持費等 土地権利 所有権
用途地域 2種中高 借地期間・地代
現況 空室 引渡可能年月 即時
情報提供元 LIFULL HOME'S [1489590010011] 情報公開日
情報更新日 次回更新予定日 2025年12月21日

設備など

ペット相談可 - 即入居可 南向き
角部屋 駐車場空き有り - トランクルーム -
オートロック - 宅配ボックス - 浴室乾燥機
床暖房 - ウォークインクローゼット - 管理人常駐 -
最上階 - 2階以上 - タワーマンション -
設備 リフォーム・システムキッチン・エアコン・エレベーター・バルコニー・駐輪場・温水洗浄便座・浴室乾燥機・食器洗浄乾燥機・クローゼット
リフォーム履歴 ■水回り
2024年11月実施
キッチン/浴室/トイレ/洗面所
■内装
2024年11月実施
壁・天井(クロス・塗装等)/床(フローリング等)/建具(室内ドア等)
・備考
システムキッチン(食洗器付)交換 ユニットバス(浴室乾燥機)交換 洗面化粧台(三面鏡付)交換 トイレ(ウォシュレット付)交換 全室建具・下駄箱交換 給排水管交換 エアコン設置 フロアタイル仕上げ 間…
※実施年月は、施工箇所の中で最も古いものを表示しています
リノベーション履歴 -
備考 【物件周辺の生活情報】
・学校
川口市立柳崎小学校(300m)、川口市立芝東中学校(2,010m)
・その他施設
総合病院(1,480m)
駐輪場使用料:月額100円/バイク置き場使用料:月額300~1500円。 
国土法届出:不要
販売戸数:1戸
特記事項 角部屋

省エネ性能

エネルギー消費性能 -
断熱性能 -
目安光熱費 -

埼玉県川口市柳崎5丁目 周辺地図情報

地図
※地図上に表示される物件の位置は付近住所に所在することを表すものであり、実際の物件所在地とは異なる場合がございます。
   正確な物件所在地は、取扱い不動産会社にお問い合わせください。
物件を見たい、物件や住環境の詳しい情報やローン相談など、
お問い合わせ先
株式会社東宝ハウス浦和

不動産会社情報

お問い合わせ先 商号:株式会社東宝ハウス浦和
免許番号:埼玉県知事(04)第021060号
所在地:埼玉県さいたま市浦和区岸町6丁目1-5
取引態様:媒介
管理コード:10011
所属協会など:(公社)首都圏不動産公正取引協議会、(公社)全日本不動産協会
共有する
QRコード

お電話でのお問い合わせ

電話をかける(携帯・PHS可)
お問い合わせダイヤル
通話無料0037-634-40566
営業時間 07:00~22:00 (定休日:年中無休)
音声案内に従って数字を入力
お問い合わせ番号
53824-2973
不動産会社につながります
不動産会社のスタッフと
直接電話で話せます。
※不動産会社がお電話に出られなかった場合、株式会社LIFULLは電話会社が提供するサービスを介してお客様の発信者番号を受領後、折り返し専用の電話番号を発番してお問合せの不動産会社に通知します(お客様の発信者番号がお問合せの不動産会社に通知されることはございません)
※光IP電話、及びIP電話からはご利用になれません
※0037で始まる電話番号に携帯電話からお問合せいただいた方には、ショートメッセージ(SMS)によるお問合せ完了通知をお届けする場合があります
物件を見たい、物件や住環境の詳しい情報やローン相談など、
お問い合わせ先
株式会社東宝ハウス浦和

川口市の暮らしデータ

人口などの統計情報

世帯数 266756世帯
人口総数 606315人
転入者数 34070人
転入率(人口1000人当たり)
56.19人
転出者数 26834人
転出率(人口1000人当たり)
44.26人
土地平均価格
住宅地
249610円/m2
商業地
718600円/m2

結婚・育児の助成金

子育て関連の独自の取り組み -
出産祝い あり
公立保育所数 41所(うち0歳児保育を実施している保育所:17所)
私立保育所数 92所(うち0歳児保育を実施している保育所:82所)
保育所入所待機児童数 10人
認定こども園数 5園 預かり保育実施園数 公立:0園 私立:36園
学校給食 【小学校】完全給食【中学校】完全給食
公立中学校の学校選択制 未実施
子ども・学生等医療費助成<通院>対象年齢 中学校卒業まで 子ども・学生等医療費助成<入院>対象年齢 中学校卒業まで

川口市の治安・ごみ収集情報

公共料金・インフラ

ガス料金(22m3使用した場合の月額) 東京瓦斯株式会社(東京地区等)3926円
大東ガス株式会社4335円
水道料金(口径20mmで20m3の月額) 川口市3553円
下水道料金(20m3を使用した場合の月額) 川口市1998円
下水道普及率 88.8%

安心・安全

建物火災出火件数 94件
人口10000人当たり
1.58件
刑法犯認知件数 4437件
人口1000人当たり
7.47件
ハザード・防災マップ あり

医療

一般病院総数 21ヶ所
一般診療所総数 339ヶ所
小児科医師数 88人
小児人口10000人当たり
12.52人
産婦人科医師数 34人
15~49歳女性人口1万人当たり
2.68人
介護保険料基準額(月額) 6077円

ごみ

家庭ごみ収集(可燃ごみ) 無料
備考
施設への自己搬入においては100kgまで無料。100kgを超えた分につき、30円/10kgの処分手数料が必要。
家庭ごみの分別方式 3分別13種〔一般ごみ 有害ごみ 資源物(プラスチック製容器包装、びん、飲料かん、金属類、ペットボトル、繊維類、紙類[紙パック、新聞紙、雑誌・雑紙、ダンボール、紙製容器包装])〕 拠点回収:乾電池
家庭ごみの戸別収集 一部実施(ふれあい収集)
粗大ごみ収集 あり
備考
有料。戸別収集。事前申込制。
生ごみ処理機助成金制度 あり
上限金額
24000円
上限比率
50.0%

川口市の住まいの給付金

中古購入

利子補給制度 なし
補助/助成金制度 なし

増築・改築・改修

利子補給制度 なし
補助/助成金制度 あり
上限金額
(1)10万円(2)6.5万円(3)40万円
備考
(1)【川口市住宅リフォーム補助金】住宅改修工事に要する費用の5%を助成。(上限10万円)。他要件あり。(2)【川口市既存建築物耐震診断補助金】対象となる建築物の耐震診断費の2/3を助成。戸建て住宅は上限6.5万円。共同住宅等は上限150万円。他要件あり。(3)【川口市既存建築物耐震改修補助金】対象となる建築物の耐震改修費の23%を助成。戸建て住宅は上限40万円。共同住宅等は上限300万円。他要件あり。
暮らしデータ提供元:生活ガイド.com
※行政機関により公表していない地域及びデータがございます。東京23区以外の政令指定都市は、市全体のデータとして表示しています。
※提供データには細心の注意を払っておりますが、調査後に変更がある場合があります。 最新の情報につきましては各市区役所までお問い合わせいただくか、自治体HPなどをご確認ください。
OCN×ドコモ光新規お申込みで合計最大137,280円相当おトク!特典の内訳・適用条件など詳細はこちら

川口市内の各駅の住みやすさ

住宅ローンの返済額一覧

物件価格 2290万円に対して、年率 で、頭金 の場合
↓ボーナス 35年間 30年間 25年間 20年間 15年間 10年間
0万円 46,465円/月 53,554円/月 63,485円/月 78,390円/月 103,240円/月 152,957円/月
5万円 37,380円/月 44,579円/月 54,619円/月 69,631円/月 94,589円/月 144,412円/月
10万円 28,294円/月 35,603円/月 45,752円/月 60,872円/月 85,937円/月 135,867円/月
15万円 ローン不可 ローン不可 36,885円/月 52,114円/月 77,286円/月 127,322円/月
20万円 ローン不可 ローン不可 ローン不可 43,355円/月 68,635円/月 118,777円/月
25万円 ローン不可 ローン不可 ローン不可 ローン不可 59,983円/月 110,232円/月
30万円 ローン不可 ローン不可 ローン不可 ローン不可 ローン不可 101,687円/月
支払い利息合計 1,622,510円~ 1,385,800円~ 1,153,350円~ 921,840円~ 691,060円~ 461,180円~
※元利均等返済方式で試算しています。 「円」の単位以下の端数金額は「切り捨て」として計算しております。
※金利は、固定金利として計算しております。
※上記の住宅ローン返済額一覧は、あくまで試算であり、将来の金利動向により、実際のご返済額とは異なります。
※ボーナス支払総額が総支払額の50%を超えている場合、上記の表では「ローン不可」となります。
※住宅ローン返済額一覧の数値は、住宅ローンのお申し込みやご融資をお約束するものではございません。
物件を見たい、物件や住環境の詳しい情報やローン相談など、
お問い合わせ先
株式会社東宝ハウス浦和

掲載情報の著作権は提供元企業等に帰属します。
Copyright:(C) 2025 LIFULL Co.,Ltd.
アプリで簡単 物件探し 大手不動産サイトの情報から一括検!プッシュ通知で物件を見逃さない
App Storeからダウンロード Google Playで手に入れよう QRコード