アプリで簡単 物件探し 通知 共有 アプリならではの機能を使ってみる
中古マンション

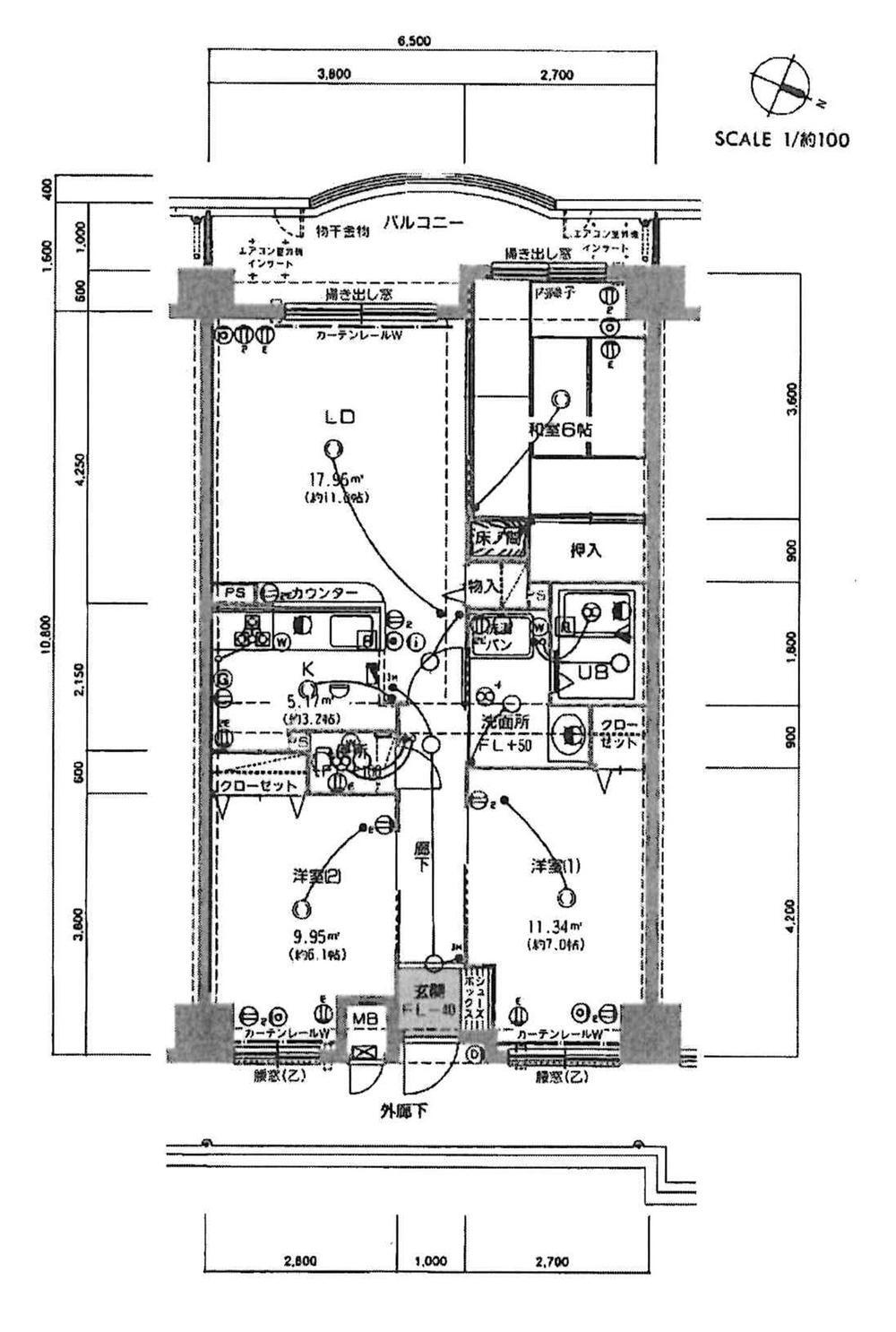
カーサ希望ヶ丘 壱番館 (ペットと共生できるリゾートマンション) 2階 3LDK

情報提供元
SUUMO
カーサ希望ヶ丘 壱番館 (ペットと共生できるリゾートマンション) 外観(2025年11月)撮影
価格 890万円  (管理費等:1万1000円/月(委託(巡回)))
修繕積立金 9,900円
交通
所在地 福岡県糸島市二丈福井周辺地図
間取り 3LDK 専有面積 70.76m2(壁芯)
所在階/階数 2階/7階建 方位
築年月 1996年2月 築年数 築29年11ヶ月
おすすめポイント
◎ペットと一緒に住めます(2匹まで)◎「希望の水」をご利用いただけます二丈の山から湧き出るおいしいお水です◎平面駐車場、トランクルーム空きあり◎階下にお部屋がなく、足音を気にせずお過ごしいただけます◎ロビーを出てすぐのお部屋のため、足腰が不安なお客様にも住みやすいお部屋◎唐津方面へのアクセスも良く、ツーリングがお好きな方にもおすすめ◎屋上バルコニーからは、雄大な海を眺めることができます◎敷地内に公園があります◎海や山、桜を気軽にお楽しみいただけるロケーション週末はマリンスポーツやバイクを楽しんだり、余暇の楽しみが広がります◎リフォームのご相談も承ります
ペット相談可・日当り良好・閑静な住宅街・管理人巡回
お問い合わせ先
ハウスドゥ 筑前前原駅前(株)エフォール
物件を見たい、物件や住環境の詳しい情報やローン相談など、
お問い合わせ先
ハウスドゥ 筑前前原駅前(株)エフォール

詳細情報

価格 890万円 管理費等 1万1000円/月(委託(巡回))
駐車場 敷地内(3500円/月) 修繕積立金 9,900円
所在地 福岡県糸島市二丈福井周辺地図
交通
物件名 カーサ希望ヶ丘 壱番館 (ペットと共生できるリゾートマンション)
築年月(築年数) 1996年2月(築29年11ヶ月) 間取り 3LDK
総戸数 35戸 専有面積 70.76m2(壁芯)
所在階/階数 2階/7階建 バルコニー面積 9.71m2
方位 建物構造 RC
管理形態 委託管理
維持費等 町会費100円 土地権利 所有権
用途地域 借地期間・地代
現況 引渡可能年月 即時
情報提供元 SUUMO [090Z78792927] 情報公開日
情報更新日 次回更新予定日 随時

設備など

ペット相談可 即入居可 南向き -
角部屋 - 駐車場空き有り トランクルーム -
オートロック - 宅配ボックス 浴室乾燥機 -
床暖房 - ウォークインクローゼット - 管理人常駐 -
最上階 - 2階以上 タワーマンション -
設備 トイレ・収納スペース・エレベーター・温水洗浄便座・システムキッチン・モニタ付インターホン・風呂・対面K・省エネ給湯器・駐輪場・宅配BOX・キッズルーム
リフォーム履歴 -
リノベーション履歴 -
備考 <物件名>カーサ希望ヶ丘 壱番館 (ペットと共生できるリゾートマンション)/<駐車場>敷地内/委託(巡回)/<土地権利>所有権/<間取り>3LDK/<特徴>自然とアクセスに恵まれたロケーション◎天神まで車で約30分(高速利用)、年内引渡可・即引渡可・オーシャンビュー・省エネ給湯器・山が見える
販売戸数:1戸/管理費等帯:11000円/修繕積立金帯:9900円
特記事項 ペット相談可・日当り良好・閑静な住宅街・管理人巡回

省エネ性能

エネルギー消費性能 -
断熱性能 -
目安光熱費 -

福岡県糸島市二丈福井 周辺地図情報

地図
※地図上に表示される物件の位置は付近住所に所在することを表すものであり、実際の物件所在地とは異なる場合がございます。
   正確な物件所在地は、取扱い不動産会社にお問い合わせください。
物件を見たい、物件や住環境の詳しい情報やローン相談など、
お問い合わせ先
ハウスドゥ 筑前前原駅前(株)エフォール

不動産会社情報

お問い合わせ先 商号:ハウスドゥ 筑前前原駅前(株)エフォール
免許番号:福岡県知事(4)第016400号
所在地:福岡県糸島市前原中央1-1-17
TEL:092-332-8839
取引態様:専任媒介
共有する
QRコード
物件を見たい、物件や住環境の詳しい情報やローン相談など、
お問い合わせ先
ハウスドゥ 筑前前原駅前(株)エフォール

糸島市の暮らしデータ

人口などの統計情報

世帯数 37721世帯
人口総数 103833人
転入者数 4250人
転入率(人口1000人当たり)
40.93人
転出者数 3494人
転出率(人口1000人当たり)
33.65人
土地平均価格
住宅地
41784円/m2
商業地
104667円/m2

結婚・育児の助成金

子育て関連の独自の取り組み (1)九州大学教育学部との連携協定の基づく事業の実施(九州大学伊都キャンパスにて、中学生が学生サポーターから勉強を教えてもらったり、大学生活の話を聞いたりする「伊都塾」の実施)。(2)いとしま学。(3)コミュニティスクール事業。(4)中学校1年生以上で英語検定(5級~1級)受検料の補助。(5)西南学院大学との連携に基づく中学生対象のイングリッシュキャンプの実施。
出産祝い なし
公立保育所数 0所(うち0歳児保育を実施している保育所:-)
私立保育所数 12所(うち0歳児保育を実施している保育所:12所)
保育所入所待機児童数 0人
認定こども園数 12園 預かり保育実施園数 公立:- 私立:5園
学校給食 【小学校】完全給食【中学校】完全給食 デリバリー形式[運搬:食缶、内容:完全給食]
公立中学校の学校選択制 未実施
子ども・学生等医療費助成<通院>対象年齢 中学校卒業まで 子ども・学生等医療費助成<入院>対象年齢 中学校卒業まで

糸島市の治安・ごみ収集情報

公共料金・インフラ

ガス料金(22m3使用した場合の月額) 西部瓦斯株式会社(福岡・北九州)6239円
水道料金(口径20mmで20m3の月額) 糸島市4355円
下水道料金(20m3を使用した場合の月額) 糸島市3650円
下水道普及率 69.2%

安心・安全

建物火災出火件数 11件
人口10000人当たり
1.11件
刑法犯認知件数 552件
人口1000人当たり
5.58件
ハザード・防災マップ あり

医療

一般病院総数 6ヶ所
一般診療所総数 86ヶ所
小児科医師数 13人
小児人口10000人当たり
9.10人
産婦人科医師数 3人
15~49歳女性人口1万人当たり
1.57人
介護保険料基準額(月額) 5600円

ごみ

家庭ごみ収集(可燃ごみ) 有料
備考
指定ごみ袋有料。
家庭ごみの分別方式 3分別〔可燃ごみ 資源ごみ(ビン・カン・ペットボトル) 不燃ごみ(資源ごみ以外の不燃ごみ)〕
家庭ごみの戸別収集 一部実施(障がい者、高齢者、要介護者等のみの世帯に実施)
粗大ごみ収集 あり
備考
有料。事前申込制。
生ごみ処理機助成金制度 あり
上限金額
20000円
上限比率
50.0%

糸島市の住まいの給付金

中古購入

利子補給制度 なし
補助/助成金制度 なし

増築・改築・改修

利子補給制度 なし
補助/助成金制度 あり
上限金額
100万円
備考
【木造戸建て住宅性能向上改修促進事業】木造戸建て住宅の耐震改修、省エネ工事に係る経費の一部を補助。耐震改修工事費の40%、上限額100万円。省エネ工事費の25%、上限25万円。
暮らしデータ提供元:生活ガイド.com
※行政機関により公表していない地域及びデータがございます。東京23区以外の政令指定都市は、市全体のデータとして表示しています。
※提供データには細心の注意を払っておりますが、調査後に変更がある場合があります。 最新の情報につきましては各市区役所までお問い合わせいただくか、自治体HPなどをご確認ください。
OCN×ドコモ光新規お申込みで合計最大137,280円相当おトク!特典の内訳・適用条件など詳細はこちら

糸島市内の各駅の住みやすさ

他のエリアから探す

糸島市の詳細地域から中古マンション物件を探す

伊都の杜浦志荻浦志摩芥屋志摩野北志摩師吉高田二丈福井二丈吉井波多江駅北波多江駅南前原駅南前原中央前原東前原南美咲が丘

近辺の市区から探す

福岡市西区

周辺の駅から探す

筑肥線
筑前前原美咲が丘加布里|一貴山|筑前深江大入福吉|鹿家|浜崎

住宅ローンの返済額一覧

物件価格 890万円に対して、年率 で、頭金 の場合
↓ボーナス 35年間 30年間 25年間 20年間 15年間 10年間
0万円 10,123円/月 11,668円/月 13,832円/月 17,079円/月 22,493円/月 33,326円/月
5万円 ローン不可 ローン不可 ローン不可 ローン不可 13,842円/月 24,780円/月
10万円 ローン不可 ローン不可 ローン不可 ローン不可 ローン不可 ローン不可
15万円 ローン不可 ローン不可 ローン不可 ローン不可 ローン不可 ローン不可
20万円 ローン不可 ローン不可 ローン不可 ローン不可 ローン不可 ローン不可
25万円 ローン不可 ローン不可 ローン不可 ローン不可 ローン不可 ローン不可
30万円 ローン不可 ローン不可 ローン不可 ローン不可 ローン不可 ローン不可
支払い利息合計 351,660円~ 300,480円~ 249,600円~ 198,960円~ 150,360円~ 100,040円~
※元利均等返済方式で試算しています。 「円」の単位以下の端数金額は「切り捨て」として計算しております。
※金利は、固定金利として計算しております。
※上記の住宅ローン返済額一覧は、あくまで試算であり、将来の金利動向により、実際のご返済額とは異なります。
※ボーナス支払総額が総支払額の50%を超えている場合、上記の表では「ローン不可」となります。
※住宅ローン返済額一覧の数値は、住宅ローンのお申し込みやご融資をお約束するものではございません。
物件を見たい、物件や住環境の詳しい情報やローン相談など、
お問い合わせ先
ハウスドゥ 筑前前原駅前(株)エフォール

掲載情報の著作権は提供元企業等に帰属します。
Copyright:(C) 2025 Recruit Co., Ltd.
アプリで簡単 物件探し 大手不動産サイトの情報から一括検!プッシュ通知で物件を見逃さない
App Storeからダウンロード Google Playで手に入れよう QRコード