アプリで簡単 物件探し 通知 共有 アプリならではの機能を使ってみる
中古マンション

AcityヒルズアリーナⅢ番館 1階 3LDK

情報提供元
SUUMO
AcityヒルズアリーナⅢ番館
価格 2390万円  (管理費等:9200円/月(委託(通勤)))
修繕積立金 17,930円
交通
所在地 広島県広島市安佐南区大塚西6周辺地図
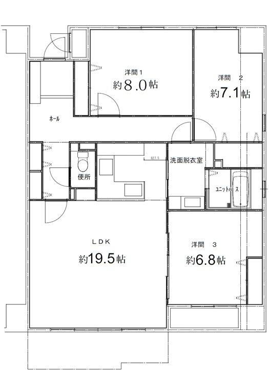
間取り 3LDK 専有面積 97.45m2(29.47坪)(壁芯)
所在階/階数 1階/10階建 方位 南東
築年月 1995年6月 築年数 築30年7ヶ月
おすすめポイント
※2025年11月上旬リフォーム完了:システムキッチン新規交換 ユニットバス新規交換(浴室換気乾燥暖房機付) 洗面化粧台新規交換 トイレ新規交換 ガス給湯器新規交換 カップボード新規取付 防水パン新規交換 建具新規交換 クロス全室張替 床全室新規交換 ダウンライト新規交換 ダウンライト 間接照明新規取付(LDK 主寝室 玄関) カーテンレール全室新規取付 ハウスクリーニング完了 【取扱物件7087件 その内未公開物件3094件ご用意しています】トータテのホームページもぜひご参照ください。https://jyuhan.totate.co.jp/
管理人日勤
お問い合わせ先
トータテ住宅販売(株)北営業所
物件を見たい、物件や住環境の詳しい情報やローン相談など、
お問い合わせ先
トータテ住宅販売(株)北営業所

詳細情報

価格 2390万円 管理費等 9200円/月(委託(通勤))
駐車場 敷地内(7000円/月) 修繕積立金 17,930円
所在地 広島県広島市安佐南区大塚西6周辺地図
交通
  • 広島高速交通アストラムライン 大塚駅 徒歩12分乗換案内
  • 広島高速交通アストラムライン 広域公園前駅 徒歩23分乗換案内
物件名 AcityヒルズアリーナⅢ番館
築年月(築年数) 1995年6月(築30年7ヶ月) 間取り 3LDK
総戸数 59戸 専有面積 97.45m2(29.47坪)(壁芯)
所在階/階数 1階/10階建 バルコニー面積 15.91m2
方位 南東 建物構造 RC
管理形態 委託管理
維持費等 土地権利 所有権
用途地域 1種中高 借地期間・地代
現況 引渡可能年月 相談
情報提供元 SUUMO [080Z78710040] 情報公開日
情報更新日 次回更新予定日 随時

設備など

ペット相談可 - 即入居可 - 南向き -
角部屋 - 駐車場空き有り トランクルーム -
オートロック - 宅配ボックス - 浴室乾燥機
床暖房 - ウォークインクローゼット - 管理人常駐 -
最上階 - 2階以上 - タワーマンション -
設備 エレベーター・管理人日勤・浴室乾燥機・システムキッチン・風呂・衣類乾燥機・食器洗浄乾燥機・リフォーム
リフォーム履歴 -
リノベーション履歴 -
備考 <物件名>AcityヒルズアリーナⅢ番館/<駐車場>敷地内/委託(日勤)/<土地権利>所有権/<間取り>3LDK/<特徴>2025年11月リフォーム完了♪広いLDK、各居室6帖以上、収納豊富♪、年内引渡可・LDK18畳以上・年度内引渡可・内装リフォーム・システムキッチン
販売戸数:1戸/管理費等帯:9200円/修繕積立金帯:17930円
特記事項 管理人日勤

省エネ性能

エネルギー消費性能 -
断熱性能 -
目安光熱費 -

広島県広島市安佐南区大塚西6 周辺地図情報

地図
※地図上に表示される物件の位置は付近住所に所在することを表すものであり、実際の物件所在地とは異なる場合がございます。
   正確な物件所在地は、取扱い不動産会社にお問い合わせください。
物件を見たい、物件や住環境の詳しい情報やローン相談など、
お問い合わせ先
トータテ住宅販売(株)北営業所

不動産会社情報

お問い合わせ先 商号:トータテ住宅販売(株)北営業所
免許番号:国土交通大臣(8)第004315号
所在地:広島県広島市安佐南区緑井5-10-16
TEL:0120-412760
取引態様:媒介
管理コード:DM45376;(191449)
共有する
QRコード
物件を見たい、物件や住環境の詳しい情報やローン相談など、
お問い合わせ先
トータテ住宅販売(株)北営業所

広島市安佐南区の暮らしデータ

人口などの統計情報

世帯数 554462世帯
人口総数 1178773人
転入者数 61028人
転入率(人口1000人当たり)
51.77人
転出者数 62233人
転出率(人口1000人当たり)
52.79人
土地平均価格
住宅地
115999円/m2
商業地
556537円/m2

結婚・育児の助成金

子育て関連の独自の取り組み 地域の身近な場所でおむつ替え・授乳等が出来る赤ちゃん安心おでかけ事業「にこにこベビールーム」を実施。
出産祝い なし
公立保育所数 87所(うち0歳児保育を実施している保育所:69所)
私立保育所数 95所(うち0歳児保育を実施している保育所:94所)
保育所入所待機児童数 0人
認定こども園数 70園 預かり保育実施園数 公立:- 私立:50園
学校給食 【小学校】完全給食【中学校】完全給食 家庭弁当等との選択制/デリバリー形式[運搬:ランチボックス、内容:完全給食]
公立中学校の学校選択制 一部実施
子ども・学生等医療費助成<通院>対象年齢 小学校卒業まで 子ども・学生等医療費助成<入院>対象年齢 中学校卒業まで

広島市安佐南区の治安・ごみ収集情報

公共料金・インフラ

ガス料金(22m3使用した場合の月額) 広島ガス株式会社5505円
水道料金(口径20mmで20m3の月額) 広島市2453円
下水道料金(20m3を使用した場合の月額) 広島市2260円
下水道普及率 96.5%

安心・安全

建物火災出火件数 147件
人口10000人当たり
1.22件
刑法犯認知件数 7080件
人口1000人当たり
5.90件
ハザード・防災マップ あり

医療

一般病院総数 73ヶ所
一般診療所総数 1206ヶ所
小児科医師数 261人
小児人口10000人当たり
17.38人
産婦人科医師数 126人
15~49歳女性人口1万人当たり
5.32人
介護保険料基準額(月額) 6400円

ごみ

家庭ごみ収集(可燃ごみ) 無料
備考
-
家庭ごみの分別方式 7分別12種〔可燃ごみ ペットボトル リサイクルプラ その他プラ 不燃ごみ(ライター、陶磁器・その他不燃ごみ) 資源ごみ(紙類[新聞紙、ダンボール、雑誌・チラシ・菓子箱等]、ガラス類、金属類、布類) 有害ごみ〕
家庭ごみの戸別収集 未実施
粗大ごみ収集 あり
備考
有料。事前申込制。大型ごみ受付センターへの予約が必要。納付券を貼り付けたものを収集。大型ごみあんしんサポート(住宅内からの搬出を支援)あり。
生ごみ処理機助成金制度 なし
上限金額
-
上限比率
-

広島市安佐南区の住まいの給付金

中古購入

利子補給制度 なし
補助/助成金制度 あり
上限金額
(1)10万円(2)50万円
備考
(1)【三世代同居・近居支援事業】子育て世帯が親世帯と同居・近居をするために住宅を取得する際の不動産登記費用等の1/2、上限10万円を助成。(2)【子育て世帯住替え促進リフォーム費補助】小学生以下の子がいる子育て世帯が空き家を改修する費用の1/2、上限50万円を助成。

増築・改築・改修

利子補給制度 なし
補助/助成金制度 あり
上限金額
(1)4万円(2)100万円(3)12.5万円
備考
(1)【住宅耐震診断補助事業】1981年5月31日以前に着工された木造住宅の耐震診断費用の2/3、上限4万円を助成。(2)【住事業宅耐震改修等補助】耐震改修費用の80%を助成。上限100万円。(3)【耐震シェルター等設置補助】耐震シェルターもしくは防災ベッドの設置費用の1/2、12.5万円を助成。感震ブレーカーを設置する場合は費用の1/2、上限4万円を助成。
暮らしデータ提供元:生活ガイド.com
※行政機関により公表していない地域及びデータがございます。東京23区以外の政令指定都市は、市全体のデータとして表示しています。
※提供データには細心の注意を払っておりますが、調査後に変更がある場合があります。 最新の情報につきましては各市区役所までお問い合わせいただくか、自治体HPなどをご確認ください。
OCN×ドコモ光新規お申込みで合計最大137,280円相当おトク!特典の内訳・適用条件など詳細はこちら

広島市安佐南区内の各駅の住みやすさ

他のエリアから探す

広島市安佐南区の詳細地域から中古マンション物件を探す

相田大塚西大町西大町東上安川内祇園伴東中須中筋長束長束西西原東野東原古市緑井八木安東山本

近辺の市区から探す

広島市中区広島市東区広島市南区広島市西区広島市安佐北区広島市安芸区安芸郡府中町安芸郡海田町安芸郡坂町

周辺の駅から探す

アストラムライン
長楽寺大原伴中央大塚広域公園前

住宅ローンの返済額一覧

物件価格 2390万円に対して、年率 で、頭金 の場合
↓ボーナス 35年間 30年間 25年間 20年間 15年間 10年間
0万円 49,061円/月 56,546円/月 67,032円/月 82,769円/月 109,008円/月 161,503円/月
5万円 39,976円/月 47,571円/月 58,165円/月 74,010円/月 100,357円/月 152,957円/月
10万円 30,890円/月 38,595円/月 49,299円/月 65,252円/月 91,705円/月 144,412円/月
15万円 ローン不可 29,619円/月 40,432円/月 56,493円/月 83,054円/月 135,867円/月
20万円 ローン不可 ローン不可 ローン不可 47,734円/月 74,402円/月 127,322円/月
25万円 ローン不可 ローン不可 ローン不可 ローン不可 65,751円/月 118,777円/月
30万円 ローン不可 ローン不可 ローン不可 ローン不可 57,099円/月 110,232円/月
支払い利息合計 1,712,830円~ 1,465,920円~ 1,217,450円~ 972,800円~ 730,770円~ 486,580円~
※元利均等返済方式で試算しています。 「円」の単位以下の端数金額は「切り捨て」として計算しております。
※金利は、固定金利として計算しております。
※上記の住宅ローン返済額一覧は、あくまで試算であり、将来の金利動向により、実際のご返済額とは異なります。
※ボーナス支払総額が総支払額の50%を超えている場合、上記の表では「ローン不可」となります。
※住宅ローン返済額一覧の数値は、住宅ローンのお申し込みやご融資をお約束するものではございません。
物件を見たい、物件や住環境の詳しい情報やローン相談など、
お問い合わせ先
トータテ住宅販売(株)北営業所

掲載情報の著作権は提供元企業等に帰属します。
Copyright:(C) 2025 Recruit Co., Ltd.
アプリで簡単 物件探し 大手不動産サイトの情報から一括検!プッシュ通知で物件を見逃さない
App Storeからダウンロード Google Playで手に入れよう QRコード