アプリで簡単 物件探し 通知 共有 アプリならではの機能を使ってみる
中古マンション

アルザグリーンタワー 26階 3LDK

情報提供元
SUUMO
アルザグリーンタワー 外観
価格 3490万円  (管理費等:1万6081円/月(一部委託(常駐)))
修繕積立金 21,074円
交通
所在地 大阪府泉大津市旭町周辺地図
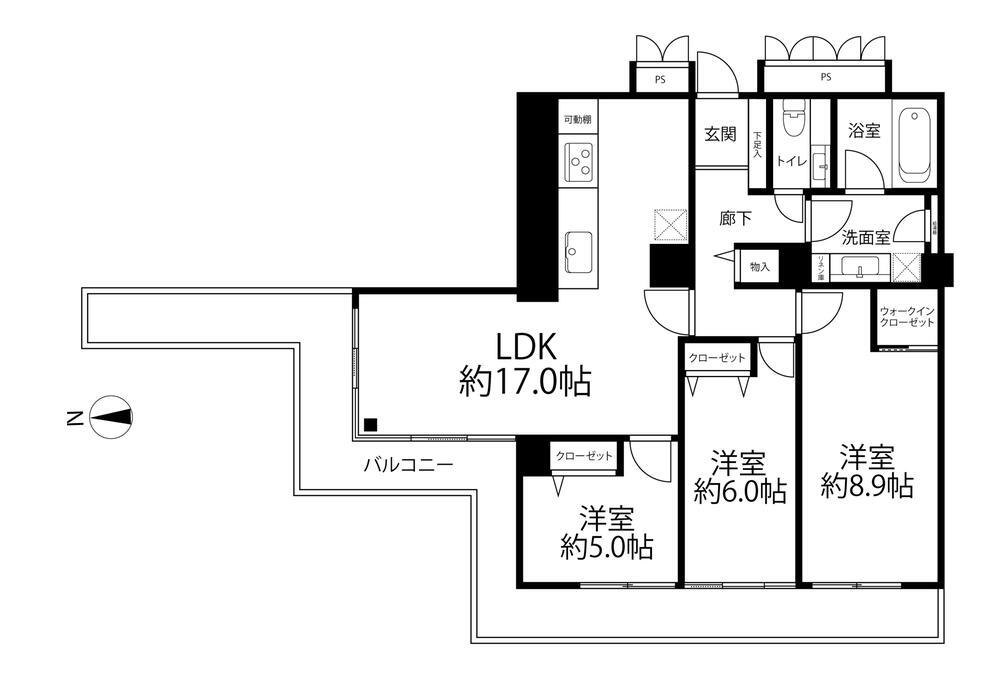
間取り 3LDK 専有面積 86.02m2(壁芯)
所在階/階数 26階/地上36階地下2階建 方位 西
築年月 1994年8月 築年数 築31年5ヶ月
おすすめポイント
■26階西向き角住戸のため日照・通風良好■遮るものがない開放的な眺望■2面採光17帖の広々LDK、WICあり■「泉大津」駅徒歩2分■全居室バルコニーに面した住戸■リノベーション内容:全居室クロス・フローリング張替、建具・下足入交換、キッチン・UB・洗面台・トイレ交換 ※変更になる場合がございます。‐‐‐◆◇お気軽にお問い合わせください◇◆‐‐‐ご内覧のご予約、内装リフォームの詳細や完了時期、お引渡し時期等、物件についてお気軽にお問い合わせください。本物件はもちろん、お客様のご希望条件に合った弊社売主物件のご紹介も可能です。
日当り良好・角部屋・管理人常駐・フラット35S適合
物件を見たい、物件や住環境の詳しい情報やローン相談など、
お問い合わせ先
(株)すむたす

詳細情報

価格 3490万円 管理費等 1万6081円/月(一部委託(常駐))
駐車場 修繕積立金 21,074円
所在地 大阪府泉大津市旭町周辺地図
交通
物件名 アルザグリーンタワー
築年月(築年数) 1994年8月(築31年5ヶ月) 間取り 3LDK
総戸数 381戸 専有面積 86.02m2(壁芯)
所在階/階数 26階/地上36階地下2階建 バルコニー面積 25.31m2
方位 西 建物構造 SRC
管理形態
維持費等 水道メーター使用料(月額)90円 土地権利 所有権
用途地域 借地期間・地代
現況 引渡可能年月 相談
情報提供元 SUUMO [060Z78682403] 情報公開日
情報更新日 次回更新予定日 随時

設備など

ペット相談可 - 即入居可 - 南向き -
角部屋 駐車場空き有り - トランクルーム -
オートロック - 宅配ボックス - 浴室乾燥機
床暖房 - ウォークインクローゼット 管理人常駐
最上階 - 2階以上 タワーマンション
設備 トイレ・収納スペース・エレベーター・浴室乾燥機・ウォークインクローゼット・温水洗浄便座・システムキッチン・モニタ付インターホン・風呂・浄水器・衣類乾燥機・食器洗浄乾燥機・管理人常駐・リフォーム・バイク置き場・駐輪場・リノベーション
リフォーム履歴 2025年12月内装リフォーム完了予定
リノベーション履歴 -
備考 <物件名>アルザグリーンタワー/<駐車場>無/<土地権利>所有権/<間取り>3LDK/<リフォーム>●リフォーム:2025年12月内装リフォーム完了予定/<その他制限事項>修繕積立金の内訳:全体修繕積立金430円、住宅修繕積立金20644円/水道使用基本料:月額220円 ※水道料金の使用料は別途従量課金/<特徴>■新規フルリノベーション物件(2025年12月中旬完了予定)、耐震基準適合証明書・フラット35・S適合証明書・スーパー 徒歩10分以内・内装リフォーム・システムキッチン
販売戸数:1戸/管理費等帯:16081円/修繕積立金帯:21074円
法令等制限:グリーンタワーの総戸数:196戸/建物構造:鉄骨鉄筋コンクリート・鉄筋コンクリート造/管理費の内訳:全体管理費750円、住宅管理費15331円
特記事項 日当り良好・角部屋・管理人常駐・フラット35S適合

省エネ性能

エネルギー消費性能 -
断熱性能 -
目安光熱費 -

大阪府泉大津市旭町 周辺地図情報

地図
※地図上に表示される物件の位置は付近住所に所在することを表すものであり、実際の物件所在地とは異なる場合がございます。
   正確な物件所在地は、取扱い不動産会社にお問い合わせください。
物件を見たい、物件や住環境の詳しい情報やローン相談など、
お問い合わせ先
(株)すむたす

不動産会社情報

お問い合わせ先 商号:(株)すむたす
免許番号:国土交通大臣(1)第010177号
所在地:東京都中央区日本橋3-9-1 日本橋三丁目スクエア
TEL:0120-295422
取引態様:売主
共有する
QRコード
物件を見たい、物件や住環境の詳しい情報やローン相談など、
お問い合わせ先
(株)すむたす

泉大津市の暮らしデータ

人口などの統計情報

世帯数 32469世帯
人口総数 73145人
転入者数 3149人
転入率(人口1000人当たり)
43.05人
転出者数 3041人
転出率(人口1000人当たり)
41.57人
土地平均価格
住宅地
118000円/m2
商業地
126000円/m2

結婚・育児の助成金

子育て関連の独自の取り組み (1)妊婦に栄養価の高い金芽米を毎月プレゼント。(2)7ヶ月児がいる全家庭を対象に、専門職による家庭訪問を行う相談支援と、育児用品を購入できる5万円相当のポイントを支給。(3)子育てサークルの活動経費に対し、2万円/年を上限額として補助金を支給。(4)子育てサポーターがBP1ファシリテーター養成講座を受講する場合、その受講料は市が負担。(5)フードリボンプロジェクトに賛同し、活動する市内飲食店に対し、のぼり旗等のスタートアップキットを配布。
出産祝い なし
公立保育所数 2所(うち0歳児保育を実施している保育所:2所)
私立保育所数 0所(うち0歳児保育を実施している保育所:-)
保育所入所待機児童数 0人
認定こども園数 11園 預かり保育実施園数 公立:2園 私立:-
学校給食 【小学校】完全給食【中学校】デリバリー形式[運搬:食缶、内容:完全給食]
公立中学校の学校選択制 一部実施(隣接区域選択制)
子ども・学生等医療費助成<通院>対象年齢 18歳3月末まで 子ども・学生等医療費助成<入院>対象年齢 18歳3月末まで

泉大津市の治安・ごみ収集情報

公共料金・インフラ

ガス料金(22m3使用した場合の月額) 大阪瓦斯株式会社4544円
水道料金(口径20mmで20m3の月額) 泉大津市3199円
下水道料金(20m3を使用した場合の月額) 泉大津市2877円
下水道普及率 97.2%

安心・安全

建物火災出火件数 13件
人口10000人当たり
1.75件
刑法犯認知件数 645件
人口1000人当たり
8.67件
ハザード・防災マップ あり

医療

一般病院総数 4ヶ所
一般診療所総数 70ヶ所
小児科医師数 22人
小児人口10000人当たり
26.30人
産婦人科医師数 11人
15~49歳女性人口1万人当たり
7.48人
介護保険料基準額(月額) 6751円

ごみ

家庭ごみ収集(可燃ごみ) 有料
備考
指定ごみ袋有料。
家庭ごみの分別方式 7分別〔可燃ごみ 小型家電 資源ごみA(容器包装プラスチック) 資源ごみB(ペットボトル) 資源ごみC(かん・びん・乾電池等) 資源ごみD(せともの・ガラス類等) 資源ごみE(古紙類)〕
家庭ごみの戸別収集 実施
粗大ごみ収集 あり
備考
有料。事前申込制。
生ごみ処理機助成金制度 あり
上限金額
40000円
上限比率
66.7%

泉大津市の住まいの給付金

中古購入

利子補給制度 なし
補助/助成金制度 なし

増築・改築・改修

利子補給制度 なし
補助/助成金制度 あり
上限金額
(1)5万円(2)10万円(3)60万円
備考
(1)【既存民間建築物耐震診断補助金】耐震診断に要した費用に10/11を乗じて得た額。ただし、上限5万円。(2)【木造住宅耐震設計補助金】耐震設計に要する費用の7/10を乗じて得た額。ただし、上限10万円。(3)【木造住宅耐震改修補助金】40万円又は世帯の月額所得が21.4万円以下の場合、60万円。
暮らしデータ提供元:生活ガイド.com
※行政機関により公表していない地域及びデータがございます。東京23区以外の政令指定都市は、市全体のデータとして表示しています。
※提供データには細心の注意を払っておりますが、調査後に変更がある場合があります。 最新の情報につきましては各市区役所までお問い合わせいただくか、自治体HPなどをご確認ください。
OCN×ドコモ光新規お申込みで合計最大137,280円相当おトク!特典の内訳・適用条件など詳細はこちら

泉大津市内の各駅の住みやすさ

他のエリアから探す

泉大津市の詳細地域から中古マンション物件を探す

旭町上之町尾井千原尾井千原町春日町北豊中町東雲町清水町末広町助松町田中町なぎさ町西港町東港町若宮町

近辺の市区から探す

堺市堺区堺市中区堺市東区堺市西区堺市南区堺市北区岸和田市貝塚市和泉市高石市泉北郡忠岡町泉南郡熊取町

周辺の駅から探す

南海電鉄南海本線
羽衣高石北助松松ノ浜泉大津忠岡春木和泉大宮岸和田

マンションライブラリーを見る

アルザグリーンタワー

住宅ローンの返済額一覧

物件価格 3490万円に対して、年率 で、頭金 の場合
↓ボーナス 35年間 30年間 25年間 20年間 15年間 10年間
0万円 77,616円/月 89,457円/月 106,046円/月 130,942円/月 172,452円/月 255,499円/月
5万円 68,530円/月 80,481円/月 97,179円/月 122,183円/月 163,801円/月 246,954円/月
10万円 59,445円/月 71,506円/月 88,312円/月 113,424円/月 155,149円/月 238,409円/月
15万円 50,359円/月 62,530円/月 79,446円/月 104,666円/月 146,498円/月 229,864円/月
20万円 41,274円/月 53,554円/月 70,579円/月 95,907円/月 137,846円/月 221,319円/月
25万円 ローン不可 ローン不可 61,712円/月 87,148円/月 129,195円/月 212,773円/月
30万円 ローン不可 ローン不可 ローン不可 78,390円/月 120,543円/月 204,228円/月
支払い利息合計 2,713,210円~ 2,316,880円~ 1,926,700円~ 1,538,560円~ 1,150,690円~ 766,100円~
※元利均等返済方式で試算しています。 「円」の単位以下の端数金額は「切り捨て」として計算しております。
※金利は、固定金利として計算しております。
※上記の住宅ローン返済額一覧は、あくまで試算であり、将来の金利動向により、実際のご返済額とは異なります。
※ボーナス支払総額が総支払額の50%を超えている場合、上記の表では「ローン不可」となります。
※住宅ローン返済額一覧の数値は、住宅ローンのお申し込みやご融資をお約束するものではございません。
物件を見たい、物件や住環境の詳しい情報やローン相談など、
お問い合わせ先
(株)すむたす

掲載情報の著作権は提供元企業等に帰属します。
Copyright:(C) 2025 Recruit Co., Ltd.
アプリで簡単 物件探し 大手不動産サイトの情報から一括検!プッシュ通知で物件を見逃さない
App Storeからダウンロード Google Playで手に入れよう QRコード