アプリで簡単 物件探し 通知 共有 アプリならではの機能を使ってみる
中古マンション

ブランズ西大津レイクフロント 11階 11階 3LDK

情報提供元
SUUMO
ブランズ西大津レイクフロント 11階
価格 3798万円  (管理費等:7800円/月(委託(通勤)))
修繕積立金 12,560円
交通
所在地 滋賀県大津市茶が崎周辺地図
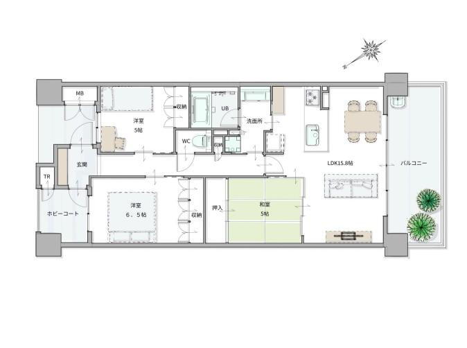
間取り 3LDK 専有面積 76.14m2
所在階/階数 11階/19階建 方位 南西
築年月 2007年2月 築年数 築18年10ヶ月
おすすめポイント
☆びわ湖花火大会鑑賞!☆南西向きバルコニーで日当たり良好!☆LDK15.8帖・和室5帖が隣接し、開放感のある空間☆各居室に収納スペース完備!☆家族のプライベート空間も充実した3LDK☆リビングから続く広々バルコニー
ペット相談可・日当り良好・管理人日勤・浴室1坪以上
物件を見たい、物件や住環境の詳しい情報やローン相談など、
お問い合わせ先
西和不動産(株)大津店

詳細情報

価格 3798万円 管理費等 7800円/月(委託(通勤))
駐車場 敷地内(1000円~8000円/月) 修繕積立金 12,560円
所在地 滋賀県大津市茶が崎周辺地図
交通
  • JR湖西線 大津京駅 徒歩10分乗換案内
  • 京阪石山坂本線 京阪大津京駅 徒歩12分乗換案内
  • 京阪石山坂本線 近江神宮前駅 徒歩15分乗換案内
物件名 ブランズ西大津レイクフロント 11階
築年月(築年数) 2007年2月(築18年10ヶ月) 間取り 3LDK
総戸数 275戸 専有面積 76.14m2
所在階/階数 11階/19階建 バルコニー面積 14.6m2
方位 南西 建物構造 RC
管理形態 委託管理
維持費等 自治会費500円 土地権利 所有権
用途地域 商業地域 借地期間・地代
現況 引渡可能年月 相談
情報提供元 SUUMO [060Z78734679] 情報公開日
情報更新日 次回更新予定日 随時

設備など

ペット相談可 即入居可 - 南向き -
角部屋 - 駐車場空き有り トランクルーム -
オートロック - 宅配ボックス 浴室乾燥機
床暖房 ウォークインクローゼット - 管理人常駐 -
最上階 - 2階以上 タワーマンション -
設備 トイレ・収納スペース・洗面所・エレベーター・管理人日勤・浴室乾燥機・シャンプードレッサ・温水洗浄便座・システムキッチン・モニタ付インターホン・風呂・対面K・床暖房・衣類乾燥機・バイク置き場・駐輪場・宅配BOX
リフォーム履歴 -
リノベーション履歴 -
備考 <物件名>ブランズ西大津レイクフロント 11階/<駐車場>敷地内/委託(日勤)/<土地権利>所有権の共有/<間取り>3LDK/<特徴>☆琵琶湖眺望良好なアジアンリゾート風マンション!!!、湖・池が見える・山が見える・スーパー 徒歩10分以内・市街地が近い・システムキッチン
販売戸数:1戸/管理費等帯:7800円/修繕積立金帯:12560円
特記事項 ペット相談可・日当り良好・管理人日勤・浴室1坪以上

省エネ性能

エネルギー消費性能 -
断熱性能 -
目安光熱費 -

滋賀県大津市茶が崎 周辺地図情報

地図
※地図上に表示される物件の位置は付近住所に所在することを表すものであり、実際の物件所在地とは異なる場合がございます。
   正確な物件所在地は、取扱い不動産会社にお問い合わせください。
物件を見たい、物件や住環境の詳しい情報やローン相談など、
お問い合わせ先
西和不動産(株)大津店

不動産会社情報

お問い合わせ先 商号:西和不動産(株)大津店
免許番号:国土交通大臣(1)第011005号
所在地:滋賀県大津市柳が崎4-6
TEL:0120-996004
取引態様:一般媒介
共有する
QRコード
物件を見たい、物件や住環境の詳しい情報やローン相談など、
お問い合わせ先
西和不動産(株)大津店

大津市の暮らしデータ

人口などの統計情報

世帯数 145891世帯
人口総数 343916人
転入者数 12438人
転入率(人口1000人当たり)
36.17人
転出者数 11870人
転出率(人口1000人当たり)
34.51人
土地平均価格
住宅地
79669円/m2
商業地
173333円/m2

結婚・育児の助成金

子育て関連の独自の取り組み (1)新生児及び転入者に対し、市内の子育て支援情報が掲載した子育てハンドブック「大津っ子」を配布。(2)乳幼児連れの外出支援の取り組みとして、気軽に授乳やオムツ替えができる施設を「赤ちゃんの駅」として認定し、周知している。(3)市立小中学校に通う児童生徒のうち、18歳以下(2024年10月から22歳以下)の3人目以降の児童生徒の給食費を免除する。(4)子育てアプリ「とも☆育」による、子育て情報の発信やオンライン掲示板による相談対応を行っている。(5)幼児2人同乗用電動自転車の購入費の一部を助成している。
出産祝い なし
公立保育所数 14所(うち0歳児保育を実施している保育所:12所)
私立保育所数 41所(うち0歳児保育を実施している保育所:41所)
保育所入所待機児童数 184人
認定こども園数 37園 預かり保育実施園数 公立:28園 私立:4園
学校給食 【小学校】完全給食【中学校】完全給食
公立中学校の学校選択制 実施(隣接区域選択制[新入学時のみ])
子ども・学生等医療費助成<通院>対象年齢 18歳3月末まで 子ども・学生等医療費助成<入院>対象年齢 18歳3月末まで

大津市の治安・ごみ収集情報

公共料金・インフラ

ガス料金(22m3使用した場合の月額) 大阪瓦斯株式会社4544円
大津市5063円
水道料金(口径20mmで20m3の月額) 大津市2772円
下水道料金(20m3を使用した場合の月額) 大津市2931円
下水道普及率 98.5%

安心・安全

建物火災出火件数 49件
人口10000人当たり
1.42件
刑法犯認知件数 1927件
人口1000人当たり
5.58件
ハザード・防災マップ あり

医療

一般病院総数 13ヶ所
一般診療所総数 304ヶ所
小児科医師数 98人
小児人口10000人当たり
22.07人
産婦人科医師数 53人
15~49歳女性人口1万人当たり
7.97人
介護保険料基準額(月額) 5715円

ごみ

家庭ごみ収集(可燃ごみ) 無料
備考
指定ごみ袋は有料だが、袋代にごみ収集・処理料金等を含まず。戸別収集は有料。
家庭ごみの分別方式 7分別9種〔可燃ごみ 不燃ごみ 紙ごみ(新聞、雑誌・雑がみ、段ボール) プラスチック製容器包装 かん びん ペットボトル〕
家庭ごみの戸別収集 一部実施(【ごみ出し支援戸別収集サービス】無料で実施。別途有料の収集あり。45リットルの大津市指定ごみ袋1袋で350円)
粗大ごみ収集 あり
備考
有料。戸別収集。事前申込制。
生ごみ処理機助成金制度 あり
上限金額
20000円
上限比率
33.3%

大津市の住まいの給付金

中古購入

利子補給制度 なし
補助/助成金制度 なし

増築・改築・改修

利子補給制度 なし
補助/助成金制度 あり
上限金額
30万円
備考
【大津市定住促進リフォーム補助金】転入世帯、もしくは転入により世帯同居をする者を対象に、住宅をリフォームする費用の10%、上限30万円を助成。 ※転入世帯に15歳未満の子ども(出産予定を含む)がいる場合は、住宅をリフォームする費用の20%、上限60万円を助成。
暮らしデータ提供元:生活ガイド.com
※行政機関により公表していない地域及びデータがございます。東京23区以外の政令指定都市は、市全体のデータとして表示しています。
※提供データには細心の注意を払っておりますが、調査後に変更がある場合があります。 最新の情報につきましては各市区役所までお問い合わせいただくか、自治体HPなどをご確認ください。
OCN×ドコモ光新規お申込みで合計最大137,280円相当おトク!特典の内訳・適用条件など詳細はこちら

住宅ローンの返済額一覧

物件価格 3798万円に対して、年率 で、頭金 の場合
↓ボーナス 35年間 30年間 25年間 20年間 15年間 10年間
0万円 85,611円/月 98,672円/月 116,970円/月 144,430円/月 190,217円/月 281,818円/月
5万円 76,525円/月 89,697円/月 108,103円/月 135,671円/月 181,565円/月 273,273円/月
10万円 67,440円/月 80,721円/月 99,236円/月 126,913円/月 172,914円/月 264,728円/月
15万円 58,354円/月 71,745円/月 90,369円/月 118,154円/月 164,262円/月 256,183円/月
20万円 49,269円/月 62,769円/月 81,503円/月 109,395円/月 155,611円/月 247,638円/月
25万円 ローン不可 53,794円/月 72,636円/月 100,637円/月 146,959円/月 239,092円/月
30万円 ローン不可 ローン不可 63,769円/月 91,878円/月 138,308円/月 230,547円/月
支払い利息合計 2,991,110円~ 2,557,640円~ 2,126,400円~ 1,695,680円~ 1,268,390円~ 844,380円~
※元利均等返済方式で試算しています。 「円」の単位以下の端数金額は「切り捨て」として計算しております。
※金利は、固定金利として計算しております。
※上記の住宅ローン返済額一覧は、あくまで試算であり、将来の金利動向により、実際のご返済額とは異なります。
※ボーナス支払総額が総支払額の50%を超えている場合、上記の表では「ローン不可」となります。
※住宅ローン返済額一覧の数値は、住宅ローンのお申し込みやご融資をお約束するものではございません。
物件を見たい、物件や住環境の詳しい情報やローン相談など、
お問い合わせ先
西和不動産(株)大津店

掲載情報の著作権は提供元企業等に帰属します。
Copyright:(C) 2025 Recruit Co., Ltd.
アプリで簡単 物件探し 大手不動産サイトの情報から一括検!プッシュ通知で物件を見逃さない
App Storeからダウンロード Google Playで手に入れよう QRコード