アプリで簡単 物件探し 通知 共有 アプリならではの機能を使ってみる
中古マンション

ダイアパレス東白壁 2階 3LDK

情報提供元
SUUMO
ダイアパレス東白壁 外観写真
価格 2680万円  (管理費等:8690円/月(委託(通勤)))
修繕積立金 9,340円
交通
所在地 愛知県名古屋市東区芳野3周辺地図
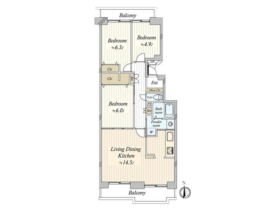
間取り 3LDK 専有面積 77.84m2(23.54坪)(壁芯)
所在階/階数 2階/11階建 方位
築年月 1988年2月 築年数 築37年11ヶ月
おすすめポイント
-物件のおすすめポイント-▼立地・名鉄瀬戸線「尼ケ坂」駅 徒歩9分 他・敷地内に広場や公園があり緑豊かな環境▼特徴・南北両面バルコニー仕様のため通風良好・食洗機搭載の壁付キッチン・家事・生活動線に配慮された2WAY洗面室▼設備・浴室暖房乾燥機・TVモニタ付インターホン▼2025年10月室内リフォーム済【交換】キッチン、トイレ、浴室、洗面化粧台 等【張替】フローリング(LDK・廊下・洋室2室)、クロス(壁・天井) 等【その他】ハウスクリーニング 他■ ご希望の住まい探しをお手伝いします ━━━━━・・・物件の詳細・ご相談はお気軽にお問い合わせください。
日当り良好・管理人日勤
お問い合わせ先
三井のリハウス名古屋栄センター三井不動産リアルティ(株)
物件を見たい、物件や住環境の詳しい情報やローン相談など、
お問い合わせ先
三井のリハウス名古屋栄センター三井不動産リアルティ(株)

詳細情報

価格 2680万円 管理費等 8690円/月(委託(通勤))
駐車場 敷地内(1万2000円~1万6000円/月) 修繕積立金 9,340円
所在地 愛知県名古屋市東区芳野3周辺地図
交通
物件名 ダイアパレス東白壁
築年月(築年数) 1988年2月(築37年11ヶ月) 間取り 3LDK
総戸数 253戸 専有面積 77.84m2(23.54坪)(壁芯)
所在階/階数 2階/11階建 バルコニー面積 13.23m2
方位 建物構造 SRC
管理形態 委託管理
維持費等 土地権利 所有権
用途地域 1種住居 借地期間・地代
現況 引渡可能年月 相談
情報提供元 SUUMO [050Z78591041] 情報公開日
情報更新日 次回更新予定日 随時

設備など

ペット相談可 - 即入居可 - 南向き
角部屋 - 駐車場空き有り トランクルーム -
オートロック - 宅配ボックス - 浴室乾燥機
床暖房 - ウォークインクローゼット - 管理人常駐 -
最上階 - 2階以上 タワーマンション -
設備 バルコニー・エレベーター・管理人日勤・浴室乾燥機・システムキッチン・モニタ付インターホン・風呂・2面バルコニー・衣類乾燥機・食器洗浄乾燥機・リフォーム・駐輪場
リフォーム履歴 2025年10月完了
 水回り設備交換:キッチン・浴室・トイレ
 内装リフォーム:壁・床
 その他:全室クロス/網戸、…
※年月は一番古いリフォーム箇所を表します
リノベーション履歴 -
備考 <物件名>ダイアパレス東白壁/<駐車場>敷地内/委託(日勤)/<土地権利>所有権/<間取り>3LDK/<リフォーム>●リフォーム:2025年10月完了(水回り設備交換:キッチン・浴室・トイレ、内装リフォーム:壁・床、その他:全室クロス/網戸、…)※年月は一番古いリフォーム箇所を表します/<特徴>■三井のリハウス■南向きにつき陽当り良好2025年10月リフォーム済、2沿線以上利用可・内装リフォーム・南向き・システムキッチン・浴室乾燥機
販売戸数:1戸/管理費等帯:8690円/修繕積立金帯:9340円
特記事項 日当り良好・管理人日勤

省エネ性能

エネルギー消費性能 -
断熱性能 -
目安光熱費 -

愛知県名古屋市東区芳野3 周辺地図情報

地図
※地図上に表示される物件の位置は付近住所に所在することを表すものであり、実際の物件所在地とは異なる場合がございます。
   正確な物件所在地は、取扱い不動産会社にお問い合わせください。
物件を見たい、物件や住環境の詳しい情報やローン相談など、
お問い合わせ先
三井のリハウス名古屋栄センター三井不動産リアルティ(株)

不動産会社情報

お問い合わせ先 商号:三井のリハウス名古屋栄センター三井不動産リアルティ(株)
免許番号:国土交通大臣(15)第000777号
所在地:愛知県名古屋市中区栄3-14-7 RICCO栄5階
TEL:00786-01794254
取引態様:媒介
管理コード:FA7AGA35
共有する
QRコード
物件を見たい、物件や住環境の詳しい情報やローン相談など、
お問い合わせ先
三井のリハウス名古屋栄センター三井不動産リアルティ(株)

名古屋市東区の暮らしデータ

人口などの統計情報

世帯数 1119847世帯
人口総数 2297745人
転入者数 168667人
転入率(人口1000人当たり)
73.41人
転出者数 154544人
転出率(人口1000人当たり)
67.26人
土地平均価格
住宅地
223115円/m2
商業地
1106619円/m2

結婚・育児の助成金

子育て関連の独自の取り組み (1)なごや子育てアプリ「NAGOMii(なごみー)」による子育て支援情報の提供。(2)子育て家庭優待カード「ぴよか」の交付。(3)子どもを出産、育児する家庭に5万ポイント(5万円相当)分のカタログギフトを進呈する、ナゴヤわくわくプレゼント事業の実施。
出産祝い あり
公立保育所数 84所(うち0歳児保育を実施している保育所:84所)
私立保育所数 367所(うち0歳児保育を実施している保育所:365所)
保育所入所待機児童数 0人
認定こども園数 107園 預かり保育実施園数 公立:20園 私立:-
学校給食 【小学校】完全給食【中学校】家庭弁当等との選択制/デリバリー形式[運搬:食缶等、内容:完全給食(献立選択制)]
公立中学校の学校選択制 未実施
子ども・学生等医療費助成<通院>対象年齢 18歳3月末まで 子ども・学生等医療費助成<入院>対象年齢 18歳3月末まで

名古屋市東区の治安・ごみ収集情報

公共料金・インフラ

ガス料金(22m3使用した場合の月額) 東邦瓦斯株式会社5307円
水道料金(口径20mmで20m3の月額) 名古屋市2915円
下水道料金(20m3を使用した場合の月額) 名古屋市1804円
下水道普及率 99.4%

安心・安全

建物火災出火件数 355件
人口10000人当たり
1.52件
刑法犯認知件数 19857件
人口1000人当たり
8.51件
ハザード・防災マップ あり

医療

一般病院総数 110ヶ所
一般診療所総数 2272ヶ所
小児科医師数 770人
小児人口10000人当たり
28.40人
産婦人科医師数 319人
15~49歳女性人口1万人当たり
6.72人
介護保険料基準額(月額) 6951円

ごみ

家庭ごみ収集(可燃ごみ) 無料
備考
指定ごみ袋制だが、袋代にごみ収集・処理料金等を含まず。
家庭ごみの分別方式 5分別9種〔可燃ごみ 不燃ごみ 発火性危険物 電池類 資源(プラスチック資源、紙製容器包装・雑がみ、ペットボトル、空きびん、空き缶)〕 拠点回収:資源(ペットボトル 紙パック 食用油 小型家電 充電式家電 蛍光管・水銀体温計・水銀温度計)
家庭ごみの戸別収集 実施(可燃ごみ、不燃ごみ、発火性危険物、電池類、プラスチック資源のみ。紙製容器包装・雑がみ、ペットボトル、空きびん、空き缶はステーション収集)
粗大ごみ収集 あり
備考
有料。各戸収集。事前申込制。月1回収集で手数料(品目ごとに250円、500円、1,000円、1,500円)が必要。粗大ごみ受付センターにインターネットもしくは電話にて申し込み。
生ごみ処理機助成金制度 なし
上限金額
-
上限比率
-

名古屋市東区の住まいの給付金

中古購入

利子補給制度 あり
上限金額
50万円
備考
民間金融機関と住宅金融支援機が提携して提供するフラット35S及びフラット35リノベの借入れにより良質な中古住宅を購入する子育て世帯に対し、最長5年間最大50万円の利子補給を行うもの。
補助/助成金制度 なし

増築・改築・改修

利子補給制度 あり
上限金額
-
備考
住宅金融支援機構のグリーンリフォームローンS融資の償還期間内の利子額(上限は新機構団信の利率)を最大10年間補助。
補助/助成金制度 あり
上限金額
(1)100万円(2)60万円(3)15万円
備考
(1)【木造住宅耐震改修助成制度】1981年5月31日以前に着工した2階建以下の在来軸組工法の木造住宅で、名古屋市の無料耐震診断の結果、判定値1.0未満と判断された住宅が対象。耐震改修工事費の4/5で最大100万円(非課税世帯は4/5で最大150万円)を補助。※耐震改修部分のみ。(2)【非木造住宅耐震改修助成制度】1981年5月31日以前に着工した木造以外の住宅が対象。耐震改修設計費用の2/3、耐震改修工事費の23%(別途上限あり)で最大60万円(戸建住宅の場合)(ほか、マンションの場合は耐震改修工事費の1/3[別途上限あり]で最大50万円など)を補助。(3)住宅金融支援機構のグリーンリフォームローンS融資に係る適合証明書発行手数料を最大15万円補助。
暮らしデータ提供元:生活ガイド.com
※行政機関により公表していない地域及びデータがございます。東京23区以外の政令指定都市は、市全体のデータとして表示しています。
※提供データには細心の注意を払っておりますが、調査後に変更がある場合があります。 最新の情報につきましては各市区役所までお問い合わせいただくか、自治体HPなどをご確認ください。
OCN×ドコモ光新規お申込みで合計最大137,280円相当おトク!特典の内訳・適用条件など詳細はこちら

名古屋市東区内の各駅の住みやすさ

住宅ローンの返済額一覧

物件価格 2680万円に対して、年率 で、頭金 の場合
↓ボーナス 35年間 30年間 25年間 20年間 15年間 10年間
0万円 56,589円/月 65,223円/月 77,318円/月 95,469円/月 125,734円/月 186,284円/月
5万円 47,504円/月 56,247円/月 68,451円/月 86,710円/月 117,083円/月 177,738円/月
10万円 38,418円/月 47,271円/月 59,584円/月 77,952円/月 108,431円/月 169,193円/月
15万円 29,333円/月 38,296円/月 50,717円/月 69,193円/月 99,780円/月 160,648円/月
20万円 ローン不可 ローン不可 41,851円/月 60,434円/月 91,128円/月 152,103円/月
25万円 ローン不可 ローン不可 ローン不可 51,676円/月 82,477円/月 143,558円/月
30万円 ローン不可 ローン不可 ローン不可 ローン不可 73,825円/月 135,013円/月
支払い利息合計 1,978,440円~ 1,689,640円~ 1,405,750円~ 1,123,040円~ 841,450円~ 560,300円~
※元利均等返済方式で試算しています。 「円」の単位以下の端数金額は「切り捨て」として計算しております。
※金利は、固定金利として計算しております。
※上記の住宅ローン返済額一覧は、あくまで試算であり、将来の金利動向により、実際のご返済額とは異なります。
※ボーナス支払総額が総支払額の50%を超えている場合、上記の表では「ローン不可」となります。
※住宅ローン返済額一覧の数値は、住宅ローンのお申し込みやご融資をお約束するものではございません。
物件を見たい、物件や住環境の詳しい情報やローン相談など、
お問い合わせ先
三井のリハウス名古屋栄センター三井不動産リアルティ(株)

掲載情報の著作権は提供元企業等に帰属します。
Copyright:(C) 2025 Recruit Co., Ltd.
アプリで簡単 物件探し 大手不動産サイトの情報から一括検!プッシュ通知で物件を見逃さない
App Storeからダウンロード Google Playで手に入れよう QRコード