アプリで簡単 物件探し 通知 共有 アプリならではの機能を使ってみる
中古マンション

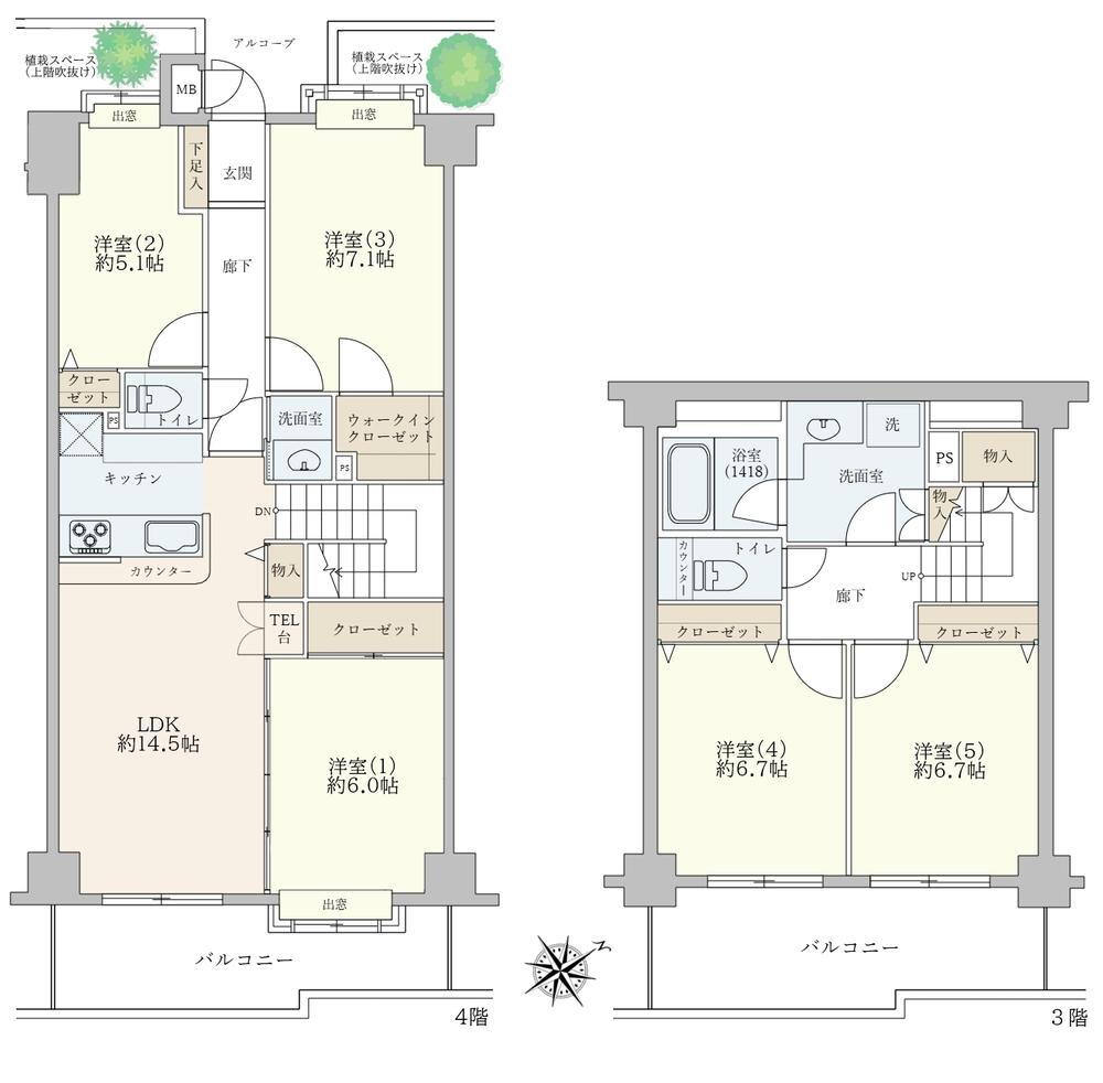
+ご成約特典あり+グランツ高幡不動ヒルステージ 4階 5LDK

情報提供元
SUUMO
+ご成約特典あり+グランツ高幡不動ヒルステージ レンガ基調の丘の上のレジデンス
価格 4160万円  (管理費等:1万7280円/月(委託(通勤)))
修繕積立金 28,340円
交通
所在地 東京都日野市三沢4周辺地図
間取り 5LDK 専有面積 113.37m2(壁芯)
所在階/階数 4階/地上6階地下1階建 方位 南東
築年月 2000年10月 築年数 築25年3ヶ月
おすすめポイント
++ご成約特典++【選べるプチリフォーム】お好みに合わせて、以下のメニューからお選びいただけます。1.ハウスクリーニング2.エアコンクリーニング3.アクセントクロス張替え4.クッションフロア張替え5.シャワートイレ交換6.排水口高圧洗浄...他※販売価格により適用や組み合わせが変わります。※リフォーム工事費に充当することも可能です。※物件の構造上実施できないものもあります。【あんしんサポート】既存設備が万が一故障した場合、修理費の一部が保証されます。・給湯器・ガスコンロ・キッチン水栓...他※経過年数によります。上記各詳細は担当営業にお尋ねください。
ペット相談可・閑静な住宅街・管理人日勤・24時間ゴミ出し可
物件を見たい、物件や住環境の詳しい情報やローン相談など、
お問い合わせ先
(株)TAKUMI

詳細情報

価格 4160万円 管理費等 1万7280円/月(委託(通勤))
駐車場 敷地内(9000円~1万2000円/月) 修繕積立金 28,340円
所在地 東京都日野市三沢4周辺地図
交通
  • 京王線 高幡不動駅 徒歩8分乗換案内
  • 多摩都市モノレール 程久保駅 徒歩7分乗換案内
  • 京王動物園線 多摩動物公園駅 徒歩19分乗換案内
物件名 +ご成約特典あり+グランツ高幡不動ヒルステージ
築年月(築年数) 2000年10月(築25年3ヶ月) 間取り 5LDK
総戸数 専有面積 113.37m2(壁芯)
所在階/階数 4階/地上6階地下1階建 バルコニー面積 20.88m2
方位 南東 建物構造 RC
管理形態 委託管理
維持費等 土地権利 所有権
用途地域 1種低層 借地期間・地代
現況 引渡可能年月 相談
情報提供元 SUUMO [030Z78801149] 情報公開日
情報更新日 次回更新予定日 随時

設備など

ペット相談可 即入居可 - 南向き -
角部屋 - 駐車場空き有り トランクルーム -
オートロック - 宅配ボックス 浴室乾燥機
床暖房 - ウォークインクローゼット 管理人常駐 -
最上階 - 2階以上 タワーマンション -
設備 洗面所・エレベーター・管理人日勤・浴室乾燥機・ウォークインクローゼット・シャンプードレッサ・システムキッチン・モニタ付インターホン・風呂・対面K・トイレ2ヶ所・衣類乾燥機・駐輪場・宅配BOX
リフォーム履歴 -
リノベーション履歴 -
備考 <物件名>+ご成約特典あり+グランツ高幡不動ヒルステージ/<駐車場>敷地内/委託(日勤)/<土地権利>所有権/<間取り>5LDK/<特徴>メゾネットタイプでプライベート空間が確保されている広々5LDK。  京王、2沿線以上利用可・システムキッチン・浴室乾燥機・閑静な住宅地・シャワー付洗面化粧台
販売戸数:1戸/管理費等帯:17280円/修繕積立金帯:28340円
特記事項 ペット相談可・閑静な住宅街・管理人日勤・24時間ゴミ出し可

省エネ性能

エネルギー消費性能 -
断熱性能 -
目安光熱費 -

東京都日野市三沢4 周辺地図情報

地図
※地図上に表示される物件の位置は付近住所に所在することを表すものであり、実際の物件所在地とは異なる場合がございます。
   正確な物件所在地は、取扱い不動産会社にお問い合わせください。
物件を見たい、物件や住環境の詳しい情報やローン相談など、
お問い合わせ先
(株)TAKUMI

不動産会社情報

お問い合わせ先 商号:(株)TAKUMI
免許番号:東京都知事(2)第103081号
所在地:東京都八王子市南町7-7
TEL:042-686-2610
取引態様:専任媒介
共有する
QRコード
物件を見たい、物件や住環境の詳しい情報やローン相談など、
お問い合わせ先
(株)TAKUMI

日野市の暮らしデータ

人口などの統計情報

世帯数 90257世帯
人口総数 187494人
転入者数 9956人
転入率(人口1000人当たり)
53.10人
転出者数 8940人
転出率(人口1000人当たり)
47.68人
土地平均価格
住宅地
211000円/m2
商業地
340667円/m2

結婚・育児の助成金

子育て関連の独自の取り組み -
出産祝い なし
公立保育所数 9所(うち0歳児保育を実施している保育所:4所)
私立保育所数 29所(うち0歳児保育を実施している保育所:28所)
保育所入所待機児童数 26人
認定こども園数 2園 預かり保育実施園数 公立:0園 私立:8園
学校給食 【小学校】完全給食【中学校】完全給食
公立中学校の学校選択制 実施
子ども・学生等医療費助成<通院>対象年齢 18歳3月末まで 子ども・学生等医療費助成<入院>対象年齢 18歳3月末まで

日野市の治安・ごみ収集情報

公共料金・インフラ

ガス料金(22m3使用した場合の月額) 東京瓦斯株式会社(東京地区等)3926円
大東ガス株式会社4335円
水道料金(口径20mmで20m3の月額) 東京都水道局2816円
下水道料金(20m3を使用した場合の月額) 日野市2068円
下水道普及率 96.3%

安心・安全

建物火災出火件数 18件
人口10000人当たり
0.95件
刑法犯認知件数 729件
人口1000人当たり
3.83件
ハザード・防災マップ あり

医療

一般病院総数 6ヶ所
一般診療所総数 132ヶ所
小児科医師数 30人
小児人口10000人当たり
13.28人
産婦人科医師数 5人
15~49歳女性人口1万人当たり
1.33人
介護保険料基準額(月額) 6115円

ごみ

家庭ごみ収集(可燃ごみ) 有料
備考
指定ごみ袋有料。可燃ごみ、不燃ごみ、プラスチック類ごみが対象。
家庭ごみの分別方式 6分別16種〔可燃ごみ 不燃ごみ プラスチック類ごみ 有害(危険)ごみ(蛍光管、乾電池・ボタン電池・水銀体温計・ライター・スプレー缶・カセットボンベ、テープ類) 資源ごみ(新聞、雑誌・雑紙類、段ボール、紙パック類、古着・古布類、かん、びん、ペットボトル、小型家電・金属類) 剪定枝〕
家庭ごみの戸別収集 実施
粗大ごみ収集 あり
備考
有料。戸別収集。事前申込制。指定収集業者に予約の上、粗大ごみ等処理券(シール)を貼って出す。
生ごみ処理機助成金制度 なし
上限金額
-
上限比率
-

日野市の住まいの給付金

中古購入

利子補給制度 なし
補助/助成金制度 なし

増築・改築・改修

利子補給制度 なし
補助/助成金制度 あり
上限金額
120万円
備考
【日野市住宅耐震化及び住宅ストック改修補助金】木造住宅耐震診断助成は診断費用の2/3以内、上限8.8万円。木造住宅耐震改修工事助成は費用の4/5以内、上限80万円。市内業者利用で上限100万円。耐震診断は1981年5月31日以前に着工された木造住宅または2000年5月31日以前に着工された木造在来工法で2階建て以下の住宅が対象。耐震改修は1981年5月31日以前に着工された木造住宅が対象。改修工事も、1981年5月31日以前に着工された木造住宅が対象。住宅バリアフリー化工事助成は、費用の1/10以内で上限20万円。木造住宅の断熱改修工事助成は、費用の1/6以内で上限20万円。補助対象とする工事内容が重複していない場合は併用が可能。上限100万円、市内業者の場合は120万円。
暮らしデータ提供元:生活ガイド.com
※行政機関により公表していない地域及びデータがございます。東京23区以外の政令指定都市は、市全体のデータとして表示しています。
※提供データには細心の注意を払っておりますが、調査後に変更がある場合があります。 最新の情報につきましては各市区役所までお問い合わせいただくか、自治体HPなどをご確認ください。
OCN×ドコモ光新規お申込みで合計最大137,280円相当おトク!特典の内訳・適用条件など詳細はこちら

日野市内の各駅の住みやすさ

住宅ローンの返済額一覧

物件価格 4160万円に対して、年率 で、頭金 の場合
↓ボーナス 35年間 30年間 25年間 20年間 15年間 10年間
0万円 95,008円/月 109,503円/月 129,809円/月 160,283円/月 211,095円/月 312,752円/月
5万円 85,922円/月 100,527円/月 120,942円/月 151,525円/月 202,444円/月 304,206円/月
10万円 76,837円/月 91,551円/月 112,075円/月 142,766円/月 193,793円/月 295,661円/月
15万円 67,751円/月 82,576円/月 103,208円/月 134,007円/月 185,141円/月 287,116円/月
20万円 58,666円/月 73,600円/月 94,342円/月 125,249円/月 176,490円/月 278,571円/月
25万円 49,580円/月 64,624円/月 85,475円/月 116,490円/月 167,838円/月 270,026円/月
30万円 ローン不可 55,649円/月 76,608円/月 107,731円/月 159,187円/月 261,481円/月
支払い利息合計 3,321,280円~ 2,839,800円~ 2,358,100円~ 1,880,400円~ 1,406,610円~ 936,460円~
※元利均等返済方式で試算しています。 「円」の単位以下の端数金額は「切り捨て」として計算しております。
※金利は、固定金利として計算しております。
※上記の住宅ローン返済額一覧は、あくまで試算であり、将来の金利動向により、実際のご返済額とは異なります。
※ボーナス支払総額が総支払額の50%を超えている場合、上記の表では「ローン不可」となります。
※住宅ローン返済額一覧の数値は、住宅ローンのお申し込みやご融資をお約束するものではございません。
物件を見たい、物件や住環境の詳しい情報やローン相談など、
お問い合わせ先
(株)TAKUMI

掲載情報の著作権は提供元企業等に帰属します。
Copyright:(C) 2025 Recruit Co., Ltd.
アプリで簡単 物件探し 大手不動産サイトの情報から一括検!プッシュ通知で物件を見逃さない
App Storeからダウンロード Google Playで手に入れよう QRコード