アプリで簡単 物件探し 通知 共有 アプリならではの機能を使ってみる
中古マンション

アップルタワー(東京キャナルコート) 41階 4LDK

情報提供元
SUUMO
アップルタワー(東京キャナルコート) 現地(2025年10月)撮影
価格 23300万円  (管理費等:3万1200円/月(委託(常駐)))
修繕積立金 36,420円
交通
所在地 東京都江東区東雲1周辺地図
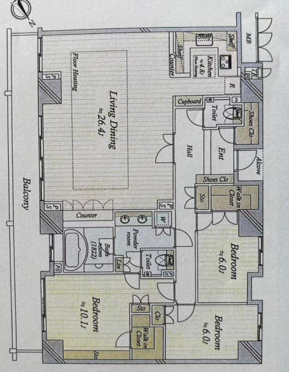
間取り 4LDK 専有面積 130.07m2(壁芯)
所在階/階数 41階/地上44階地下2階建 方位 南東
築年月 2007年2月 築年数 築18年11ヶ月
おすすめポイント
ペット飼育可(細則有)
日当り良好・閑静な住宅街・バリアフリー・管理人常駐・24時間ゴミ出し可・フラット35S適合
物件を見たい、物件や住環境の詳しい情報やローン相談など、
お問い合わせ先
(株)ランドアーク

詳細情報

価格 23300万円 管理費等 3万1200円/月(委託(常駐))
駐車場 専用使用権付駐車場(無料) 修繕積立金 36,420円
所在地 東京都江東区東雲1周辺地図
交通
  • 東京メトロ有楽町線 辰巳駅 徒歩11分乗換案内
  • りんかい線 東雲駅 徒歩14分乗換案内
  • 東京メトロ有楽町線 豊洲駅 徒歩19分乗換案内
物件名 アップルタワー(東京キャナルコート)
築年月(築年数) 2007年2月(築18年11ヶ月) 間取り 4LDK
総戸数 440戸 専有面積 130.07m2(壁芯)
所在階/階数 41階/地上44階地下2階建 バルコニー面積 19.63m2
方位 南東 建物構造 SRC
管理形態 委託管理
維持費等 温泉使用料3,000円 土地権利 所有権
用途地域 2種住居 借地期間・地代
現況 引渡可能年月 相談
情報提供元 SUUMO [030Z78558337] 情報公開日
情報更新日 次回更新予定日 随時

設備など

ペット相談可 - 即入居可 - 南向き -
角部屋 - 駐車場空き有り トランクルーム -
オートロック - 宅配ボックス 浴室乾燥機
床暖房 ウォークインクローゼット 管理人常駐
最上階 - 2階以上 タワーマンション
設備 バルコニー・トイレ・収納スペース・管理人常駐・洗面所・エレベーター・浴室乾燥機・ウォークインクローゼット・シャンプードレッサ・温水洗浄便座・システムキッチン・風呂・トイレ2ヶ所・浄水器・床暖房・衣類乾燥機・食器洗浄乾燥機・リフォーム・駐輪場・宅配BOX・シューズインクローク
リフォーム履歴 2023年6月完了
 水回り設備交換:浴室・トイレ
 内装リフォーム:壁・床
※年月は一番古いリフォーム箇所を表します
リノベーション履歴 -
備考 <物件名>アップルタワー(東京キャナルコート)/<駐車場>専用使用権付駐車場/委託(常駐)/<土地権利>所有権/<間取り>4LDK/<リフォーム>●リフォーム:2023年6月完了(水回り設備交換:浴室・トイレ、内装リフォーム:壁・床)※年月は一番古いリフォーム箇所を表します/<特徴>天然温泉利用可能 共有施設完備オーシャンビュー、フラット35・S適合証明書・2沿線以上利用可・LDK20畳以上・オーシャンビュー・スーパー 徒歩10分以内
販売戸数:1戸/管理費等帯:31200円/修繕積立金帯:36420円
特記事項 日当り良好・閑静な住宅街・バリアフリー・管理人常駐・24時間ゴミ出し可・フラット35S適合

省エネ性能

エネルギー消費性能 -
断熱性能 -
目安光熱費 -

東京都江東区東雲1 周辺地図情報

地図
※地図上に表示される物件の位置は付近住所に所在することを表すものであり、実際の物件所在地とは異なる場合がございます。
   正確な物件所在地は、取扱い不動産会社にお問い合わせください。
物件を見たい、物件や住環境の詳しい情報やローン相談など、
お問い合わせ先
(株)ランドアーク

不動産会社情報

お問い合わせ先 商号:(株)ランドアーク
免許番号:東京都知事(1)第107763号
所在地:東京都新宿区百人町1-15-19 マルスビル8階
TEL:03-5338-5288
取引態様:専任媒介
共有する
QRコード
物件を見たい、物件や住環境の詳しい情報やローン相談など、
お問い合わせ先
(株)ランドアーク

江東区の暮らしデータ

人口などの統計情報

世帯数 264111世帯
人口総数 539108人
転入者数 43873人
転入率(人口1000人当たり)
81.38人
転出者数 36037人
転出率(人口1000人当たり)
66.85人
土地平均価格
住宅地
605357円/m2
商業地
996545円/m2

結婚・育児の助成金

子育て関連の独自の取り組み 2017年度より、民有地を認可保育園として整備するため、区に相談のあった物件情報を保育施設運営事業者に提供するマッチングサポート事業を新たに開始。
出産祝い あり
公立保育所数 44所(うち0歳児保育を実施している保育所:28所)
私立保育所数 137所(うち0歳児保育を実施している保育所:94所)
保育所入所待機児童数 0人
認定こども園数 4園 預かり保育実施園数 公立:2園 私立:11園
学校給食 【小学校】完全給食【中学校】完全給食
公立中学校の学校選択制 実施
子ども・学生等医療費助成<通院>対象年齢 18歳3月末まで 子ども・学生等医療費助成<入院>対象年齢 18歳3月末まで

江東区の治安・ごみ収集情報

公共料金・インフラ

ガス料金(22m3使用した場合の月額) 東京瓦斯株式会社(東京地区等)3926円
水道料金(口径20mmで20m3の月額) 東京都水道局2816円
下水道料金(20m3を使用した場合の月額) 東京都下水道局2068円
下水道普及率 100.0%

安心・安全

建物火災出火件数 122件
人口10000人当たり
2.33件
刑法犯認知件数 3254件
人口1000人当たり
6.21件
ハザード・防災マップ あり

医療

一般病院総数 20ヶ所
一般診療所総数 471ヶ所
小児科医師数 111人
小児人口10000人当たり
16.88人
産婦人科医師数 53人
15~49歳女性人口1万人当たり
4.27人
介護保険料基準額(月額) 6200円

ごみ

家庭ごみ収集(可燃ごみ) 無料
備考
1回の収集では45リットル袋で3袋まで無料。4袋以上は1袋300円。
家庭ごみの分別方式 3分別10種〔燃やすごみ 燃やさないごみ 資源(プラスチック、古紙[新聞紙、雑誌・雑紙、段ボール]、びん、かん、ペットボトル、発泡トレイ・発泡スチロール)〕 拠点回収:使用済小型家電 古着 余剰食品 集団回収:古紙類 缶類 布類 ビン類
家庭ごみの戸別収集 一部実施
粗大ごみ収集 あり
備考
有料。事前申込制。
生ごみ処理機助成金制度 あり
上限金額
20000円
上限比率
50.0%

江東区の住まいの給付金

中古購入

利子補給制度 なし
補助/助成金制度 なし

増築・改築・改修

利子補給制度 なし
補助/助成金制度 あり
上限金額
200万円
備考
【江東区民間建築物耐震改修等助成】一定の要件を満たす耐震改修工事を行う場合、建築物の種類に応じて200万円または150万円(工事費の2/3または1/2以内)を上限に助成する。
暮らしデータ提供元:生活ガイド.com
※行政機関により公表していない地域及びデータがございます。東京23区以外の政令指定都市は、市全体のデータとして表示しています。
※提供データには細心の注意を払っておりますが、調査後に変更がある場合があります。 最新の情報につきましては各市区役所までお問い合わせいただくか、自治体HPなどをご確認ください。
OCN×ドコモ光新規お申込みで合計最大137,280円相当おトク!特典の内訳・適用条件など詳細はこちら

住宅ローンの返済額一覧

物件価格 23300万円に対して、年率 で、頭金 の場合
↓ボーナス 35年間 30年間 25年間 20年間 15年間 10年間
0万円 591,854円/月 682,152円/月 808,647円/月 998,489円/月 1,315,024円/月 1,948,291円/月
5万円 582,769円/月 673,176円/月 799,780円/月 989,730円/月 1,306,372円/月 1,939,746円/月
10万円 573,683円/月 664,200円/月 790,913円/月 980,971円/月 1,297,721円/月 1,931,201円/月
15万円 564,598円/月 655,225円/月 782,047円/月 972,213円/月 1,289,069円/月 1,922,656円/月
20万円 555,512円/月 646,249円/月 773,180円/月 963,454円/月 1,280,418円/月 1,914,110円/月
25万円 546,427円/月 637,273円/月 764,313円/月 954,695円/月 1,271,766円/月 1,905,565円/月
30万円 537,341円/月 628,297円/月 755,446円/月 945,937円/月 1,263,115円/月 1,897,020円/月
支払い利息合計 20,600,450円~ 17,593,080円~ 14,609,500円~ 11,649,840円~ 8,713,650円~ 5,801,140円~
※元利均等返済方式で試算しています。 「円」の単位以下の端数金額は「切り捨て」として計算しております。
※金利は、固定金利として計算しております。
※上記の住宅ローン返済額一覧は、あくまで試算であり、将来の金利動向により、実際のご返済額とは異なります。
※ボーナス支払総額が総支払額の50%を超えている場合、上記の表では「ローン不可」となります。
※住宅ローン返済額一覧の数値は、住宅ローンのお申し込みやご融資をお約束するものではございません。
物件を見たい、物件や住環境の詳しい情報やローン相談など、
お問い合わせ先
(株)ランドアーク

掲載情報の著作権は提供元企業等に帰属します。
Copyright:(C) 2025 Recruit Co., Ltd.
アプリで簡単 物件探し 大手不動産サイトの情報から一括検!プッシュ通知で物件を見逃さない
App Storeからダウンロード Google Playで手に入れよう QRコード