アプリで簡単 物件探し 通知 共有 アプリならではの機能を使ってみる
中古マンション

メゾンドルチェ十五番館 5階 3LDK

情報提供元
SUUMO
メゾンドルチェ十五番館 令和6年12月リフォーム完了済の5階建て最上階の物件となっています。
価格 1699万円  (管理費等:7900円/月(委託(通勤)))
修繕積立金 13,800円
交通
所在地 北海道札幌市手稲区富丘二条6周辺地図
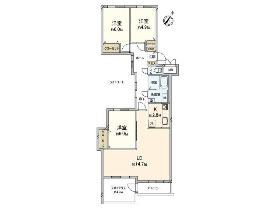
間取り 3LDK 専有面積 76.82m2(23.23坪)(壁芯)
所在階/階数 5階/5階建 方位 南東
築年月 1992年8月 築年数 築33年5ヶ月
おすすめポイント
■ 物件概要━━━━━━━━━━━・・・・・ ○ 令和6年12月リフォーム完了済 ○ 平成4年8月築 〇 3LDK 〇 鉄筋コンクリート造5階建5階部分 ○ 専有面積 76.82平米(約23.23坪) 〇 南東向き 〇 スカイテラス 〇 エレベーター 〇 トランクルーム
管理人日勤・最上階
お問い合わせ先
三井のリハウス札幌西センター三井不動産リアルティ札幌(株)
物件を見たい、物件や住環境の詳しい情報やローン相談など、
お問い合わせ先
三井のリハウス札幌西センター三井不動産リアルティ札幌(株)

詳細情報

価格 1699万円 管理費等 7900円/月(委託(通勤))
駐車場 敷地内(7000円/月) 修繕積立金 13,800円
所在地 北海道札幌市手稲区富丘二条6周辺地図
交通
  • JR函館本線 稲積公園駅 徒歩10分乗換案内
物件名 メゾンドルチェ十五番館
築年月(築年数) 1992年8月(築33年5ヶ月) 間取り 3LDK
総戸数 40戸 専有面積 76.82m2(23.23坪)(壁芯)
所在階/階数 5階/5階建 バルコニー面積 10.3m2
方位 南東 建物構造 RC
管理形態 委託管理
維持費等 土地権利 所有権
用途地域 1種住居 借地期間・地代
現況 引渡可能年月 即時
情報提供元 SUUMO [010Z76845586] 情報公開日
情報更新日 次回更新予定日 随時

設備など

ペット相談可 - 即入居可 南向き -
角部屋 - 駐車場空き有り トランクルーム -
オートロック - 宅配ボックス - 浴室乾燥機 -
床暖房 - ウォークインクローゼット - 管理人常駐 -
最上階 2階以上 タワーマンション -
設備 バルコニー・エレベーター・管理人日勤・テラス・リフォーム
リフォーム履歴 2024年12月完了
 水回り設備交換:キッチン・浴室・トイレ
 内装リフォーム:壁・床
 その他:全室クロス/建具/洗…
※年月は一番古いリフォーム箇所を表します
リノベーション履歴 -
備考 <物件名>メゾンドルチェ十五番館/<駐車場>敷地内/委託(日勤)/<土地権利>所有権/<間取り>3LDK/<リフォーム>●リフォーム:2024年12月完了(水回り設備交換:キッチン・浴室・トイレ、内装リフォーム:壁・床、その他:全室クロス/建具/洗…)※年月は一番古いリフォーム箇所を表します/<特徴>JR稲積公園駅徒歩10分、5階最上階スカイテラス付きの3LDK、即引渡可・内装リフォーム・最上階・上階なし・エレベーター・テラス
販売戸数:1戸/管理費等帯:7900円/修繕積立金帯:13800円
特記事項 管理人日勤・最上階

省エネ性能

エネルギー消費性能 -
断熱性能 -
目安光熱費 -

北海道札幌市手稲区富丘二条6 周辺地図情報

地図
※地図上に表示される物件の位置は付近住所に所在することを表すものであり、実際の物件所在地とは異なる場合がございます。
   正確な物件所在地は、取扱い不動産会社にお問い合わせください。
物件を見たい、物件や住環境の詳しい情報やローン相談など、
お問い合わせ先
三井のリハウス札幌西センター三井不動産リアルティ札幌(株)

不動産会社情報

お問い合わせ先 商号:三井のリハウス札幌西センター三井不動産リアルティ札幌(株)
免許番号:北海道知事石狩(8)第005813号
所在地:北海道札幌市西区琴似二条5-1-22三光カサノビル1階
TEL:00786-01794338
取引態様:一般媒介
管理コード:FC4ABA02
共有する
QRコード
物件を見たい、物件や住環境の詳しい情報やローン相談など、
お問い合わせ先
三井のリハウス札幌西センター三井不動産リアルティ札幌(株)

札幌市手稲区の暮らしデータ

人口などの統計情報

世帯数 967372世帯
人口総数 1956928人
転入者数 121035人
転入率(人口1000人当たり)
61.85人
転出者数 109861人
転出率(人口1000人当たり)
56.14人
土地平均価格
住宅地
107466円/m2
商業地
594868円/m2

結婚・育児の助成金

子育て関連の独自の取り組み (1)交通事故・労働災害およびその他不慮の災害により、父、または母等を失った(重度障がいとなった場合を含む)義務教育終了前の遺児を扶養する方に遺児1人につき月額4,000円を支給するとともに、手当の対象となる遺児が小・中学校および高等学校等に入学する際または中学校卒業後、就職する際に遺児1人につき2万円を支給。(2)認可保育所等における第2子以降の保育料について、世帯年収や兄弟姉妹の年齢差に関わらず無償化。
出産祝い なし
公立保育所数 20所(うち0歳児保育を実施している保育所:14所)
私立保育所数 182所(うち0歳児保育を実施している保育所:182所)
保育所入所待機児童数 0人
認定こども園数 238園 預かり保育実施園数 公立:9園 私立:49園
学校給食 【小学校】完全給食【中学校】完全給食
公立中学校の学校選択制 一部実施(小規模特認校)
子ども・学生等医療費助成<通院>対象年齢 中学校卒業まで 子ども・学生等医療費助成<入院>対象年齢 中学校卒業まで

札幌市手稲区の治安・ごみ収集情報

公共料金・インフラ

ガス料金(22m3使用した場合の月額) 北海道瓦斯株式会社5118円
水道料金(口径20mmで20m3の月額) 札幌市3652円
下水道料金(20m3を使用した場合の月額) 札幌市1397円
下水道普及率 99.9%

安心・安全

建物火災出火件数 286件
人口10000人当たり
1.45件
刑法犯認知件数 11263件
人口1000人当たり
5.71件
ハザード・防災マップ あり

医療

一般病院総数 172ヶ所
一般診療所総数 1433ヶ所
小児科医師数 371人
小児人口10000人当たり
17.99人
産婦人科医師数 203人
15~49歳女性人口1万人当たり
5.12人
介護保険料基準額(月額) 5773円

ごみ

家庭ごみ収集(可燃ごみ) 有料
備考
燃やせるごみ・燃やせないごみは有料収集。
家庭ごみの分別方式 9分別〔燃やせるごみ 燃やせないごみ スプレー缶・カセットボンベ 筒型乾電池 加熱式たばこ・電子たばこ・ライター 容器包装プラスチック びん・缶・ペットボトル 枝・葉・草 雑がみ〕 拠点回収:新聞 雑誌 ダンボール 紙パック 雑がみ びん・缶・ペットボトル 一升びん・ビールびん 容器包装プラスチック 古着 古布 毛布 小物金属類 小型家電 蛍光管 水銀体温計・水銀血圧計・水銀温度計 筒型乾電池 小型充電式電池 廃食油 生ごみ堆肥 枝・葉・草 使用済みインクカートリッジ スプレー缶・カセットボンベ ライター
家庭ごみの戸別収集 一部実施(【さわやか収集】一定の要件に該当する要介護者や障がい者に対し、玄関先からのごみの収集や大型ごみの家屋内からの運び出しの支援を実施)
粗大ごみ収集 あり
備考
有料。戸別収集。事前申込制(大型ごみ収集センター)。
生ごみ処理機助成金制度 あり
上限金額
10000円
上限比率
50.0%

札幌市手稲区の住まいの給付金

中古購入

利子補給制度 なし
補助/助成金制度 なし

増築・改築・改修

利子補給制度 なし
補助/助成金制度 あり
上限金額
(1)50万円(2)120万円
備考
(1)【住宅エコリフォーム補助制度】市内事業者が施工する一定の省エネ改修やバリアフリー改修を対象。総工事費(税抜)の10%(1,000円未満切捨)又は一申請者あたり50万円のいずれか少ない額を限度とし、補助対象工事毎に市が定める補助金額の合計を補助。(2)【木造住宅耐震化補助制度】1981年5月31日以前に在来軸組工法で建てられ、耐震診断の結果、耐震性が低いと診断された木造住宅について、耐震改修工事(設計を含む)に要する費用の8/10又は1棟につき120万円のいずれか少ない額を限度として補助。
暮らしデータ提供元:生活ガイド.com
※行政機関により公表していない地域及びデータがございます。東京23区以外の政令指定都市は、市全体のデータとして表示しています。
※提供データには細心の注意を払っておりますが、調査後に変更がある場合があります。 最新の情報につきましては各市区役所までお問い合わせいただくか、自治体HPなどをご確認ください。
OCN×ドコモ光新規お申込みで合計最大137,280円相当おトク!特典の内訳・適用条件など詳細はこちら

札幌市手稲区内の各駅の住みやすさ

他のエリアから探す

札幌市手稲区の詳細地域から中古マンション物件を探す

曙二条稲穂一条稲穂二条新発寒二条新発寒五条手稲本町手稲本町一条手稲本町二条富丘一条富丘二条西宮の沢一条西宮の沢五条西宮の沢六条星置一条星置二条前田一条前田二条前田五条

近辺の市区から探す

札幌市中央区札幌市北区札幌市東区札幌市西区石狩市

周辺の駅から探す

函館本線
ほしみ星置稲穂手稲稲積公園発寒発寒中央琴似桑園

マンションライブラリーを見る

メゾンドルチェ十五番館

住宅ローンの返済額一覧

物件価格 1699万円に対して、年率 で、頭金 の場合
↓ボーナス 35年間 30年間 25年間 20年間 15年間 10年間
0万円 31,124円/月 35,872円/月 42,524円/月 52,508円/月 69,154円/月 102,456円/月
5万円 22,038円/月 26,897円/月 33,658円/月 43,749円/月 60,502円/月 93,911円/月
10万円 ローン不可 ローン不可 24,791円/月 34,990円/月 51,851円/月 85,365円/月
15万円 ローン不可 ローン不可 ローン不可 ローン不可 43,199円/月 76,820円/月
20万円 ローン不可 ローン不可 ローン不可 ローン不可 ローン不可 68,275円/月
25万円 ローン不可 ローン不可 ローン不可 ローン不可 ローン不可 59,730円/月
30万円 ローン不可 ローン不可 ローン不可 ローン不可 ローン不可 ローン不可
支払い利息合計 1,085,440円~ 927,280円~ 772,500円~ 615,920円~ 462,280円~ 309,880円~
※元利均等返済方式で試算しています。 「円」の単位以下の端数金額は「切り捨て」として計算しております。
※金利は、固定金利として計算しております。
※上記の住宅ローン返済額一覧は、あくまで試算であり、将来の金利動向により、実際のご返済額とは異なります。
※ボーナス支払総額が総支払額の50%を超えている場合、上記の表では「ローン不可」となります。
※住宅ローン返済額一覧の数値は、住宅ローンのお申し込みやご融資をお約束するものではございません。
物件を見たい、物件や住環境の詳しい情報やローン相談など、
お問い合わせ先
三井のリハウス札幌西センター三井不動産リアルティ札幌(株)

掲載情報の著作権は提供元企業等に帰属します。
Copyright:(C) 2025 Recruit Co., Ltd.
アプリで簡単 物件探し 大手不動産サイトの情報から一括検!プッシュ通知で物件を見逃さない
App Storeからダウンロード Google Playで手に入れよう QRコード