アプリで簡単 物件探し 通知 共有 アプリならではの機能を使ってみる
中古住宅

奈良県生駒市高山町 河内磐船駅 中古一戸建て・中古住宅

情報提供元
LIFULL HOME'S
奈良県生駒市高山町 河内磐船駅 中古一戸建て・中古住宅
価格 1700万円
交通
所在地 奈良県生駒市高山町周辺地図
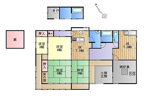
間取り 5SDK
建物面積 167.23m2 土地面積 1649m2(公簿)
築年月 1912年1月 築年数 築113年11ヶ月
おすすめポイント
古民家 土地約498坪 家庭菜園等に最適☆12月25日~1月4日年末年始休暇☆1月5日より通常営業
お問い合わせ先
センチュリー21ハウスマーケット京都店
物件を見たい、物件や住環境の詳しい情報やローン相談など、
お問い合わせ先
センチュリー21ハウスマーケット京都店

詳細情報

価格 1700万円
所在地 奈良県生駒市高山町周辺地図
交通
間取り 5SDK 築年月(築年数) 1912年1月(築113年11ヶ月)
建物面積 167.23m2 建物構造・規模 木造平屋建て
土地面積 1649m2(公簿) 土地権利 所有権
私道面積 借地期間・地代
接道状況 南東3m公道 一方道路 駐車場 空有 無料
用途地域 無指定 都市計画 調整区域
建ぺい率/容積率 70%/400% 現況 空室
地目 宅地 引渡可能時期 相談
情報提供元 LIFULL HOME'S [86500002377] 情報公開日
情報更新日 次回更新予定日 2025年11月17日

設備など

1種低層地域 - 即入居可 - 売主・代理 -
駐車2台以上 - 平屋 本下水 -
都市ガス - カウンターキッチン - 床暖房 -
ウォークインクローゼット - バリアフリー -
設備
リフォーム履歴 -
リノベーション履歴 -
備考 【物件周辺の生活情報】
・学校
生駒北小学校(4,391m)、生駒北中学校(4,725m)
[物件コード]143501-16323
国土法届出:不要
述べ床面積:167.23m2
特記事項

省エネ性能

エネルギー消費性能 -
断熱性能 -
目安光熱費 -

奈良県生駒市高山町 周辺地図情報

地図
※地図上に表示される物件の位置は付近住所に所在することを表すものであり、実際の物件所在地とは異なる場合がございます。
   正確な物件所在地は、取扱い不動産会社にお問い合わせください。
物件を見たい、物件や住環境の詳しい情報やローン相談など、
お問い合わせ先
センチュリー21ハウスマーケット京都店

不動産会社情報

お問い合わせ先 商号:センチュリー21ハウスマーケット京都店
免許番号:国土交通大臣(1)第10044号
所在地:京都府京都市伏見区竹田中川原町387伏見リンサンハイツ105
取引態様:専属専任媒介
管理コード:2377
所属協会など:(公社)近畿地区不動産公正取引協議会、(公社)全日本不動産協会
共有する
QRコード

お電話でのお問い合わせ

電話をかける(携帯・PHS可)
お問い合わせダイヤル
通話無料0037-634-73349
営業時間 09:00~18:00 (定休日:水曜日)
音声案内に従って数字を入力
お問い合わせ番号
19702-2974
不動産会社につながります
不動産会社のスタッフと
直接電話で話せます。
※不動産会社がお電話に出られなかった場合、株式会社LIFULLは電話会社が提供するサービスを介してお客様の発信者番号を受領後、折り返し専用の電話番号を発番してお問合せの不動産会社に通知します(お客様の発信者番号がお問合せの不動産会社に通知されることはございません)
※光IP電話、及びIP電話からはご利用になれません
※0037で始まる電話番号に携帯電話からお問合せいただいた方には、ショートメッセージ(SMS)によるお問合せ完了通知をお届けする場合があります
物件を見たい、物件や住環境の詳しい情報やローン相談など、
お問い合わせ先
センチュリー21ハウスマーケット京都店

生駒市の暮らしデータ

人口などの統計情報

世帯数 47617世帯
人口総数 117332人
転入者数 4001人
転入率(人口1000人当たり)
34.10人
転出者数 3995人
転出率(人口1000人当たり)
34.05人
土地平均価格
住宅地
95229円/m2
商業地
140333円/m2

結婚・育児の助成金

子育て関連の独自の取り組み 病後児保育事業(病気回復期にある児童の一時的な保育を行う[無料])。
出産祝い なし
公立保育所数 4所(うち0歳児保育を実施している保育所:4所)
私立保育所数 6所(うち0歳児保育を実施している保育所:6所)
保育所入所待機児童数 16人
認定こども園数 10園 預かり保育実施園数 公立:6園 私立:4園
学校給食 【小学校】完全給食【中学校】完全給食
公立中学校の学校選択制 未実施
子ども・学生等医療費助成<通院>対象年齢 18歳3月末まで 子ども・学生等医療費助成<入院>対象年齢 18歳3月末まで

生駒市の治安・ごみ収集情報

公共料金・インフラ

ガス料金(22m3使用した場合の月額) 大阪瓦斯株式会社4544円
水道料金(口径20mmで20m3の月額) 生駒市3647円
下水道料金(20m3を使用した場合の月額) 生駒市2332円
下水道普及率 73.0%

安心・安全

建物火災出火件数 14件
人口10000人当たり
1.20件
刑法犯認知件数 369件
人口1000人当たり
3.16件
ハザード・防災マップ あり

医療

一般病院総数 6ヶ所
一般診療所総数 96ヶ所
小児科医師数 22人
小児人口10000人当たり
14.67人
産婦人科医師数 9人
15~49歳女性人口1万人当たり
4.05人
介護保険料基準額(月額) 5600円

ごみ

家庭ごみ収集(可燃ごみ) 有料
備考
指定ごみ袋有料。
家庭ごみの分別方式 7分別11種〔燃えるごみ(燃えるごみ、ミックスペーパー) プラスチック製容器包装 ビン・カン ペットボトル われもの(陶磁器製品、ガラス製品) 有害ごみ(電池・体温計、鏡、蛍光管・電球) 燃えないごみ〕
家庭ごみの戸別収集 一部実施(【まごころ収集】65歳以上で要介護2以上若しくは障がい者で各種福祉制度を受けている人、且つホームヘルプサービスを利用している人等)
粗大ごみ収集 あり
備考
有料。戸別収集。事前申込制。「大型ごみ受付センター」へ電話申し込み。大型ごみ処理券を添付。自己搬入も可能。
生ごみ処理機助成金制度 なし
上限金額
-
上限比率
-

生駒市の住まいの給付金

中古購入

利子補給制度 なし
補助/助成金制度 なし

増築・改築・改修

利子補給制度 なし
補助/助成金制度 あり
上限金額
(1)50万円(2)50万円
備考
(1)【耐震改修工事】主に1981年5月31日以前に建てられ、現在住宅の用に供している建築物が対象。耐震性能を市で定める基準以上にする耐震改修工事に要する費用に対し、その費用の一部を補助。(2)【省エネルギー改修工事】2008年1月1日以前に建築された建築物で、現在住宅の用に供する家屋、窓の改修工事(必須)及び、床・天井・壁の断熱工事で50万円を超えるものが対象。省エネルギー改修工事に係る経費の1/3、上限50万円(請負契約書記載の相手方の所在地が生駒市内でない場合は30万円)。
暮らしデータ提供元:生活ガイド.com
※行政機関により公表していない地域及びデータがございます。東京23区以外の政令指定都市は、市全体のデータとして表示しています。
※提供データには細心の注意を払っておりますが、調査後に変更がある場合があります。 最新の情報につきましては各市区役所までお問い合わせいただくか、自治体HPなどをご確認ください。
OCN×ドコモ光新規お申込みで合計最大137,280円相当おトク!特典の内訳・適用条件など詳細はこちら

生駒市内の各駅の住みやすさ

住宅ローンの返済額一覧

物件価格 1700万円に対して、年率 で、頭金 の場合
↓ボーナス 35年間 30年間 25年間 20年間 15年間 10年間
0万円 31,150円/月 35,902円/月 42,560円/月 52,552円/月 69,211円/月 102,541円/月
5万円 22,064円/月 26,927円/月 33,693円/月 43,793円/月 60,560円/月 93,996円/月
10万円 ローン不可 17,951円/月 24,826円/月 35,034円/月 51,908円/月 85,451円/月
15万円 ローン不可 ローン不可 ローン不可 26,276円/月 43,257円/月 76,906円/月
20万円 ローン不可 ローン不可 ローン不可 ローン不可 34,605円/月 68,361円/月
25万円 ローン不可 ローン不可 ローン不可 ローン不可 ローン不可 59,815円/月
30万円 ローン不可 ローン不可 ローン不可 ローン不可 ローン不可 51,270円/月
支払い利息合計 1,086,360円~ 931,080円~ 773,000円~ 618,720円~ 464,190円~ 311,140円~
※元利均等返済方式で試算しています。 「円」の単位以下の端数金額は「切り捨て」として計算しております。
※金利は、固定金利として計算しております。
※上記の住宅ローン返済額一覧は、あくまで試算であり、将来の金利動向により、実際のご返済額とは異なります。
※ボーナス支払総額が総支払額の50%を超えている場合、上記の表では「ローン不可」となります。
※住宅ローン返済額一覧の数値は、住宅ローンのお申し込みやご融資をお約束するものではございません。
物件を見たい、物件や住環境の詳しい情報やローン相談など、
お問い合わせ先
センチュリー21ハウスマーケット京都店

掲載情報の著作権は提供元企業等に帰属します。
Copyright:(C) 2025 LIFULL Co.,Ltd.
アプリで簡単 物件探し 大手不動産サイトの情報から一括検!プッシュ通知で物件を見逃さない
App Storeからダウンロード Google Playで手に入れよう QRコード