アプリで簡単 物件探し 通知 共有 アプリならではの機能を使ってみる
中古住宅

奈良県五條市田園3丁目 五条駅 中古一戸建て・中古住宅

情報提供元
LIFULL HOME'S
奈良県五條市田園3丁目 五条駅 中古一戸建て・中古住宅
価格 580万円
交通
所在地 奈良県五條市田園3丁目周辺地図
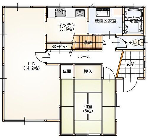
間取り 4LDK
建物面積 105.81m2 土地面積 207.93m2(公簿)
築年月 1988年4月 築年数 築37年9ヶ月
おすすめポイント
是非お気軽にお問い合わせください!弊社スタッフが丁寧にご対応いたします!
お問い合わせ先
センチュリー21イースマイル奈良店
物件を見たい、物件や住環境の詳しい情報やローン相談など、
お問い合わせ先
センチュリー21イースマイル奈良店

詳細情報

価格 580万円
所在地 奈良県五條市田園3丁目周辺地図
交通
  • 和歌山線 五条駅 バス16分/「田園3丁目」バス停 停歩2分乗換案内
間取り 4LDK 築年月(築年数) 1988年4月(築37年9ヶ月)
建物面積 105.81m2 建物構造・規模 木造2階建
土地面積 207.93m2(公簿) 土地権利 所有権
私道面積 借地期間・地代
接道状況 東6.2m公道 一方道路 駐車場 空有 (1台) 無料
用途地域 1種低層 都市計画 市街化区域
建ぺい率/容積率 40%/60% 現況 空室
地目 宅地 引渡可能時期 相談
情報提供元 LIFULL HOME'S [93670000026] 情報公開日
情報更新日 次回更新予定日 2025年12月9日

設備など

1種低層地域 即入居可 - 売主・代理 -
駐車2台以上 - 平屋 - 本下水
都市ガス カウンターキッチン - 床暖房 -
ウォークインクローゼット - バリアフリー -
設備 上水道・都市ガス・本下水・システムキッチン・フローリング・クローゼット
リフォーム履歴 -
リノベーション履歴 -
備考 【物件周辺の生活情報】
・学校
牧野小学校(7m)、五條西中学校(22m)
[物件コード]207402-16 【設備・特記事項備考】全居室収納
国土法届出:不要
述べ床面積:105.81m2
法令等制限:宅地造成工事規制区域
特記事項

省エネ性能

エネルギー消費性能 -
断熱性能 -
目安光熱費 -

奈良県五條市田園3丁目 周辺地図情報

地図
※地図上に表示される物件の位置は付近住所に所在することを表すものであり、実際の物件所在地とは異なる場合がございます。
   正確な物件所在地は、取扱い不動産会社にお問い合わせください。
物件を見たい、物件や住環境の詳しい情報やローン相談など、
お問い合わせ先
センチュリー21イースマイル奈良店

不動産会社情報

お問い合わせ先 商号:センチュリー21イースマイル奈良店
免許番号:国土交通大臣(3)第8256号
所在地:奈良県奈良市大安寺町504番地3
取引態様:専任媒介
管理コード:26
所属協会など:(公社)近畿地区不動産公正取引協議会、(公社)全日本不動産協会
共有する
QRコード

お電話でのお問い合わせ

電話をかける(携帯・PHS可)
お問い合わせダイヤル
通話無料0037-619-62838
営業時間 10:00~19:00 (定休日:水曜日、年末年始)
音声案内に従って数字を入力
お問い合わせ番号
81192-2978
不動産会社につながります
不動産会社のスタッフと
直接電話で話せます。
※不動産会社がお電話に出られなかった場合、株式会社LIFULLは電話会社が提供するサービスを介してお客様の発信者番号を受領後、折り返し専用の電話番号を発番してお問合せの不動産会社に通知します(お客様の発信者番号がお問合せの不動産会社に通知されることはございません)
※光IP電話、及びIP電話からはご利用になれません
※0037で始まる電話番号に携帯電話からお問合せいただいた方には、ショートメッセージ(SMS)によるお問合せ完了通知をお届けする場合があります
物件を見たい、物件や住環境の詳しい情報やローン相談など、
お問い合わせ先
センチュリー21イースマイル奈良店

五條市の暮らしデータ

人口などの統計情報

世帯数 10873世帯
人口総数 27477人
転入者数 720人
転入率(人口1000人当たり)
26.20人
転出者数 860人
転出率(人口1000人当たり)
31.30人
土地平均価格
住宅地
16763円/m2
商業地
44350円/m2

結婚・育児の助成金

子育て関連の独自の取り組み -
出産祝い あり
公立保育所数 0所(うち0歳児保育を実施している保育所:-)
私立保育所数 0所(うち0歳児保育を実施している保育所:-)
保育所入所待機児童数 0人
認定こども園数 5園 預かり保育実施園数 公立:- 私立:-
学校給食 【小学校】完全給食【中学校】完全給食
公立中学校の学校選択制 未実施
子ども・学生等医療費助成<通院>対象年齢 18歳3月末まで 子ども・学生等医療費助成<入院>対象年齢 18歳3月末まで

五條市の治安・ごみ収集情報

公共料金・インフラ

ガス料金(22m3使用した場合の月額) 五条ガス株式会社5846円
水道料金(口径20mmで20m3の月額) 五條市3762円
下水道料金(20m3を使用した場合の月額) 五條市2200円
下水道普及率 59.3%

安心・安全

建物火災出火件数 8件
人口10000人当たり
2.86件
刑法犯認知件数 65件
人口1000人当たり
2.33件
ハザード・防災マップ あり

医療

一般病院総数 1ヶ所
一般診療所総数 31ヶ所
小児科医師数 2人
小児人口10000人当たり
9.18人
産婦人科医師数 1人
15~49歳女性人口1万人当たり
2.47人
介護保険料基準額(月額) 6600円

ごみ

家庭ごみ収集(可燃ごみ) 有料
備考
指定ごみ袋有料。
家庭ごみの分別方式 5分別11種〔可燃ごみ カン・小型金属類 その他の不燃ごみ リサイクル類ごみ 古紙・びん・蛍光管・乾電池(新聞、雑誌、段ボール、びん類、蛍光管、電球、電池)〕
家庭ごみの戸別収集 未実施
粗大ごみ収集 あり
備考
有料(粗大ごみ1個につき500円)。事前申込制。自分で持ち込む場合は、1回の搬入量が200kg未満の場合、10kgにつき120円、1回の搬入量が200kg以上の場合、10kgにつき150円。
生ごみ処理機助成金制度 あり
上限金額
30000円
上限比率
50.0%

五條市の住まいの給付金

中古購入

利子補給制度 なし
補助/助成金制度 なし

増築・改築・改修

利子補給制度 なし
補助/助成金制度 なし
暮らしデータ提供元:生活ガイド.com
※行政機関により公表していない地域及びデータがございます。東京23区以外の政令指定都市は、市全体のデータとして表示しています。
※提供データには細心の注意を払っておりますが、調査後に変更がある場合があります。 最新の情報につきましては各市区役所までお問い合わせいただくか、自治体HPなどをご確認ください。
OCN×ドコモ光新規お申込みで合計最大137,280円相当おトク!特典の内訳・適用条件など詳細はこちら

五條市内の各駅の住みやすさ

他のエリアから探す

五條市の詳細地域から一戸建て物件を探す

居傳町大野町岡口岡町須恵住川町田園なつみ台野原東二見山陰町

近辺の市区から探す

吉野郡大淀町吉野郡下市町橋本市

周辺の駅から探す

和歌山線
玉手掖上吉野口北宇智五条大和二見隅田下兵庫橋本

住宅ローンの返済額一覧

物件価格 580万円に対して、年率 で、頭金 の場合
↓ボーナス 35年間 30年間 25年間 20年間 15年間 10年間
0万円 2,076円/月 2,393円/月 2,837円/月 3,503円/月 4,614円/月 6,836円/月
5万円 ローン不可 ローン不可 ローン不可 ローン不可 ローン不可 ローン不可
10万円 ローン不可 ローン不可 ローン不可 ローン不可 ローン不可 ローン不可
15万円 ローン不可 ローン不可 ローン不可 ローン不可 ローン不可 ローン不可
20万円 ローン不可 ローン不可 ローン不可 ローン不可 ローン不可 ローン不可
25万円 ローン不可 ローン不可 ローン不可 ローン不可 ローン不可 ローン不可
30万円 ローン不可 ローン不可 ローン不可 ローン不可 ローン不可 ローン不可
支払い利息合計 71,920円~ 61,480円~ 51,100円~ 40,720円~ 30,520円~ 20,320円~
※元利均等返済方式で試算しています。 「円」の単位以下の端数金額は「切り捨て」として計算しております。
※金利は、固定金利として計算しております。
※上記の住宅ローン返済額一覧は、あくまで試算であり、将来の金利動向により、実際のご返済額とは異なります。
※ボーナス支払総額が総支払額の50%を超えている場合、上記の表では「ローン不可」となります。
※住宅ローン返済額一覧の数値は、住宅ローンのお申し込みやご融資をお約束するものではございません。
物件を見たい、物件や住環境の詳しい情報やローン相談など、
お問い合わせ先
センチュリー21イースマイル奈良店

掲載情報の著作権は提供元企業等に帰属します。
Copyright:(C) 2025 LIFULL Co.,Ltd.
アプリで簡単 物件探し 大手不動産サイトの情報から一括検!プッシュ通知で物件を見逃さない
App Storeからダウンロード Google Playで手に入れよう QRコード