アプリで簡単 物件探し 通知 共有 アプリならではの機能を使ってみる
中古住宅

兵庫県川西市けやき坂1丁目 川西能勢口駅 中古一戸建て・中古住宅

情報提供元
LIFULL HOME'S
兵庫県川西市けやき坂1丁目 川西能勢口駅 中古一戸建て・中古住宅
価格 3280万円
交通
所在地 兵庫県川西市けやき坂1丁目周辺地図
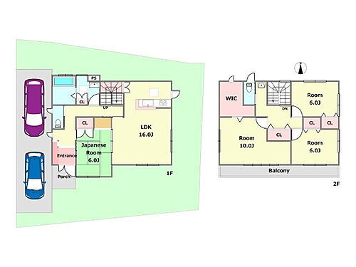
間取り 4LDK
建物面積 120.06m2(壁芯) 土地面積 231.77m2(公簿)
築年月 2004年10月 築年数 築21年3ヶ月
おすすめポイント
夏休み戸建て特集♪【本日見学可】 2025年5月末リフォーム済。南側・北側の両面道路で採光・通風が良好。南側・東側に広々お庭スペースございます。駐車スペース2台分ございます(車種制限あり)
【オープンハウス情報】
2025年11月07日(金)~2026年01月31日(土)(10:00 ~ 19:00)
■□■プライベート見学会ご予約受付中■□■ 建物内は換気等を実施しながら「一組ずつご案内」いたします。ご希望の日時をご連絡いただければ準備を致しますので、お気軽にお申し付けください。
駐車場2台分
お問い合わせ先
センチュリー21株式会社アクロスコーポレイション 宝塚店
物件を見たい、物件や住環境の詳しい情報やローン相談など、
お問い合わせ先
センチュリー21株式会社アクロスコーポレイション 宝塚店

詳細情報

価格 3280万円
所在地 兵庫県川西市けやき坂1丁目周辺地図
交通
  • 阪急電鉄宝塚線 川西能勢口駅 バス13分/「けやき坂一丁目」バス停 停歩1分乗換案内
  • 能勢電鉄 多田駅 徒歩3.2km乗換案内
間取り 4LDK 築年月(築年数) 2004年10月(築21年3ヶ月)
建物面積 120.06m2(壁芯) 建物構造・規模 木造2階建
土地面積 231.77m2(公簿) 土地権利 所有権
私道面積 借地期間・地代
接道状況 南6.2m公道 北16m公道 二方(除角地)
セットバック 駐車場 空有 (2台) 無料
用途地域 1種低層 都市計画 市街化区域
建ぺい率/容積率 50%/80% 現況 空室
地目 宅地 引渡可能時期 即時
情報提供元 LIFULL HOME'S [1314480007390] 情報公開日
情報更新日 次回更新予定日 2025年12月19日

設備など

1種低層地域 即入居可 売主・代理 -
駐車2台以上 平屋 - 本下水 -
都市ガス - カウンターキッチン 床暖房 -
ウォークインクローゼット バリアフリー -
設備 リフォーム・バス・トイレ別・ウォークインクローゼット・バルコニー・カウンターキッチン・クローゼット
リフォーム履歴 ■水回り
2025年05月実施
キッチン/浴室/トイレ
■内装
2025年05月実施
壁・天井(クロス・塗装等)
※実施年月は、施工箇所の中で最も古いものを表示しています
リノベーション履歴 -
備考 【物件周辺の生活情報】
・学校
川西市立けやき坂小学校(1,450m)、川西市立清和台中学校(2,512m)
・買い物
スーパー(1,119m)、コンビニ(134m)、ドラッグストア(1,507m)、商店街(1,744m)
・その他施設
総合病院(1,595m)、公園(124m)、銀行(1,747m)、新清和台幼稚園(1,678m)
ゆったりとしたくつろぎの空間のある、4LDKの物件です。バス停まで徒歩3分以内でいける物件はいかがでしょうか。利便性の良い全居室収納スペースはとても魅力溢れる収納です。建物面積120.06平方メートルですので快適な生活ができます。こちらは中古の戸建てです。安心の前面道路6m以上の条件を備えております。広い庭付きなので、お子様にストレスを感じさせることもありません。 【設備・特記事項備考】全居室収納
国土法届出:不要
特記事項 駐車場2台分

省エネ性能

エネルギー消費性能 -
断熱性能 -
目安光熱費 -

兵庫県川西市けやき坂1丁目 周辺地図情報

地図
※地図上に表示される物件の位置は付近住所に所在することを表すものであり、実際の物件所在地とは異なる場合がございます。
   正確な物件所在地は、取扱い不動産会社にお問い合わせください。
物件を見たい、物件や住環境の詳しい情報やローン相談など、
お問い合わせ先
センチュリー21株式会社アクロスコーポレイション 宝塚店

不動産会社情報

お問い合わせ先 商号:センチュリー21株式会社アクロスコーポレイション 宝塚店
免許番号:兵庫県知事(7)第202981号
所在地:兵庫県宝塚市伊孑志1丁目7-40
取引態様:媒介
管理コード:7390
所属協会など:(公社)近畿地区不動産公正取引協議会、(一社)兵庫県宅地建物取引業協会
共有する
QRコード

お電話でのお問い合わせ

電話をかける(携帯・PHS可)
お問い合わせダイヤル
通話無料0037-634-17074
営業時間 10:00~19:30 (定休日:毎週水曜日 年末年始)
音声案内に従って数字を入力
お問い合わせ番号
99468-2978
不動産会社につながります
不動産会社のスタッフと
直接電話で話せます。
※不動産会社がお電話に出られなかった場合、株式会社LIFULLは電話会社が提供するサービスを介してお客様の発信者番号を受領後、折り返し専用の電話番号を発番してお問合せの不動産会社に通知します(お客様の発信者番号がお問合せの不動産会社に通知されることはございません)
※光IP電話、及びIP電話からはご利用になれません
※0037で始まる電話番号に携帯電話からお問合せいただいた方には、ショートメッセージ(SMS)によるお問合せ完了通知をお届けする場合があります
物件を見たい、物件や住環境の詳しい情報やローン相談など、
お問い合わせ先
センチュリー21株式会社アクロスコーポレイション 宝塚店

川西市の暮らしデータ

人口などの統計情報

世帯数 63272世帯
人口総数 154071人
転入者数 5355人
転入率(人口1000人当たり)
34.76人
転出者数 5312人
転出率(人口1000人当たり)
34.48人
土地平均価格
住宅地
101000円/m2
商業地
186333円/m2

結婚・育児の助成金

子育て関連の独自の取り組み (1)地域の身近な場所で、子育て中の保護者とこどもに対して、交流の促進や子育てに関する情報提供、相談等ができる地域子育て支援拠点を市内すべての中学校区に設置。(2)子育て支援アプリ「かわにし子育てNavi」の運用。予防接種のスケジュール管理や電子母子健康手帳の機能、子育て支援情報のほか保育所・幼稚園・認定こども園・小学校等の情報のうち、必要とする情報だけを受け取ることが可能。
出産祝い あり
公立保育所数 4所(うち0歳児保育を実施している保育所:2所)
私立保育所数 10所(うち0歳児保育を実施している保育所:10所)
保育所入所待機児童数 0人
認定こども園数 12園 預かり保育実施園数 公立:2園 私立:4園
学校給食 【小学校】完全給食【中学校】完全給食
公立中学校の学校選択制 実施(隣接区域のみ、新入学時のみ、人数に上限あり)
子ども・学生等医療費助成<通院>対象年齢 中学校卒業まで 子ども・学生等医療費助成<入院>対象年齢 18歳3月末まで

川西市の治安・ごみ収集情報

公共料金・インフラ

ガス料金(22m3使用した場合の月額) 大阪瓦斯株式会社4544円
水道料金(口径20mmで20m3の月額) 川西市3190円
下水道料金(20m3を使用した場合の月額) 川西市2145円
下水道普及率 99.8%

安心・安全

建物火災出火件数 25件
人口10000人当たり
1.64件
刑法犯認知件数 696件
人口1000人当たり
4.57件
ハザード・防災マップ あり

医療

一般病院総数 8ヶ所
一般診療所総数 125ヶ所
小児科医師数 24人
小児人口10000人当たり
13.52人
産婦人科医師数 7人
15~49歳女性人口1万人当たり
2.51人
介護保険料基準額(月額) 5880円

ごみ

家庭ごみ収集(可燃ごみ) 無料
備考
臨時ごみ(有料・予約制)利用の場合は、2トンダンプ車1台相当量まで1.2万円。
家庭ごみの分別方式 8分別13種〔可燃ごみ プラスチック製容器包装 ペットボトル 燃やさないごみ 有害ごみ ビン(無色、茶色、その他) カン 紙・布(新聞、段ボール、雑誌、衣類)〕
家庭ごみの戸別収集 一部実施(サポート収集として、高齢者・要介護者を対象に条件に基づき実施)
粗大ごみ収集 あり
備考
有料。事前申込制。
生ごみ処理機助成金制度 なし
上限金額
-
上限比率
-

川西市の住まいの給付金

中古購入

利子補給制度 なし
補助/助成金制度 あり
上限金額
100万円
備考
【空き家活用支援事業】若年・子育て世帯が、自己の居住用に市内の空き家を取得して改修するとき、その改修に要した費用のうち上限100万円を助成。

増築・改築・改修

利子補給制度 なし
補助/助成金制度 あり
上限金額
(1)全額(2)100万円(3)100万円
備考
(1)【簡易耐震診断推進事業】1981年5月31日以前に着工した住宅の簡易耐震診断(無料)。(2)【川西市住宅耐震改修促進事業】耐震改修計画策定費補助は上限20万円。耐震改修工事費補助は上限100万円。簡易耐震改修工事費補助は50万円。シェルター型工事費補助は50万円。屋根軽量化工事費補助は50万円。防災ベッドの設置助成10万円/台。10万円未満は対象外。※防災ベッドの設置助成以外は、対象費用が50万円未満の場合対象外。
暮らしデータ提供元:生活ガイド.com
※行政機関により公表していない地域及びデータがございます。東京23区以外の政令指定都市は、市全体のデータとして表示しています。
※提供データには細心の注意を払っておりますが、調査後に変更がある場合があります。 最新の情報につきましては各市区役所までお問い合わせいただくか、自治体HPなどをご確認ください。
OCN×ドコモ光新規お申込みで合計最大137,280円相当おトク!特典の内訳・適用条件など詳細はこちら

川西市内の各駅の住みやすさ

住宅ローンの返済額一覧

物件価格 3280万円に対して、年率 で、頭金 の場合
↓ボーナス 35年間 30年間 25年間 20年間 15年間 10年間
0万円 72,164円/月 83,174円/月 98,598円/月 121,745円/月 160,340円/月 237,554円/月
5万円 63,079円/月 74,198円/月 89,731円/月 112,986円/月 151,689円/月 229,009円/月
10万円 53,993円/月 65,223円/月 80,864円/月 104,228円/月 143,037円/月 220,464円/月
15万円 44,908円/月 56,247円/月 71,997円/月 95,469円/月 134,386円/月 211,919円/月
20万円 ローン不可 47,271円/月 63,131円/月 86,710円/月 125,734円/月 203,374円/月
25万円 ローン不可 ローン不可 54,264円/月 77,952円/月 117,083円/月 194,829円/月
30万円 ローン不可 ローン不可 ローン不可 69,193円/月 108,431円/月 186,284円/月
支払い利息合計 2,519,940円~ 2,155,000円~ 1,792,300円~ 1,431,280円~ 1,070,530円~ 712,820円~
※元利均等返済方式で試算しています。 「円」の単位以下の端数金額は「切り捨て」として計算しております。
※金利は、固定金利として計算しております。
※上記の住宅ローン返済額一覧は、あくまで試算であり、将来の金利動向により、実際のご返済額とは異なります。
※ボーナス支払総額が総支払額の50%を超えている場合、上記の表では「ローン不可」となります。
※住宅ローン返済額一覧の数値は、住宅ローンのお申し込みやご融資をお約束するものではございません。
物件を見たい、物件や住環境の詳しい情報やローン相談など、
お問い合わせ先
センチュリー21株式会社アクロスコーポレイション 宝塚店

掲載情報の著作権は提供元企業等に帰属します。
Copyright:(C) 2025 LIFULL Co.,Ltd.
アプリで簡単 物件探し 大手不動産サイトの情報から一括検!プッシュ通知で物件を見逃さない
App Storeからダウンロード Google Playで手に入れよう QRコード