アプリで簡単 物件探し 通知 共有 アプリならではの機能を使ってみる
中古住宅

大阪府大阪市東淀川区大道南1丁目 だいどう豊里駅 中古一戸建て・中古住宅

情報提供元
LIFULL HOME'S
大阪府大阪市東淀川区大道南1丁目 だいどう豊里駅 中古一戸建て・中古住宅
価格 2980万円
交通
所在地 大阪府大阪市東淀川区大道南1丁目周辺地図
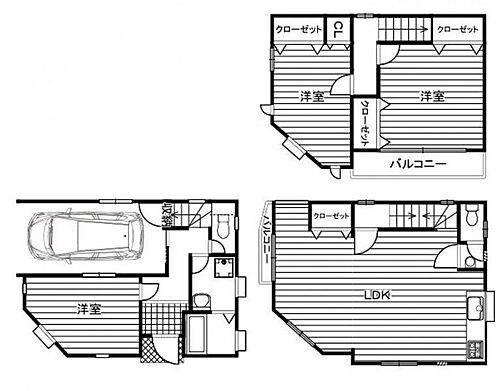
間取り 3LDK
建物面積 113.23m2 土地面積 49.77m2(公簿)
築年月 1994年8月 築年数 築31年5ヶ月
おすすめポイント
■リフォーム済みで即入居可能!角地につき、日当たり・通風良好!  ○淀川河川敷にほど近い立地。緑が豊富で気持ちの良い住環境!  ○メトロ今里筋線「だいどう豊里」駅まで徒歩12分!
角地
物件を見たい、物件や住環境の詳しい情報やローン相談など、
お問い合わせ先
りあるげーと株式会社

詳細情報

価格 2980万円
所在地 大阪府大阪市東淀川区大道南1丁目周辺地図
交通
  • 大阪市今里筋線 だいどう豊里駅 徒歩12分乗換案内
  • 阪急電鉄京都線 上新庄駅 徒歩30分乗換案内
間取り 3LDK 築年月(築年数) 1994年8月(築31年5ヶ月)
建物面積 113.23m2 建物構造・規模 木造3階建
土地面積 49.77m2(公簿) 土地権利 所有権
私道面積 借地期間・地代
接道状況 南西6m公道接面7.1m 南東4m公道接面6.3m 角地
セットバック 駐車場 空有 (1台) 無料
用途地域 1種住居 都市計画 市街化区域
建ぺい率/容積率 80%/200% 現況 空室
地目 宅地 引渡可能時期 即時
情報提供元 LIFULL HOME'S [1336010004312] 情報公開日
情報更新日 次回更新予定日 2025年12月21日

設備など

1種低層地域 - 即入居可 売主・代理 -
駐車2台以上 - 平屋 - 本下水 -
都市ガス - カウンターキッチン - 床暖房 -
ウォークインクローゼット - バリアフリー -
設備 リフォーム・バス・トイレ別・シャワー・システムキッチン・給湯・追焚機能・シャンプードレッサ・フローリング・モニタ付インターホン・温水洗浄便座
リフォーム履歴 ■水回り
2025年08月実施
キッチン/浴室/トイレ
■内装
2025年08月実施
壁・天井(クロス・塗装等)/床(フローリング等)/建具(室内ドア等)
※実施年月は、施工箇所の中で最も古いものを表示しています
リノベーション履歴 -
備考 【物件周辺の生活情報】
・学校
大阪市立大道南小学校(414m)、大阪市立大桐中学校(839m)
・買い物
スーパー(774m)、コンビニ(239m)、商店街(1,215m)
・その他施設
総合病院(960m)、公園(1,091m)
■撮影スタッフのイチ押しポイント!! ○車通りがほとんどなく、静かな環境です!! ○徒歩圏内に、小学校、中学校などがあり、教育環境も整っているエリア! ○スーパーマーケットなどのショッピング施設も周辺に多く、恵まれた生活環境!■充実の設備 ○お車1台駐車可能!屋根があり車が濡れないようになっているので、洗車する頻度が下がりますね! ○豊富な収納スペースはお部屋の中が散らかることも少なくなり、きれいに片付いた空間を維持できます!■周辺環境 ○大道南小学校 270m ○大桐中学校 750m■----------------■ホームページでも多数の物件を紹介中♪弊社では他社さまが掲載している物件もまとめてご紹介可能です♪お気軽にお問合わせ下さい!年中無休で対応します! 【設備・特記事項備考】全居室収納
国土法届出:不要
販売戸数:1戸
述べ床面積:113.23m2
特記事項 角地

省エネ性能

エネルギー消費性能 -
断熱性能 -
目安光熱費 -

大阪府大阪市東淀川区大道南1丁目 周辺地図情報

地図
※地図上に表示される物件の位置は付近住所に所在することを表すものであり、実際の物件所在地とは異なる場合がございます。
   正確な物件所在地は、取扱い不動産会社にお問い合わせください。
物件を見たい、物件や住環境の詳しい情報やローン相談など、
お問い合わせ先
りあるげーと株式会社

不動産会社情報

お問い合わせ先 商号:りあるげーと株式会社
免許番号:大阪府知事(02)第059385号
所在地:大阪府門真市末広町39-22
取引態様:媒介
管理コード:4312
所属協会など:(公社)近畿圏不動産流通機構、(公社)近畿地区不動産公正取引協議会、(一社)大阪府宅地建物取引業協会
共有する
QRコード

お電話でのお問い合わせ

電話をかける(携帯・PHS可)
お問い合わせダイヤル
通話無料0037-634-48654
営業時間 09:00~21:00 (定休日:年中無休)
音声案内に従って数字を入力
お問い合わせ番号
13930-2976
不動産会社につながります
不動産会社のスタッフと
直接電話で話せます。
※不動産会社がお電話に出られなかった場合、株式会社LIFULLは電話会社が提供するサービスを介してお客様の発信者番号を受領後、折り返し専用の電話番号を発番してお問合せの不動産会社に通知します(お客様の発信者番号がお問合せの不動産会社に通知されることはございません)
※光IP電話、及びIP電話からはご利用になれません
※0037で始まる電話番号に携帯電話からお問合せいただいた方には、ショートメッセージ(SMS)によるお問合せ完了通知をお届けする場合があります
物件を見たい、物件や住環境の詳しい情報やローン相談など、
お問い合わせ先
りあるげーと株式会社

大阪市東淀川区の暮らしデータ

人口などの統計情報

世帯数 1464615世帯
人口総数 2757642人
転入者数 225000人
転入率(人口1000人当たり)
81.59人
転出者数 188180人
転出率(人口1000人当たり)
68.24人
土地平均価格
住宅地
270839円/m2
商業地
1966607円/m2

結婚・育児の助成金

子育て関連の独自の取り組み (1)子ども・子育てプラザ(在宅での子育て家庭や地域での子育て活動を支援し、また乳幼児期の親子や子育て支援者、就学期の子どもが集い交流する機会を提供する等、地域福祉活動の推進を図る)。(2)習い事・塾代助成事業(学習塾や家庭教師、文化・スポーツ教室等学校外教育にかかる費用を、1人当たり月額1万円まで助成。所得制限あり)。
出産祝い なし
公立保育所数 53所(うち0歳児保育を実施している保育所:52所)
私立保育所数 395所(うち0歳児保育を実施している保育所:385所)
保育所入所待機児童数 2人
認定こども園数 117園 預かり保育実施園数 公立:52園 私立:-
学校給食 【小学校】完全給食【中学校】完全給食
公立中学校の学校選択制 実施
子ども・学生等医療費助成<通院>対象年齢 18歳3月末まで 子ども・学生等医療費助成<入院>対象年齢 18歳3月末まで

大阪市東淀川区の治安・ごみ収集情報

公共料金・インフラ

ガス料金(22m3使用した場合の月額) 大阪瓦斯株式会社4544円
水道料金(口径20mmで20m3の月額) 大阪市2112円
下水道料金(20m3を使用した場合の月額) 大阪市1276円
下水道普及率 100.0%

安心・安全

建物火災出火件数 553件
人口10000人当たり
2.01件
刑法犯認知件数 39408件
人口1000人当たり
14.32件
ハザード・防災マップ あり

医療

一般病院総数 170ヶ所
一般診療所総数 3734ヶ所
小児科医師数 659人
小児人口10000人当たり
22.80人
産婦人科医師数 380人
15~49歳女性人口1万人当たり
6.15人
介護保険料基準額(月額) 9249円

ごみ

家庭ごみ収集(可燃ごみ) 無料
備考
-
家庭ごみの分別方式 4分別11種〔普通ごみ(普通ごみ、危険ごみ[竹串、ガラス片、カミソリの刃]) 資源ごみ(空き缶・空きびん・金属製の生活用品・ペットボトル、スプレー缶・カセットボンベ) 容器包装プラスチック 古紙・衣類(新聞紙・折込チラシ、段ボール、紙パック、雑誌、衣類、その他の紙類)〕
家庭ごみの戸別収集 一部実施(【ふれあい収集】65歳以上の一人暮らしの高齢者または高齢者だけの世帯、障がいがある方が居住される家庭で、ごみ出しが困難な人が対象)
粗大ごみ収集 あり
備考
有料。戸別収集。事前申込制。申込時に収集日を決定。
生ごみ処理機助成金制度 なし
上限金額
-
上限比率
-

大阪市東淀川区の住まいの給付金

中古購入

利子補給制度 あり
上限金額
50万円
備考
【大阪市新婚・子育て世帯向け分譲住宅購入融資利子補給制度】新婚世帯(夫婦ともに満40歳未満かつ婚姻届出後5年以内の世帯)または子育て世帯(小学校6年生以下の子どもがいる世帯)で、市内で住宅を民間金融機関などの融資を受けて初めて建築・取得したものが対象。住宅ローンに対して年0.5%以内(融資利率を上限とする)、最長5年間の利子補給を行う。
補助/助成金制度 なし

増築・改築・改修

利子補給制度 なし
補助/助成金制度 あり
上限金額
115万円
備考
【民間戸建住宅等の耐震診断・改修等補助制度】2000年5月31日以前に建築された住宅が対象。耐震診断は費用の10/11、1戸上限5万円。耐震改修設計は費用の2/3、1戸上限10万円。耐震改修工事は費用の1/2、1戸上限100万円。耐震除却工事は費用の1/3、1戸上限50万円。
暮らしデータ提供元:生活ガイド.com
※行政機関により公表していない地域及びデータがございます。東京23区以外の政令指定都市は、市全体のデータとして表示しています。
※提供データには細心の注意を払っておりますが、調査後に変更がある場合があります。 最新の情報につきましては各市区役所までお問い合わせいただくか、自治体HPなどをご確認ください。
OCN×ドコモ光新規お申込みで合計最大137,280円相当おトク!特典の内訳・適用条件など詳細はこちら

大阪市東淀川区内の各駅の住みやすさ

住宅ローンの返済額一覧

物件価格 2980万円に対して、年率 で、頭金 の場合
↓ボーナス 35年間 30年間 25年間 20年間 15年間 10年間
0万円 64,377円/月 74,198円/月 87,958円/月 108,607円/月 143,037円/月 211,919円/月
5万円 55,291円/月 65,223円/月 79,091円/月 99,848円/月 134,386円/月 203,374円/月
10万円 46,206円/月 56,247円/月 70,224円/月 91,090円/月 125,734円/月 194,829円/月
15万円 37,120円/月 47,271円/月 61,357円/月 82,331円/月 117,083円/月 186,284円/月
20万円 ローン不可 38,296円/月 52,491円/月 73,572円/月 108,431円/月 177,738円/月
25万円 ローン不可 ローン不可 ローン不可 64,814円/月 99,780円/月 169,193円/月
30万円 ローン不可 ローン不可 ローン不可 56,055円/月 91,128円/月 160,648円/月
支払い利息合計 2,248,980円~ 1,924,000円~ 1,597,750円~ 1,278,160円~ 955,990円~ 636,500円~
※元利均等返済方式で試算しています。 「円」の単位以下の端数金額は「切り捨て」として計算しております。
※金利は、固定金利として計算しております。
※上記の住宅ローン返済額一覧は、あくまで試算であり、将来の金利動向により、実際のご返済額とは異なります。
※ボーナス支払総額が総支払額の50%を超えている場合、上記の表では「ローン不可」となります。
※住宅ローン返済額一覧の数値は、住宅ローンのお申し込みやご融資をお約束するものではございません。
物件を見たい、物件や住環境の詳しい情報やローン相談など、
お問い合わせ先
りあるげーと株式会社

掲載情報の著作権は提供元企業等に帰属します。
Copyright:(C) 2025 LIFULL Co.,Ltd.
アプリで簡単 物件探し 大手不動産サイトの情報から一括検!プッシュ通知で物件を見逃さない
App Storeからダウンロード Google Playで手に入れよう QRコード