アプリで簡単 物件探し 通知 共有 アプリならではの機能を使ってみる
中古住宅

東京都町田市野津田町 鶴川駅 中古一戸建て・中古住宅

情報提供元
LIFULL HOME'S
東京都町田市野津田町 鶴川駅 中古一戸建て・中古住宅
価格 3700万円
交通
所在地 東京都町田市野津田町周辺地図
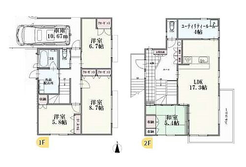
間取り 4LDK
建物面積 102.68m2 土地面積 130.67m2
築年月 2024年4月 築年数 築1年8ヶ月
おすすめポイント
暮らしと住まいに価値をPLUSするーエムイーPLUS町田ー
駐車場2台分・建設住宅性能評価取得
お問い合わせ先
MEgroup エムイーPLUS町田株式会社
物件を見たい、物件や住環境の詳しい情報やローン相談など、
お問い合わせ先
MEgroup エムイーPLUS町田株式会社

詳細情報

価格 3700万円
所在地 東京都町田市野津田町周辺地図
交通
  • 小田急電鉄小田原線 鶴川駅 徒歩3.4km乗換案内
間取り 4LDK 築年月(築年数) 2024年4月(築1年8ヶ月)
建物面積 102.68m2 建物構造・規模 木造2階建
土地面積 130.67m2 土地権利 所有権
私道面積 借地期間・地代
接道状況 北5m公道 一方道路
セットバック 駐車場 空有 (2台) 無料
用途地域 1種低層 都市計画
建ぺい率/容積率 40%/80% 現況 居住中
地目 引渡可能時期 相談
情報提供元 LIFULL HOME'S [1284750061694] 情報公開日
情報更新日 次回更新予定日 2025年11月24日

設備など

1種低層地域 即入居可 - 売主・代理 -
駐車2台以上 平屋 - 本下水
都市ガス カウンターキッチン 床暖房 -
ウォークインクローゼット - バリアフリー -
設備 上水道・都市ガス・本下水・シャワー・コンロ2口以上・システムキッチン・給湯・エアコン・床下収納・室内洗濯機置き場・オートロック・専用庭・バルコニー・フローリング・モニタ付インターホン・温水洗浄便座・カウンターキッチン・洗面所独立・食器洗浄乾燥機・クローゼット・太陽光システム・照明器具・複層ガラス
リフォーム履歴 -
リノベーション履歴 -
備考  【設備・特記事項備考】専用トイレ・浴室1.6×2.0M以上・全居室収納
国土法届出:不要
販売戸数:1戸
特記事項 駐車場2台分・建設住宅性能評価取得

省エネ性能

エネルギー消費性能 -
断熱性能 -
目安光熱費 -

東京都町田市野津田町 周辺地図情報

地図
※地図上に表示される物件の位置は付近住所に所在することを表すものであり、実際の物件所在地とは異なる場合がございます。
   正確な物件所在地は、取扱い不動産会社にお問い合わせください。
物件を見たい、物件や住環境の詳しい情報やローン相談など、
お問い合わせ先
MEgroup エムイーPLUS町田株式会社

不動産会社情報

お問い合わせ先 商号:MEgroup エムイーPLUS町田株式会社
免許番号:東京都知事(2)第98324号
所在地:東京都町田市旭町1丁目4-1
取引態様:専任媒介
管理コード:61694
所属協会など:(公社)首都圏不動産公正取引協議会、(公社)全日本不動産協会東京都本部
共有する
QRコード

お電話でのお問い合わせ

電話をかける(携帯・PHS可)
お問い合わせダイヤル
通話無料0037-634-49898
営業時間 09:00~18:30 (定休日:年中無休)
音声案内に従って数字を入力
お問い合わせ番号
15708-2975
不動産会社につながります
不動産会社のスタッフと
直接電話で話せます。
※不動産会社がお電話に出られなかった場合、株式会社LIFULLは電話会社が提供するサービスを介してお客様の発信者番号を受領後、折り返し専用の電話番号を発番してお問合せの不動産会社に通知します(お客様の発信者番号がお問合せの不動産会社に通知されることはございません)
※光IP電話、及びIP電話からはご利用になれません
※0037で始まる電話番号に携帯電話からお問合せいただいた方には、ショートメッセージ(SMS)によるお問合せ完了通知をお届けする場合があります
物件を見たい、物件や住環境の詳しい情報やローン相談など、
お問い合わせ先
MEgroup エムイーPLUS町田株式会社

町田市の暮らしデータ

人口などの統計情報

世帯数 191703世帯
人口総数 430380人
転入者数 18835人
転入率(人口1000人当たり)
43.76人
転出者数 16447人
転出率(人口1000人当たり)
38.22人
土地平均価格
住宅地
153542円/m2
商業地
593091円/m2

結婚・育児の助成金

子育て関連の独自の取り組み (1)子育て家庭が気軽に相談等を行える場所として、身近な保育園を利用登録する「マイ保育園事業」を実施。(2)認可外幼児教育施設に通う児童(4・5歳児)の保護者に対し、経済的負担軽減のために補助金を交付。(3)市内の待機児童解消と利用者の選択肢拡充のため、2017年度から駅近くに送迎保育ステーションを開設。(4)2021年度から学童保育クラブで高学年児童の受け入れを開始。(5)保育園や幼稚園等の余裕スペースを活用して、小学生を一時的に預かる「学童一時預かり事業」を実施。(6)ひとり親家庭への宅食事業では、ふるさと納税やガバメントクラウドファンディングによる寄附を活用。
出産祝い あり
公立保育所数 5所(うち0歳児保育を実施している保育所:5所)
私立保育所数 71所(うち0歳児保育を実施している保育所:59所)
保育所入所待機児童数 28人
認定こども園数 14園 預かり保育実施園数 公立:- 私立:24園
学校給食 【小学校】完全給食【中学校】完全給食(1校※小中一貫校) 家庭弁当等との選択制/デリバリー形式[運搬:ランチボックス、内容:完全給食](19校) 2025年度までに、中学校給食センター方式により、デリバリー形式[運搬:食缶、内容:完全給食]となります。
公立中学校の学校選択制 実施(自由選択制[受入枠の範囲で選択可能/受入枠のない場合は希望不可])
子ども・学生等医療費助成<通院>対象年齢 18歳3月末まで 子ども・学生等医療費助成<入院>対象年齢 18歳3月末まで

町田市の治安・ごみ収集情報

公共料金・インフラ

ガス料金(22m3使用した場合の月額) 東京瓦斯株式会社(東京地区等)3926円
水道料金(口径20mmで20m3の月額) 東京都水道局2816円
下水道料金(20m3を使用した場合の月額) 町田市2068円
下水道普及率 99.1%

安心・安全

建物火災出火件数 75件
人口10000人当たり
1.74件
刑法犯認知件数 2396件
人口1000人当たり
5.56件
ハザード・防災マップ あり

医療

一般病院総数 16ヶ所
一般診療所総数 341ヶ所
小児科医師数 55人
小児人口10000人当たり
11.11人
産婦人科医師数 21人
15~49歳女性人口1万人当たり
2.54人
介護保険料基準額(月額) 6040円

ごみ

家庭ごみ収集(可燃ごみ) 有料
備考
指定ごみ袋有料。おむつ専用袋・ボランティア袋は無料。
家庭ごみの分別方式 4分別17種〔可燃ごみ 不燃ごみ 有害ごみ(乾電池、蛍光管、水銀体温計、ライター) 資源(剪定枝、ビン、カン、ペットボトル、古紙[新聞、雑誌、ダンボール、雑がみ、シュレッダーにかけた紙、紙パック]、古着)〕【JR横浜線以南地域】5分別18種〔上記+容器包装プラスチック〕ただし、拠点回収は除く。
家庭ごみの戸別収集 実施(ただし集合住宅は集積所収集)
粗大ごみ収集 あり
備考
有料。事前申込制。
生ごみ処理機助成金制度 あり
上限金額
20000円
上限比率
50.0%

町田市の住まいの給付金

中古購入

利子補給制度 なし
補助/助成金制度 なし

増築・改築・改修

利子補給制度 なし
補助/助成金制度 あり
上限金額
(1)10万円(2)130万円
備考
(1)【町田市住宅バリアフリー化改修助成制度】市内業者の行うバリアフリー改修工事の経費の4/5、上限10万円。(2)【木造住宅耐震改修事業助成制度】1981年5月31日以前に着工した住宅は全ての助成金が対象。1981年6月1日から2000年5月31日までに着工した住宅は、精密耐震診断の助成金が対象。助成金は、精密耐震診断は経費の1/2、上限10万円。耐震設計改修事業は経費の1/2、120万円が上限。耐震設計は経費の1/2、上限10万円。耐震改修は経費の1/2、50万円が上限。その他要件あり。
暮らしデータ提供元:生活ガイド.com
※行政機関により公表していない地域及びデータがございます。東京23区以外の政令指定都市は、市全体のデータとして表示しています。
※提供データには細心の注意を払っておりますが、調査後に変更がある場合があります。 最新の情報につきましては各市区役所までお問い合わせいただくか、自治体HPなどをご確認ください。
OCN×ドコモ光新規お申込みで合計最大137,280円相当おトク!特典の内訳・適用条件など詳細はこちら

町田市内の各駅の住みやすさ

住宅ローンの返済額一覧

物件価格 3700万円に対して、年率 で、頭金 の場合
↓ボーナス 35年間 30年間 25年間 20年間 15年間 10年間
0万円 83,067円/月 95,740円/月 113,494円/月 140,138円/月 184,564円/月 273,444円/月
5万円 73,981円/月 86,764円/月 104,627円/月 131,380円/月 175,913円/月 264,899円/月
10万円 64,896円/月 77,789円/月 95,760円/月 122,621円/月 167,261円/月 256,354円/月
15万円 55,810円/月 68,813円/月 86,894円/月 113,862円/月 158,610円/月 247,809円/月
20万円 46,725円/月 59,837円/月 78,027円/月 105,104円/月 149,958円/月 239,263円/月
25万円 ローン不可 50,862円/月 69,160円/月 96,345円/月 141,307円/月 230,718円/月
30万円 ローン不可 ローン不可 60,293円/月 87,586円/月 132,655円/月 222,173円/月
支払い利息合計 2,902,630円~ 2,482,120円~ 2,063,600円~ 1,645,600円~ 1,230,850円~ 819,500円~
※元利均等返済方式で試算しています。 「円」の単位以下の端数金額は「切り捨て」として計算しております。
※金利は、固定金利として計算しております。
※上記の住宅ローン返済額一覧は、あくまで試算であり、将来の金利動向により、実際のご返済額とは異なります。
※ボーナス支払総額が総支払額の50%を超えている場合、上記の表では「ローン不可」となります。
※住宅ローン返済額一覧の数値は、住宅ローンのお申し込みやご融資をお約束するものではございません。
物件を見たい、物件や住環境の詳しい情報やローン相談など、
お問い合わせ先
MEgroup エムイーPLUS町田株式会社

掲載情報の著作権は提供元企業等に帰属します。
Copyright:(C) 2025 LIFULL Co.,Ltd.
アプリで簡単 物件探し 大手不動産サイトの情報から一括検!プッシュ通知で物件を見逃さない
App Storeからダウンロード Google Playで手に入れよう QRコード