アプリで簡単 物件探し 通知 共有 アプリならではの機能を使ってみる
中古住宅

千葉県袖ケ浦市袖ケ浦駅前2丁目37-1 袖ケ浦駅 中古一戸建て・中古住宅

情報提供元
LIFULL HOME'S
千葉県袖ケ浦市袖ケ浦駅前2丁目37-1 袖ケ浦駅 中古一戸建て・中古住宅
価格 5580万円
交通
所在地 千葉県袖ケ浦市袖ケ浦駅前2丁目37-1周辺地図
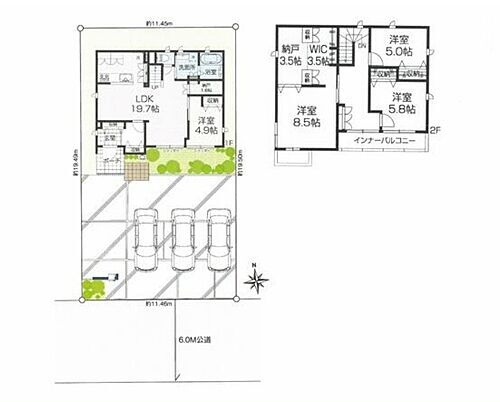
間取り 4LDK
建物面積 113.95m2(壁芯) 土地面積 281.51m2(公簿)
築年月 2020年12月 築年数 築5年
おすすめポイント
【袖ケ浦駅前店 駐車場・キッズルーム完備】袖ケ浦駅徒歩6分!人気の海側エリア♪綺麗に整備された街並み。子育て世帯も多く保育園も近いので子育てにもオススメ♪アクアライン近く都内へのアクセス良好です!
駐車場2台分・オール電化
お問い合わせ先
クラウドハウス木更津駅前店 株式会社吉光建設
物件を見たい、物件や住環境の詳しい情報やローン相談など、
お問い合わせ先
クラウドハウス木更津駅前店 株式会社吉光建設

詳細情報

価格 5580万円
所在地 千葉県袖ケ浦市袖ケ浦駅前2丁目37-1周辺地図
交通
間取り 4LDK(LDK 18.8 和 4.5 洋 9.3・7・4.1) 築年月(築年数) 2020年12月(築5年)
建物面積 113.95m2(壁芯) 建物構造・規模 木造2階建
土地面積 281.51m2(公簿) 土地権利 所有権
私道面積 借地期間・地代
接道状況 三方道路
セットバック 駐車場 空有 (2台) 無料
用途地域 2種住居 都市計画 市街化区域
建ぺい率/容積率 60%/200% 現況 空室
地目 宅地 引渡可能時期 相談
情報提供元 LIFULL HOME'S [1494540000964] 情報公開日
情報更新日 次回更新予定日 2025年11月24日

設備など

1種低層地域 - 即入居可 - 売主・代理 -
駐車2台以上 平屋 - 本下水 -
都市ガス - カウンターキッチン 床暖房 -
ウォークインクローゼット バリアフリー -
設備 IHクッキングヒータ・システムキッチン・エアコン・ウォークインクローゼット・室内洗濯機置き場・フローリング・モニタ付インターホン・カウンターキッチン・浴室乾燥機・洗面所独立
リフォーム履歴 -
リノベーション履歴 -
備考 【物件周辺の生活情報】
・学校
袖ケ浦市立昭和小学校(1,100m)、袖ケ浦市立昭和中学校(2,200m)
・買い物
スーパー(730m)、コンビニ(340m)、ドラッグストア(320m)
・その他施設
公園(1,280m)、銀行(520m)
●敷地面積のうち約40m2は東側フットパス。南側、西側4m道路は自転車、歩行者専用道路となります。●司法書士は売主指定でお願いします。室内クリーニング済み。●自治会費:3,300円/月●法令等制限:高度地区、景観法、宅地造成工事規制区域、袖ケ浦駅海側地区地区計画 【設備・特記事項備考】ガス(その他)・専用バス・専用トイレ・全居室収納
国土法届出:不要
特記事項 駐車場2台分・オール電化

省エネ性能

エネルギー消費性能 -
断熱性能 -
目安光熱費 -

千葉県袖ケ浦市袖ケ浦駅前2丁目37-1 周辺地図情報

地図
※地図上に表示される物件の位置は付近住所に所在することを表すものであり、実際の物件所在地とは異なる場合がございます。
   正確な物件所在地は、取扱い不動産会社にお問い合わせください。
物件を見たい、物件や住環境の詳しい情報やローン相談など、
お問い合わせ先
クラウドハウス木更津駅前店 株式会社吉光建設

不動産会社情報

お問い合わせ先 商号:クラウドハウス木更津駅前店 株式会社吉光建設
免許番号:千葉県知事(02)第017041号
所在地:千葉県木更津市大和1丁目2-1 ワシントンホテル1F
取引態様:媒介
管理コード:964
所属協会など:所属団体未加入
共有する
QRコード

お電話でのお問い合わせ

電話をかける(携帯・PHS可)
お問い合わせダイヤル
通話無料0037-634-74237
営業時間 09:30~18:00 (定休日:毎週水曜日)
音声案内に従って数字を入力
お問い合わせ番号
99046-2978
不動産会社につながります
不動産会社のスタッフと
直接電話で話せます。
※不動産会社がお電話に出られなかった場合、株式会社LIFULLは電話会社が提供するサービスを介してお客様の発信者番号を受領後、折り返し専用の電話番号を発番してお問合せの不動産会社に通知します(お客様の発信者番号がお問合せの不動産会社に通知されることはございません)
※光IP電話、及びIP電話からはご利用になれません
※0037で始まる電話番号に携帯電話からお問合せいただいた方には、ショートメッセージ(SMS)によるお問合せ完了通知をお届けする場合があります
物件を見たい、物件や住環境の詳しい情報やローン相談など、
お問い合わせ先
クラウドハウス木更津駅前店 株式会社吉光建設

袖ケ浦市の暮らしデータ

人口などの統計情報

世帯数 25321世帯
人口総数 66022人
転入者数 2980人
転入率(人口1000人当たり)
45.14人
転出者数 2366人
転出率(人口1000人当たり)
35.84人
土地平均価格
住宅地
56088円/m2
商業地
88000円/m2

結婚・育児の助成金

子育て関連の独自の取り組み (1)産前産後ヘルパー事業(産前産後期に家族等から十分な援助が受けられない母親等の負担軽減を目的に、ヘルパーを派遣)。(2)RAKUIKU 子育てが楽しくなる笑顔の講座(親のしてほしいこと・気持ちをうまく伝える方法を具体的に身につけ、子どもを叱る回数を減らすことを目指す講座)。
出産祝い なし
公立保育所数 5所(うち0歳児保育を実施している保育所:5所)
私立保育所数 11所(うち0歳児保育を実施している保育所:11所)
保育所入所待機児童数 0人
認定こども園数 1園 預かり保育実施園数 公立:0園 私立:2園
学校給食 【小学校】完全給食【中学校】完全給食
公立中学校の学校選択制 未実施
子ども・学生等医療費助成<通院>対象年齢 18歳3月末まで 子ども・学生等医療費助成<入院>対象年齢 18歳3月末まで

袖ケ浦市の治安・ごみ収集情報

公共料金・インフラ

ガス料金(22m3使用した場合の月額) 東京瓦斯株式会社(東京地区等)3926円
水道料金(口径20mmで20m3の月額) かずさ水道広域連合企業団(袖ケ浦市の区域)4455円
下水道料金(20m3を使用した場合の月額) 袖ケ浦市2344円
下水道普及率 68.8%

安心・安全

建物火災出火件数 11件
人口10000人当たり
1.72件
刑法犯認知件数 367件
人口1000人当たり
5.74件
ハザード・防災マップ あり

医療

一般病院総数 1ヶ所
一般診療所総数 41ヶ所
小児科医師数 5人
小児人口10000人当たり
5.54人
産婦人科医師数 1人
15~49歳女性人口1万人当たり
0.80人
介護保険料基準額(月額) 5700円

ごみ

家庭ごみ収集(可燃ごみ) 有料
備考
指定ごみ袋有料。
家庭ごみの分別方式 4分別18種〔可燃ごみ 不燃ごみ 資源物(ガラスびん、空き缶類、ペットボトル、古布類、古紙[新聞紙、雑誌、段ボール、紙パック、雑紙]、使用済小型家電) 有害ごみ(スプレー缶・カセットボンベ、ライター、水銀含有物、乾電池類、蛍光管等、磁気テープ類)〕
家庭ごみの戸別収集 未実施
粗大ごみ収集 あり
備考
有料。戸別収集、またはクリーンセンターへ自己搬入。事前申込制。
生ごみ処理機助成金制度 あり
上限金額
25000円
上限比率
50.0%

袖ケ浦市の住まいの給付金

中古購入

利子補給制度 なし
補助/助成金制度 なし

増築・改築・改修

利子補給制度 なし
補助/助成金制度 あり
上限金額
80万円
備考
【袖ケ浦市木造住宅耐震改修事業】市に登録の耐震設計監理者、改修業者による、2階建て以下の在来工法の戸建住宅の耐震工事が対象。補助額は、設計監理10万円(補助率1/2)、耐震改修工事40万円(補助率1/3、65歳未満対象)、耐震性能向上工事50万円(補助率2/3、65歳以上対象)。また、耐震改修と併せて行うリフォーム工事に対し、20万円(補助率1/10)を補助。
暮らしデータ提供元:生活ガイド.com
※行政機関により公表していない地域及びデータがございます。東京23区以外の政令指定都市は、市全体のデータとして表示しています。
※提供データには細心の注意を払っておりますが、調査後に変更がある場合があります。 最新の情報につきましては各市区役所までお問い合わせいただくか、自治体HPなどをご確認ください。
OCN×ドコモ光新規お申込みで合計最大137,280円相当おトク!特典の内訳・適用条件など詳細はこちら

袖ケ浦市内の各駅の住みやすさ

他のエリアから探す

袖ケ浦市の詳細地域から一戸建て物件を探す

阿部今井神納久保田蔵波蔵波台袖ケ浦駅前滝の口代宿長浦駅前奈良輪のぞみ野福王台横田

近辺の市区から探す

木更津市君津市

周辺の駅から探す

内房線
八幡宿五井姉ケ崎長浦袖ケ浦巌根木更津君津青堀

住宅ローンの返済額一覧

物件価格 5580万円に対して、年率 で、頭金 の場合
↓ボーナス 35年間 30年間 25年間 20年間 15年間 10年間
0万円 131,869円/月 151,988円/月 180,172円/月 222,470円/月 292,996円/月 434,093円/月
5万円 122,783円/月 143,012円/月 171,305円/月 213,711円/月 284,345円/月 425,547円/月
10万円 113,698円/月 134,036円/月 162,438円/月 204,953円/月 275,693円/月 417,002円/月
15万円 104,612円/月 125,061円/月 153,572円/月 196,194円/月 267,042円/月 408,457円/月
20万円 95,527円/月 116,085円/月 144,705円/月 187,435円/月 258,390円/月 399,912円/月
25万円 86,441円/月 107,109円/月 135,838円/月 178,677円/月 249,739円/月 391,367円/月
30万円 77,356円/月 98,134円/月 126,971円/月 169,918円/月 241,087円/月 382,822円/月
支払い利息合計 4,606,750円~ 3,934,400円~ 3,267,000円~ 2,605,280円~ 1,948,610円~ 1,297,380円~
※元利均等返済方式で試算しています。 「円」の単位以下の端数金額は「切り捨て」として計算しております。
※金利は、固定金利として計算しております。
※上記の住宅ローン返済額一覧は、あくまで試算であり、将来の金利動向により、実際のご返済額とは異なります。
※ボーナス支払総額が総支払額の50%を超えている場合、上記の表では「ローン不可」となります。
※住宅ローン返済額一覧の数値は、住宅ローンのお申し込みやご融資をお約束するものではございません。
物件を見たい、物件や住環境の詳しい情報やローン相談など、
お問い合わせ先
クラウドハウス木更津駅前店 株式会社吉光建設

掲載情報の著作権は提供元企業等に帰属します。
Copyright:(C) 2025 LIFULL Co.,Ltd.
アプリで簡単 物件探し 大手不動産サイトの情報から一括検!プッシュ通知で物件を見逃さない
App Storeからダウンロード Google Playで手に入れよう QRコード