アプリで簡単 物件探し 通知 共有 アプリならではの機能を使ってみる
中古住宅

埼玉県吉川市美南4丁目25-40 吉川美南駅 中古一戸建て・中古住宅

情報提供元
LIFULL HOME'S
埼玉県吉川市美南4丁目25-40 吉川美南駅 中古一戸建て・中古住宅
価格 5480万円
交通
所在地 埼玉県吉川市美南4丁目25-40周辺地図
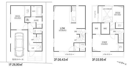
間取り 4LDK
建物面積 93.98m2 土地面積 200m2
築年月 2014年10月 築年数 築11年2ヶ月
おすすめポイント
購入時諸費用サービスについては物件詳細ページへGO!お得に安心してお家探しができるサービスをご確認ください!詳細は備考まで
物件を見たい、物件や住環境の詳しい情報やローン相談など、
お問い合わせ先
三敬商事株式会社

詳細情報

価格 5480万円
所在地 埼玉県吉川市美南4丁目25-40周辺地図
交通
間取り 4LDK 築年月(築年数) 2014年10月(築11年2ヶ月)
建物面積 93.98m2 建物構造・規模 木造2階建
土地面積 200m2 土地権利 所有権
私道面積 借地期間・地代
接道状況 駐車場 空有 契約必須 4円(税込)
用途地域 準住居 都市計画 市街化区域
建ぺい率/容積率 60%/200% 現況 空室
地目 宅地 引渡可能時期 即時
情報提供元 LIFULL HOME'S [1435890005223] 情報公開日
情報更新日 次回更新予定日 2025年11月24日

設備など

1種低層地域 - 即入居可 売主・代理 -
駐車2台以上 - 平屋 - 本下水
都市ガス カウンターキッチン 床暖房 -
ウォークインクローゼット バリアフリー -
設備 リフォーム・上水道・都市ガス・本下水・ガスコンロ可・コンロ2口以上・システムキッチン・給湯・追焚機能・シャンプードレッサ・床下収納・ウォークインクローゼット・室内洗濯機置き場・専用庭・バルコニー・フローリング・モニタ付インターホン・カウンターキッチン・浴室乾燥機・洗面所独立・クローゼット・シューズボックス・オートバス
リフォーム履歴 ■水回り
2025年10月実施
キッチン/トイレ/洗面所/給湯器
■内装
2025年10月実施
壁・天井(クロス・塗装等)/全室クロス張替え/床(フローリング等)
※実施年月は、施工箇所の中で最も古いものを表示しています
リノベーション履歴 -
備考 【物件周辺の生活情報】
・学校
吉川市立美南小学校(580m)、三郷市立彦糸中学校(920m)
・買い物
スーパー(890m)、コンビニ(640m)、ドラッグストア(390m)
・その他施設
公園(1,000m)、銀行(1,490m)
★★仲介手数料無料★★通常、不動産の購入時に物件金額によって仲介手数料(5000万円で約170万円、4000万円で約140万円、3000万円で約110万円)が諸経費として発生します。三敬商事では仲介手数料無料でお得にお家探しのサポートを致します! ★★住宅ローンに強い会社★★頭金0、既存借入多数、勤続が短い、ご年収の不安、派遣社員パート等、母子家庭、ご年配の方、親子で組みたい方、お任せください! 【設備・特記事項備考】専用バス・専用トイレ・全居室収納
国土法届出:不要
販売戸数:1戸/南
特記事項

省エネ性能

エネルギー消費性能 -
断熱性能 -
目安光熱費 -

埼玉県吉川市美南4丁目25-40 周辺地図情報

地図
※地図上に表示される物件の位置は付近住所に所在することを表すものであり、実際の物件所在地とは異なる場合がございます。
   正確な物件所在地は、取扱い不動産会社にお問い合わせください。
物件を見たい、物件や住環境の詳しい情報やローン相談など、
お問い合わせ先
三敬商事株式会社

不動産会社情報

お問い合わせ先 商号:三敬商事株式会社
免許番号:東京都知事免許(02)第103226号
所在地:東京都足立区中川3丁目7-6
取引態様:媒介
管理コード:5223
所属協会など:(公財)東日本不動産流通機構、(公社)首都圏不動産公正取引協議会、(公社)全日本不動産協会
共有する
QRコード

お電話でのお問い合わせ

電話をかける(携帯・PHS可)
お問い合わせダイヤル
通話無料0037-634-93654
営業時間 09:00~20:00 (定休日:年中無休)
音声案内に従って数字を入力
お問い合わせ番号
23687-2976
不動産会社につながります
不動産会社のスタッフと
直接電話で話せます。
※不動産会社がお電話に出られなかった場合、株式会社LIFULLは電話会社が提供するサービスを介してお客様の発信者番号を受領後、折り返し専用の電話番号を発番してお問合せの不動産会社に通知します(お客様の発信者番号がお問合せの不動産会社に通知されることはございません)
※光IP電話、及びIP電話からはご利用になれません
※0037で始まる電話番号に携帯電話からお問合せいただいた方には、ショートメッセージ(SMS)によるお問合せ完了通知をお届けする場合があります
物件を見たい、物件や住環境の詳しい情報やローン相談など、
お問い合わせ先
三敬商事株式会社

吉川市の暮らしデータ

人口などの統計情報

世帯数 27876世帯
人口総数 72678人
転入者数 2742人
転入率(人口1000人当たり)
37.73人
転出者数 2716人
転出率(人口1000人当たり)
37.37人
土地平均価格
住宅地
101100円/m2
商業地
207000円/m2

結婚・育児の助成金

子育て関連の独自の取り組み -
出産祝い なし
公立保育所数 2所(うち0歳児保育を実施している保育所:2所)
私立保育所数 21所(うち0歳児保育を実施している保育所:20所)
保育所入所待機児童数 2人
認定こども園数 2園 預かり保育実施園数 公立:- 私立:5園
学校給食 【小学校】完全給食【中学校】完全給食
公立中学校の学校選択制 一部実施(制度としてはあるが、受け入れ状況による)
子ども・学生等医療費助成<通院>対象年齢 中学校卒業まで 子ども・学生等医療費助成<入院>対象年齢 中学校卒業まで

吉川市の治安・ごみ収集情報

公共料金・インフラ

ガス料金(22m3使用した場合の月額) 東彩ガス株式会社(越谷・春日部地区)4893円
水道料金(口径20mmで20m3の月額) 吉川市3062円
下水道料金(20m3を使用した場合の月額) 吉川市1870円
下水道普及率 83.7%

安心・安全

建物火災出火件数 9件
人口10000人当たり
1.25件
刑法犯認知件数 460件
人口1000人当たり
6.39件
ハザード・防災マップ あり

医療

一般病院総数 1ヶ所
一般診療所総数 41ヶ所
小児科医師数 10人
小児人口10000人当たり
10.52人
産婦人科医師数 4人
15~49歳女性人口1万人当たり
2.64人
介護保険料基準額(月額) 5100円

ごみ

家庭ごみ収集(可燃ごみ) 無料
備考
ステーション収集方式。
家庭ごみの分別方式 4分別11種〔可燃ごみ 不燃ごみ 資源ごみ(紙・衣類[新聞、ダンボール、紙パック、雑誌・雑紙・書籍・紙製容器包装、衣類]、カン、ビン、ペットボトル) 有害ごみ〕
家庭ごみの戸別収集 一部実施(【パートナー収集】家庭から発生するごみを集積所へ持ち出すことが困難な世帯を対象に、週1回市職員が訪問し、ごみを収集)
粗大ごみ収集 あり
備考
有料。戸別収集。事前申込制。
生ごみ処理機助成金制度 あり
上限金額
25000円
上限比率
50.0%

吉川市の住まいの給付金

中古購入

利子補給制度 なし
補助/助成金制度 なし

増築・改築・改修

利子補給制度 なし
補助/助成金制度 あり
上限金額
(1)40万円(2)10万円
備考
(1)【木造住宅の耐震改修補助金】住宅一棟につき耐震改修に要した費用の23/100以内の金額を補助(上限30万円)。65歳以上の高齢者が居住する住宅の場合、補助額に10万円を加算。他要件あり。(2)【住宅改修費補助事業】住宅リフォーム工事に要する費用の一部を助成。費用の10%(上限10万円)。他要件あり。
暮らしデータ提供元:生活ガイド.com
※行政機関により公表していない地域及びデータがございます。東京23区以外の政令指定都市は、市全体のデータとして表示しています。
※提供データには細心の注意を払っておりますが、調査後に変更がある場合があります。 最新の情報につきましては各市区役所までお問い合わせいただくか、自治体HPなどをご確認ください。
OCN×ドコモ光新規お申込みで合計最大137,280円相当おトク!特典の内訳・適用条件など詳細はこちら

吉川市内の各駅の住みやすさ

他のエリアから探す

吉川市の詳細地域から一戸建て物件を探す

大字加藤大字川野大字川藤大字小松川大字平方新田大字保きよみ野栄町新栄高久中央中曽根中野美南吉川

近辺の市区から探す

守谷市春日部市草加市越谷市八潮市三郷市北葛飾郡松伏町松戸市野田市柏市流山市

周辺の駅から探す

武蔵野線
東川口南越谷越谷レイクタウン吉川吉川美南新三郷三郷南流山新松戸

住宅ローンの返済額一覧

物件価格 5480万円に対して、年率 で、頭金 の場合
↓ボーナス 35年間 30年間 25年間 20年間 15年間 10年間
0万円 129,273円/月 148,996円/月 176,625円/月 218,091円/月 287,228円/月 425,547円/月
5万円 120,188円/月 140,020円/月 167,758円/月 209,332円/月 278,577円/月 417,002円/月
10万円 111,102円/月 131,045円/月 158,892円/月 200,573円/月 269,926円/月 408,457円/月
15万円 102,017円/月 122,069円/月 150,025円/月 191,815円/月 261,274円/月 399,912円/月
20万円 92,931円/月 113,093円/月 141,158円/月 183,056円/月 252,623円/月 391,367円/月
25万円 83,846円/月 104,117円/月 132,291円/月 174,297円/月 243,971円/月 382,822円/月
30万円 74,760円/月 95,142円/月 123,425円/月 165,539円/月 235,320円/月 374,277円/月
支払い利息合計 4,516,430円~ 3,857,280円~ 3,203,200円~ 2,554,320円~ 1,910,550円~ 1,271,980円~
※元利均等返済方式で試算しています。 「円」の単位以下の端数金額は「切り捨て」として計算しております。
※金利は、固定金利として計算しております。
※上記の住宅ローン返済額一覧は、あくまで試算であり、将来の金利動向により、実際のご返済額とは異なります。
※ボーナス支払総額が総支払額の50%を超えている場合、上記の表では「ローン不可」となります。
※住宅ローン返済額一覧の数値は、住宅ローンのお申し込みやご融資をお約束するものではございません。
物件を見たい、物件や住環境の詳しい情報やローン相談など、
お問い合わせ先
三敬商事株式会社

掲載情報の著作権は提供元企業等に帰属します。
Copyright:(C) 2025 LIFULL Co.,Ltd.
アプリで簡単 物件探し 大手不動産サイトの情報から一括検!プッシュ通知で物件を見逃さない
App Storeからダウンロード Google Playで手に入れよう QRコード