アプリで簡単 物件探し 通知 共有 アプリならではの機能を使ってみる
中古住宅

埼玉県三郷市彦成2丁目 新三郷駅 中古一戸建て・中古住宅

情報提供元
LIFULL HOME'S
埼玉県三郷市彦成2丁目 新三郷駅 中古一戸建て・中古住宅
価格 3980万円
交通
所在地 埼玉県三郷市彦成2丁目周辺地図
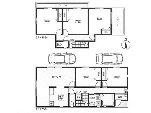
間取り 5LDK
建物面積 116.75m2 土地面積 130.28m2
築年月 2022年1月 築年数 築3年12ヶ月
おすすめポイント
駐車場2台分・角地
お問い合わせ先
エムイーPLUS城東 株式会社
物件を見たい、物件や住環境の詳しい情報やローン相談など、
お問い合わせ先
エムイーPLUS城東 株式会社

詳細情報

価格 3980万円
所在地 埼玉県三郷市彦成2丁目周辺地図
交通
  • 武蔵野線 新三郷駅 バス8分/「彦成2丁目東」バス停 停歩3分乗換案内
  • 武蔵野線 新三郷駅 徒歩29分乗換案内
間取り 5LDK 築年月(築年数) 2022年1月(築3年12ヶ月)
建物面積 116.75m2 建物構造・規模 木造2階建
土地面積 130.28m2 土地権利 所有権
私道面積 借地期間・地代
接道状況 北4.5m公道 東4.5m公道 角地
セットバック 駐車場 空有 (2台) 無料
用途地域 1種低層 都市計画 市街化区域
建ぺい率/容積率 60%/100% 現況 空室
地目 宅地 引渡可能時期 相談
情報提供元 LIFULL HOME'S [1230340079086] 情報公開日
情報更新日 次回更新予定日 2025年12月21日

設備など

1種低層地域 即入居可 - 売主・代理 -
駐車2台以上 平屋 - 本下水
都市ガス - カウンターキッチン - 床暖房 -
ウォークインクローゼット - バリアフリー -
設備 リフォーム・上水道・本下水・コンロ2口以上・システムキッチン・追焚機能・床下収納・バルコニー・フローリング・クローゼット・オートバス
リフォーム履歴 ■水回り
2025年08月実施
キッチン/浴室
■内装
2025年08月実施
壁・天井(クロス・塗装等)
・備考
キッチン・浴室・フローリング・クロス・ハウスクリーニング等
※実施年月は、施工箇所の中で最も古いものを表示しています
リノベーション履歴 -
備考 【物件周辺の生活情報】
・学校
彦郷小学校(750m)、彦糸中学校(1,200m)
  【設備・特記事項備考】専用バス・専用トイレ・全居室収納
国土法届出:不要
特記事項 駐車場2台分・角地

省エネ性能

エネルギー消費性能 -
断熱性能 -
目安光熱費 -

埼玉県三郷市彦成2丁目 周辺地図情報

地図
※地図上に表示される物件の位置は付近住所に所在することを表すものであり、実際の物件所在地とは異なる場合がございます。
   正確な物件所在地は、取扱い不動産会社にお問い合わせください。
物件を見たい、物件や住環境の詳しい情報やローン相談など、
お問い合わせ先
エムイーPLUS城東 株式会社

不動産会社情報

お問い合わせ先 商号:エムイーPLUS城東 株式会社
免許番号:東京都知事(3)第95782号
所在地:東京都足立区南花畑2丁目7-8
取引態様:媒介
管理コード:79086
所属協会など:(公社)首都圏不動産公正取引協議会、(公社)全日本不動産協会東京都本部
共有する
QRコード

お電話でのお問い合わせ

電話をかける(携帯・PHS可)
お問い合わせダイヤル
通話無料0037-634-68370
営業時間 09:00~21:00 (定休日:年中無休)
音声案内に従って数字を入力
お問い合わせ番号
19030-2970
不動産会社につながります
不動産会社のスタッフと
直接電話で話せます。
※不動産会社がお電話に出られなかった場合、株式会社LIFULLは電話会社が提供するサービスを介してお客様の発信者番号を受領後、折り返し専用の電話番号を発番してお問合せの不動産会社に通知します(お客様の発信者番号がお問合せの不動産会社に通知されることはございません)
※光IP電話、及びIP電話からはご利用になれません
※0037で始まる電話番号に携帯電話からお問合せいただいた方には、ショートメッセージ(SMS)によるお問合せ完了通知をお届けする場合があります
物件を見たい、物件や住環境の詳しい情報やローン相談など、
お問い合わせ先
エムイーPLUS城東 株式会社

三郷市の暮らしデータ

人口などの統計情報

世帯数 60711世帯
人口総数 141942人
転入者数 6348人
転入率(人口1000人当たり)
44.72人
転出者数 5965人
転出率(人口1000人当たり)
42.02人
土地平均価格
住宅地
120143円/m2
商業地
169750円/m2

結婚・育児の助成金

子育て関連の独自の取り組み (1)予防接種自動スケジューラーのサービス提供(健康情報の配信を含む)。(2)大人の風しん・おたふくかぜ・造血細胞移植後のワクチン接種に関する予防接種費用の一部助成。(3)地域の栄養相談の実施。(4)市民団体の依頼を受け、地域で母子健康教育を実施。(5)妊娠届・母子健康手帳交付の来所、来所による妊娠・子育て相談、ハローベイビー教室、離乳食教室をインターネット上で予約できるサービス(かいちゃんとつぶちゃんの予約サポート)の提供。(6)こども家庭センター(妊娠・出産から子育て期にわたる総合相談窓口)を設置。(7)産後ケア事業の実施。(8)子育て移動支援事業の実施。(9)移動児童館の実施。
出産祝い あり
公立保育所数 6所(うち0歳児保育を実施している保育所:6所)
私立保育所数 17所(うち0歳児保育を実施している保育所:16所)
保育所入所待機児童数 0人
認定こども園数 6園 預かり保育実施園数 公立:- 私立:7園
学校給食 【小学校】完全給食【中学校】完全給食
公立中学校の学校選択制 実施(新入学時に実施、転入時は一部実施)
子ども・学生等医療費助成<通院>対象年齢 18歳3月末まで 子ども・学生等医療費助成<入院>対象年齢 18歳3月末まで

三郷市の治安・ごみ収集情報

公共料金・インフラ

ガス料金(22m3使用した場合の月額) 東京瓦斯株式会社(東京地区等)3926円
東彩ガス株式会社(越谷・春日部地区)4893円
水道料金(口径20mmで20m3の月額) 三郷市2563円
下水道料金(20m3を使用した場合の月額) 三郷市2214円
下水道普及率 88.2%

安心・安全

建物火災出火件数 19件
人口10000人当たり
1.34件
刑法犯認知件数 1154件
人口1000人当たり
8.12件
ハザード・防災マップ あり

医療

一般病院総数 6ヶ所
一般診療所総数 67ヶ所
小児科医師数 14人
小児人口10000人当たり
7.98人
産婦人科医師数 10人
15~49歳女性人口1万人当たり
3.64人
介護保険料基準額(月額) 6300円

ごみ

家庭ごみ収集(可燃ごみ) 無料
備考
-
家庭ごみの分別方式 7分別11種〔可燃ごみ 不燃ごみ びん・かん ペットボトル 有害ごみ 資源古紙(新聞紙、雑誌、ダンボール、紙パック、ざつがみ) 布類〕
家庭ごみの戸別収集 未実施
粗大ごみ収集 あり
備考
有料(収集)。事前申込制(粗大ごみ受付センターに申込む)。
生ごみ処理機助成金制度 あり
上限金額
50000円
上限比率
50.0%

三郷市の住まいの給付金

中古購入

利子補給制度 なし
補助/助成金制度 なし

増築・改築・改修

利子補給制度 なし
補助/助成金制度 あり
上限金額
(1)10万円(2)70万円
備考
(1)【三郷市耐震改修等補助金(診断)】10万円を限度に全額補助。1981年5月31日以前に建築された1戸建ての木造住宅が対象。(2)【三郷市耐震改修等補助金(改修)】50万円を限度に改修費用の1/3を補助。対象は(1)に同じ。また、耐震改修と同時に施工するリフォーム工事に対しても20万円を上限にリフォーム費用の10%を補助。
暮らしデータ提供元:生活ガイド.com
※行政機関により公表していない地域及びデータがございます。東京23区以外の政令指定都市は、市全体のデータとして表示しています。
※提供データには細心の注意を払っておりますが、調査後に変更がある場合があります。 最新の情報につきましては各市区役所までお問い合わせいただくか、自治体HPなどをご確認ください。
OCN×ドコモ光新規お申込みで合計最大137,280円相当おトク!特典の内訳・適用条件など詳細はこちら

三郷市内の各駅の住みやすさ

他のエリアから探す

三郷市の詳細地域から一戸建て物件を探す

東町小谷堀新和高州鷹野中央戸ケ崎彦糸彦江彦川戸彦沢彦成彦野谷口寄巻早稲田

近辺の市区から探す

草加市越谷市八潮市吉川市北葛飾郡松伏町松戸市柏市流山市足立区葛飾区

周辺の駅から探す

武蔵野線
南越谷越谷レイクタウン吉川吉川美南新三郷三郷南流山新松戸新八柱

住宅ローンの返済額一覧

物件価格 3980万円に対して、年率 で、頭金 の場合
↓ボーナス 35年間 30年間 25年間 20年間 15年間 10年間
0万円 90,335円/月 104,117円/月 123,425円/月 152,400円/月 200,714円/月 297,370円/月
5万円 81,250円/月 95,142円/月 114,558円/月 143,642円/月 192,062円/月 288,825円/月
10万円 72,164円/月 86,166円/月 105,691円/月 134,883円/月 183,411円/月 280,280円/月
15万円 63,079円/月 77,190円/月 96,824円/月 126,124円/月 174,759円/月 271,735円/月
20万円 53,993円/月 68,215円/月 87,958円/月 117,366円/月 166,108円/月 263,190円/月
25万円 ローン不可 59,239円/月 79,091円/月 108,607円/月 157,456円/月 254,645円/月
30万円 ローン不可 ローン不可 70,224円/月 99,848円/月 148,805円/月 246,099円/月
支払い利息合計 3,155,190円~ 2,697,840円~ 2,242,900円~ 1,788,480円~ 1,337,850円~ 890,620円~
※元利均等返済方式で試算しています。 「円」の単位以下の端数金額は「切り捨て」として計算しております。
※金利は、固定金利として計算しております。
※上記の住宅ローン返済額一覧は、あくまで試算であり、将来の金利動向により、実際のご返済額とは異なります。
※ボーナス支払総額が総支払額の50%を超えている場合、上記の表では「ローン不可」となります。
※住宅ローン返済額一覧の数値は、住宅ローンのお申し込みやご融資をお約束するものではございません。
物件を見たい、物件や住環境の詳しい情報やローン相談など、
お問い合わせ先
エムイーPLUS城東 株式会社

掲載情報の著作権は提供元企業等に帰属します。
Copyright:(C) 2025 LIFULL Co.,Ltd.
アプリで簡単 物件探し 大手不動産サイトの情報から一括検!プッシュ通知で物件を見逃さない
App Storeからダウンロード Google Playで手に入れよう QRコード