アプリで簡単 物件探し 通知 共有 アプリならではの機能を使ってみる
中古住宅

埼玉県八潮市大字南川崎 八潮駅 中古一戸建て・中古住宅

情報提供元
LIFULL HOME'S
埼玉県八潮市大字南川崎 八潮駅 中古一戸建て・中古住宅
価格 2880万円
交通
所在地 埼玉県八潮市大字南川崎周辺地図
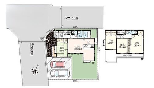
間取り 4LDK
建物面積 95.22m2 土地面積 106.19m2(公簿)
築年月 2006年4月 築年数 築19年8ヶ月
おすすめポイント
見学予約受付中!(株)エステート白馬 越谷店 当日のご見学もご相談ください。
駐車場2台分・出窓・角地
お問い合わせ先
株式会社エステート白馬 越谷店
物件を見たい、物件や住環境の詳しい情報やローン相談など、
お問い合わせ先
株式会社エステート白馬 越谷店

詳細情報

価格 2880万円
所在地 埼玉県八潮市大字南川崎周辺地図
交通
  • つくばエクスプレス 八潮駅 徒歩27分乗換案内
  • つくばエクスプレス 三郷中央駅 徒歩4.6km乗換案内
間取り 4LDK 築年月(築年数) 2006年4月(築19年8ヶ月)
建物面積 95.22m2 建物構造・規模 木造2階建
土地面積 106.19m2(公簿) 土地権利 所有権
私道面積 借地期間・地代
接道状況 南西7.2m公道 南東4m公道 角地
セットバック 駐車場 空有 (2台) 無料
用途地域 1種住居 都市計画 市街化区域
建ぺい率/容積率 60%/200% 現況 空室
地目 宅地 引渡可能時期 相談
情報提供元 LIFULL HOME'S [1363750023043] 情報公開日
情報更新日 次回更新予定日 2025年12月2日

設備など

1種低層地域 - 即入居可 - 売主・代理 -
駐車2台以上 平屋 - 本下水 -
都市ガス - カウンターキッチン 床暖房 -
ウォークインクローゼット - バリアフリー -
設備 リフォーム・上水道・プロパンガス・浄化槽・ガスコンロ可・コンロ2口以上・システムキッチン・出窓・モニタ付インターホン・温水洗浄便座・カウンターキッチン・シューズインクローク
リフォーム履歴 ■水回り
2025年04月実施
キッチン/浴室/トイレ/洗面所/給湯器
洗面台クッションフロア張替
■内装
2025年04月実施
全室クロス張替え
モニター付きインターホン交換、玄関ドア交換、フロアタイル1部上張り、コンセントスイッチ交換
■外装
2025年04月実施
屋根/外壁
・備考
ハウスクリーニング
※実施年月は、施工箇所の中で最も古いものを表示しています
リノベーション履歴 -
備考 【物件周辺の生活情報】
・学校
八潮市立潮止小学校(800m)、八潮市立潮止中学校(2,500m)
管理番号:100135730090 【設備・特記事項備考】全居室収納
国土法届出:不要
述べ床面積:95.22m2/南
法令等制限:司法書士は売主指定
特記事項 駐車場2台分・出窓・角地

省エネ性能

エネルギー消費性能 -
断熱性能 -
目安光熱費 -

埼玉県八潮市大字南川崎 周辺地図情報

地図
※地図上に表示される物件の位置は付近住所に所在することを表すものであり、実際の物件所在地とは異なる場合がございます。
   正確な物件所在地は、取扱い不動産会社にお問い合わせください。
物件を見たい、物件や住環境の詳しい情報やローン相談など、
お問い合わせ先
株式会社エステート白馬 越谷店

不動産会社情報

お問い合わせ先 商号:株式会社エステート白馬 越谷店
免許番号:国土交通大臣(06)第005817号
所在地:埼玉県越谷市大字袋山1321-7
取引態様:媒介
管理コード:23043
所属協会など:(公財)東日本不動産流通機構、(公社)首都圏不動産公正取引協議会、(公社)全日本不動産協会埼玉県本部
共有する
QRコード

お電話でのお問い合わせ

電話をかける(携帯・PHS可)
お問い合わせダイヤル
通話無料0037-634-38916
営業時間 09:30~19:00 (定休日:年末年始)
音声案内に従って数字を入力
お問い合わせ番号
68314-2970
不動産会社につながります
不動産会社のスタッフと
直接電話で話せます。
※不動産会社がお電話に出られなかった場合、株式会社LIFULLは電話会社が提供するサービスを介してお客様の発信者番号を受領後、折り返し専用の電話番号を発番してお問合せの不動産会社に通知します(お客様の発信者番号がお問合せの不動産会社に通知されることはございません)
※光IP電話、及びIP電話からはご利用になれません
※0037で始まる電話番号に携帯電話からお問合せいただいた方には、ショートメッセージ(SMS)によるお問合せ完了通知をお届けする場合があります
物件を見たい、物件や住環境の詳しい情報やローン相談など、
お問い合わせ先
株式会社エステート白馬 越谷店

八潮市の暮らしデータ

人口などの統計情報

世帯数 42054世帯
人口総数 93065人
転入者数 5922人
転入率(人口1000人当たり)
63.63人
転出者数 4874人
転出率(人口1000人当たり)
52.37人
土地平均価格
住宅地
121750円/m2
商業地
219500円/m2

結婚・育児の助成金

子育て関連の独自の取り組み (1)すくすく子育て(保育所開放)。(2)やしお子育てほっとステーション(子育て親子が気軽に集える「子育てひろば」や地域の子育て情報を紹介する「子育てコーディネーター」等様々な子育て支援サービスを実施している駅前の子育て支援のための拠点)。
出産祝い あり
公立保育所数 4所(うち0歳児保育を実施している保育所:4所)
私立保育所数 16所(うち0歳児保育を実施している保育所:16所)
保育所入所待機児童数 24人
認定こども園数 1園 預かり保育実施園数 公立:- 私立:5園
学校給食 【小学校】デリバリー形式[運搬:食缶、内容:完全給食]【中学校】デリバリー形式[運搬:食缶、内容:完全給食]
公立中学校の学校選択制 実施(小規模特認校制度[八條中学校])
子ども・学生等医療費助成<通院>対象年齢 18歳3月末まで 子ども・学生等医療費助成<入院>対象年齢 18歳3月末まで

八潮市の治安・ごみ収集情報

公共料金・インフラ

ガス料金(22m3使用した場合の月額) 東京瓦斯株式会社(東京地区等)3926円
水道料金(口径20mmで20m3の月額) 八潮市3025円
下水道料金(20m3を使用した場合の月額) 八潮市2174円
下水道普及率 81.1%

安心・安全

建物火災出火件数 11件
人口10000人当たり
1.18件
刑法犯認知件数 1025件
人口1000人当たり
10.98件
ハザード・防災マップ あり

医療

一般病院総数 3ヶ所
一般診療所総数 45ヶ所
小児科医師数 9人
小児人口10000人当たり
8.23人
産婦人科医師数 0人
15~49歳女性人口1万人当たり
0.00人
介護保険料基準額(月額) 5830円

ごみ

家庭ごみ収集(可燃ごみ) 無料
備考
-
家庭ごみの分別方式 5分別16種〔燃えるごみ 資源ごみ(ビン・カン類[ビン・カン、カセット式ボンベ・スプレー缶]、紙類[段ボール、新聞紙、雑誌、本、ざつがみ、牛乳パック、シュレッダー紙]、布・衣類) 燃えないごみ 有害ごみ(蛍光管、乾電池、体温計[水銀計]) ペットボトル〕
家庭ごみの戸別収集 一部実施(まごころ収集)
粗大ごみ収集 あり
備考
有料。戸別収集。事前申込制。またはリサイクルプラザへ直接持込も可能。
生ごみ処理機助成金制度 なし
上限金額
-
上限比率
-

八潮市の住まいの給付金

中古購入

利子補給制度 なし
補助/助成金制度 なし

増築・改築・改修

利子補給制度 なし
補助/助成金制度 あり
上限金額
(1)10万円(2)45万円
備考
(1)【住宅改修資金補助金制度】市内の本店等を有する施工業者が行う、市内にある個人住宅のリフォーム工事費の30%を補助。補助金の上限は10万円。なお、集合住宅は個人の専用部分とする。(2)【既存木造住宅の耐震診断・耐震改修補助】1981年5月31日以前に建築確認を受け、工事着手した木造住宅が対象。耐震診断費の1/2、上限5万円。改修補助は、その結果、総合評価が1.0未満の建物について、1.0以上になるように補強工事を行う場合、費用の23%、上限25万円。補助金対象者が65歳以上であり、改修に要した費用が30万円を超える場合は、15万円を加算。
暮らしデータ提供元:生活ガイド.com
※行政機関により公表していない地域及びデータがございます。東京23区以外の政令指定都市は、市全体のデータとして表示しています。
※提供データには細心の注意を払っておりますが、調査後に変更がある場合があります。 最新の情報につきましては各市区役所までお問い合わせいただくか、自治体HPなどをご確認ください。
OCN×ドコモ光新規お申込みで合計最大137,280円相当おトク!特典の内訳・適用条件など詳細はこちら

八潮市内の各駅の住みやすさ

住宅ローンの返済額一覧

物件価格 2880万円に対して、年率 で、頭金 の場合
↓ボーナス 35年間 30年間 25年間 20年間 15年間 10年間
0万円 61,781円/月 71,207円/月 84,411円/月 104,228円/月 137,270円/月 203,374円/月
5万円 52,695円/月 62,231円/月 75,544円/月 95,469円/月 128,618円/月 194,829円/月
10万円 43,610円/月 53,255円/月 66,677円/月 86,710円/月 119,967円/月 186,284円/月
15万円 34,524円/月 44,280円/月 57,811円/月 77,952円/月 111,315円/月 177,738円/月
20万円 ローン不可 ローン不可 48,944円/月 69,193円/月 102,664円/月 169,193円/月
25万円 ローン不可 ローン不可 ローン不可 60,434円/月 94,012円/月 160,648円/月
30万円 ローン不可 ローン不可 ローン不可 ローン不可 85,361円/月 152,103円/月
支払い利息合計 2,158,660円~ 1,843,880円~ 1,533,650円~ 1,224,960円~ 917,930円~ 611,100円~
※元利均等返済方式で試算しています。 「円」の単位以下の端数金額は「切り捨て」として計算しております。
※金利は、固定金利として計算しております。
※上記の住宅ローン返済額一覧は、あくまで試算であり、将来の金利動向により、実際のご返済額とは異なります。
※ボーナス支払総額が総支払額の50%を超えている場合、上記の表では「ローン不可」となります。
※住宅ローン返済額一覧の数値は、住宅ローンのお申し込みやご融資をお約束するものではございません。
物件を見たい、物件や住環境の詳しい情報やローン相談など、
お問い合わせ先
株式会社エステート白馬 越谷店

掲載情報の著作権は提供元企業等に帰属します。
Copyright:(C) 2025 LIFULL Co.,Ltd.
アプリで簡単 物件探し 大手不動産サイトの情報から一括検!プッシュ通知で物件を見逃さない
App Storeからダウンロード Google Playで手に入れよう QRコード