アプリで簡単 物件探し 通知 共有 アプリならではの機能を使ってみる
中古住宅

埼玉県志木市上宗岡4丁目 志木駅 中古一戸建て・中古住宅

情報提供元
LIFULL HOME'S
埼玉県志木市上宗岡4丁目 志木駅 中古一戸建て・中古住宅
価格 1899万円
交通
所在地 埼玉県志木市上宗岡4丁目周辺地図
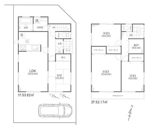
間取り 2SLDK
建物面積 82.21m2 土地面積 80.3m2
築年月 2007年10月 築年数 築18年2ヶ月
おすすめポイント
コンビニ、スーパーが徒歩10分圏内に揃う買い物に便利な立地です♪駐車2台可能なカースペースがあり前面道路11.9mと広々しており車が入れやすい!!
駐車場2台分
お問い合わせ先
アルスビレッジ株式会社 朝霞店
物件を見たい、物件や住環境の詳しい情報やローン相談など、
お問い合わせ先
アルスビレッジ株式会社 朝霞店

詳細情報

価格 1899万円
所在地 埼玉県志木市上宗岡4丁目周辺地図
交通
  • 東武鉄道東上線 志木駅 バス17分/「五反田」バス停 停歩2分乗換案内
間取り 2SLDK 築年月(築年数) 2007年10月(築18年2ヶ月)
建物面積 82.21m2 建物構造・規模 木造3階建
土地面積 80.3m2 土地権利 所有権
私道面積 借地期間・地代
接道状況 北東11.9m公道
セットバック 駐車場 空有 (2台) 無料 ※車種による
用途地域 1種住居 都市計画 市街化区域
建ぺい率/容積率 60%/200% 現況 空室
地目 宅地 引渡可能時期 相談
情報提供元 LIFULL HOME'S [1549910000407] 情報公開日
情報更新日 次回更新予定日 2025年11月17日

設備など

1種低層地域 - 即入居可 - 売主・代理 -
駐車2台以上 平屋 - 本下水 -
都市ガス - カウンターキッチン - 床暖房 -
ウォークインクローゼット - バリアフリー -
設備 リフォーム・上水道・プロパンガス・バス・トイレ別・室内洗濯機置き場・バルコニー・洗面所独立
リフォーム履歴 ■水回り
2025年04月実施
トイレ
■内装
2025年04月実施
壁・天井(クロス・塗装等)
キッチン・洗面化粧台・ユニットバスコーティング 給湯器交換 玄関シリンダー交換 水廻りクッションフロ
■外装
2025年04月実施
屋根/外壁
高圧洗浄
※実施年月は、施工箇所の中で最も古いものを表示しています
リノベーション履歴 -
備考 【物件周辺の生活情報】
・学校
志木市立宗岡第二小学校(900m)、志木市立宗岡中学校(1,200m)
・買い物
スーパー(400m)、コンビニ(400m)、ドラッグストア(600m)
・その他施設
総合病院(650m)、足立みどり幼稚園(300m)
トイレが2ヶ所にあるので複数人でも快適に暮らせます。こちらのお住まいは2階部分にLDKがあります。女性の方を中心にニーズのある、洗面所が独立した物件です。バス停が徒歩3分圏内にあります。全居室に収納スペースがあり、非常に便利です。キッチンを涼しくできる窓がついています。建物面積が82.21平米以上ある物件でゆったりと生活したい方にいかがでしょうか。 【駐車場備考】※車種による 【設備・特記事項備考】専用バス・専用トイレ・全居室収納
国土法届出:不要
販売戸数:1戸
特記事項 駐車場2台分

省エネ性能

エネルギー消費性能 -
断熱性能 -
目安光熱費 -

埼玉県志木市上宗岡4丁目 周辺地図情報

地図
※地図上に表示される物件の位置は付近住所に所在することを表すものであり、実際の物件所在地とは異なる場合がございます。
   正確な物件所在地は、取扱い不動産会社にお問い合わせください。
物件を見たい、物件や住環境の詳しい情報やローン相談など、
お問い合わせ先
アルスビレッジ株式会社 朝霞店

不動産会社情報

お問い合わせ先 商号:アルスビレッジ株式会社 朝霞店
免許番号:埼玉県知事(03)第022987号
所在地:埼玉県朝霞市根岸台6丁目10-33-1階
取引態様:媒介
管理コード:407
所属協会など:(公財)東日本不動産流通機構
共有する
QRコード

お電話でのお問い合わせ

電話をかける(携帯・PHS可)
お問い合わせダイヤル
通話無料0037-619-18961
営業時間 09:30~18:00 (定休日:毎週火曜日・水曜日)
音声案内に従って数字を入力
お問い合わせ番号
61337-2978
不動産会社につながります
不動産会社のスタッフと
直接電話で話せます。
※不動産会社がお電話に出られなかった場合、株式会社LIFULLは電話会社が提供するサービスを介してお客様の発信者番号を受領後、折り返し専用の電話番号を発番してお問合せの不動産会社に通知します(お客様の発信者番号がお問合せの不動産会社に通知されることはございません)
※光IP電話、及びIP電話からはご利用になれません
※0037で始まる電話番号に携帯電話からお問合せいただいた方には、ショートメッセージ(SMS)によるお問合せ完了通知をお届けする場合があります
物件を見たい、物件や住環境の詳しい情報やローン相談など、
お問い合わせ先
アルスビレッジ株式会社 朝霞店

志木市の暮らしデータ

人口などの統計情報

世帯数 32702世帯
人口総数 76312人
転入者数 4228人
転入率(人口1000人当たり)
55.40人
転出者数 4007人
転出率(人口1000人当たり)
52.51人
土地平均価格
住宅地
227167円/m2
商業地
275000円/m2

結婚・育児の助成金

子育て関連の独自の取り組み (1)在宅子育て家庭向け「ランチで食育」。(2)「やる気をひきだす子育て練習法(ダイジェスト版)」講座の開催。
出産祝い なし
公立保育所数 3所(うち0歳児保育を実施している保育所:1所)
私立保育所数 23所(うち0歳児保育を実施している保育所:23所)
保育所入所待機児童数 4人
認定こども園数 1園 預かり保育実施園数 公立:- 私立:6園
学校給食 【小学校】完全給食【中学校】完全給食
公立中学校の学校選択制 実施
子ども・学生等医療費助成<通院>対象年齢 18歳3月末まで 子ども・学生等医療費助成<入院>対象年齢 18歳3月末まで

志木市の治安・ごみ収集情報

公共料金・インフラ

ガス料金(22m3使用した場合の月額) 大東ガス株式会社4335円
水道料金(口径20mmで20m3の月額) 志木市2640円
下水道料金(20m3を使用した場合の月額) 志木市2255円
下水道普及率 99.6%

安心・安全

建物火災出火件数 12件
人口10000人当たり
1.59件
刑法犯認知件数 389件
人口1000人当たり
5.16件
ハザード・防災マップ あり

医療

一般病院総数 2ヶ所
一般診療所総数 40ヶ所
小児科医師数 5人
小児人口10000人当たり
5.22人
産婦人科医師数 0人
15~49歳女性人口1万人当たり
0.00人
介護保険料基準額(月額) 5690円

ごみ

家庭ごみ収集(可燃ごみ) 無料
備考
-
家庭ごみの分別方式 4分別12種〔可燃ごみ 不燃ごみ 有害ごみ 資源ごみ(ビン、カン、ペットボトル、雑紙、新聞、雑誌、段ボール、布類、資源プラスチック)〕
家庭ごみの戸別収集 一部実施(志木市家庭ごみ戸別訪問収集事業)
粗大ごみ収集 あり
備考
有料。戸別収集。事前申込制。
生ごみ処理機助成金制度 なし
上限金額
-
上限比率
-

志木市の住まいの給付金

中古購入

利子補給制度 なし
補助/助成金制度 なし

増築・改築・改修

利子補給制度 なし
補助/助成金制度 あり
上限金額
(1)100万円(2)60万円
備考
(1)【既存建築物耐震診断、耐震設計及び耐震改修補助金交付制度】耐震診断、耐震設計及び耐震改修の費用を補助。要件あり。建築物の種類により補助額が異なる。安全支援住宅の場合は費用相当額(上限80万円)。市内業者施工で20万円を加算。(2)【危険ブロック塀等撤去改修補助】補助率1/2。要件あり。
暮らしデータ提供元:生活ガイド.com
※行政機関により公表していない地域及びデータがございます。東京23区以外の政令指定都市は、市全体のデータとして表示しています。
※提供データには細心の注意を払っておりますが、調査後に変更がある場合があります。 最新の情報につきましては各市区役所までお問い合わせいただくか、自治体HPなどをご確認ください。
OCN×ドコモ光新規お申込みで合計最大137,280円相当おトク!特典の内訳・適用条件など詳細はこちら

志木市内の各駅の住みやすさ

住宅ローンの返済額一覧

物件価格 1899万円に対して、年率 で、頭金 の場合
↓ボーナス 35年間 30年間 25年間 20年間 15年間 10年間
0万円 36,315円/月 41,856円/月 49,618円/月 61,266円/月 80,689円/月 119,546円/月
5万円 27,230円/月 32,880円/月 40,751円/月 52,508円/月 72,037円/月 111,001円/月
10万円 ローン不可 23,905円/月 31,884円/月 43,749円/月 63,386円/月 102,456円/月
15万円 ローン不可 ローン不可 ローン不可 34,990円/月 54,734円/月 93,911円/月
20万円 ローン不可 ローン不可 ローン不可 ローン不可 46,083円/月 85,365円/月
25万円 ローン不可 ローン不可 ローン不可 ローン不可 ローン不可 76,820円/月
30万円 ローン不可 ローン不可 ローン不可 ローン不可 ローン不可 68,275円/月
支払い利息合計 1,266,080円~ 1,084,520円~ 900,400円~ 720,080円~ 540,230円~ 361,740円~
※元利均等返済方式で試算しています。 「円」の単位以下の端数金額は「切り捨て」として計算しております。
※金利は、固定金利として計算しております。
※上記の住宅ローン返済額一覧は、あくまで試算であり、将来の金利動向により、実際のご返済額とは異なります。
※ボーナス支払総額が総支払額の50%を超えている場合、上記の表では「ローン不可」となります。
※住宅ローン返済額一覧の数値は、住宅ローンのお申し込みやご融資をお約束するものではございません。
物件を見たい、物件や住環境の詳しい情報やローン相談など、
お問い合わせ先
アルスビレッジ株式会社 朝霞店

掲載情報の著作権は提供元企業等に帰属します。
Copyright:(C) 2025 LIFULL Co.,Ltd.
アプリで簡単 物件探し 大手不動産サイトの情報から一括検!プッシュ通知で物件を見逃さない
App Storeからダウンロード Google Playで手に入れよう QRコード