アプリで簡単 物件探し 通知 共有 アプリならではの機能を使ってみる
中古住宅

埼玉県入間市東藤沢7丁目 武蔵藤沢駅 中古一戸建て・中古住宅

情報提供元
LIFULL HOME'S
埼玉県入間市東藤沢7丁目 武蔵藤沢駅 中古一戸建て・中古住宅
価格 2780万円
交通
所在地 埼玉県入間市東藤沢7丁目周辺地図
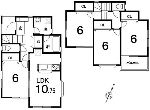
間取り 3SDK
建物面積 81.14m2 土地面積 121.84m2(実測)
築年月 2008年3月 築年数 築17年9ヶ月
おすすめポイント
カースペース並列2台可(車種による)/武蔵藤沢駅徒歩13分/既存住宅保険付き/北西側歩道のため角地の感覚
駐車場2台分・バリアフリー
物件を見たい、物件や住環境の詳しい情報やローン相談など、
お問い合わせ先
株式会社西武開発 狭山店

詳細情報

価格 2780万円
所在地 埼玉県入間市東藤沢7丁目周辺地図
交通
  • 西武池袋・豊島線 武蔵藤沢駅 徒歩13分乗換案内
間取り 3SDK 築年月(築年数) 2008年3月(築17年9ヶ月)
建物面積 81.14m2 建物構造・規模 木造2階建
土地面積 121.84m2(実測) 土地権利 所有権
私道面積 借地期間・地代
接道状況 南西4m公道 一方道路 駐車場 空有 (2台) 無料
用途地域 1種中高 都市計画 市街化区域
建ぺい率/容積率 60%/160% 現況 空室
地目 宅地 引渡可能時期 相談
情報提供元 LIFULL HOME'S [1040210009526] 情報公開日
情報更新日 次回更新予定日 2025年11月15日

設備など

1種低層地域 - 即入居可 - 売主・代理 -
駐車2台以上 平屋 - 本下水
都市ガス カウンターキッチン - 床暖房 -
ウォークインクローゼット - バリアフリー
設備 上水道・都市ガス・本下水・システムキッチン・追焚機能・シャンプードレッサ・フローリング・温水洗浄便座・浴室乾燥機
リフォーム履歴 -
リノベーション履歴 -
備考 【物件周辺の生活情報】
・学校
藤沢東小学校(300m)、上藤沢中学校(1,500m)
国土法届出:不要
述べ床面積:81.14m2
特記事項 駐車場2台分・バリアフリー

省エネ性能

エネルギー消費性能 -
断熱性能 -
目安光熱費 -

埼玉県入間市東藤沢7丁目 周辺地図情報

地図
※地図上に表示される物件の位置は付近住所に所在することを表すものであり、実際の物件所在地とは異なる場合がございます。
   正確な物件所在地は、取扱い不動産会社にお問い合わせください。
物件を見たい、物件や住環境の詳しい情報やローン相談など、
お問い合わせ先
株式会社西武開発 狭山店

不動産会社情報

お問い合わせ先 商号:株式会社西武開発 狭山店
免許番号:国土交通大臣免許(05)第006323号
所在地:埼玉県狭山市富士見1丁目15-36
取引態様:媒介
管理コード:9526
所属協会など:(公財)東日本不動産流通機構、(公社)首都圏不動産公正取引協議会、(一社)全国住宅産業協会、(公社)全日本不動産協会埼玉県本部
共有する
QRコード

お電話でのお問い合わせ

電話をかける(携帯・PHS可)
お問い合わせダイヤル
通話無料0037-634-14143
営業時間 09:30~18:30 (定休日:年中無休(年末年始除く))
音声案内に従って数字を入力
お問い合わせ番号
67014-2971
不動産会社につながります
不動産会社のスタッフと
直接電話で話せます。
※不動産会社がお電話に出られなかった場合、株式会社LIFULLは電話会社が提供するサービスを介してお客様の発信者番号を受領後、折り返し専用の電話番号を発番してお問合せの不動産会社に通知します(お客様の発信者番号がお問合せの不動産会社に通知されることはございません)
※光IP電話、及びIP電話からはご利用になれません
※0037で始まる電話番号に携帯電話からお問合せいただいた方には、ショートメッセージ(SMS)によるお問合せ完了通知をお届けする場合があります
物件を見たい、物件や住環境の詳しい情報やローン相談など、
お問い合わせ先
株式会社西武開発 狭山店

入間市の暮らしデータ

人口などの統計情報

世帯数 61159世帯
人口総数 144723人
転入者数 5470人
転入率(人口1000人当たり)
37.80人
転出者数 5400人
転出率(人口1000人当たり)
37.31人
土地平均価格
住宅地
105977円/m2
商業地
214000円/m2

結婚・育児の助成金

子育て関連の独自の取り組み (1)こどもの自己有用感や社会性を育むことを目的に「こどもの居場所」を支援組織が開設。また、入間市社会福祉協議会が市内でこども食堂等に取組む支援者を対象にした研修会や相談を受け持ち、市は支援組織が行う取組情報を周知する等、3者の協力体制を構築。(2)ファミリー・サポート・センター事業及び子育て緊急サポート事業の利用料の一部を助成。(3)入間市で産まれた児童を養育する父又は母に「子育て応援ギフト」を給付し、児童の出産を祝福するとともに、子育て世帯の経済的負担の一助となるよう支援。(4)こどもの心身の健やかな成長、自立を目的に、連携体制・支援体制を整備し、 ヤングケアラー支援に取り組んでいる。(5)国立リハビリテーションセンター学院と提携し、保育所でこどもを適切に支援するCLMの仕組みを導入。
出産祝い なし
公立保育所数 10所(うち0歳児保育を実施している保育所:3所)
私立保育所数 14所(うち0歳児保育を実施している保育所:12所)
保育所入所待機児童数 8人
認定こども園数 2園 預かり保育実施園数 公立:- 私立:9園
学校給食 【小学校】完全給食【中学校】完全給食
公立中学校の学校選択制 未実施
子ども・学生等医療費助成<通院>対象年齢 18歳3月末まで 子ども・学生等医療費助成<入院>対象年齢 18歳3月末まで

入間市の治安・ごみ収集情報

公共料金・インフラ

ガス料金(22m3使用した場合の月額) 大東ガス株式会社4335円
入間ガス株式会社4384円
水道料金(口径20mmで20m3の月額) 入間市2475円
下水道料金(20m3を使用した場合の月額) 入間市1815円
下水道普及率 88.9%

安心・安全

建物火災出火件数 17件
人口10000人当たり
1.17件
刑法犯認知件数 1017件
人口1000人当たり
6.98件
ハザード・防災マップ あり

医療

一般病院総数 8ヶ所
一般診療所総数 66ヶ所
小児科医師数 15人
小児人口10000人当たり
9.90人
産婦人科医師数 8人
15~49歳女性人口1万人当たり
3.06人
介護保険料基準額(月額) 5390円

ごみ

家庭ごみ収集(可燃ごみ) 無料
備考
-
家庭ごみの分別方式 6分別17種〔可燃ごみ 不燃ごみ(金属類・瀬戸物類、スプレー缶・ガスボンベ・ライター) 資源ごみ1(プラスチック・ビニール類) 資源ごみ2(古布、紙類[新聞・チラシ、雑誌・雑紙、ダンボール、紙パック]) 資源ごみ3(ビン、カン、ペットボトル) 有害ごみ(乾電池・ボタン電池、充電池[モバイルバッテリー等]、蛍光管・電球型蛍光灯、電子タバコ・加熱式タバコ、水銀体温計等)〕
家庭ごみの戸別収集 未実施
粗大ごみ収集 あり
備考
有料。戸別収集。事前申込制。徴収料金は粗大ごみの品目による。
生ごみ処理機助成金制度 あり
上限金額
20000円
上限比率
33.3%

入間市の住まいの給付金

中古購入

利子補給制度 なし
補助/助成金制度 なし

増築・改築・改修

利子補給制度 なし
補助/助成金制度 あり
上限金額
(1)5万円(2)20万円(3)10万円
備考
(1)【木造住宅耐震診断補助制度】耐震診断に要する費用の1/2、上限5万円。(2)【木造住宅耐震改修補助制度】耐震改修に要する費用の23%、上限20万円。(3)【防災ベッド等設置補助制度】防災ベッド等設置に要する費用の1/2、上限1基10万円。各制度の要件は、1981年5月31日以前に着工した、木造2階建て以下の一戸建住宅または兼用住宅(2×4工法も可)。他要件あり。
暮らしデータ提供元:生活ガイド.com
※行政機関により公表していない地域及びデータがございます。東京23区以外の政令指定都市は、市全体のデータとして表示しています。
※提供データには細心の注意を払っておりますが、調査後に変更がある場合があります。 最新の情報につきましては各市区役所までお問い合わせいただくか、自治体HPなどをご確認ください。

この物件を見た人はこんな物件も見ています

OCN×ドコモ光新規お申込みで合計最大137,280円相当おトク!特典の内訳・適用条件など詳細はこちら

入間市内の各駅の住みやすさ

住宅ローンの返済額一覧

物件価格 2780万円に対して、年率 で、頭金 の場合
↓ボーナス 35年間 30年間 25年間 20年間 15年間 10年間
0万円 59,185円/月 68,215円/月 80,864円/月 99,848円/月 131,502円/月 194,829円/月
5万円 50,099円/月 59,239円/月 71,997円/月 91,090円/月 122,850円/月 186,284円/月
10万円 41,014円/月 50,263円/月 63,131円/月 82,331円/月 114,199円/月 177,738円/月
15万円 31,929円/月 41,288円/月 54,264円/月 73,572円/月 105,547円/月 169,193円/月
20万円 ローン不可 ローン不可 45,397円/月 64,814円/月 96,896円/月 160,648円/月
25万円 ローン不可 ローン不可 ローン不可 56,055円/月 88,245円/月 152,103円/月
30万円 ローン不可 ローン不可 ローン不可 ローン不可 79,593円/月 143,558円/月
支払い利息合計 2,068,760円~ 1,766,760円~ 1,469,550円~ 1,174,000円~ 879,690円~ 585,700円~
※元利均等返済方式で試算しています。 「円」の単位以下の端数金額は「切り捨て」として計算しております。
※金利は、固定金利として計算しております。
※上記の住宅ローン返済額一覧は、あくまで試算であり、将来の金利動向により、実際のご返済額とは異なります。
※ボーナス支払総額が総支払額の50%を超えている場合、上記の表では「ローン不可」となります。
※住宅ローン返済額一覧の数値は、住宅ローンのお申し込みやご融資をお約束するものではございません。
物件を見たい、物件や住環境の詳しい情報やローン相談など、
お問い合わせ先
株式会社西武開発 狭山店

掲載情報の著作権は提供元企業等に帰属します。
Copyright:(C) 2025 LIFULL Co.,Ltd.
アプリで簡単 物件探し 大手不動産サイトの情報から一括検!プッシュ通知で物件を見逃さない
App Storeからダウンロード Google Playで手に入れよう QRコード