アプリで簡単 物件探し 通知 共有 アプリならではの機能を使ってみる
中古住宅

埼玉県春日部市増田新田 武里駅 中古一戸建て・中古住宅

情報提供元
LIFULL HOME'S
埼玉県春日部市増田新田 武里駅 中古一戸建て・中古住宅
価格 3300万円
交通
所在地 埼玉県春日部市増田新田周辺地図
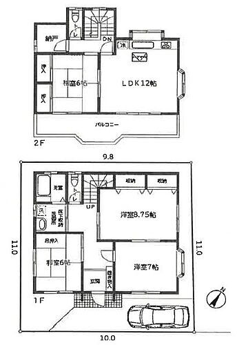
間取り 5LDK
建物面積 152.77m2(壁芯) 土地面積 168.51m2(公簿)
築年月 2015年1月 築年数 築10年11ヶ月
おすすめポイント
全居室に収納がある5LDK+DEN!駐車2台可(車種による)! キッチン・浴室・洗面台が各階に設備されているので二世帯住宅としてもお使いいただけます!雨の日でも安心なサンルーム付き!
駐車場2台分・二世帯向き
お問い合わせ先
埼玉相互住宅株式会社 北越谷店
物件を見たい、物件や住環境の詳しい情報やローン相談など、
お問い合わせ先
埼玉相互住宅株式会社 北越谷店

詳細情報

価格 3300万円
所在地 埼玉県春日部市増田新田周辺地図
交通
  • 東武伊勢崎・大師線 武里駅 徒歩25分乗換案内
  • 東武伊勢崎・大師線 一ノ割駅 徒歩31分乗換案内
間取り 5LDK(DK 12 洋 7.7・6・4.5 LDK 24・7.5 その他 8) 築年月(築年数) 2015年1月(築10年11ヶ月)
建物面積 152.77m2(壁芯) 建物構造・規模 木造2階建
土地面積 168.51m2(公簿) 土地権利 所有権
私道面積 借地期間・地代
接道状況 北4.5m公道 一方道路
セットバック 駐車場 空有 (2台) 無料
用途地域 無指定 都市計画 調整区域
建ぺい率/容積率 60%/180% 現況 居住中
地目 宅地 引渡可能時期 相談
情報提供元 LIFULL HOME'S [1228470010672] 情報公開日
情報更新日 次回更新予定日 2025年11月24日

設備など

1種低層地域 - 即入居可 - 売主・代理 -
駐車2台以上 平屋 - 本下水
都市ガス カウンターキッチン - 床暖房 -
ウォークインクローゼット - バリアフリー -
設備 上水道・都市ガス・本下水・バス・トイレ別・ガスコンロ可・コンロ2口以上・システムキッチン・追焚機能・室内洗濯機置き場・バルコニー・フローリング・モニタ付インターホン・温水洗浄便座・浴室乾燥機・洗面所独立・クローゼット・照明器具
リフォーム履歴 -
リノベーション履歴 -
備考 【物件周辺の生活情報】
・学校
春日部市立武里西小学校(1,291m)、春日部市立春日部南中学校(755m)
・その他施設
信愛保育園(855m)
・引渡条件/現況渡し・契約後3ヶ月 ・契約不適合責任免責  【設備・特記事項備考】専用バス・専用トイレ・全居室収納
国土法届出:不要
販売戸数:1戸
述べ床面積:152.77m2/南
特記事項 駐車場2台分・二世帯向き

省エネ性能

エネルギー消費性能 -
断熱性能 -
目安光熱費 -

埼玉県春日部市増田新田 周辺地図情報

地図
※地図上に表示される物件の位置は付近住所に所在することを表すものであり、実際の物件所在地とは異なる場合がございます。
   正確な物件所在地は、取扱い不動産会社にお問い合わせください。
物件を見たい、物件や住環境の詳しい情報やローン相談など、
お問い合わせ先
埼玉相互住宅株式会社 北越谷店

不動産会社情報

お問い合わせ先 商号:埼玉相互住宅株式会社 北越谷店
免許番号:埼玉県知事(14)第6157号
所在地:埼玉県越谷市北越谷2丁目20
取引態様:媒介
管理コード:10672
所属協会など:(公財)東日本不動産流通機構
共有する
QRコード

お電話でのお問い合わせ

電話をかける(携帯・PHS可)
お問い合わせダイヤル
通話無料0037-634-63437
営業時間 09:30~19:00 (定休日:毎週火曜日・水曜日 )
音声案内に従って数字を入力
お問い合わせ番号
41136-2972
不動産会社につながります
不動産会社のスタッフと
直接電話で話せます。
※不動産会社がお電話に出られなかった場合、株式会社LIFULLは電話会社が提供するサービスを介してお客様の発信者番号を受領後、折り返し専用の電話番号を発番してお問合せの不動産会社に通知します(お客様の発信者番号がお問合せの不動産会社に通知されることはございません)
※光IP電話、及びIP電話からはご利用になれません
※0037で始まる電話番号に携帯電話からお問合せいただいた方には、ショートメッセージ(SMS)によるお問合せ完了通知をお届けする場合があります
物件を見たい、物件や住環境の詳しい情報やローン相談など、
お問い合わせ先
埼玉相互住宅株式会社 北越谷店

春日部市の暮らしデータ

人口などの統計情報

世帯数 97528世帯
人口総数 230687人
転入者数 9108人
転入率(人口1000人当たり)
39.48人
転出者数 8195人
転出率(人口1000人当たり)
35.52人
土地平均価格
住宅地
81400円/m2
商業地
173400円/m2

結婚・育児の助成金

子育て関連の独自の取り組み ファミリー・サポート事業(子育て中の人が、子どもを一時的に預かってもらえる制度。既に小学生以下の子ども2人以上と同居しており、3人目以降の子どもを出産した家庭に、ファミリー・サポート無料券を10時間分交付。利用できるのは生後6ヶ月から小学生の児童で、有効期限は発行日より1年間。ただし、有効期限内でも対象となる第1子が小学校を卒業してしまう場合は、その年の3月31日までとなる。市外からの転入者も同様に対象となる)。
出産祝い あり
公立保育所数 11所(うち0歳児保育を実施している保育所:9所)
私立保育所数 20所(うち0歳児保育を実施している保育所:19所)
保育所入所待機児童数 11人
認定こども園数 7園 預かり保育実施園数 公立:- 私立:12園
学校給食 【小学校】完全給食【中学校】完全給食
公立中学校の学校選択制 一部実施
子ども・学生等医療費助成<通院>対象年齢 18歳3月末まで 子ども・学生等医療費助成<入院>対象年齢 18歳3月末まで

春日部市の治安・ごみ収集情報

公共料金・インフラ

ガス料金(22m3使用した場合の月額) 東彩ガス株式会社(越谷・春日部地区)4893円
水道料金(口径20mmで20m3の月額) 春日部市2684円
下水道料金(20m3を使用した場合の月額) 春日部市2376円
下水道普及率 90.1%

安心・安全

建物火災出火件数 29件
人口10000人当たり
1.26件
刑法犯認知件数 1753件
人口1000人当たり
7.63件
ハザード・防災マップ あり

医療

一般病院総数 12ヶ所
一般診療所総数 130ヶ所
小児科医師数 29人
小児人口10000人当たり
12.49人
産婦人科医師数 9人
15~49歳女性人口1万人当たり
2.18人
介護保険料基準額(月額) 6300円

ごみ

家庭ごみ収集(可燃ごみ) 無料
備考
ごみ集積所に排出された可燃ごみについては無料で収集。ごみ処理施設への直接搬入については危険が伴うため原則禁止だが、搬入された場合は10kgごとに210円の料金を徴収。
家庭ごみの分別方式 4分別18種〔可燃ごみ 不燃ごみ(不燃ごみ、小型家電) 資源物(びん、ペットボトル、かん、新聞紙・チラシ、雑誌、段ボール、雑紙、紙パック、古繊維類) 有害・危険ごみ(乾電池、水銀体温計、蛍光灯、カセット式ガスボンベ・スプレー缶、使い捨てライター、リチウムイオン電池製品)〕
家庭ごみの戸別収集 一部実施(【春日部市訪問収集事業】介助又は介護を必要とする高齢者および障害者世帯、その他特に必要と認める世帯で、自ら廃棄物等を所定の場所に持ち出すことが困難な世帯のみ)
粗大ごみ収集 あり
備考
一辺の長さが50cmを超え、2m未満の大型ごみが対象。戸別収集の場合は事前申込制。有料(1品あたり500円。スプリングマットレスは2,000円。多量排出の場合は2トン車1台5,000円)。直接持込の場合は事前申込不要。有料(10kgごとに210円。スプリングマットレスは1品につき2,000円を加算)。
生ごみ処理機助成金制度 なし
上限金額
-
上限比率
-

春日部市の住まいの給付金

中古購入

利子補給制度 なし
補助/助成金制度 あり
上限金額
(1)(商品券)30万円(2)(商品券+現金)60万円+α万円
備考
(1)【ふれあい家族住宅購入奨励事業】親または子世帯が5年以上引き続き市内に住民登録をしており、市内で初めて自分たちが住むための床面積55m2以上の住宅を取得した世帯、また子世帯において義務教育修了前の子を1人以上扶養しかつ同居していること(妊娠中含む)を条件に、登記費用として司法書士等に支払った額の1/3(上限30万円)を商品券で贈呈。(2)【春日部市空き家リノベーションまちづくり事業】空き家または空き店舗が対象。対象工事に最大60万円。定住促進の要件を満たしているときは、さらに商品券の上乗せあり。2024年7月から条件変更有。

増築・改築・改修

利子補給制度 なし
補助/助成金制度 あり
上限金額
60万円
備考
【既存建築物耐震改修等補助制度】1981年5月31日以前に建築確認を受けて建築された住宅・マンション等が対象。住宅は耐震診断5万円(※10万円)・耐震改修40万円(※60万円)、マンションは耐震診断100万円・耐震改修200万円を上限に要した費用に対し補助(※は65歳以上が居住者に含まれる場合)。
暮らしデータ提供元:生活ガイド.com
※行政機関により公表していない地域及びデータがございます。東京23区以外の政令指定都市は、市全体のデータとして表示しています。
※提供データには細心の注意を払っておりますが、調査後に変更がある場合があります。 最新の情報につきましては各市区役所までお問い合わせいただくか、自治体HPなどをご確認ください。
OCN×ドコモ光新規お申込みで合計最大137,280円相当おトク!特典の内訳・適用条件など詳細はこちら

春日部市内の各駅の住みやすさ

住宅ローンの返済額一覧

物件価格 3300万円に対して、年率 で、頭金 の場合
↓ボーナス 35年間 30年間 25年間 20年間 15年間 10年間
0万円 72,683円/月 83,773円/月 99,307円/月 122,621円/月 161,494円/月 239,263円/月
5万円 63,598円/月 74,797円/月 90,440円/月 113,862円/月 152,842円/月 230,718円/月
10万円 54,512円/月 65,821円/月 81,574円/月 105,104円/月 144,191円/月 222,173円/月
15万円 45,427円/月 56,846円/月 72,707円/月 96,345円/月 135,539円/月 213,628円/月
20万円 36,341円/月 47,870円/月 63,840円/月 87,586円/月 126,888円/月 205,083円/月
25万円 ローン不可 ローン不可 54,973円/月 78,828円/月 118,236円/月 196,538円/月
30万円 ローン不可 ローン不可 ローン不可 70,069円/月 109,585円/月 187,993円/月
支払い利息合計 2,541,350円~ 2,170,640円~ 1,805,000円~ 1,441,520円~ 1,078,250円~ 717,900円~
※元利均等返済方式で試算しています。 「円」の単位以下の端数金額は「切り捨て」として計算しております。
※金利は、固定金利として計算しております。
※上記の住宅ローン返済額一覧は、あくまで試算であり、将来の金利動向により、実際のご返済額とは異なります。
※ボーナス支払総額が総支払額の50%を超えている場合、上記の表では「ローン不可」となります。
※住宅ローン返済額一覧の数値は、住宅ローンのお申し込みやご融資をお約束するものではございません。
物件を見たい、物件や住環境の詳しい情報やローン相談など、
お問い合わせ先
埼玉相互住宅株式会社 北越谷店

掲載情報の著作権は提供元企業等に帰属します。
Copyright:(C) 2025 LIFULL Co.,Ltd.
アプリで簡単 物件探し 大手不動産サイトの情報から一括検!プッシュ通知で物件を見逃さない
App Storeからダウンロード Google Playで手に入れよう QRコード