アプリで簡単 物件探し 通知 共有 アプリならではの機能を使ってみる
中古住宅

山口県山口市吉敷中東1 湯田温泉駅 中古一戸建て・中古住宅

情報提供元
SUUMO
山口県山口市吉敷中東1 湯田温泉駅 中古一戸建て・中古住宅
価格 500万円
交通
所在地 山口県山口市吉敷中東1周辺地図
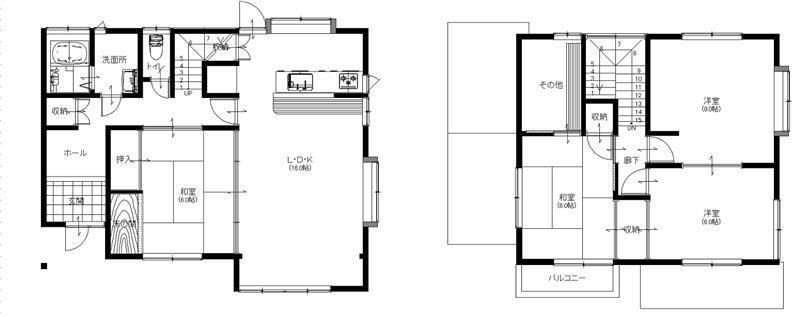
間取り 4SLDK
建物面積 128m2(登記) 土地面積 224.73m2(登記)
築年月 1988年3月 築年数 築37年10ヶ月
おすすめポイント
・告知事項有り(物理的瑕疵:建物傾き)・駐車場2台目は軽区画になります
日当り良好・閑静な住宅街・駐車場2台分
物件を見たい、物件や住環境の詳しい情報やローン相談など、
お問い合わせ先
(株)マイルーム

詳細情報

価格 500万円
所在地 山口県山口市吉敷中東1周辺地図
交通
間取り 4SLDK 築年月(築年数) 1988年3月(築37年10ヶ月)
建物面積 128m2(登記) 建物構造・規模 軽量鉄骨2階建
土地面積 224.73m2(登記) 土地権利 所有権
私道面積 借地期間・地代
接道状況 南東4m 駐車場
用途地域 1種低層 都市計画
建ぺい率/容積率 50%/80% 現況
地目 引渡可能時期 即時
情報提供元 SUUMO [080Z78639968] 情報公開日
情報更新日 次回更新予定日 随時

設備など

1種低層地域 即入居可 売主・代理
駐車2台以上 平屋 - 本下水
都市ガス カウンターキッチン - 床暖房 -
ウォークインクローゼット - バリアフリー -
設備 トイレ・収納スペース・都市ガス・浴室乾燥機・温水洗浄便座・システムキッチン・風呂・庭・対面K・衣類乾燥機・食器洗浄乾燥機・上水道・本下水・駐車場2台分
リフォーム履歴 -
リノベーション履歴 -
備考 <物件名>吉敷中東1(湯田温泉駅) 500万円/<駐車場>カースペース/<土地権利>所有権/<間取り>4LDK+S(納戸)/<特徴>◇スーパー、ドラッグストアまで徒歩圏内で生活利便性の高い立地です!、駐車2台可・即引渡可・土地50坪以上・山が見える・スーパー 徒歩10分以内
販売戸数:1戸
法令等制限:景観法、高さ最高限度有、日影制限有
特記事項 日当り良好・閑静な住宅街・駐車場2台分

省エネ性能

エネルギー消費性能 -
断熱性能 -
目安光熱費 -

山口県山口市吉敷中東1 周辺地図情報

地図
※地図上に表示される物件の位置は付近住所に所在することを表すものであり、実際の物件所在地とは異なる場合がございます。
   正確な物件所在地は、取扱い不動産会社にお問い合わせください。
物件を見たい、物件や住環境の詳しい情報やローン相談など、
お問い合わせ先
(株)マイルーム

不動産会社情報

お問い合わせ先 商号:(株)マイルーム
免許番号:山口県知事(3)第003496号
所在地:山口県山口市平井152-5-101
TEL:0120-283965
取引態様:売主
共有する
QRコード
物件を見たい、物件や住環境の詳しい情報やローン相談など、
お問い合わせ先
(株)マイルーム

山口市の暮らしデータ

人口などの統計情報

世帯数 86858世帯
人口総数 187494人
転入者数 7762人
転入率(人口1000人当たり)
41.40人
転出者数 7515人
転出率(人口1000人当たり)
40.08人
土地平均価格
住宅地
27436円/m2
商業地
58200円/m2

結婚・育児の助成金

子育て関連の独自の取り組み 山口市ではタブレット端末や電子黒板等ICTを使ったデジタル教育の推進をはじめ、「教育なら山口」と言える、県内でもトップクラスの教育・保育・地域の子育て支援に取組んでいる。なかでも、山口情報芸術センターによるメディアを活用した教育普及プログラムやものづくり機能は、子どもの感性、創造性を高め、山口市独自の「次世代人材育成」に貢献しており、2012年度にはキッズデザイン賞の最優秀賞「経済産業大臣賞」を受賞、2022年度にはe-ラーニング大賞で文部科学大臣賞を受賞する等高く評価されている。
出産祝い なし
公立保育所数 12所(うち0歳児保育を実施している保育所:10所)
私立保育所数 27所(うち0歳児保育を実施している保育所:27所)
保育所入所待機児童数 2人
認定こども園数 8園 預かり保育実施園数 公立:0園 私立:4園
学校給食 【小学校】完全給食【中学校】完全給食
公立中学校の学校選択制 実施
子ども・学生等医療費助成<通院>対象年齢 18歳3月末まで 子ども・学生等医療費助成<入院>対象年齢 18歳3月末まで

山口市の治安・ごみ収集情報

公共料金・インフラ

ガス料金(22m3使用した場合の月額) 山口合同ガス株式会社6827円
水道料金(口径20mmで20m3の月額) 山口市2865円
山口市(簡易水道)3175円
下水道料金(20m3を使用した場合の月額) 山口市3080円
下水道普及率 69.6%

安心・安全

建物火災出火件数 27件
人口10000人当たり
1.39件
刑法犯認知件数 624件
人口1000人当たり
3.22件
ハザード・防災マップ あり

医療

一般病院総数 13ヶ所
一般診療所総数 163ヶ所
小児科医師数 32人
小児人口10000人当たり
13.82人
産婦人科医師数 14人
15~49歳女性人口1万人当たり
4.02人
介護保険料基準額(月額) 5510円

ごみ

家庭ごみ収集(可燃ごみ) 有料
備考
指定ごみ袋有料。
家庭ごみの分別方式 3分別14種〔可燃ごみ 不燃ごみ(金属・小型家電製品、燃やせないごみ) 資源ごみ(缶、無色透明ビン、茶色ビン、その他のビン、ペットボトル、プラスチック製容器包装、新聞、雑がみ、ダンボール、紙製容器包装、紙パック)〕 拠点回収:使用済み小型家電 有害ごみ(乾電池・水銀体温計 蛍光管 スプレー缶) 充電式電池 モバイルバッテリー ボタン電池 電子たばこ 加熱式たばこ
家庭ごみの戸別収集 未実施
粗大ごみ収集 あり
備考
有料。戸別収集。事前申込制。
生ごみ処理機助成金制度 なし
上限金額
-
上限比率
-

山口市の住まいの給付金

中古購入

利子補給制度 なし
補助/助成金制度 なし

増築・改築・改修

利子補給制度 なし
補助/助成金制度 あり
上限金額
(市内取扱店で使用できる商品券)20万円
備考
【山口市安心快適住まいる助成事業】市内に本社・本店を置く施工業者を利用して行う、現に居住する家屋または工事完了後に転入・転居しようとする家屋の住宅リフォーム工事(工事着手前の申請が必要となる)に対し、市内取扱店で使用できる商品券で助成。助成率10%、上限金額10万円。ただし、デジタル商品券の場合は、助成率15%、上限金額20万円。
暮らしデータ提供元:生活ガイド.com
※行政機関により公表していない地域及びデータがございます。東京23区以外の政令指定都市は、市全体のデータとして表示しています。
※提供データには細心の注意を払っておりますが、調査後に変更がある場合があります。 最新の情報につきましては各市区役所までお問い合わせいただくか、自治体HPなどをご確認ください。
OCN×ドコモ光新規お申込みで合計最大137,280円相当おトク!特典の内訳・適用条件など詳細はこちら

山口市内の各駅の住みやすさ

住宅ローンの返済額一覧

物件価格 500万円に対して、年率 で、頭金 の場合
↓ボーナス 35年間 30年間 25年間 20年間 15年間 10年間
0万円 0円/月 0円/月 0円/月 0円/月 0円/月 0円/月
5万円 ローン不可 ローン不可 ローン不可 ローン不可 ローン不可 ローン不可
10万円 ローン不可 ローン不可 ローン不可 ローン不可 ローン不可 ローン不可
15万円 ローン不可 ローン不可 ローン不可 ローン不可 ローン不可 ローン不可
20万円 ローン不可 ローン不可 ローン不可 ローン不可 ローン不可 ローン不可
25万円 ローン不可 ローン不可 ローン不可 ローン不可 ローン不可 ローン不可
30万円 ローン不可 ローン不可 ローン不可 ローン不可 ローン不可 ローン不可
支払い利息合計 0円~ 0円~ 0円~ 0円~ 0円~ 0円~
※元利均等返済方式で試算しています。 「円」の単位以下の端数金額は「切り捨て」として計算しております。
※金利は、固定金利として計算しております。
※上記の住宅ローン返済額一覧は、あくまで試算であり、将来の金利動向により、実際のご返済額とは異なります。
※ボーナス支払総額が総支払額の50%を超えている場合、上記の表では「ローン不可」となります。
※住宅ローン返済額一覧の数値は、住宅ローンのお申し込みやご融資をお約束するものではございません。
物件を見たい、物件や住環境の詳しい情報やローン相談など、
お問い合わせ先
(株)マイルーム

掲載情報の著作権は提供元企業等に帰属します。
Copyright:(C) 2025 Recruit Co., Ltd.
アプリで簡単 物件探し 大手不動産サイトの情報から一括検!プッシュ通知で物件を見逃さない
App Storeからダウンロード Google Playで手に入れよう QRコード