アプリで簡単 物件探し 通知 共有 アプリならではの機能を使ってみる
中古住宅

兵庫県神戸市灘区大石北町 大石駅 中古一戸建て・中古住宅

情報提供元
SUUMO
兵庫県神戸市灘区大石北町 大石駅 中古一戸建て・中古住宅
価格 4480万円
交通
所在地 兵庫県神戸市灘区大石北町周辺地図
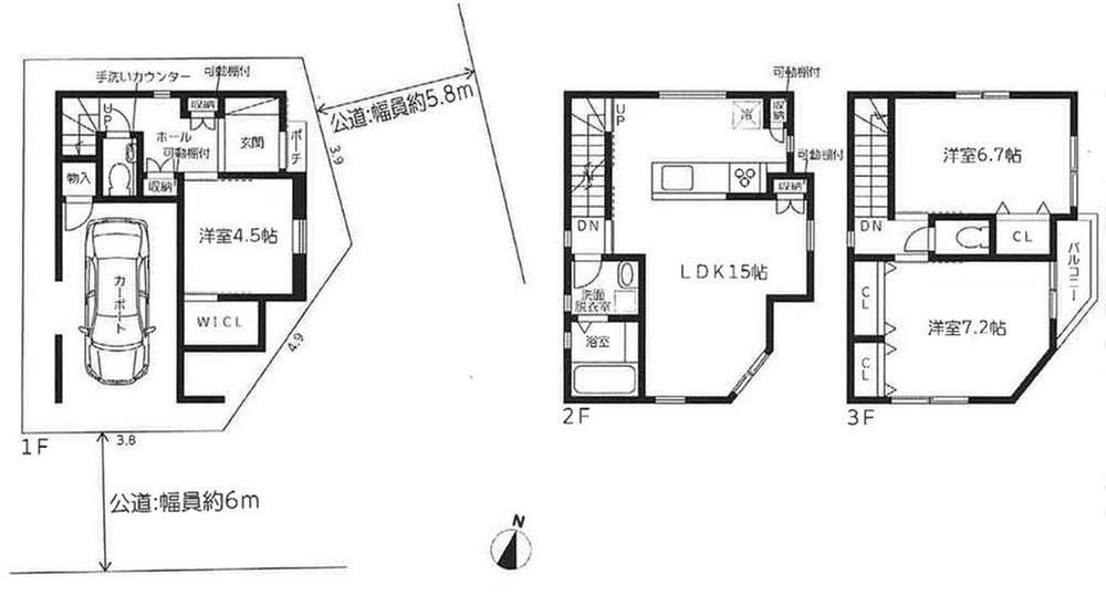
間取り 3LDK
建物面積 97.28m2(29.42坪) 土地面積 46.7m2(14.12坪)
築年月 2025年5月 築年数 築1年未満
おすすめポイント
◆ウォークインクローゼット付き、各居室に収納スペースあり収納充実しています♪◆カーポートがお車1台分ございます♪◆録画機能付きインターホンで防犯面も安心♪◆ミストサウナ機能付きでお風呂時間をゆったり過ごせます♪◆食洗器付きキッチンなので食器洗いの手間もぐんと減ります♪◇◆神戸不動産リアルティ◆◇私たちは神戸・西宮・明石エリア密着の不動産売買専門会社です。ラジオ・TV CM「サンテレビボックス席」にてテレビCM、「kissFM kobe」にてラジオCMを放送中!物件の売却相談も承ります!圧倒的な広告量でより早く高く売ります!
日当り良好・閑静な住宅街・角地
お問い合わせ先
神戸不動産リアルティ(株)西宮支店
物件を見たい、物件や住環境の詳しい情報やローン相談など、
お問い合わせ先
神戸不動産リアルティ(株)西宮支店

詳細情報

価格 4480万円
所在地 兵庫県神戸市灘区大石北町周辺地図
交通
間取り 3LDK 築年月(築年数) 2025年5月(築1年未満)
建物面積 97.28m2(29.42坪) 建物構造・規模 木造3階建
土地面積 46.7m2(14.12坪) 土地権利 所有権
私道面積 借地期間・地代
接道状況 北東5.8m 南6m 二方道路 駐車場
用途地域 1種住居 都市計画
建ぺい率/容積率 60%/200% 現況
地目 引渡可能時期 相談
情報提供元 SUUMO [060Z77933309] 情報公開日
情報更新日 次回更新予定日 随時

設備など

1種低層地域 - 即入居可 - 売主・代理 -
駐車2台以上 - 平屋 - 本下水 -
都市ガス カウンターキッチン - 床暖房 -
ウォークインクローゼット バリアフリー -
設備 トイレ・収納スペース・都市ガス・浴室乾燥機・ウォークインクローゼット・温水洗浄便座・システムキッチン・風呂・対面K・トイレ2ヶ所・衣類乾燥機・食器洗浄乾燥機・サウナ
リフォーム履歴 -
リノベーション履歴 -
備考 <物件名>大石北町(大石駅) 4480万円/<駐車場>カーポート/<土地権利>所有権/<間取り>3LDK/<特徴>ネット予約可ご来店時アンケートご記入でお米券1000円プレゼント♪、フラット35Sに対応・2沿線以上利用可・システムキッチン・浴室乾燥機・陽当り良好
販売戸数:1戸
特記事項 日当り良好・閑静な住宅街・角地

省エネ性能

エネルギー消費性能 -
断熱性能 -
目安光熱費 -

兵庫県神戸市灘区大石北町 周辺地図情報

地図
※地図上に表示される物件の位置は付近住所に所在することを表すものであり、実際の物件所在地とは異なる場合がございます。
   正確な物件所在地は、取扱い不動産会社にお問い合わせください。
物件を見たい、物件や住環境の詳しい情報やローン相談など、
お問い合わせ先
神戸不動産リアルティ(株)西宮支店

不動産会社情報

お問い合わせ先 商号:神戸不動産リアルティ(株)西宮支店
免許番号:兵庫県知事(3)第401433号
所在地:兵庫県西宮市高松町1-12
TEL:0120-378878
取引態様:媒介
管理コード:B01813-001279
共有する
QRコード
物件を見たい、物件や住環境の詳しい情報やローン相談など、
お問い合わせ先
神戸不動産リアルティ(株)西宮支店

神戸市灘区の暮らしデータ

人口などの統計情報

世帯数 734091世帯
人口総数 1500425人
転入者数 75773人
転入率(人口1000人当たり)
50.50人
転出者数 75052人
転出率(人口1000人当たり)
50.02人
土地平均価格
住宅地
196681円/m2
商業地
844842円/m2

結婚・育児の助成金

子育て関連の独自の取り組み (1)妊産婦タクシー利用券。(2)産後ケア事業(32ヶ所)。(3)多胎児家庭支援の充実(多胎児家庭ホームヘルプサービス等)。(4)多様な保育施設で待機児童3年連続ゼロ(保育送迎ステーション等)。(5)病児保育(22ヶ所)。(6)夜間、休日に年中無休で診療する「神戸こども初期急病センター」。(7)天候関係なく無料で遊べる場所の充実(こべっこランド、こども本の森神戸、児童館120ヶ所等)。(8)学童保育希望者全員受入れ。(9)インフルエンザ予防接種費の一部助成(12歳まで)。(10)市民が市内高校に通う通学定期代無料化。(11)子連れ利用可能な無料コワーキングスペース(無料の一時保育付)。(12)大人同伴の小学生以下の市バス・地下鉄の料金が無料。(13)住み替え補助(「住みかえーる」で検索)。
出産祝い あり
公立保育所数 56所(うち0歳児保育を実施している保育所:45所)
私立保育所数 70所(うち0歳児保育を実施している保育所:67所)
保育所入所待機児童数 0人
認定こども園数 191園 預かり保育実施園数 公立:28園 私立:37園
学校給食 【小学校】完全給食【中学校】完全給食 デリバリー形式[運搬:ランチボックス、内容:完全給食]、但し家庭弁当等の持参も可(2024年9月から順次全員喫食制へ移行)
公立中学校の学校選択制 一部実施(特定地域選択制)
子ども・学生等医療費助成<通院>対象年齢 18歳3月末まで 子ども・学生等医療費助成<入院>対象年齢 18歳3月末まで

神戸市灘区の治安・ごみ収集情報

公共料金・インフラ

ガス料金(22m3使用した場合の月額) 大阪瓦斯株式会社4544円
伊丹産業株式会社7185円
水道料金(口径20mmで20m3の月額) 神戸市2926円
下水道料金(20m3を使用した場合の月額) 神戸市1760円
下水道普及率 98.7%

安心・安全

建物火災出火件数 236件
人口10000人当たり
1.55件
刑法犯認知件数 12014件
人口1000人当たり
7.88件
ハザード・防災マップ あり

医療

一般病院総数 98ヶ所
一般診療所総数 1643ヶ所
小児科医師数 408人
小児人口10000人当たり
24.03人
産婦人科医師数 190人
15~49歳女性人口1万人当たり
6.47人
介護保険料基準額(月額) 6580円

ごみ

家庭ごみ収集(可燃ごみ) 無料
備考
指定ごみ袋は有料だが、袋代にごみ収集・処理料金等を含まず。
家庭ごみの分別方式 5分別〔缶・びん・ペットボトル 容器包装プラスチック 燃えないごみ カセットボンベ・スプレー缶 燃えるごみ〕 拠点回収:使用済小型家電 カセットボンベ・スプレー缶 水銀体温計・温度計・血圧計 蛍光管 乾電池・充電式電池・ボタン電池
家庭ごみの戸別収集 一部実施(【ひまわり収集】クリーンステーションまで、ごみを持ち出すことが困難な高齢者または障害者など一部の対象者に実施)
粗大ごみ収集 あり
備考
有料。戸別収集。事前申込制。申込みの後、大型ごみシール券を購入し貼付けて出すか、キャッシュレス決済を行う。申込みから1~2週間程度で収集。
生ごみ処理機助成金制度 なし
上限金額
-
上限比率
-

神戸市灘区の住まいの給付金

中古購入

利子補給制度 なし
補助/助成金制度 なし

増築・改築・改修

利子補給制度 なし
補助/助成金制度 あり
上限金額
(1)無料(2)127万円
備考
(1)【すまいの耐震診断員派遣事業】1981年5月31日以前に建築された住宅を対象に耐震診断員を無料で派遣し耐震診断を行う。(2)【神戸市住宅耐震化促進事業】1981年5月31日以前に建築された住宅が対象。耐震診断を受け上部構造評点1.0以上にされる方に改修設計費に上限27万円、改修工事費に上限100万円の耐震改修補助を行う(戸建住宅)。
暮らしデータ提供元:生活ガイド.com
※行政機関により公表していない地域及びデータがございます。東京23区以外の政令指定都市は、市全体のデータとして表示しています。
※提供データには細心の注意を払っておりますが、調査後に変更がある場合があります。 最新の情報につきましては各市区役所までお問い合わせいただくか、自治体HPなどをご確認ください。
OCN×ドコモ光新規お申込みで合計最大137,280円相当おトク!特典の内訳・適用条件など詳細はこちら

神戸市灘区内の各駅の住みやすさ

住宅ローンの返済額一覧

物件価格 4480万円に対して、年率 で、頭金 の場合
↓ボーナス 35年間 30年間 25年間 20年間 15年間 10年間
0万円 103,314円/月 119,077円/月 141,158円/月 174,297円/月 229,552円/月 340,096円/月
5万円 94,229円/月 110,101円/月 132,291円/月 165,539円/月 220,900円/月 331,551円/月
10万円 85,144円/月 101,126円/月 123,425円/月 156,780円/月 212,249円/月 323,006円/月
15万円 76,058円/月 92,150円/月 114,558円/月 148,021円/月 203,598円/月 314,461円/月
20万円 66,973円/月 83,174円/月 105,691円/月 139,262円/月 194,946円/月 305,915円/月
25万円 57,887円/月 74,198円/月 96,824円/月 130,504円/月 186,295円/月 297,370円/月
30万円 ローン不可 65,223円/月 87,958円/月 121,745円/月 177,643円/月 288,825円/月
支払い利息合計 3,610,220円~ 3,086,440円~ 2,563,100円~ 2,043,760円~ 1,528,690円~ 1,017,740円~
※元利均等返済方式で試算しています。 「円」の単位以下の端数金額は「切り捨て」として計算しております。
※金利は、固定金利として計算しております。
※上記の住宅ローン返済額一覧は、あくまで試算であり、将来の金利動向により、実際のご返済額とは異なります。
※ボーナス支払総額が総支払額の50%を超えている場合、上記の表では「ローン不可」となります。
※住宅ローン返済額一覧の数値は、住宅ローンのお申し込みやご融資をお約束するものではございません。
物件を見たい、物件や住環境の詳しい情報やローン相談など、
お問い合わせ先
神戸不動産リアルティ(株)西宮支店

掲載情報の著作権は提供元企業等に帰属します。
Copyright:(C) 2025 Recruit Co., Ltd.
アプリで簡単 物件探し 大手不動産サイトの情報から一括検!プッシュ通知で物件を見逃さない
App Storeからダウンロード Google Playで手に入れよう QRコード