アプリで簡単 物件探し 通知 共有 アプリならではの機能を使ってみる
中古住宅

大阪府高槻市南平台5 高槻駅 中古一戸建て・中古住宅

情報提供元
SUUMO
大阪府高槻市南平台5 高槻駅 中古一戸建て・中古住宅
価格 3050万円
交通
所在地 大阪府高槻市南平台5周辺地図
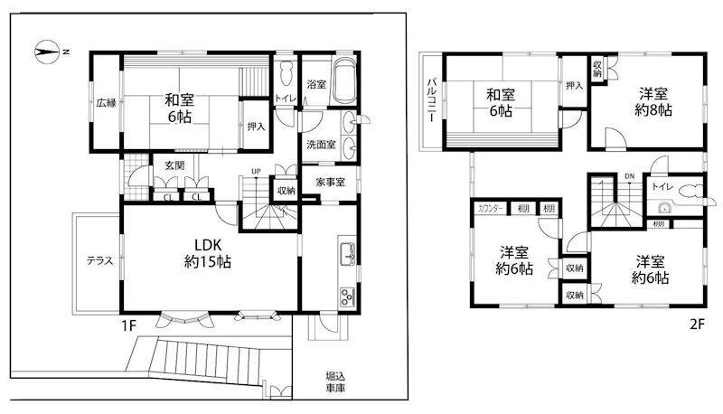
間取り 5LDK
建物面積 159.28m2(登記) 土地面積 224.35m2(登記)
築年月 1986年11月 築年数 築39年1ヶ月
おすすめポイント
■令和7年9月 一部クロス貼替・畳表替■空家につき即ご入居可能■ワンボックスカー駐車可能です三島コーポレーションが選ばれる理由 ・北摂東部に特化した12店舗展開で地元密着の安心感・創業77年の歴史が誇る確かな信頼と情報力・地元への強い愛着と詳しい知見で最適なご提案 ・売買、賃貸、リフォームのワンストップサービスを提供 ・お客様のライフスタイルに応じたトータルアドバイス ・資金計画ではお客様にとって最適な賢い選択をご提案します・「買う」「売る」「借りる」「リフォーム」など未来の選択肢を広げる事業展開お気軽にお問い合わせください。
日当り良好・閑静な住宅街・整形地
物件を見たい、物件や住環境の詳しい情報やローン相談など、
お問い合わせ先
(株)三島コーポレーション

詳細情報

価格 3050万円
所在地 大阪府高槻市南平台5周辺地図
交通
  • JR東海道本線 高槻駅 バス16分/「北南平台」バス停 停歩2分乗換案内
間取り 5LDK 築年月(築年数) 1986年11月(築39年1ヶ月)
建物面積 159.28m2(登記) 建物構造・規模 軽量鉄骨2階建
土地面積 224.35m2(登記) 土地権利 所有権
私道面積 借地期間・地代
接道状況 東6.7m接面14.8m 西16m接面14.8m 駐車場
用途地域 1種低層 都市計画
建ぺい率/容積率 50%/100% 現況
地目 引渡可能時期 相談
情報提供元 SUUMO [060Z78412573] 情報公開日
情報更新日 次回更新予定日 随時

設備など

1種低層地域 即入居可 - 売主・代理 -
駐車2台以上 - 平屋 - 本下水
都市ガス カウンターキッチン - 床暖房 -
ウォークインクローゼット - バリアフリー -
設備 トイレ・収納スペース・都市ガス・温水洗浄便座・システムキッチン・庭・トイレ2ヶ所・上水道・本下水・リフォーム
リフォーム履歴 2025年9月完了
 内装リフォーム:壁
 その他:畳
※年月は一番古いリフォーム箇所を表します
リノベーション履歴 -
備考 <物件名>南平台5 3050万円/<土地権利>所有権/<間取り>5LDK/<リフォーム>●リフォーム:2025年9月完了(内装リフォーム:壁、その他:畳)※年月は一番古いリフォーム箇所を表します/<特徴>■価格変更■■積水ハウス施工の軽量鉄骨造■平成30年にキッチン新調、土地50坪以上・スーパー 徒歩10分以内・内装リフォーム・南向き・システムキッチン
販売戸数:1戸
特記事項 日当り良好・閑静な住宅街・整形地

省エネ性能

エネルギー消費性能 -
断熱性能 -
目安光熱費 -

大阪府高槻市南平台5 周辺地図情報

地図
※地図上に表示される物件の位置は付近住所に所在することを表すものであり、実際の物件所在地とは異なる場合がございます。
   正確な物件所在地は、取扱い不動産会社にお問い合わせください。
物件を見たい、物件や住環境の詳しい情報やローン相談など、
お問い合わせ先
(株)三島コーポレーション

不動産会社情報

お問い合わせ先 商号:(株)三島コーポレーション
免許番号:大阪府知事(12)第021564号
所在地:大阪府茨木市西駅前町6-26
TEL:072-665-7340
取引態様:媒介
管理コード:JT0014932
共有する
QRコード
物件を見たい、物件や住環境の詳しい情報やローン相談など、
お問い合わせ先
(株)三島コーポレーション

高槻市の暮らしデータ

人口などの統計情報

世帯数 152637世帯
人口総数 346972人
転入者数 11298人
転入率(人口1000人当たり)
32.56人
転出者数 11107人
転出率(人口1000人当たり)
32.01人
土地平均価格
住宅地
168886円/m2
商業地
448000円/m2

結婚・育児の助成金

子育て関連の独自の取り組み (1)市立幼稚園で就労支援型預かり保育を実施(2ヶ所)。(2)認可保育施設に待機となっている児童が利用できる年度利用保育を実施。(3)年度利用保育と認可保育施設(3園)間のバス送迎(保護者のお預け・お迎え場所は年度利用保育)の実施。(4)「高槻市妊娠期からの子育てガイド」の交付。(5)パパママデビュー教室において、先輩パパ講師を招き、パートナー・父親の役割について講話を実施。(6)インフルエンザ予防接種費用の一部助成。(7)不育症治療費助成事業の実施。(8)子育て総合支援センター(児童家庭相談事務所、児童発達支援事務所を併設)の設立・運営。(9)人工内耳装置等購入費助成事業の実施。
出産祝い なし
公立保育所数 8所(うち0歳児保育を実施している保育所:8所)
私立保育所数 15所(うち0歳児保育を実施している保育所:13所)
保育所入所待機児童数 0人
認定こども園数 34園 預かり保育実施園数 公立:- 私立:6園
学校給食 【小学校】完全給食【中学校】完全給食
公立中学校の学校選択制 未実施
子ども・学生等医療費助成<通院>対象年齢 18歳3月末まで 子ども・学生等医療費助成<入院>対象年齢 18歳3月末まで

高槻市の治安・ごみ収集情報

公共料金・インフラ

ガス料金(22m3使用した場合の月額) 大阪瓦斯株式会社4544円
水道料金(口径20mmで20m3の月額) 高槻市2420円
下水道料金(20m3を使用した場合の月額) 高槻市1965円
下水道普及率 99.7%

安心・安全

建物火災出火件数 37件
人口10000人当たり
1.05件
刑法犯認知件数 1844件
人口1000人当たり
5.23件
ハザード・防災マップ あり

医療

一般病院総数 14ヶ所
一般診療所総数 297ヶ所
小児科医師数 116人
小児人口10000人当たり
28.23人
産婦人科医師数 58人
15~49歳女性人口1万人当たり
8.75人
介護保険料基準額(月額) 6100円

ごみ

家庭ごみ収集(可燃ごみ) 無料
備考
引っ越しなどによる大量ごみは臨時ごみとして事前申込にて有料で収集。
家庭ごみの分別方式 3分別7種〔可燃ごみ 不燃ごみ リサイクルごみ(あき缶類・金属製台所用品・あきビン・ペットボトル、古紙類[古紙、牛乳パック、雑紙]、古布類)〕 拠点回収:ペットボトル
家庭ごみの戸別収集 未実施
粗大ごみ収集 あり
備考
「大型可燃ごみ」「不燃ごみ」として月1回ずつ無料で収集。ただし、引っ越しなどによる大量ごみは臨時ごみとして事前申込にて有料で収集。
生ごみ処理機助成金制度 なし
上限金額
-
上限比率
-

高槻市の住まいの給付金

中古購入

利子補給制度 なし
補助/助成金制度 あり
上限金額
(1)20万円(2)50万円
備考
(1)【住宅取得補助金(3世代ファミリー定住支援事業)】市外から転入された子育て世帯と市内在住の親世帯が同居・近居するため持ち家を取得する場合に費用の一部を補助(上限20万円)。対象者要件あり。(2)【高槻市樫田地区空き家再生事業補助金】空き家バンクを通じて樫田地区に住宅を購入し、改修する費用の一部を助成。世帯主又は同居人が45歳未満の世帯は上限50万円。それ以外の世帯は上限25万円。

増築・改築・改修

利子補給制度 なし
補助/助成金制度 あり
上限金額
(1)20万円(2)90.5万円
備考
(1)【リフォーム補助金(3世代ファミリー定住支援事業)】市外から転入された子育て世帯と市内在住の親世帯が同居するため持ち家をリフォームする場合に費用の一部を補助(工事費の1/3相当、上限20万円)。(2)【耐震化補助金】1981年5月31日以前に建築された木造住宅が対象。診断費用上限5.5万円、改修費用65万円又は85万円。どちらも他要件あり。
暮らしデータ提供元:生活ガイド.com
※行政機関により公表していない地域及びデータがございます。東京23区以外の政令指定都市は、市全体のデータとして表示しています。
※提供データには細心の注意を払っておりますが、調査後に変更がある場合があります。 最新の情報につきましては各市区役所までお問い合わせいただくか、自治体HPなどをご確認ください。

この物件を見た人はこんな物件も見ています

OCN×ドコモ光新規お申込みで合計最大137,280円相当おトク!特典の内訳・適用条件など詳細はこちら

高槻市内の各駅の住みやすさ

他のエリアから探す

高槻市の詳細地域から一戸建て物件を探す

赤大路町芥川町明野町天川新町安満西の町安岡寺町井尻美しが丘浦堂浦堂本町永楽町大字原大冠町大塚町大畑町岡本町奥天神町梶原春日町上土室上本町唐崎中唐崎西花林苑川添川西町北大樋町北昭和台町郡家新町郡家本町高西町黄金の里古曽部町寿町栄町桜ケ丘北町桜ケ丘南町芝谷町芝生町清水台下田部町城西町城南町須賀町辻子高垣町高見台竹の内町大和千代田町塚原塚脇月見町堤町津之江北町津之江町寺谷町天王町東和町富田丘町富田町奈佐原成合東の町南平台西冠西町西五百住町野田登町野見町柱本柱本新町土室町東天川東城山町東五百住町氷室町日向町日吉台一番町日吉台五番町日吉台七番町日吉台二番町日吉台四番町日吉台六番町深沢町深沢本町藤の里町別所本町紅茸町前島真上町松川町松が丘三島江緑が丘南大樋町南庄所町南松原町宮が谷町宮田町宮之川原宮野町名神町柳川町八幡町山手町弥生が丘町淀の原町若松町

近辺の市区から探す

長岡京市八幡市乙訓郡大山崎町久世郡久御山町枚方市茨木市寝屋川市門真市摂津市四條畷市交野市三島郡島本町

周辺の駅から探す

東海道本線
向日町長岡京山崎島本高槻摂津富田JR総持寺茨木千里丘

住宅ローンの返済額一覧

物件価格 3050万円に対して、年率 で、頭金 の場合
↓ボーナス 35年間 30年間 25年間 20年間 15年間 10年間
0万円 66,194円/月 76,293円/月 90,440円/月 111,673円/月 147,075円/月 217,901円/月
5万円 57,108円/月 67,317円/月 81,574円/月 102,914円/月 138,423円/月 209,355円/月
10万円 48,023円/月 58,341円/月 72,707円/月 94,155円/月 129,772円/月 200,810円/月
15万円 38,937円/月 49,366円/月 63,840円/月 85,397円/月 121,120円/月 192,265円/月
20万円 ローン不可 40,390円/月 54,973円/月 76,638円/月 112,469円/月 183,720円/月
25万円 ローン不可 ローン不可 46,107円/月 67,879円/月 103,817円/月 175,175円/月
30万円 ローン不可 ローン不可 ローン不可 59,121円/月 95,166円/月 166,630円/月
支払い利息合計 2,312,120円~ 1,977,840円~ 1,645,200円~ 1,314,000円~ 982,830円~ 654,340円~
※元利均等返済方式で試算しています。 「円」の単位以下の端数金額は「切り捨て」として計算しております。
※金利は、固定金利として計算しております。
※上記の住宅ローン返済額一覧は、あくまで試算であり、将来の金利動向により、実際のご返済額とは異なります。
※ボーナス支払総額が総支払額の50%を超えている場合、上記の表では「ローン不可」となります。
※住宅ローン返済額一覧の数値は、住宅ローンのお申し込みやご融資をお約束するものではございません。
物件を見たい、物件や住環境の詳しい情報やローン相談など、
お問い合わせ先
(株)三島コーポレーション

掲載情報の著作権は提供元企業等に帰属します。
Copyright:(C) 2025 Recruit Co., Ltd.
アプリで簡単 物件探し 大手不動産サイトの情報から一括検!プッシュ通知で物件を見逃さない
App Storeからダウンロード Google Playで手に入れよう QRコード