アプリで簡単 物件探し 通知 共有 アプリならではの機能を使ってみる
中古住宅

大阪府泉大津市式内町 泉大津駅 中古一戸建て・中古住宅

情報提供元
SUUMO
大阪府泉大津市式内町 泉大津駅 中古一戸建て・中古住宅
価格 3940万円
交通
所在地 大阪府泉大津市式内町周辺地図
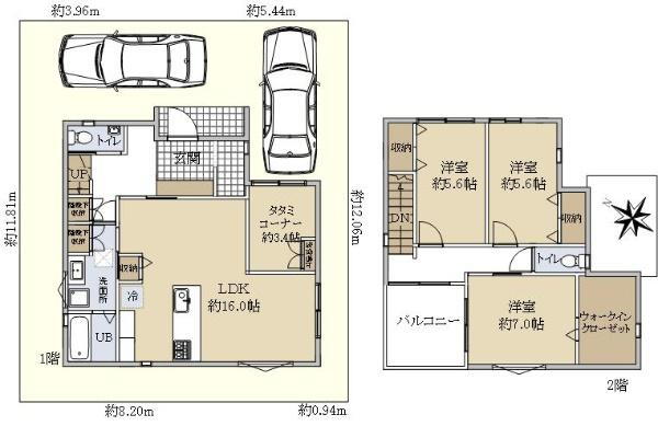
間取り 3LDK
建物面積 102.67m2(31.05坪) 土地面積 110.76m2(33.50坪)(登記)
築年月 2021年1月 築年数 築4年12ヶ月
おすすめポイント
【セールスポイント】〇長期優良認定住宅!〇オール電化住宅!〇太陽光パネル設置!〇令和3年1月築!〇駐車スペース2台可(車種による)!〇土地面積:110.76㎡(33.5坪)!〇1階(タンクレス)・2階にトイレ有!〇浴室乾燥機付き!〇ウォークインクローゼット付き!〇床暖房設備(リビング部分)!〇食洗器付き!〇1階リビング南東側雨戸電動シャッター!【交通アクセス】〇南海電鉄南海本線『泉大津』駅まで徒歩11分
駐車場2台分・オール電化・整形地・長期優良住宅
お問い合わせ先
住友不動産ステップ(株)おおとり営業センター
物件を見たい、物件や住環境の詳しい情報やローン相談など、
お問い合わせ先
住友不動産ステップ(株)おおとり営業センター

詳細情報

価格 3940万円
所在地 大阪府泉大津市式内町周辺地図
交通
間取り 3LDK 築年月(築年数) 2021年1月(築4年12ヶ月)
建物面積 102.67m2(31.05坪) 建物構造・規模 木造2階建
土地面積 110.76m2(33.50坪)(登記) 土地権利 所有権
私道面積 借地期間・地代
接道状況 北東5m接面9.4m 駐車場
用途地域 準工業 都市計画
建ぺい率/容積率 60%/200% 現況
地目 引渡可能時期 相談
情報提供元 SUUMO [060Z78680357] 情報公開日
情報更新日 次回更新予定日 随時

設備など

1種低層地域 - 即入居可 - 売主・代理 -
駐車2台以上 平屋 - 本下水 -
都市ガス - カウンターキッチン - 床暖房 -
ウォークインクローゼット バリアフリー -
設備 トイレ・収納スペース・洗面所・ウォークインクローゼット・シャンプードレッサ・温水洗浄便座・トイレ2ヶ所・床下収納・IHクッキングヒータ・駐車場2台分・太陽光システム
リフォーム履歴 -
リノベーション履歴 -
備考 <物件名>式内町(泉大津駅) 3940万円/<土地権利>所有権/<間取り>3LDK/<特徴>〇泉北ホーム施工のお家・オール電化住宅〇、長期優良住宅認定通知書・太陽光発電システム・駐車2台可・駅まで平坦・LDK15畳以上
販売戸数:1戸
法令等制限:地勢:平坦/駐車場有り/駐車場(車種による)
特記事項 駐車場2台分・オール電化・整形地・長期優良住宅

省エネ性能

エネルギー消費性能 -
断熱性能 -
目安光熱費 -

大阪府泉大津市式内町 周辺地図情報

地図
※地図上に表示される物件の位置は付近住所に所在することを表すものであり、実際の物件所在地とは異なる場合がございます。
   正確な物件所在地は、取扱い不動産会社にお問い合わせください。
物件を見たい、物件や住環境の詳しい情報やローン相談など、
お問い合わせ先
住友不動産ステップ(株)おおとり営業センター

不動産会社情報

お問い合わせ先 商号:住友不動産ステップ(株)おおとり営業センター
免許番号:国土交通大臣(13)第002077号
所在地:大阪府堺市西区鳳東町1-7-30 平兵衛ビル3階
TEL:0120-020176
取引態様:専属専任媒介
管理コード:35782049
共有する
QRコード
物件を見たい、物件や住環境の詳しい情報やローン相談など、
お問い合わせ先
住友不動産ステップ(株)おおとり営業センター

泉大津市の暮らしデータ

人口などの統計情報

世帯数 32469世帯
人口総数 73145人
転入者数 3149人
転入率(人口1000人当たり)
43.05人
転出者数 3041人
転出率(人口1000人当たり)
41.57人
土地平均価格
住宅地
118000円/m2
商業地
126000円/m2

結婚・育児の助成金

子育て関連の独自の取り組み (1)妊婦に栄養価の高い金芽米を毎月プレゼント。(2)7ヶ月児がいる全家庭を対象に、専門職による家庭訪問を行う相談支援と、育児用品を購入できる5万円相当のポイントを支給。(3)子育てサークルの活動経費に対し、2万円/年を上限額として補助金を支給。(4)子育てサポーターがBP1ファシリテーター養成講座を受講する場合、その受講料は市が負担。(5)フードリボンプロジェクトに賛同し、活動する市内飲食店に対し、のぼり旗等のスタートアップキットを配布。
出産祝い なし
公立保育所数 2所(うち0歳児保育を実施している保育所:2所)
私立保育所数 0所(うち0歳児保育を実施している保育所:-)
保育所入所待機児童数 0人
認定こども園数 11園 預かり保育実施園数 公立:2園 私立:-
学校給食 【小学校】完全給食【中学校】デリバリー形式[運搬:食缶、内容:完全給食]
公立中学校の学校選択制 一部実施(隣接区域選択制)
子ども・学生等医療費助成<通院>対象年齢 18歳3月末まで 子ども・学生等医療費助成<入院>対象年齢 18歳3月末まで

泉大津市の治安・ごみ収集情報

公共料金・インフラ

ガス料金(22m3使用した場合の月額) 大阪瓦斯株式会社4544円
水道料金(口径20mmで20m3の月額) 泉大津市3199円
下水道料金(20m3を使用した場合の月額) 泉大津市2877円
下水道普及率 97.2%

安心・安全

建物火災出火件数 13件
人口10000人当たり
1.75件
刑法犯認知件数 645件
人口1000人当たり
8.67件
ハザード・防災マップ あり

医療

一般病院総数 4ヶ所
一般診療所総数 70ヶ所
小児科医師数 22人
小児人口10000人当たり
26.30人
産婦人科医師数 11人
15~49歳女性人口1万人当たり
7.48人
介護保険料基準額(月額) 6751円

ごみ

家庭ごみ収集(可燃ごみ) 有料
備考
指定ごみ袋有料。
家庭ごみの分別方式 7分別〔可燃ごみ 小型家電 資源ごみA(容器包装プラスチック) 資源ごみB(ペットボトル) 資源ごみC(かん・びん・乾電池等) 資源ごみD(せともの・ガラス類等) 資源ごみE(古紙類)〕
家庭ごみの戸別収集 実施
粗大ごみ収集 あり
備考
有料。事前申込制。
生ごみ処理機助成金制度 あり
上限金額
40000円
上限比率
66.7%

泉大津市の住まいの給付金

中古購入

利子補給制度 なし
補助/助成金制度 なし

増築・改築・改修

利子補給制度 なし
補助/助成金制度 あり
上限金額
(1)5万円(2)10万円(3)60万円
備考
(1)【既存民間建築物耐震診断補助金】耐震診断に要した費用に10/11を乗じて得た額。ただし、上限5万円。(2)【木造住宅耐震設計補助金】耐震設計に要する費用の7/10を乗じて得た額。ただし、上限10万円。(3)【木造住宅耐震改修補助金】40万円又は世帯の月額所得が21.4万円以下の場合、60万円。
暮らしデータ提供元:生活ガイド.com
※行政機関により公表していない地域及びデータがございます。東京23区以外の政令指定都市は、市全体のデータとして表示しています。
※提供データには細心の注意を払っておりますが、調査後に変更がある場合があります。 最新の情報につきましては各市区役所までお問い合わせいただくか、自治体HPなどをご確認ください。
OCN×ドコモ光新規お申込みで合計最大137,280円相当おトク!特典の内訳・適用条件など詳細はこちら

泉大津市内の各駅の住みやすさ

住宅ローンの返済額一覧

物件価格 3940万円に対して、年率 で、頭金 の場合
↓ボーナス 35年間 30年間 25年間 20年間 15年間 10年間
0万円 89,297円/月 102,921円/月 122,006円/月 150,649円/月 198,407円/月 293,952円/月
5万円 80,211円/月 93,945円/月 113,139円/月 141,890円/月 189,755円/月 285,407円/月
10万円 71,126円/月 84,969円/月 104,272円/月 133,131円/月 181,104円/月 276,862円/月
15万円 62,040円/月 75,994円/月 95,406円/月 124,373円/月 172,452円/月 268,317円/月
20万円 52,955円/月 67,018円/月 86,539円/月 115,614円/月 163,801円/月 259,772円/月
25万円 ローン不可 58,042円/月 77,672円/月 106,855円/月 155,149円/月 251,227円/月
30万円 ローン不可 ローン不可 68,805円/月 98,097円/月 146,498円/月 242,681円/月
支払い利息合計 3,119,230円~ 2,666,920円~ 2,217,200円~ 1,768,240円~ 1,322,590円~ 880,460円~
※元利均等返済方式で試算しています。 「円」の単位以下の端数金額は「切り捨て」として計算しております。
※金利は、固定金利として計算しております。
※上記の住宅ローン返済額一覧は、あくまで試算であり、将来の金利動向により、実際のご返済額とは異なります。
※ボーナス支払総額が総支払額の50%を超えている場合、上記の表では「ローン不可」となります。
※住宅ローン返済額一覧の数値は、住宅ローンのお申し込みやご融資をお約束するものではございません。
物件を見たい、物件や住環境の詳しい情報やローン相談など、
お問い合わせ先
住友不動産ステップ(株)おおとり営業センター

掲載情報の著作権は提供元企業等に帰属します。
Copyright:(C) 2025 Recruit Co., Ltd.
アプリで簡単 物件探し 大手不動産サイトの情報から一括検!プッシュ通知で物件を見逃さない
App Storeからダウンロード Google Playで手に入れよう QRコード