アプリで簡単 物件探し 通知 共有 アプリならではの機能を使ってみる
土地

東京都八王子市富士見町 北八王子駅 土地

情報提供元
LIFULL HOME'S
東京都八王子市富士見町 北八王子駅 土地
価格 2990万円
坪単価 86.45万円
交通
所在地 東京都八王子市富士見町周辺地図
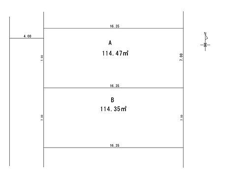
土地面積 114.35m2(実測)
用途地域 1種低層 建築条件 なし
建ぺい率 50% 容積率 100%
物件を見たい、物件や住環境の詳しい情報やローン相談など、
お問い合わせ先
株式会社住まいの広場TOWNS

詳細情報

価格 2990万円
土地面積 114.35m2(実測) 坪単価 86.45万円
所在地 東京都八王子市富士見町周辺地図
交通
  • 八高線 北八王子駅 徒歩15分乗換案内
  • 京王電鉄京王線 京王八王子駅 徒歩23分乗換案内
土地権利 所有権 都市計画 市街化区域
借地期間・地代   用途地域 1種低層
建築条件 なし 建ぺい率/容積率 50% / 100%
私道面積   地目 宅地
接道状況
セットバック 引渡可能時期 相談
現況 更地 条件等
情報提供元 LIFULL HOME'S [1127950077007] 情報公開日
情報更新日 次回更新予定日 2025年11月26日

設備など

即引渡し可 - 1種低層地域 売主・代理 -
本下水 - 都市ガス - 角地 -
設備
建築条件 建築条件なし
備考 【物件周辺の生活情報】
・学校
大和田小学校(632m)、第五中学校(1,365m)
・買い物
スーパー(718m)、コンビニ(363m)、ドラッグストア(142m)
・その他施設
総合病院(1,264m)、公園(206m)、八王子市立富士見台保育園(505m)
周辺環境が充実している売地はこちらです。住宅用地なので、周辺環境が新しい住まいを建てるのに適しています。駅まで徒歩15分の場所に立地しています。第一種低層住居専用地域はストレスフリーな生活を送ることができ、静かな生活に適しています。
国土法届出:不要
販売区画:1区画
特記事項  

省エネ性能

エネルギー消費性能 -
断熱性能 -
目安光熱費 -

東京都八王子市富士見町 周辺地図情報

地図
※地図上に表示される物件の位置は付近住所に所在することを表すものであり、実際の物件所在地とは異なる場合がございます。
   正確な物件所在地は、取扱い不動産会社にお問い合わせください。
物件を見たい、物件や住環境の詳しい情報やローン相談など、
お問い合わせ先
株式会社住まいの広場TOWNS

不動産会社情報

お問い合わせ先 商号:株式会社住まいの広場TOWNS
免許番号:神奈川県知事(4)第27368号
所在地:神奈川県相模原市中央区相模原4丁目6-16
取引態様:媒介
管理コード:77007
所属協会など:所属団体未加入
共有する
QRコード

お電話でのお問い合わせ

電話をかける(携帯・PHS可)
お問い合わせダイヤル
通話無料0037-634-03737
営業時間 09:00~21:00 (定休日:年中無休(年末年始は除く))
音声案内に従って数字を入力
お問い合わせ番号
07324-2979
不動産会社につながります
不動産会社のスタッフと
直接電話で話せます。
※不動産会社がお電話に出られなかった場合、株式会社LIFULLは電話会社が提供するサービスを介してお客様の発信者番号を受領後、折り返し専用の電話番号を発番してお問合せの不動産会社に通知します(お客様の発信者番号がお問合せの不動産会社に通知されることはございません)
※光IP電話、及びIP電話からはご利用になれません
※0037で始まる電話番号に携帯電話からお問合せいただいた方には、ショートメッセージ(SMS)によるお問合せ完了通知をお届けする場合があります
物件を見たい、物件や住環境の詳しい情報やローン相談など、
お問い合わせ先
株式会社住まいの広場TOWNS
※建築条件土地の情報内に掲載されている、建物プラン例は、土地購入者の設計プランの参考の一例であって、プランの採用可否は任意です。
※建築条件付き土地とは、その土地に建築する建物の建築請負契約が、一定期間内に成立することを条件として売買される土地のことをいいます。建築請負契約成立に向けて設計プランを協議するため、土地購入者が自己の希望する建物の設計協議をするために 必要な相当の期間の交渉期間が設定され、その期間内で希望を満たすプランが実現できたかどうかにより結論を出します。なお、この期間は概ね3ヶ月程度とされています。納得のいくプランが出来ず、建築請負契約が成立しない場合、土地売買契約は白紙に戻り、土地契約にかかった代金(土地代金、手付金など)は名目のいかんに関わらず、全て返却されます。

八王子市の暮らしデータ

人口などの統計情報

世帯数 266549世帯
人口総数 560692人
転入者数 26354人
転入率(人口1000人当たり)
47.00人
転出者数 23488人
転出率(人口1000人当たり)
41.89人
土地平均価格
住宅地
130545円/m2
商業地
405286円/m2

結婚・育児の助成金

子育て関連の独自の取り組み (1)子育て応援サイト・妊娠・子育て支援LINE「すくすく☆メール」。(2)レンタルベビーカー。(3)学校サポーター認証制度・学校サポーター育成プログラム。(4)高尾山学園(不登校児童生徒のための小中一貫校)。(5)はちおうじっ子子育てほっとライン(妊娠出産子育て相談窓口)。(6)八王子版ネウボラ乳幼児手帳と保存のためのマイファイル配布。(7)子育て応援企業。(8)ベビーテント貸出。
出産祝い あり
公立保育所数 15所(うち0歳児保育を実施している保育所:4所)
私立保育所数 73所(うち0歳児保育を実施している保育所:70所)
保育所入所待機児童数 15人
認定こども園数 21園 預かり保育実施園数 公立:- 私立:25園
学校給食 【小学校】完全給食【中学校】完全給食
公立中学校の学校選択制 実施(新入学時、転入または転居により転校するとき)
子ども・学生等医療費助成<通院>対象年齢 18歳3月末まで 子ども・学生等医療費助成<入院>対象年齢 18歳3月末まで

八王子市の治安・ごみ収集情報

公共料金・インフラ

ガス料金(22m3使用した場合の月額) 東京瓦斯株式会社(東京地区等)3926円
水道料金(口径20mmで20m3の月額) 東京都水道局2816円
下水道料金(20m3を使用した場合の月額) 八王子市2068円
下水道普及率 99.4%

安心・安全

建物火災出火件数 98件
人口10000人当たり
1.69件
刑法犯認知件数 3197件
人口1000人当たり
5.52件
ハザード・防災マップ あり

医療

一般病院総数 28ヶ所
一般診療所総数 392ヶ所
小児科医師数 85人
小児人口10000人当たり
14.40人
産婦人科医師数 30人
15~49歳女性人口1万人当たり
2.80人
介護保険料基準額(月額) 5950円

ごみ

家庭ごみ収集(可燃ごみ) 有料
備考
可燃ごみ・不燃ごみが有料。
家庭ごみの分別方式 4分別13種〔可燃ごみ 不燃ごみ 有害ごみ 資源物(容器包装プラスチック、ペットボトル、びん、缶、紙類[新聞・チラシ、ダンボール、雑誌・雑紙、紙パック]、古着・古布、剪定枝)〕
家庭ごみの戸別収集 実施
粗大ごみ収集 あり
備考
有料。事前申込制。
生ごみ処理機助成金制度 なし
上限金額
-
上限比率
-

八王子市の住まいの給付金

新築建築

利子補給制度 なし
補助/助成金制度 なし

新築購入

利子補給制度 なし
補助/助成金制度 なし
暮らしデータ提供元:生活ガイド.com
※行政機関により公表していない地域及びデータがございます。東京23区以外の政令指定都市は、市全体のデータとして表示しています。
※提供データには細心の注意を払っておりますが、調査後に変更がある場合があります。 最新の情報につきましては各市区役所までお問い合わせいただくか、自治体HPなどをご確認ください。
OCN×ドコモ光新規お申込みで合計最大137,280円相当おトク!特典の内訳・適用条件など詳細はこちら

他のエリアから探す

八王子市の詳細地域から土地物件を探す

暁町石川町泉町犬目町上野町打越町宇津木町大塚大船町大谷町大横町大和田町小門町尾崎町鹿島加住町片倉町叶谷町上壱分方町上川町上柚木川口町川町北野台北野町絹ケ丘清川町椚田町久保山町小比企町小宮町子安町左入町散田町下恩方町下柚木諏訪町千人町平町高尾町高倉町高月町館町台町大楽寺町寺田町廿里町戸吹町中野上町中野山王中野町中山長沼町長房町七国楢原町南陽台西片倉西寺方町弐分方町狭間町八幡町初沢町東浅川町兵衛平岡町富士見町堀之内本郷町本町松木丸山町緑町南浅川町南新町みなみ野宮下町美山町明神町めじろ台元八王子町元本郷町元横山町八木町谷野町山田町鑓水横川町四谷町万町

近辺の市区から探す

立川市昭島市日野市国立市福生市武蔵村山市多摩市羽村市あきる野市西多摩郡瑞穂町西多摩郡日の出町相模原市緑区相模原市中央区

周辺の駅から探す

八高線
八王子北八王子小宮拝島東福生箱根ケ崎
京王電鉄京王線
南平平山城址公園長沼北野京王八王子

住宅ローンの返済額一覧

物件価格 2990万円に対して、年率 で、頭金 の場合
↓ボーナス 35年間 30年間 25年間 20年間 15年間 10年間
0万円 64,636円/月 74,498円/月 88,312円/月 109,045円/月 143,614円/月 212,773円/月
5万円 55,551円/月 65,522円/月 79,446円/月 100,286円/月 134,963円/月 204,228円/月
10万円 46,465円/月 56,546円/月 70,579円/月 91,528円/月 126,311円/月 195,683円/月
15万円 37,380円/月 47,571円/月 61,712円/月 82,769円/月 117,660円/月 187,138円/月
20万円 ローン不可 38,595円/月 52,845円/月 74,010円/月 109,008円/月 178,593円/月
25万円 ローン不可 ローン不可 ローン不可 65,252円/月 100,357円/月 170,048円/月
30万円 ローン不可 ローン不可 ローン不可 56,493円/月 91,705円/月 161,503円/月
支払い利息合計 2,258,180円~ 1,931,640円~ 1,603,950円~ 1,283,280円~ 959,850円~ 639,100円~
※元利均等返済方式で試算しています。 「円」の単位以下の端数金額は「切り捨て」として計算しております。
※金利は、固定金利として計算しております。
※上記の住宅ローン返済額一覧は、あくまで試算であり、将来の金利動向により、実際のご返済額とは異なります。
※ボーナス支払総額が総支払額の50%を超えている場合、上記の表では「ローン不可」となります。
※住宅ローン返済額一覧の数値は、住宅ローンのお申し込みやご融資をお約束するものではございません。
物件を見たい、物件や住環境の詳しい情報やローン相談など、
お問い合わせ先
株式会社住まいの広場TOWNS
掲載情報の著作権は提供元企業等に帰属します。
Copyright:(C) 2025 LIFULL Co.,Ltd.
アプリで簡単 物件探し 大手不動産サイトの情報から一括検!プッシュ通知で物件を見逃さない
App Storeからダウンロード Google Playで手に入れよう QRコード