アプリで簡単 物件探し 通知 共有 アプリならではの機能を使ってみる
新築一戸建て

神奈川県座間市ひばりが丘1丁目 南林間駅 新築一戸建て・分譲住宅

情報提供元
LIFULL HOME'S
神奈川県座間市ひばりが丘1丁目 南林間駅 新築一戸建て・分譲住宅
価格 3580万円
交通
所在地 神奈川県座間市ひばりが丘1丁目周辺地図
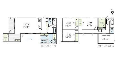
間取り 4LDK
建物面積 104.57m2 土地面積 62.59m2
築年月 2026年8月 築年数 新築
おすすめポイント
くらしを楽しむ世の中を、もっと。~ME不動産神奈川~
物件を見たい、物件や住環境の詳しい情報やローン相談など、
お問い合わせ先
ME不動産神奈川株式会社

詳細情報

価格 3580万円
所在地 神奈川県座間市ひばりが丘1丁目周辺地図
交通
  • 小田急電鉄江ノ島線 南林間駅 徒歩19分乗換案内
  • 小田急電鉄江ノ島線 鶴間駅 徒歩25分乗換案内
間取り 4LDK 築年月(築年数) 2026年8月新築
建物面積 104.57m2 建物構造・規模 木造3階建
土地面積 62.59m2 土地権利 所有権
私道面積 借地期間・地代
接道状況 南東4m公道 一方道路
セットバック 1.87㎡ 駐車場 空有 (1台) 無料
用途地域 1種中高 都市計画 市街化区域
建ぺい率/容積率 60%/160% 現況 未完成
地目 宅地 引渡可能時期 2026年8月下旬
情報提供元 LIFULL HOME'S [1454940016955] 情報公開日
情報更新日 次回更新予定日 2025年11月27日

設備など

1種低層地域 - 即入居可 - 売主・代理 -
駐車2台以上 - 平屋 - 本下水
都市ガス カウンターキッチン - 床暖房 -
ウォークインクローゼット - バリアフリー -
設備 上水道・都市ガス・本下水・システムキッチン・バルコニー
リフォーム履歴 -
リノベーション履歴 -
備考  【設備・特記事項備考】全居室収納
建築確認:有/NO.第25KAK建確01830号
国土法届出:不要
販売戸数:1戸
特記事項

省エネ性能

エネルギー消費性能 -
断熱性能 -
目安光熱費 -

神奈川県座間市ひばりが丘1丁目 周辺地図情報

地図
※地図上に表示される物件の位置は付近住所に所在することを表すものであり、実際の物件所在地とは異なる場合がございます。
   正確な物件所在地は、取扱い不動産会社にお問い合わせください。
物件を見たい、物件や住環境の詳しい情報やローン相談など、
お問い合わせ先
ME不動産神奈川株式会社

不動産会社情報

お問い合わせ先 商号:ME不動産神奈川株式会社
免許番号:神奈川県知事(01)第031372号
所在地:神奈川県厚木市中町4丁目9番18号 本厚木トーセイビル2 302
取引態様:媒介
管理コード:16955
所属協会など:(公社)首都圏不動産公正取引協議会、(公社)全日本不動産協会神奈川県本部
共有する
QRコード

お電話でのお問い合わせ

電話をかける(携帯・PHS可)
お問い合わせダイヤル
通話無料0037-634-90315
営業時間 09:00~18:30 (定休日:水曜日)
音声案内に従って数字を入力
お問い合わせ番号
83066-2973
不動産会社につながります
不動産会社のスタッフと
直接電話で話せます。
※不動産会社がお電話に出られなかった場合、株式会社LIFULLは電話会社が提供するサービスを介してお客様の発信者番号を受領後、折り返し専用の電話番号を発番してお問合せの不動産会社に通知します(お客様の発信者番号がお問合せの不動産会社に通知されることはございません)
※光IP電話、及びIP電話からはご利用になれません
※0037で始まる電話番号に携帯電話からお問合せいただいた方には、ショートメッセージ(SMS)によるお問合せ完了通知をお届けする場合があります
物件を見たい、物件や住環境の詳しい情報やローン相談など、
お問い合わせ先
ME不動産神奈川株式会社

座間市の暮らしデータ

人口などの統計情報

世帯数 60153世帯
人口総数 131356人
転入者数 6602人
転入率(人口1000人当たり)
50.26人
転出者数 5943人
転出率(人口1000人当たり)
45.24人
土地平均価格
住宅地
149356円/m2
商業地
260000円/m2

結婚・育児の助成金

子育て関連の独自の取り組み (1)移動費用支援給付金(妊婦及び乳幼児[0歳~3歳]の養育者に対し給付金を支給。母子健康手帳発行時には1万円、出生時及び1歳、2歳、3歳の誕生日には各1.2万円)。(2)すくすく給付金(1歳及び2歳の養育者に対し1万円を支給)。
出産祝い なし
公立保育所数 7所(うち0歳児保育を実施している保育所:7所)
私立保育所数 18所(うち0歳児保育を実施している保育所:18所)
保育所入所待機児童数 30人
認定こども園数 0園 預かり保育実施園数 公立:- 私立:9園
学校給食 【小学校】完全給食【中学校】家庭弁当等との選択制/デリバリー形式[運搬:ランチボックス、内容:完全給食]
公立中学校の学校選択制 未実施
子ども・学生等医療費助成<通院>対象年齢 18歳3月末まで 子ども・学生等医療費助成<入院>対象年齢 18歳3月末まで

座間市の治安・ごみ収集情報

公共料金・インフラ

ガス料金(22m3使用した場合の月額) 東京瓦斯株式会社(東京地区等)3926円
大東ガス株式会社4335円
水道料金(口径20mmで20m3の月額) 座間市2248円
下水道料金(20m3を使用した場合の月額) 座間市2634円
下水道普及率 97.7%

安心・安全

建物火災出火件数 20件
人口10000人当たり
1.51件
刑法犯認知件数 643件
人口1000人当たり
4.86件
ハザード・防災マップ あり

医療

一般病院総数 4ヶ所
一般診療所総数 64ヶ所
小児科医師数 10人
小児人口10000人当たり
6.93人
産婦人科医師数 3人
15~49歳女性人口1万人当たり
1.20人
介護保険料基準額(月額) 5859円

ごみ

家庭ごみ収集(可燃ごみ) 無料
備考
-
家庭ごみの分別方式 10分別15種〔燃やすごみ 草木類 燃えないごみ(乾電池、製品プラスチック・蛍光灯・金属類・小型家電・その他) プラスチック製容器包装 ペットボトル 缶 ビン 紙(新聞紙、雑誌、ダンボール、牛乳パック、ミックスペーパー) 布 廃食用油〕
家庭ごみの戸別収集 一部実施(高齢者や障害者といった定められた基準を満たす者が事前に届け出を行ない、その対象者のみ収集)
粗大ごみ収集 あり
備考
有料。事前申込制。500円/点。
生ごみ処理機助成金制度 あり
上限金額
50000円
上限比率
75.0%

座間市の住まいの給付金

新築購入

利子補給制度 あり
上限金額
(融資限度額)500万円
備考
【座間市勤労者住宅資金利子補助金制度】中央労働金庫と住宅ローンを契約した者に、年利3.0%以内、貸付金の限度額500万円を補助対象として、補助期間36ヶ月以内の利子補助を行う。
補助/助成金制度 なし
暮らしデータ提供元:生活ガイド.com
※行政機関により公表していない地域及びデータがございます。東京23区以外の政令指定都市は、市全体のデータとして表示しています。
※提供データには細心の注意を払っておりますが、調査後に変更がある場合があります。 最新の情報につきましては各市区役所までお問い合わせいただくか、自治体HPなどをご確認ください。
OCN×ドコモ光新規お申込みで合計最大137,280円相当おトク!特典の内訳・適用条件など詳細はこちら

座間市内の各駅の住みやすさ

住宅ローンの返済額一覧

物件価格 3580万円に対して、年率 で、頭金 の場合
↓ボーナス 35年間 30年間 25年間 20年間 15年間 10年間
0万円 79,952円/月 92,150円/月 109,238円/月 134,883円/月 177,643円/月 263,190円/月
5万円 70,866円/月 83,174円/月 100,371円/月 126,124円/月 168,992円/月 254,645円/月
10万円 61,781円/月 74,198円/月 91,504円/月 117,366円/月 160,340円/月 246,099円/月
15万円 52,695円/月 65,223円/月 82,638円/月 108,607円/月 151,689円/月 237,554円/月
20万円 43,610円/月 56,247円/月 73,771円/月 99,848円/月 143,037円/月 229,009円/月
25万円 ローン不可 47,271円/月 64,904円/月 91,090円/月 134,386円/月 220,464円/月
30万円 ローン不可 ローン不可 56,037円/月 82,331円/月 125,734円/月 211,919円/月
支払い利息合計 2,794,330円~ 2,389,360円~ 1,986,800円~ 1,584,400円~ 1,185,070円~ 789,020円~
※元利均等返済方式で試算しています。 「円」の単位以下の端数金額は「切り捨て」として計算しております。
※金利は、固定金利として計算しております。
※上記の住宅ローン返済額一覧は、あくまで試算であり、将来の金利動向により、実際のご返済額とは異なります。
※ボーナス支払総額が総支払額の50%を超えている場合、上記の表では「ローン不可」となります。
※住宅ローン返済額一覧の数値は、住宅ローンのお申し込みやご融資をお約束するものではございません。
物件を見たい、物件や住環境の詳しい情報やローン相談など、
お問い合わせ先
ME不動産神奈川株式会社

掲載情報の著作権は提供元企業等に帰属します。
Copyright:(C) 2025 LIFULL Co.,Ltd.
アプリで簡単 物件探し 大手不動産サイトの情報から一括検!プッシュ通知で物件を見逃さない
App Storeからダウンロード Google Playで手に入れよう QRコード